新築一戸建て G-STYLE 志水小学校東III【イワクラゴールデンホーム(株)】
堂々完成!建売でも他とはちょっと違う個性的な住宅をお望みの方へご好評いただいている分譲戸建てです。
―アクセス―
・教育施設、買い物施設などが徒歩圏内に揃った、子育てしやすい環境
・とよやまタウンバス「青塚古墳前」停まで徒歩1分
・国道41号線「豊場八反」交差点まで車約1分で車移動も快適
―ロケーション―
・ローソン豊山町伊勢山店まで徒歩5分
・西友豊山店まで徒歩6分
・エアポートウォーク名古屋まで徒歩13分
・豊山町立志水小学校まで徒歩4分
・豊山町立豊山中学校まで徒歩9分
0037-618-85591
無料
魅力1 \陽光豊かな全2邸の新街区/ スマートな暮らしが叶う、IOT対応住宅が誕生!
【1】LDK/NO.2
グレーのアクセントクロスがモダンな印象のLDK。リビングとダイニングを分けて、家具の配置ができるレイアウトを採用しています。キッチンは対面式。フラットな天板で、配膳や拭き掃除などもスムーズに行えます。
【2】LDK/NO.2
南側の掃き出し窓からは、南庭への出入りも可能です。全居室、お手入れのしやすいフローリング仕様。フロアモップなどを用いて、簡単にお掃除ができそうです。
【3】LDK/NO.1
生活のメインスペースとなるLDKは、16帖超の広さです。足元からあたたまれる床暖房付き◎2か所に可動棚を設けており、ストック品や日常使いの小物類なども整理整頓できそうです。
魅力2 \最寄りバス停へわずか徒歩1分/ 買い物施設などが徒歩圏内の生活利便なエリア。
~買い物施設や、医療機関など生活に欠かせない施設が身近に~
【1】エアポートウォーク名古屋 徒歩13分
映画館・レストランなどがあり、休日に気軽に訪れることができるお出かけスポットです。営業時間は10:00~21:30です(店舗によって異なる)。
【2】県営名古屋空港 徒歩20分
2025年2月に開港20周年を迎えた空港です。展望デッキからは飛行機の発着を眺めることができます。
【3】名春中央病院 徒歩38分
内科や胃腸科、循環器科、外科など、様々な診療科がある病院です。各種健康診断、ワクチン接種などに対応しています。
魅力3 \子育てしやすいロケーション/ 小・中学校や小児科、公園が徒歩10分圏内に。
【1】豊山町立志水小学校 徒歩4分
6年間毎日通うのに、負担が少ない距離◎小学校のHPでは、写真付きでブログが更新されていますので、お子様の学校での様子を知ることができます。
【2】豊山町立豊山中学校 徒歩9分
毎日の通学時間は、友達とのコミュニケーションを育む大切なひと時。楽しくお喋りをしていると、あっという間に到着しそうです。
【3】わかばファミリークリニック 徒歩8分
診療科目は内科・アレルギー科・消化器科・循環器科・小児科・皮膚科。受付時間は8:30~12:30、16:00~19:00、日曜祝日は休診です。
0037-618-85591
無料
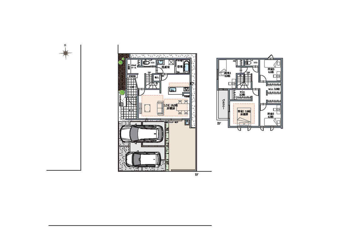
間取り図
0037-618-85591
無料
内観・室内
間取り・内観のこだわりポイント
- LDK15帖以上
- 4LDK以上
- 和室
- 南面バルコニー
- 全室フローリング
0037-618-85591
無料
設備・仕様
設備・仕様のこだわりポイント
- キッチン
-
- カウンターキッチン
- 食器洗い乾燥機
- ガスコンロ
- 収納
-
- ウォークインクローゼット
- 全居室収納
- その他設備
-
- 都市ガス
- 温水洗浄便座
- 浴室乾燥機
- 浴室暖房
- トイレ2ヶ所以上
- 床暖房
- 複層ガラス採用(二重サッシ・防犯サッシ等)
- 省エネ給湯器
- 電動シャッター
- 宅配ボックス
0037-618-85591
無料
外観・分譲地
外観・分譲地のこだわりポイント
- 駐車場あり
- 角地
- 南道路
0037-618-85591
無料
周辺環境・地図
周辺情報
※半径4kmを超えると、周辺情報のアイコンは表示されません。
- ※不動産会社が入力した情報を基に物件の位置を表示しています。
- ※詳しくは不動産会社までお問合せください。
- ※地図上に表示される各種アイコンなどの情報は、おおよその所在地を表すものであり、物件・施設などの地点を保証するものではありません。
- ※地図の表示領域が広域になると周辺のお店・施設は表示できなくなります。
- ※地図、航空写真情報および地形ならびに周辺のお店・施設は、必ずしも現況を表すものではありません。
- ※物件から周辺のお店・施設までの距離は、利用が想定される道路を通行した場合の距離です。なお、必ずしも最短距離を保証するものではありません。
-
【買い物】
西友豊山店 (約430m 徒歩6分)
24時間営業店舗のため、買い忘れの際やお仕事帰りに気軽に立ち寄...
-
【買い物】
サンドラッグ豊山店 (約380m 徒歩5分)
医薬品・化粧品の他、肉・魚・野菜などの生鮮食品、冷凍食品の取り...
-
【その他】
豊山郵便局 (約580m 徒歩8分)
6台分の駐車スペースが設けられた支店。窓口営業時間は平日09:...
-
【その他】
冨士保育園 (約500m 徒歩7分)
お子様と歩いて通園ができる、徒歩7分の距離。行き帰りの時間も大...
-
【病院・役所】
Nキッズファミリークリニック (約680m 徒歩9分)
診療科目は小児科・アレルギー科・内科。お子様や高齢者でも通いや...
-
【病院・役所】
とりむら歯科クリニック (約530m 徒歩7分)
定期検診など歯のメンテナンスに通いやすい立地です。駐車場があり...
-
案内図
周辺環境のこだわりポイント
- スーパー 800m以内
- コンビニ 400m以内
- 小学校 800m以内
- 公園 400m以内
- 中学校 800m以内
- 複数路線
0037-618-85591
無料
物件概要
| 所在地 | 愛知県西春日井郡豊山町大字豊場字冨士 | ||
|---|---|---|---|
| 交通 |
JR東海交通城北線「比良」駅 徒歩32分 豊山タウンバス「青塚古墳前」停 徒歩1分 名鉄小牧線「味美」駅 徒歩32分 自転車4分 |
||
| 販売価格 | 3698万円・3848万円 | 最多価格帯 | - |
| 建物面積 | 104.35m2・109.73m2(約31.56坪・約33.19坪) | 土地面積 | 127.69m2(約38.62坪) |
| 間取り | 4LDK | 建物構造 | 木造2階建 |
| 販売スケジュール | 販売中 | ||
| 販売戸数 / 総戸数 | 2戸 / 2戸 | ||
| 完成予定日 | 2025年11月下旬予定 | 引き渡し可能年月 | 相談 |
| 駐車場 | 2台 | 道路の幅員 | 約4m~6m、アスファルト舗装 |
| 用途地域 | 第一種中高層住居専用地域 | 都市計画 | 市街化区域 |
| 地目 | 宅地 | 国土法 | - |
| 土地の権利 | 所有権 | 借地権の種類・期間 | - |
| 主たる設備の概要 | 中部電力、公営水道、本下水、都市ガス | 建築確認番号 | 完成済みのため省略 |
| 施工会社 | - | 機構融資 | - |
| 売主 | イワクラゴールデンホーム株式会社 [愛知県知事(15)第4164号] | 取引態様 | イワクラゴールデンホーム株式会社/売主 |
| 備考 | 景観法による規制有、航空法による規制有 | ||
| 情報更新日 | 2026/05/10 | 次回更新予定日 | 随時 |
| 取引条件有効期限 | 2026/12/31 | ||
住宅性能・販売概要・権利のこだわりポイント
- 所有権
- 瑕疵担保付き
- 売主・代理
- 耐震・制震・免震構造
- 設計住宅性能評価書
- 建設住宅性能評価書(新築時)
0037-618-85591
無料
取扱い不動産会社
イワクラゴールデンホーム株式会社の会社情報
お電話でのお問合せは「LIFULL HOME'S(ライフルホームズ)を見て」とお伝えください
0120-28-1118
0037-618-85591
無料
- ※携帯電話はご利用いただけます
- ※光IP電話、及びIP電話をご利用のお客様はTEL:0120-28-1118へご連絡ください
- ※携帯電話からお問合せいただいた方には、ショートメッセージ(SMS)またはLINE通知メッセージによるお問合せ内容に関する通知をお届けする場合があり、お客様の電話番号は株式会社LIFULLで一定期間保管されます
- ※株式会社LIFULLの個人情報の取扱い方針に同意のうえ、お電話ください
| 会社名 |
イワクラゴールデンホーム株式会社 |
|---|---|
| 免許番号 | 愛知県知事 (15) 第 4164 号 |
| 所在地 | 愛知県名古屋市港区港区南十一番町3丁目5番地1 |
| 所属団体 |
東海不動産公正取引協議会 |
この物件にお問合せする
実際に物件・周辺環境を見て検討したい!
近隣建物や接道の状況など資料で分からない部分も一目瞭然。 まずはWEBで事前予約、スムーズに見学しましょう
ご予約無しに直接ご来場された場合、担当者不在であったり、
他のお客様のご案内の都合上、お待たせしてしまうことがございます。
不動産会社に電話で相談したい!
0120-28-1118
0037-618-85591
無料
電話でのお問合せは「LIFULL HOME'S(ライフルホームズ)を見て」とお伝えください
- ※携帯電話はご利用いただけます
- ※光IP電話、及びIP電話をご利用のお客様はTEL:0120-28-1118へご連絡ください
- ※携帯電話からお問合せいただいた方には、ショートメッセージ(SMS)またはLINE通知メッセージによるお問合せ内容に関する通知をお届けする場合があり、お客様の電話番号は株式会社LIFULLで一定期間保管されます
- ※株式会社LIFULLの個人情報の取扱い方針に同意のうえ、お電話ください
LIFULL HOME'Sは物件鮮度No.1を目指していきます 物件情報に誤りがある場合はコチラからご連絡ください
- 【物件番号】
- 1700989-0000142
- ※完成後1年未満で未入居の物件を「新築」と表示しております。
- ※完成予想図やCG合成画像は、門塀・植栽・庭・外観等、実際とは多少異なる場合があります。
物件を再検索する
愛知県の人気エリアから新築一戸建てを探す















