新築一戸建て 創久タウン 一色東 C号地
この物件は未完成のため、掲載写真(外観、内観、設備等)には、施工例が含まれている場合があります。物件詳細については、掲載の不動産会社宛にお問合せください。
家族の輪を創る家へ。LDKと収納が自慢のあなたの家。・家族の暮らしを支える充実の設備仕様!
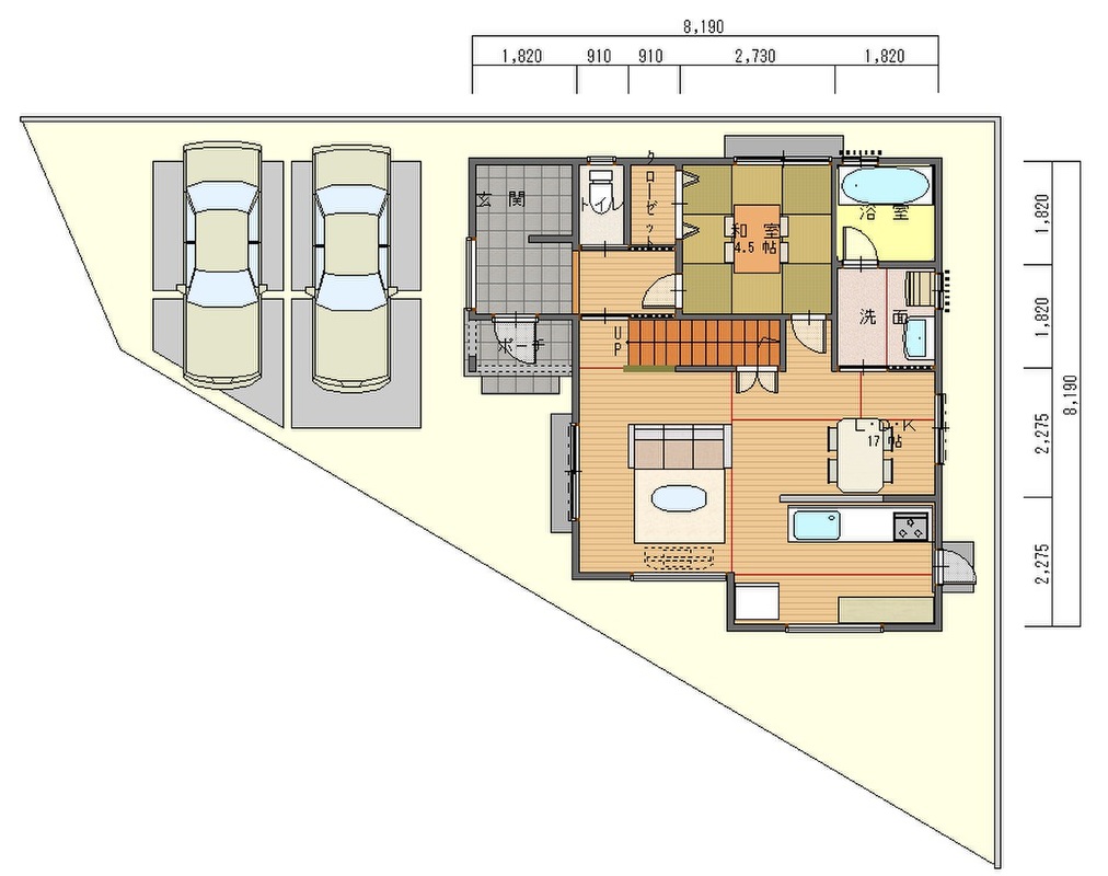
・15畳以上のリビングに4畳半の和室。家族が休まる空間を。リビング階段と対面キッチンを採用。
・「長期優良認定住宅」&「まもりすまい保険」で安心な生活を!
住宅ローン控除や万が一のときも家計を助けてくれる。
・オール電化住宅
安全性の向上やコスト削減にも繋がる主婦に強い味方。
JR「東加古川」駅 徒歩15分 山陽電鉄「別府」駅徒歩15分
0037-618-36651
無料
間取り図
0037-618-36651
無料
内観・室内
間取り・内観のこだわりポイント
- LDK15帖以上
- 4LDK以上
- 和室
0037-618-36651
無料
設備・仕様
設備・仕様のこだわりポイント
- キッチン
-
- IHコンロ
- カウンターキッチン
- 浄水器・活水器
- 収納
-
- 床下収納
- ウォークインクローゼット
- 全居室収納
- その他設備
-
- オール電化
- シャワー付洗面化粧台
- 温水洗浄便座
- トイレ2ヶ所以上
- 節水型トイレ
- 複層ガラス採用(二重サッシ・防犯サッシ等)
0037-618-36651
無料
外観・分譲地
外観・分譲地のこだわりポイント
- テラス
- 駐車場あり
- 地盤調査済
- 整形地
- 平坦地
0037-618-36651
無料
周辺環境・地図
周辺情報
※半径4kmを超えると、周辺情報のアイコンは表示されません。
- ※不動産会社が入力した情報を基に物件の位置を表示しています。
- ※詳しくは不動産会社までお問合せください。
- ※地図上に表示される各種アイコンなどの情報は、おおよその所在地を表すものであり、物件・施設などの地点を保証するものではありません。
- ※地図の表示領域が広域になると周辺のお店・施設は表示できなくなります。
- ※地図、航空写真情報および地形ならびに周辺のお店・施設は、必ずしも現況を表すものではありません。
- ※物件から周辺のお店・施設までの距離は、利用が想定される道路を通行した場合の距離です。なお、必ずしも最短距離を保証するものではありません。
周辺環境のこだわりポイント
- スーパー 800m以内
- 複数路線
0037-618-36651
無料
物件概要
| 所在地 | 兵庫県加古川市平岡町一色東1丁目22-4 | ||
|---|---|---|---|
| 交通 |
JR山陽本線「東加古川」駅 徒歩15分 山陽電鉄本線「別府」駅 徒歩15分 |
||
| 販売価格 | 3680万円 | 最多価格帯 | - |
| 建物面積 | 101.02m2 | 土地面積 | 137.65m2 |
| 間取り | 4LDK | 建物構造 | 木造2階建 |
| 販売スケジュール | 先着順受付中 | ||
| 販売戸数 / 総戸数 | 2戸 / 2戸 | ||
| 完成予定日 | 2026年07月 | 引き渡し可能年月 | 要相談 |
| 駐車場 | 1台 ~ 2台 | 道路の幅員 | 北側5m 接道22m |
| 用途地域 | 第一種中高層住居専用地域 | 都市計画 | 市街化区域 |
| 地目 | 宅地 | 国土法 | - |
| 土地の権利 | 所有権 | 借地権の種類・期間 | - |
| 主たる設備の概要 | 電気、公営水道 | 建築確認番号 | 建築確認番号 HK-21780号 |
| 施工会社 | 株式会社 創久住研 | 機構融資 | - |
| 売主 | 株式会社 創久住研 [兵庫県(9)第400599号] | 取引態様 | 株式会社 創久住研/売主 |
| 備考 | - | ||
| 情報更新日 | 2026/05/17 | 次回更新予定日 | 2026/05/30 |
| 取引条件有効期限 | 2026/07/30 | ||
住宅性能・販売概要・権利のこだわりポイント
- 所有権
- 瑕疵担保付き
- 売主・代理
0037-618-36651
無料
取扱い不動産会社
株式会社創久住研の会社情報
お電話でのお問合せは「LIFULL HOME'S(ライフルホームズ)を見て」とお伝えください
株式会社 創久住研
0037-618-36651
無料
- ※携帯電話はご利用いただけます
- ※光IP電話、及びIP電話をご利用のお客様はTEL:079-437-7007へご連絡ください
- ※携帯電話からお問合せいただいた方には、ショートメッセージ(SMS)またはLINE通知メッセージによるお問合せ内容に関する通知をお届けする場合があり、お客様の電話番号は株式会社LIFULLで一定期間保管されます
- ※株式会社LIFULLの個人情報の取扱い方針に同意のうえ、お電話ください
| 会社名 |
株式会社創久住研 |
|---|---|
| 免許番号 | 兵庫県知事 (8) 第 400599 号(更新中) |
| 所在地 | 兵庫県加古川市平岡町一色東1丁目432-1 |
| 所属団体 |
(一社)兵庫県宅地建物取引業協会 |
この物件にお問合せする
実際に物件・周辺環境を見て検討したい!
近隣建物や接道の状況など資料で分からない部分も一目瞭然。 まずはWEBで事前予約、スムーズに見学しましょう
ご予約無しに直接ご来場された場合、担当者不在であったり、
他のお客様のご案内の都合上、お待たせしてしまうことがございます。
不動産会社に電話で相談したい!
株式会社 創久住研
0037-618-36651
無料
電話でのお問合せは「LIFULL HOME'S(ライフルホームズ)を見て」とお伝えください
- ※携帯電話はご利用いただけます
- ※光IP電話、及びIP電話をご利用のお客様はTEL:079-437-7007へご連絡ください
- ※携帯電話からお問合せいただいた方には、ショートメッセージ(SMS)またはLINE通知メッセージによるお問合せ内容に関する通知をお届けする場合があり、お客様の電話番号は株式会社LIFULLで一定期間保管されます
- ※株式会社LIFULLの個人情報の取扱い方針に同意のうえ、お電話ください
LIFULL HOME'Sは物件鮮度No.1を目指していきます 物件情報に誤りがある場合はコチラからご連絡ください
- 【物件番号】
- 1700948-0000037
- ※完成後1年未満で未入居の物件を「新築」と表示しております。
- ※完成予想図やCG合成画像は、門塀・植栽・庭・外観等、実際とは多少異なる場合があります。
物件を再検索する
兵庫県の人気エリアから新築一戸建てを探す
加古川市の詳細町域から新築一戸建てを探す
- 尾上町旭
- 尾上町池田
- 尾上町今福
- 尾上町口里
- 尾上町安田
- 尾上町養田
- 加古川町粟津
- 加古川町稲屋
- 加古川町大野
- 加古川町河原
- 加古川町北在家
- 加古川町木村
- 加古川町篠原町
- 加古川町寺家町
- 加古川町友沢
- 加古川町中津
- 加古川町平野
- 加古川町備後
- 加古川町本町
- 加古川町溝之口
- 加古川町南備後
- 加古川町美乃利
- 上荘町薬栗
- 神野町石守
- 新神野
- 西神吉町岸
- 野口町北野
- 野口町坂井
- 野口町坂元
- 野口町長砂
- 野口町野口
- 野口町二屋
- 野口町古大内
- 野口町水足
- 野口町良野
- 東神吉町砂部
- 東神吉町神吉
- 東神吉町出河原
- 東神吉町西井ノ口
- 平岡町一色
- 平岡町新在家
- 平岡町高畑
- 平岡町土山
- 平岡町西谷
- 平岡町二俣
- 平岡町山之上
- 平荘町山角
- 別府町新野辺
- 別府町新野辺北町
- 別府町別府
- 米田町平津
- 西神吉町鼎
- 山手
- 平岡町一色東
- 野口町坂元北


