新築一戸建て 【ハウスジャパン】スマイルガーデン碧南市笹山町1 No.8
この物件は未完成のため、掲載写真(外観、内観、設備等)には、施工例が含まれている場合があります。物件詳細については、掲載の不動産会社宛にお問合せください。
【家具付&太陽光標準】駐車4台/WIC×2/遊び心のあるシンプルモダンな家
【建物ポイント】
・造作カウンター付きの書斎スペース(主寝室)
・シンプルモダンテイストのインテリア
【環境ポイント】
・閑静な住宅地
・市街地が近い
・保育園、コンビニ、スーパー、病院が徒歩圏内
・約45坪の敷地
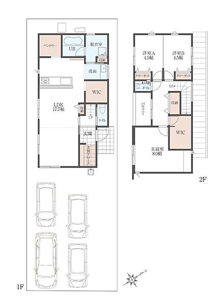
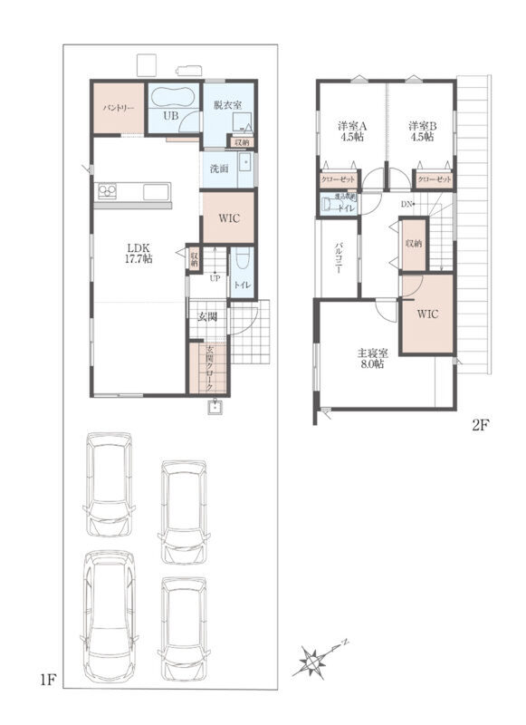
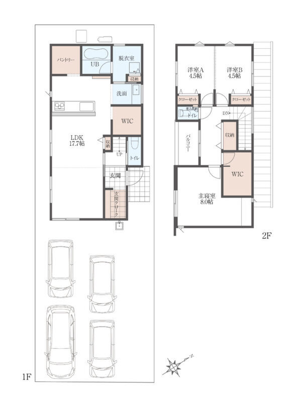
【間取り設計】
・使い勝手抜群!パントリー付きのキッチン
・玄関クローク&各階のWIC
・2部屋続きの洋室
・駐車4台可能
0037-618-85731
無料
魅力1 遊び心のあるシンプルモダンな家
ダーク系の木目がベースの、落ち着きのあるシンプルモダンな家。
遊び心のある色や柄を添えて、トレンド感を演出しました。
日常が少し特別になる、感性豊かな住まいです。
魅力2 1Fファミクロがある収納特化の家
施工実績1000棟の経験をもとに、お客様の「欲しかった」住宅設備を標準装備。注文住宅クオリティの建売住宅をご提案します。
魅力3 ライフスタイルに合わせた家
0037-618-85731
無料
間取り図
0037-618-85731
無料
内観・室内
-
エコカラットが施工されたLDK
LDK の壁にはエコカラットが施工されており、高級感のある空間...
-
パントリーで収納たっぷり。家事室としてのアレンジも可能!
キッチンの後ろには約2帖のパントリーを設置。食料品や生活用品の...
-
1F ファミクロで ワンフロア完結の収納
LDK には階段下を有効活用したWIC を用意。ワンフロアで収...
-
2.5 帖( 収納含む) の広々脱衣室
脱衣室には収納付きで、家族のパジャマやタオル、洗剤のストックな...
-
ゆとりのある8帖主寝室
8 帖の広々とした主寝室は、ダブルベッドを配置しても十分に余裕...
-
2階の洋室
下地入りで、間仕切り可能な洋室。間を区切って個室にしたり、広い...
間取り・内観のこだわりポイント
- LDK15帖以上
- 南面バルコニー
- 全室フローリング
0037-618-85731
無料
設備・仕様
設備・仕様のこだわりポイント
- キッチン
-
- IHコンロ
- 食器洗い乾燥機
- 浄水器・活水器
- 収納
-
- 床下収納
- ウォークインクローゼット
- シューズクローク
- パントリー
- その他設備
-
- オール電化
- マイホーム発電システム
- シャワー付洗面化粧台
- 温水洗浄便座
- 浴室乾燥機
- 浴室暖房
- トイレ2ヶ所以上
- タンクレストイレ
- 節水型トイレ
- 複層ガラス採用(二重サッシ・防犯サッシ等)
- スマートキー
- 省エネ給湯器
- TVモニタ付インターホン
- 宅配ボックス
- EV充電設備
- マイホーム発電システム
- 太陽光発電システム+HEMS「COCOROPOWER」 ※本物件は太陽光無料設置サービス対象(PPA)です。※サービス期間は15年です。※買取への変更も可能です。
0037-618-85731
無料
外観・分譲地
外観・分譲地のこだわりポイント
- 駐車場あり
- 低層住宅地
- 総戸数・総区画数が10以上〜30未満
0037-618-85731
無料
周辺環境・地図
周辺情報
※半径4kmを超えると、周辺情報のアイコンは表示されません。
- ※不動産会社が入力した情報を基に物件の位置を表示しています。
- ※詳しくは不動産会社までお問合せください。
- ※地図上に表示される各種アイコンなどの情報は、おおよその所在地を表すものであり、物件・施設などの地点を保証するものではありません。
- ※地図の表示領域が広域になると周辺のお店・施設は表示できなくなります。
- ※地図、航空写真情報および地形ならびに周辺のお店・施設は、必ずしも現況を表すものではありません。
- ※物件から周辺のお店・施設までの距離は、利用が想定される道路を通行した場合の距離です。なお、必ずしも最短距離を保証するものではありません。
-
【車・交通】
名鉄三河線「北新川」駅 (約1,800m 徒歩約23分)
自転車で自宅から駅まで約9分。普通電車が1時間に約4本停車し、...
-
【学校】
荒子保育園 (約240m 徒歩約3分)
0歳児~5歳児対象。7:30~19:00 の間で保護者の勤務都...
-
【学校】
碧南市立鷲塚小学校 (約1,600m 徒歩約20分)
碧南市旭町にある小学校。校訓は「強く正しく明るくすなおに 進ん...
-
【学校】
碧南市立東中学校 (約1,600m 徒歩約20分)
碧南市天神町にある中学校。日々の教育実践を通して社会を生き抜く...
-
【レジャー】
荒子児童遊園 (約250m 徒歩約4分)
子どもたちの身近な遊び場として、広場、ブランコ、すべり台などの...
-
【買い物】
バロー碧南城山店 (約1,000m 徒歩約13分)
【営業時間】10:00~21:00(日曜日は9:30に開店)※...
-
案内図
周辺環境のこだわりポイント
- 公園 400m以内
- 保育園・幼稚園 400m以内
0037-618-85731
無料
物件概要
| 所在地 | 愛知県碧南市笹山町1丁目31番12 | ||
|---|---|---|---|
| 交通 |
名鉄三河線「北新川」駅 徒歩23分 |
||
| 販売価格 | 3,590万円 | 最多価格帯 | - |
| 建物面積 | 100.19m2 | 土地面積 | 152.00m2 |
| 間取り | 3LDK+4S(玄関クローク/パントリー/WIC×2) | 建物構造 | 木造2階建 |
| 販売スケジュール | 販売中 | ||
| 販売戸数 / 総戸数 | 1戸 / 11戸 | ||
| 完成予定日 | 2026年7月 | 引き渡し可能年月 | 相談 |
| 駐車場 | 4台 | 道路の幅員 | 南東側公道幅員 約4.00m |
| 用途地域 | 第一種低層住居専用地域 | 都市計画 | - |
| 地目 | 田(宅地) | 国土法 | - |
| 土地の権利 | 所有権 | 借地権の種類・期間 | - |
| 主たる設備の概要 | 公営水道、公共下水、オール電化、中部電力 | 建築確認番号 | 第愛建2026建築確認00394号 |
| 施工会社 | 株式会社ハウスジャパン | 機構融資 | - |
| 売主 | 取引態様 | 株式会社ハウスジャパン(売主) | |
| イベント情報 |
|
||
| 備考 | - | ||
| 情報更新日 | 2026/05/22 | 次回更新予定日 | 2026/06/05 |
| 取引条件有効期限 | 2026/08/31 | ||
住宅性能・販売概要・権利のこだわりポイント
- 所有権
- 瑕疵担保付き
- 仲介手数料不要
- 売主・代理
- 耐震・制震・免震構造
- 長期優良住宅
- 耐震・制震・免震構造
- 国土交通大臣認定【Kダンパー】
0037-618-85731
無料
現地・イベント情報
【現地見学会】来場でギフトカード最大10000円分プレゼント
参加特典
ギフトカード最大10000円分プレゼント!
1回目のご来場 ギフトカード 5000円分! + 2回目のご来場 さらに 5000円分プレゼント!
| 開催日時 |
2026年05月01日〜2026年05月31日
火・水を除いて開催いたします。 |
|---|---|
| 開催場所 | 愛知県碧南市笹山町1丁目31番12 |
| 交通 |
名鉄三河線「北新川」駅 徒歩23分 |
碧南市笹山町の新築分譲住宅「スマイルガーデン碧南市笹山町1 No.8」見学販売会開催中! 快適な暮らしを叶える工夫が詰まったこの住まいを、ぜひ現地でご体感ください。 見学をご希望の方は、『見学予約』よりお気軽にご予約ください。
取扱い不動産会社
株式会社ハウスジャパンの会社情報
お電話でのお問合せは「LIFULL HOME'S(ライフルホームズ)を見て」とお伝えください
株式会社ハウスジャパン
0037-618-85731
無料
- ※携帯電話はご利用いただけます
- ※光IP電話、及びIP電話をご利用のお客様はTEL:0120-92-0086へご連絡ください
- ※携帯電話からお問合せいただいた方には、ショートメッセージ(SMS)またはLINE通知メッセージによるお問合せ内容に関する通知をお届けする場合があり、お客様の電話番号は株式会社LIFULLで一定期間保管されます
- ※株式会社LIFULLの個人情報の取扱い方針に同意のうえ、お電話ください
| 会社名 |
株式会社ハウスジャパン |
|---|---|
| 免許番号 | 愛知県知事 (11) 第 12458 号 |
| 所在地 | 愛知県高浜市新明町7丁目13番地38 (Tポート南) |
| 所属団体 |
(公社)愛知県宅地建物取引業協会 |
この物件にお問合せする
実際に物件・周辺環境を見て検討したい!
近隣建物や接道の状況など資料で分からない部分も一目瞭然。 まずはWEBで事前予約、スムーズに見学しましょう
ご予約無しに直接ご来場された場合、担当者不在であったり、
他のお客様のご案内の都合上、お待たせしてしまうことがございます。
不動産会社に電話で相談したい!
株式会社ハウスジャパン
0037-618-85731
無料
電話でのお問合せは「LIFULL HOME'S(ライフルホームズ)を見て」とお伝えください
- ※携帯電話はご利用いただけます
- ※光IP電話、及びIP電話をご利用のお客様はTEL:0120-92-0086へご連絡ください
- ※携帯電話からお問合せいただいた方には、ショートメッセージ(SMS)またはLINE通知メッセージによるお問合せ内容に関する通知をお届けする場合があり、お客様の電話番号は株式会社LIFULLで一定期間保管されます
- ※株式会社LIFULLの個人情報の取扱い方針に同意のうえ、お電話ください
LIFULL HOME'Sは物件鮮度No.1を目指していきます 物件情報に誤りがある場合はコチラからご連絡ください
- 【物件番号】
- 1700898-0000081
- ※完成後1年未満で未入居の物件を「新築」と表示しております。
- ※完成予想図やCG合成画像は、門塀・植栽・庭・外観等、実際とは多少異なる場合があります。
物件を再検索する
愛知県の人気エリアから新築一戸建てを探す









