新築一戸建て 【ハウスジャパン】コミュニティタウン刈谷市小垣江町3 No.1
【見学できます】駅徒歩約13分/家具付き/太陽光パネル設置済/駅徒歩約13分/駐車3台/各所収納充実
【建物ポイント】
・使い勝手抜群!収納棚付きの造作カウンター
・ナチュラルモダンテイストのインテリア
【環境ポイント】
・閑静な住宅地
・保育園が徒歩約7分
・コンビニ、公園も徒歩圏内
・小学校 徒歩約11分
0037-618-68622
無料
魅力1 【L字型LDK×高天井】暮らしを慈しむナチュラル× モダンな家
ナチュラルなインテリアにモダンテイストを取り入れた、ミックススタイルの家。
LDK は高天井いっぱいに広がるヘリンボーン柄が見どころです。
開放的な空間で、ご家族との時間を楽しんでみませんか。
魅力2 【1.5坪の広々洗面室×スマート収納】家事時間を短縮し暮らしを整える工夫
毎日の家事負担を劇的に軽減する、計算し尽くされた機能美あふれる住まいです。
1.5坪のゆとりある洗面室には便利な物干しスペースを完備。洗濯物を「洗う・干す」がその場で完結するため、移動の手間が省けて家事効率がグンとアップします。
さらに約6人分の食器が洗える深型食洗機やタッチレス水栓、電気錠、太陽光発電システムも標準装備。2階にはライフスタイルの変化に合わせて柔軟に使える洋室も備え、家族の成長に寄り添い続ける設計です。
魅力3 【駅徒歩13分×駐車場3台可】保育園・小学校も徒歩圏内の落ち着いた立地
名鉄三河線「小垣江」駅まで徒歩約13分(約1,000m)と、知立や刈谷方面へのアクセスも快適な立地です。
敷地には並列で最大3台分のカースペースを確保し、玄関前は美しい土間コンクリート仕様。
さらに周辺は落ち着いた住宅街でありながら、おがきえ保育園まで徒歩約7分(約550m)、小垣江小学校まで徒歩約11分(約850m)とお子様の通園・通学も非常に安心の距離です。
毎日の利便性とのびのびとした住環境をどちらも叶える理想のロケーションです。
0037-618-68622
無料
LIFULL HOME'S ムービー
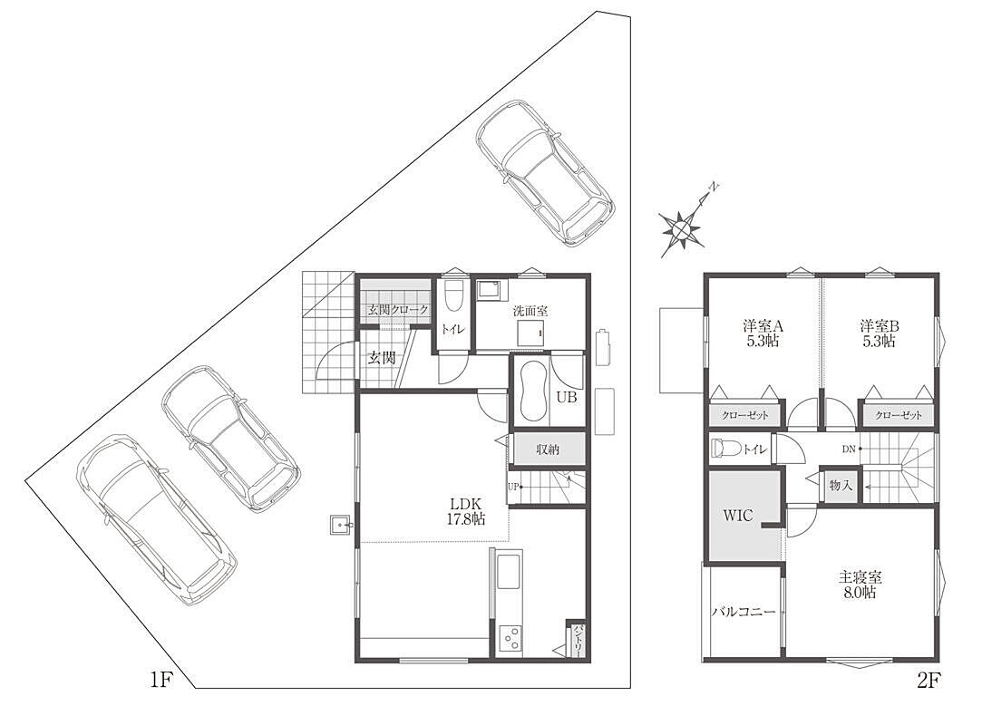
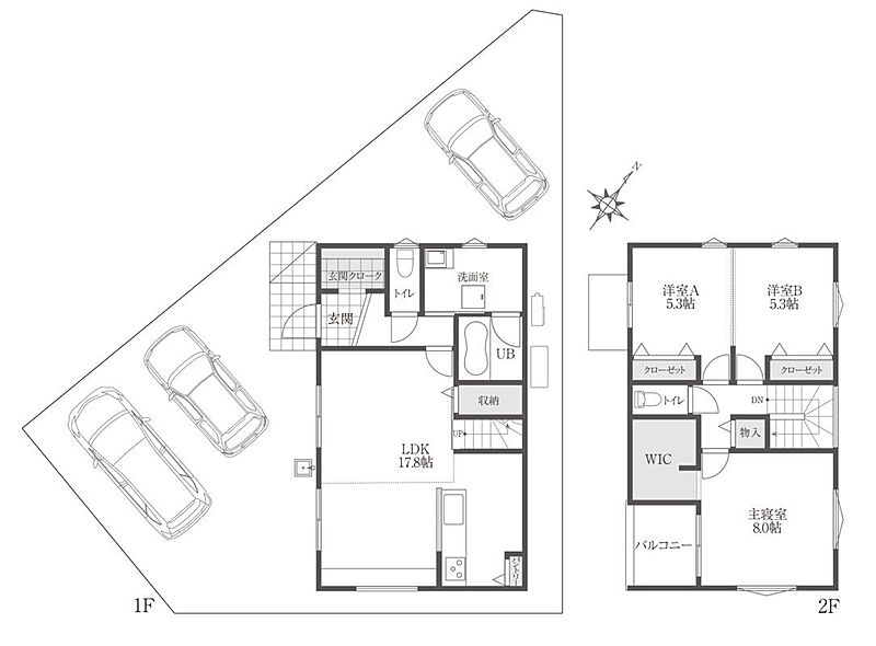
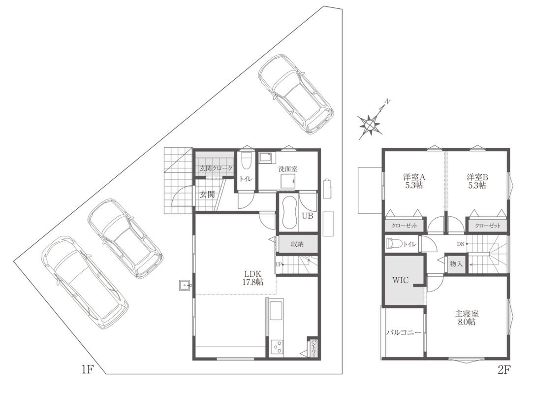
間取り図
0037-618-68622
無料
内観・室内
間取り・内観のこだわりポイント
- LDK15帖以上
- 全室2面採光
- 全室フローリング
0037-618-68622
無料
設備・仕様
設備・仕様のこだわりポイント
- キッチン
-
- IHコンロ
- 食器洗い乾燥機
- 浄水器・活水器
- 収納
-
- 床下収納
- ウォークインクローゼット
- シューズクローク
- パントリー
- その他設備
-
- マイホーム発電システム
- 温水洗浄便座
- 浴室乾燥機
- 浴室暖房
- トイレ2ヶ所以上
- タンクレストイレ
- 節水型トイレ
- 複層ガラス採用(二重サッシ・防犯サッシ等)
- スマートキー
- TVモニタ付インターホン
- 宅配ボックス
- EV充電設備
省エネ性能
- エネルギー消費性能:★★★★★★(削減率50%達成)
- 断熱性能:5段階/7段階 ※「省エネ性能ラベル」は特定の住戸の性能を示し、全ての住戸の性能を示していない場合があります。
0037-618-68622
無料
外観・分譲地
外観・分譲地のこだわりポイント
- 駐車場あり
0037-618-68622
無料
周辺環境・地図
周辺情報
※半径4kmを超えると、周辺情報のアイコンは表示されません。
- ※不動産会社が入力した情報を基に物件の位置を表示しています。
- ※詳しくは不動産会社までお問合せください。
- ※地図上に表示される各種アイコンなどの情報は、おおよその所在地を表すものであり、物件・施設などの地点を保証するものではありません。
- ※地図の表示領域が広域になると周辺のお店・施設は表示できなくなります。
- ※地図、航空写真情報および地形ならびに周辺のお店・施設は、必ずしも現況を表すものではありません。
- ※物件から周辺のお店・施設までの距離は、利用が想定される道路を通行した場合の距離です。なお、必ずしも最短距離を保証するものではありません。
-
【車・交通】
名鉄三河線「小垣江」駅 (約1,000m 徒歩約13分)
普通電車が1時間に約4本停車。知立方面は5時台~23 時台まで...
-
【学校】
おがきえ保育園 (約550m 徒歩約7分)
入園は0歳児から対象です。7:00~20:00の間で 家庭の状...
-
【学校】
刈谷市立小垣江小学校 (約850m 徒歩約11分)
小垣江町にある公立小学校。人間性豊かで、たくましく、積極的に活...
-
【学校】
刈谷市立依佐美中学校 (約2,300m 自転車約12分)
自尊感情を育み、高める学校をめざします。整備された通学路で毎日...
-
【買い物】
ゲンキー小垣江下広店 (約850m 徒歩約11分)
【営業時間】9:00~21:00 食品や医薬品など、ちょっとし...
-
【買い物】
JA あいち中央 でんまぁと刈谷南店 (約1,600m 自転車約8分)
【営業時間】9:00~18:00 地元の採れたての野菜・果物が...
-
案内図
-
交通図
0037-618-68622
無料
物件概要
| 所在地 | 愛知県刈谷市小垣江町半崎18番4、18番8 | ||
|---|---|---|---|
| 交通 |
名鉄三河線「小垣江」駅 徒歩13分 |
||
| 販売価格 | 4,290万円 | 最多価格帯 | - |
| 建物面積 | 99.15m2 | 土地面積 | 185.54m2 |
| 間取り | 3LDK+2S(玄関クローク/WIC) | 建物構造 | 木造軸組工法2階建 |
| 販売スケジュール | 販売中 | ||
| 販売戸数 / 総戸数 | 1戸 / 5戸 | ||
| 完成予定日 | 2025年11月 | 引き渡し可能年月 | 即引渡可 |
| 駐車場 | 3台 | 道路の幅員 | 北側公道幅員 約3.23m |
| 用途地域 | 第一種住居地域 | 都市計画 | - |
| 地目 | 宅地 | 国土法 | - |
| 土地の権利 | 所有権 | 借地権の種類・期間 | - |
| 主たる設備の概要 | 公営水道、オール電化、中部電力、浄化槽 | 建築確認番号 | 第愛建2025建築確認01025号 |
| 施工会社 | - | 機構融資 | - |
| 売主 | 取引態様 | 株式会社ハウスジャパン(売主) | |
| イベント情報 |
|
||
| 備考 | ※家電・小物はイメージです。 | ||
| 情報更新日 | 2026/05/22 | 次回更新予定日 | 2026/06/05 |
| 取引条件有効期限 | 2026/08/31 | ||
住宅性能・販売概要・権利のこだわりポイント
- 所有権
- 瑕疵担保付き
- 仲介手数料不要
- 売主・代理
- 耐震・制震・免震構造
- 長期優良住宅
- 即入居可
0037-618-68622
無料
現地・イベント情報
【現地見学会】来場でギフトカード最大10000円分プレゼント
参加特典
ギフトカード最大10000円分プレゼント
1回目のご来場 ギフトカード 5000円分! + 2回目のご来場 さらに 5000円分プレゼント!
| 開催日時 |
2026年05月01日〜2026年05月31日
火・水を除いて開催いたします。 |
|---|---|
| 開催場所 | 愛知県刈谷市小垣江町半崎18番15、16 |
| 交通 |
名鉄三河線「小垣江」駅 徒歩13分 |
刈谷市小垣江町の新築分譲住宅「コミュニティタウン刈谷市小垣江町3 No.1」見学販売会開催中! 快適な暮らしを叶える工夫が詰まったこの住まいを、ぜひ現地でご体感ください。 見学をご希望の方は、『見学予約』よりお気軽にご予約ください。
取扱い不動産会社
株式会社ハウスジャパンの会社情報
お電話でのお問合せは「LIFULL HOME'S(ライフルホームズ)を見て」とお伝えください
株式会社ハウスジャパン
0037-618-68622
無料
- ※携帯電話はご利用いただけます
- ※光IP電話、及びIP電話をご利用のお客様はTEL:0120-92-0086へご連絡ください
- ※携帯電話からお問合せいただいた方には、ショートメッセージ(SMS)またはLINE通知メッセージによるお問合せ内容に関する通知をお届けする場合があり、お客様の電話番号は株式会社LIFULLで一定期間保管されます
- ※株式会社LIFULLの個人情報の取扱い方針に同意のうえ、お電話ください
| 会社名 |
株式会社ハウスジャパン |
|---|---|
| 免許番号 | 愛知県知事 (11) 第 12458 号 |
| 所在地 | 愛知県高浜市新明町7丁目13番地38 (Tポート南) |
| 所属団体 |
(公社)愛知県宅地建物取引業協会 |
この物件にお問合せする
実際に物件・周辺環境を見て検討したい!
近隣建物や接道の状況など資料で分からない部分も一目瞭然。 まずはWEBで事前予約、スムーズに見学しましょう
ご予約無しに直接ご来場された場合、担当者不在であったり、
他のお客様のご案内の都合上、お待たせしてしまうことがございます。
不動産会社に電話で相談したい!
株式会社ハウスジャパン
0037-618-68622
無料
電話でのお問合せは「LIFULL HOME'S(ライフルホームズ)を見て」とお伝えください
- ※携帯電話はご利用いただけます
- ※光IP電話、及びIP電話をご利用のお客様はTEL:0120-92-0086へご連絡ください
- ※携帯電話からお問合せいただいた方には、ショートメッセージ(SMS)またはLINE通知メッセージによるお問合せ内容に関する通知をお届けする場合があり、お客様の電話番号は株式会社LIFULLで一定期間保管されます
- ※株式会社LIFULLの個人情報の取扱い方針に同意のうえ、お電話ください
LIFULL HOME'Sは物件鮮度No.1を目指していきます 物件情報に誤りがある場合はコチラからご連絡ください
- 【物件番号】
- 1700898-0000065
- ※完成後1年未満で未入居の物件を「新築」と表示しております。
- ※完成予想図やCG合成画像は、門塀・植栽・庭・外観等、実際とは多少異なる場合があります。
物件を再検索する
愛知県の人気エリアから新築一戸建てを探す















