新築一戸建て 【ハウスジャパン】スマイルガーデン高浜市本郷町III B-3棟
【自分好みにカスタム可能】家具付き/太陽光パネル標準装備/駐車2~3台可
【建物ポイント】
・淡く柔らかい色味のグレイッシュモダンインテリア
【環境ポイント】
・災害時も安心な高台の立地
・高取小徒歩約4分
・たかとりこども園徒歩約7分
・周辺にはスーパー、薬局、カフェ、病院あり
・入居者以外の往来がない行き止まりの分譲地
【間取り設計】
・回遊型のキッチンで家事ラク動線
・自分の時間も没頭できるおこもり書斎
・家族共用WIC でたっぷり収納
・暮らしに合わせて変化 間仕切り可能な2部屋続きの洋室
0037-618-80574
無料
魅力1 2つのタイミングでアレンジ可能!
■着工45日前まで
(1)~(11)までカスタム可能
まるで注文住宅のようにアレンジ可能!
自分好みのカラーコーディネートを楽しむことができます。
■上棟日まで
(10)~(11)をカスタム可能
仕上げにワンポイント追加してプチカスタム!
※下のアレンジできる内容とあわせてご確認ください。
外壁(1)
屋根(2)
玄関ドア(3)
床材(4)
室内ドア(5)
キッチン&食器棚(6)
ユニットバス(7)
洗面化粧台(8)
クロス(お好きな場所3か所)(9)
クロス(洋室3か所)(10)
外構デザイン(11)
魅力2 【B-3棟】柔和な印象のグレイッシュモダンな家
淡く柔らかい色味でまとめられた、グレイッシュモダンな家。
スタイリッシュな家具を配置し、空間を引き締めました。
ドライフラワーやスタンド照明でより自分好みの空間に仕上げてみませんか。
魅力3 暮らしに嬉しい標準装備
施工実績1000棟の経験をもとに、お客様の「欲しかった」住宅設備を標準装備。注文住宅クオリティの建売住宅をご提案します。
0037-618-80574
無料
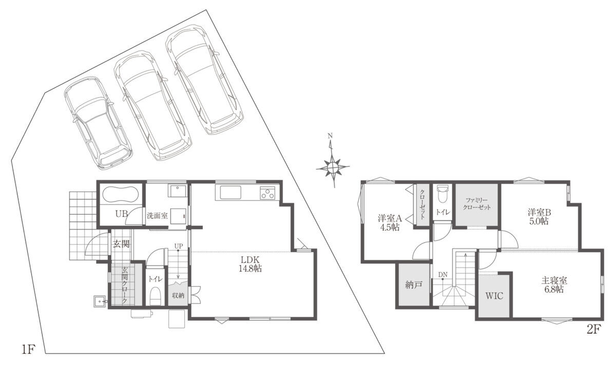
間取り図
0037-618-80574
無料
内観・室内
間取り・内観のこだわりポイント
- LDK15帖以上
- 全室フローリング
0037-618-80574
無料
設備・仕様
設備・仕様のこだわりポイント
- キッチン
-
- IHコンロ
- 食器洗い乾燥機
- 浄水器・活水器
- 収納
-
- 床下収納
- ウォークインクローゼット
- シューズクローク
- パントリー
- その他設備
-
- オール電化
- マイホーム発電システム
- シャワー付洗面化粧台
- 温水洗浄便座
- 浴室乾燥機
- 浴室暖房
- トイレ2ヶ所以上
- タンクレストイレ
- 節水型トイレ
- 複層ガラス採用(二重サッシ・防犯サッシ等)
- スマートキー
- TVモニタ付インターホン
- 宅配ボックス
- EV充電設備
- マイホーム発電システム
- 太陽光発電システム+HEMS「COCOROPOWER」 ※本物件は太陽光無料設置サービス対象(PPA)です。※サービス期間は15年です。※買取への変更も可能です。
0037-618-80574
無料
外観・分譲地
外観・分譲地のこだわりポイント
- 駐車場あり
- 前面道路6m以上
- 平坦地
- 高台
0037-618-80574
無料
周辺環境・地図
周辺情報
※半径4kmを超えると、周辺情報のアイコンは表示されません。
- ※不動産会社が入力した情報を基に物件の位置を表示しています。
- ※詳しくは不動産会社までお問合せください。
- ※地図上に表示される各種アイコンなどの情報は、おおよその所在地を表すものであり、物件・施設などの地点を保証するものではありません。
- ※地図の表示領域が広域になると周辺のお店・施設は表示できなくなります。
- ※地図、航空写真情報および地形ならびに周辺のお店・施設は、必ずしも現況を表すものではありません。
- ※物件から周辺のお店・施設までの距離は、利用が想定される道路を通行した場合の距離です。なお、必ずしも最短距離を保証するものではありません。
周辺環境のこだわりポイント
- 小学校 800m以内
0037-618-80574
無料
物件概要
| 所在地 | 愛知県高浜市本郷町5丁目3番54、84、85、106 | ||
|---|---|---|---|
| 交通 |
名鉄三河線「三河高浜」駅 徒歩23分 |
||
| 販売価格 | 2,999万円 | 最多価格帯 | - |
| 建物面積 | 97.29m2 | 土地面積 | 149.30m2 |
| 間取り | 3LDK+2S(WIC/サービスルーム) | 建物構造 | 木造軸組工法2階建 |
| 販売スケジュール | 販売中 | ||
| 販売戸数 / 総戸数 | 1戸 / 9戸 | ||
| 完成予定日 | 未定 | 引き渡し可能年月 | 相談 |
| 駐車場 | 2台 | 道路の幅員 | 西側公道幅員 約6.00m |
| 用途地域 | 第一種住居地域 | 都市計画 | 市街化区域 |
| 地目 | 宅地 | 国土法 | 届出不要 |
| 土地の権利 | 所有権 | 借地権の種類・期間 | - |
| 主たる設備の概要 | 公営水道、個別浄化槽、オール電化、中部電力 | 建築確認番号 | 第愛建2025建築確認00891号 |
| 施工会社 | - | 機構融資 | - |
| 売主 | 取引態様 | 株式会社ハウスジャパン(売主) | |
| イベント情報 |
|
||
| 備考 | - | ||
| 情報更新日 | 2026/05/22 | 次回更新予定日 | 2026/06/05 |
| 取引条件有効期限 | 2026/08/31 | ||
住宅性能・販売概要・権利のこだわりポイント
- 所有権
- 瑕疵担保付き
- 仲介手数料不要
- 売主・代理
- 耐震・制震・免震構造
- 長期優良住宅
- 耐震・制震・免震構造
- 国土交通大臣認定【Kダンパー】
0037-618-80574
無料
現地・イベント情報
【CUSTOM建売相談会】来場でギフトカード最大10000円分プレゼント
参加特典
ギフトカード最大10000円分プレゼント
1回目のご来場 ギフトカード 5000円分! + 2回目のご来場 さらに 5000円分プレゼント!
| 開催日時 |
2026年05月01日〜2026年05月31日
火・水を除いて開催いたします。 |
|---|---|
| 開催場所 | 愛知県高浜市本郷町5丁目3番54、84、85、106 |
| 交通 |
名鉄三河線「三河高浜」駅 徒歩23分 |
2つのタイミングでアレンジ可能! ■着工45日前まで まるで注文住宅のようにアレンジ可能! 自分好みのカラーコーディネートを楽しむことができます。 ■上棟日まで クロス(洋室3か所)、外構デザインをカスタム可能 仕上げにワンポイント追加してプチカスタム! 高浜市本郷町の新築分譲住宅「スマイルガーデン高浜市本郷町III B-1棟、B-3棟」CUSTOM建売相談会開催中! 快適な暮らしを叶える住まいを、ぜひご体感ください。 来場をご希望の方は、『見学予約』よりお気軽にご予約ください。
取扱い不動産会社
株式会社ハウスジャパンの会社情報
お電話でのお問合せは「LIFULL HOME'S(ライフルホームズ)を見て」とお伝えください
株式会社ハウスジャパン
0037-618-80574
無料
- ※携帯電話はご利用いただけます
- ※光IP電話、及びIP電話をご利用のお客様はTEL:0120-92-0086へご連絡ください
- ※携帯電話からお問合せいただいた方には、ショートメッセージ(SMS)またはLINE通知メッセージによるお問合せ内容に関する通知をお届けする場合があり、お客様の電話番号は株式会社LIFULLで一定期間保管されます
- ※株式会社LIFULLの個人情報の取扱い方針に同意のうえ、お電話ください
| 会社名 |
株式会社ハウスジャパン |
|---|---|
| 免許番号 | 愛知県知事 (11) 第 12458 号 |
| 所在地 | 愛知県高浜市新明町7丁目13番地38 (Tポート南) |
| 所属団体 |
(公社)愛知県宅地建物取引業協会 |
この物件にお問合せする
実際に物件・周辺環境を見て検討したい!
近隣建物や接道の状況など資料で分からない部分も一目瞭然。 まずはWEBで事前予約、スムーズに見学しましょう
ご予約無しに直接ご来場された場合、担当者不在であったり、
他のお客様のご案内の都合上、お待たせしてしまうことがございます。
不動産会社に電話で相談したい!
株式会社ハウスジャパン
0037-618-80574
無料
電話でのお問合せは「LIFULL HOME'S(ライフルホームズ)を見て」とお伝えください
- ※携帯電話はご利用いただけます
- ※光IP電話、及びIP電話をご利用のお客様はTEL:0120-92-0086へご連絡ください
- ※携帯電話からお問合せいただいた方には、ショートメッセージ(SMS)またはLINE通知メッセージによるお問合せ内容に関する通知をお届けする場合があり、お客様の電話番号は株式会社LIFULLで一定期間保管されます
- ※株式会社LIFULLの個人情報の取扱い方針に同意のうえ、お電話ください
LIFULL HOME'Sは物件鮮度No.1を目指していきます 物件情報に誤りがある場合はコチラからご連絡ください
- 【物件番号】
- 1700898-0000058
- ※完成後1年未満で未入居の物件を「新築」と表示しております。
- ※完成予想図やCG合成画像は、門塀・植栽・庭・外観等、実際とは多少異なる場合があります。
物件を再検索する
愛知県の人気エリアから新築一戸建てを探す














