一戸建て 【ハウスジャパン】コミュニティタウン碧南市源氏神明町1No.2
【家具付&太陽光標準】ホテルライクな高天井リビングの家/敷地43坪×並列駐車2台可!ルンバ基地など家事ラク工夫満載の4LDK
【建物ポイント】
・明るいインテリアでまとめた4LDKの空間
・毎日を特別なひと時にするホテルライクな家
【環境ポイント】
・市街地が近い環境
・カネスエ 碧南幸町店約550m(徒歩約7分)!買い物に便利
・約43坪以上!ゆとりのある敷地
・源氏神明公園約89m(徒歩約2分)!子育てがしやすい立地
0037-618-99207
無料
魅力1 毎日を特別なひと時にするホテルライクな家
ライトカラーを基調とした室内にダークカラーのアクセントを加えることで空間にメリハリをつけました。
ホテルのような上質なお部屋で、ゆったりと過ごしてみてはいかがでしょうか。
魅力2 暮らしに嬉しい標準装備
施工実績1000棟の経験をもとに、お客様の「欲しかった」住宅設備を標準装備。注文住宅クオリティの建売住宅をご提案します。
魅力3 ダークな折り下げ天井が印象的 ルンバ基地のある対面キッチン
腰壁付きの対面キッチンでリビングからはスッキリ見えるキッチン。
折り下げ天井で食事とくつろぎの空間を緩やか仕切っています。
リビングで過ごすご家族や
ダイニングで勉強するお子様の様子などを見守ることができます
0037-618-99207
無料
LIFULL HOME'S ムービー
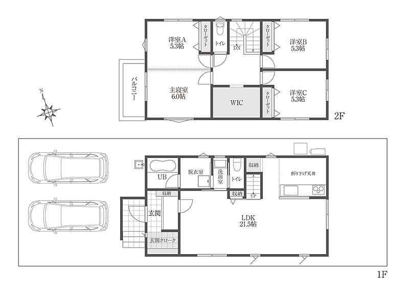
間取り図
0037-618-99207
無料
内観・室内
間取り・内観のこだわりポイント
- LDK15帖以上
- 4LDK以上
- 全室2面採光
- 全室フローリング
0037-618-99207
無料
設備・仕様
設備・仕様のこだわりポイント
- キッチン
-
- IHコンロ
- カウンターキッチン
- 食器洗い乾燥機
- 浄水器・活水器
- 収納
-
- 床下収納
- ウォークインクローゼット
- シューズクローク
- パントリー
- 全居室収納
- その他設備
-
- オール電化
- マイホーム発電システム
- シャワー付洗面化粧台
- 温水洗浄便座
- 浴室乾燥機
- 浴室暖房
- トイレ2ヶ所以上
- タンクレストイレ
- 節水型トイレ
- 複層ガラス採用(二重サッシ・防犯サッシ等)
- スマートキー
- 省エネ給湯器
- TVモニタ付インターホン
- 宅配ボックス
- EV充電設備
- マイホーム発電システム
- 太陽光発電システム「ソラトモ」
省エネ性能
- エネルギー消費性能:★★★★★★(削減率50%達成)
- 断熱性能:5段階/7段階 ※「省エネ性能ラベル」は特定の住戸の性能を示し、全ての住戸の性能を示していない場合があります。
0037-618-99207
無料
外観・分譲地
外観・分譲地のこだわりポイント
- 駐車場あり
- 整形地
- 平坦地
0037-618-99207
無料
周辺環境・地図
周辺情報
※半径4kmを超えると、周辺情報のアイコンは表示されません。
- ※不動産会社が入力した情報を基に物件の位置を表示しています。
- ※詳しくは不動産会社までお問合せください。
- ※地図上に表示される各種アイコンなどの情報は、おおよその所在地を表すものであり、物件・施設などの地点を保証するものではありません。
- ※地図の表示領域が広域になると周辺のお店・施設は表示できなくなります。
- ※地図、航空写真情報および地形ならびに周辺のお店・施設は、必ずしも現況を表すものではありません。
- ※物件から周辺のお店・施設までの距離は、利用が想定される道路を通行した場合の距離です。なお、必ずしも最短距離を保証するものではありません。
-
【車・交通】
名鉄三河線「碧南中央」駅 (約1,300m 徒歩約17分)
普通電車が1時間に約4本停車。知立方面は5時台~23時台まで運...
-
【学校】
日進保育園 (約850m 徒歩約11分)
2歳児から対象。7:30~18:00 の間で家庭の状況に合わせ...
-
【学校】
碧南市立中央小学校 (約950m 徒歩約12分)
異学年交流等で社会性を育成。友達と一緒に考えて解決していく力の...
-
【学校】
碧南市立中央中学校 (約1,500m 徒歩約19分)
校訓は『敬と愛』。生き抜く力の基礎を育てます。整備された明るい...
-
【買い物】
カネスエ碧南幸町店 (約550m 徒歩約7分)
自宅から徒歩でアクセスできるスーパーです。ニトリとスギ薬局を併...
-
【その他】
源氏神明公園 (約89m 徒歩約2分)
遊具やトイレのある、遊びやすい公園です。すぐ近くには、テイクア...
-
案内図
-
交通図
周辺環境のこだわりポイント
- スーパー 800m以内
- 公園 400m以内
0037-618-99207
無料
物件概要
| 所在地 | 愛知県碧南市源氏神明町134番2、3 | ||
|---|---|---|---|
| 交通 |
名鉄三河線「碧南中央」駅 徒歩17分 |
||
| 販売価格 | 3,690 万円 | 最多価格帯 | - |
| 建物面積 | 112.40m2 | 土地面積 | 143.48m2 |
| 間取り | 4LDK+2S | 建物構造 | 木造2階建 |
| 販売スケジュール | 販売中 | ||
| 販売戸数 / 総戸数 | 1戸 / 5戸 | ||
| 完成予定日 | 完成済 | 引き渡し可能年月 | 即引渡可 |
| 駐車場 | 2台 | 道路の幅員 | 西側公道幅員 約5.76m |
| 用途地域 | 第一種住居地域 | 都市計画 | 市街化区域 |
| 地目 | 畑(宅地) | 国土法 | 日本 |
| 土地の権利 | 所有権 | 借地権の種類・期間 | - |
| 主たる設備の概要 | 公営水道、公共下水、オール電化、中部電力 | 建築確認番号 | 第愛建2024建築確認01502号 |
| 施工会社 | 株式会社ハウスジャパン | 機構融資 | - |
| 売主 | 取引態様 | 株式会社ハウスジャパン(売主) | |
| キャンペーン・イベント情報 |
|
||
| 備考 | ※家電・小物はイメージです。 | ||
| 情報更新日 | 2026/05/22 | 次回更新予定日 | 2026/06/05 |
| 取引条件有効期限 | 2026/08/31 | ||
住宅性能・販売概要・権利のこだわりポイント
- 所有権
- 瑕疵担保付き
- 仲介手数料不要
- 売主・代理
- 耐震・制震・免震構造
- 長期優良住宅
- 即入居可
- 耐震・制震・免震構造
- 国土交通大臣認定【Kダンパー】
0037-618-99207
無料
キャンペーン・イベント情報
【現地見学会】来場でギフトカード最大10000円分プレゼント
参加特典
ギフトカード最大10000円分プレゼント!
1回目のご来場 ギフトカード 5000円分! + 2回目のご来場 さらに 5000円分プレゼント!
| 開催日時 |
2026年05月01日〜2026年05月31日
火・水を除いて開催いたします。 |
|---|---|
| 開催場所 | 愛知県碧南市源氏神明町134番2、3 |
| 交通 |
名鉄三河線「碧南中央」駅 徒歩17分 |
碧南市源氏神明町の新築分譲住宅「コミュニティタウン碧南市源氏神明町1 No.2」見学販売会開催中! 快適な暮らしを叶える工夫が詰まったこの住まいを、ぜひ現地でご体感ください。 見学をご希望の方は、『見学予約』よりお気軽にご予約ください。
取扱い不動産会社
スタッフからのコメント
- 暮らしやすい環境
- スーパー、コンビニが徒歩圏内の分譲地。
源氏神明公園までは徒歩2分で、小さなお子様がいるご家庭におすすめのポイントです。
約43坪のゆとりのある敷地で新生活を始めてみませんか。
古賀翔太
株式会社ハウスジャパンの会社情報
お電話でのお問合せは「LIFULL HOME'S(ライフルホームズ)を見て」とお伝えください
株式会社ハウスジャパン
0037-618-99207
無料
- ※携帯電話はご利用いただけます
- ※光IP電話、及びIP電話をご利用のお客様はTEL:0120-92-0086へご連絡ください
- ※携帯電話からお問合せいただいた方には、ショートメッセージ(SMS)またはLINE通知メッセージによるお問合せ内容に関する通知をお届けする場合があり、お客様の電話番号は株式会社LIFULLで一定期間保管されます
- ※株式会社LIFULLの個人情報の取扱い方針に同意のうえ、お電話ください
| 会社名 |
株式会社ハウスジャパン |
|---|---|
| 免許番号 | 愛知県知事 (11) 第 12458 号 |
| 所在地 | 愛知県高浜市新明町7丁目13番地38 (Tポート南) |
| 所属団体 |
(公社)愛知県宅地建物取引業協会 |
この物件にお問合せする
実際に物件・周辺環境を見て検討したい!
近隣建物や接道の状況など資料で分からない部分も一目瞭然。 まずはWEBで事前予約、スムーズに見学しましょう
ご予約無しに直接ご来場された場合、担当者不在であったり、
他のお客様のご案内の都合上、お待たせしてしまうことがございます。
不動産会社に電話で相談したい!
株式会社ハウスジャパン
0037-618-99207
無料
電話でのお問合せは「LIFULL HOME'S(ライフルホームズ)を見て」とお伝えください
- ※携帯電話はご利用いただけます
- ※光IP電話、及びIP電話をご利用のお客様はTEL:0120-92-0086へご連絡ください
- ※携帯電話からお問合せいただいた方には、ショートメッセージ(SMS)またはLINE通知メッセージによるお問合せ内容に関する通知をお届けする場合があり、お客様の電話番号は株式会社LIFULLで一定期間保管されます
- ※株式会社LIFULLの個人情報の取扱い方針に同意のうえ、お電話ください
LIFULL HOME'Sは物件鮮度No.1を目指していきます 物件情報に誤りがある場合はコチラからご連絡ください
- 【物件番号】
- 1700898-0000044
- ※完成後1年未満で未入居の物件を「新築」と表示しております。
- ※完成予想図やCG合成画像は、門塀・植栽・庭・外観等、実際とは多少異なる場合があります。
物件を再検索する
愛知県の人気エリアから新築一戸建てを探す














