新築一戸建て NJライトタウン 沼目
全区画カースペース2~3台!
住宅ローン控除(ZEH水準省エネ住宅)
フラット35S 金利Aプラン(耐震等級3)
0037-618-84618
無料
魅力1 収納にこだわる物件
各棟様々な収納力のあるクローゼットを完備!!シューズボックスの他に玄関周りに欲しかった容量の大きい収納もございます!
魅力2 ゆとりのある住宅
各棟ゆとりのある空間になっております。洗面所空間や、和室とリビングを繋げて広い空間造り、2階廊下のフリースペースなど様々な工夫をしております。
魅力3 No.3 家具イメージ
0037-618-84618
無料
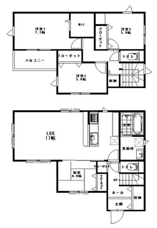
間取り図
0037-618-84618
無料
内観・室内
間取り・内観のこだわりポイント
- LDK15帖以上
- 4LDK以上
- 和室
- 南面バルコニー
- 全室2面採光
- 全室フローリング
0037-618-84618
無料
設備・仕様
設備・仕様のこだわりポイント
- キッチン
-
- ガスコンロ
- 収納
-
- 全居室収納
- その他設備
-
- シャワー付洗面化粧台
- 温水洗浄便座
- トイレ2ヶ所以上
- 節水型トイレ
- TVモニタ付インターホン
省エネ性能
- エネルギー消費性能:★★★(削減率20%達成)
- 断熱性能:5段階/7段階 ※「省エネ性能ラベル」は特定の住戸の性能を示し、全ての住戸の性能を示していない場合があります。
0037-618-84618
無料
外観・分譲地
外観・分譲地のこだわりポイント
- 駐車場あり
- 低層住宅地
- 敷地延長・変形地
0037-618-84618
無料
周辺環境・地図
周辺情報
※半径4kmを超えると、周辺情報のアイコンは表示されません。
- ※不動産会社が入力した情報を基に物件の位置を表示しています。
- ※詳しくは不動産会社までお問合せください。
- ※地図上に表示される各種アイコンなどの情報は、おおよその所在地を表すものであり、物件・施設などの地点を保証するものではありません。
- ※地図の表示領域が広域になると周辺のお店・施設は表示できなくなります。
- ※地図、航空写真情報および地形ならびに周辺のお店・施設は、必ずしも現況を表すものではありません。
- ※物件から周辺のお店・施設までの距離は、利用が想定される道路を通行した場合の距離です。なお、必ずしも最短距離を保証するものではありません。
周辺環境のこだわりポイント
- 小学校 800m以内
- 保育園・幼稚園 400m以内
0037-618-84618
無料
物件概要
| 所在地 | 神奈川県伊勢原市沼目4-39-3 | ||
|---|---|---|---|
| 交通 |
小田急小田原線「伊勢原」駅 神奈川中央交通6分 「沼目」バス停 徒歩1分 |
||
| 販売価格 | 3,380万円~3,580万円 | 最多価格帯 | - |
| 建物面積 | 99.37m2~105.16m2 | 土地面積 | 154.16m2~227.27m2 |
| 間取り | 4LDK | 建物構造 | 木造2階建 |
| 販売スケジュール | 販売中 | ||
| 販売戸数 / 総戸数 | 3戸 / 5戸 | ||
| 完成予定日 | 2026年3月下旬 | 引き渡し可能年月 | 相談 |
| 駐車場 | 2台 ~ 3台 | 道路の幅員 | 東側4.5m |
| 用途地域 | 第一種低層住居専用地域 | 都市計画 | 市街化区域 |
| 地目 | 宅地 | 国土法 | - |
| 土地の権利 | 所有権 | 借地権の種類・期間 | - |
| 主たる設備の概要 | 公営水道、本下水、PG | 建築確認番号 | 第KBI-SGM25-10-1717号 第KBI-SGM25-10-1826号 |
| 施工会社 | 株式会社室澤工務店(日本住宅株式会社) | 機構融資 | - |
| 売主 | 取引態様 | 日本住宅株式会社(売主) | |
| 備考 |
■ご案内日時 お問合せ頂けましたら定休日(火曜・水曜)以外のお日にちは現地ご案内可能でございます。物件の詳細、その他内装などは随時ご案内しておりますので是非ご連絡くだいませ。 ■ご案内方法 物件最寄り駅等でお待ち合わせ、弊社へのご来社、直接現地お待ち合わせなど、ご相談くださいませ。 ご希望ございましたら他物件などもご紹介、ご案内いたします。 ■ご予約方法 home's内見学予約、弊社ホームページお問合せ、電話受付どちらからでもご予約可能です。 ■その他、各種ご相談もお気軽にお申しつけください ○住宅ローン相談 ○土地からのお探し ○注文住宅の検討 etc.... ■ショールームへお車のお越しの際は無料提携駐車場ございます。 弊社ショールームすぐ横にございます。 詳しくは現地看板、又は営業スタッフより伝えさせて頂きます。 ■ショールーム内キッズスペース有ります ・厚木市栄町1-17-10 打ち合わせ中、お子様の遊び場、休憩スペースございます。 テレビ、DVD、おもちゃ等ご用意ございますので、気兼ねなくご来店いただけます。 資料請求は【下部の資料請求ボタン】よりお問合せ下さい。 |
||
| 情報更新日 | 2026/04/30 | 次回更新予定日 | 2026/05/14 |
| 取引条件有効期限 | 2026/07/31 | ||
住宅性能・販売概要・権利のこだわりポイント
- 所有権
- 瑕疵担保付き
- 仲介手数料不要
- 売主・代理
0037-618-84618
無料
取扱い不動産会社
日本住宅株式会社の会社情報
お電話でのお問合せは「LIFULL HOME'S(ライフルホームズ)を見て」とお伝えください
日本住宅株式会社
0037-618-84618
無料
- ※携帯電話はご利用いただけます
- ※光IP電話、及びIP電話をご利用のお客様はTEL:046-223-2500へご連絡ください
- ※携帯電話からお問合せいただいた方には、ショートメッセージ(SMS)またはLINE通知メッセージによるお問合せ内容に関する通知をお届けする場合があり、お客様の電話番号は株式会社LIFULLで一定期間保管されます
- ※株式会社LIFULLの個人情報の取扱い方針に同意のうえ、お電話ください
| 会社名 |
日本住宅株式会社 |
|---|---|
| 免許番号 | 神奈川県知事 (13) 第 9457 号 |
| 所在地 | 神奈川県厚木市栄町1-17-10 |
| 所属団体 |
(公社)首都圏不動産公正取引協議会 |
この物件にお問合せする
実際に物件・周辺環境を見て検討したい!
近隣建物や接道の状況など資料で分からない部分も一目瞭然。 まずはWEBで事前予約、スムーズに見学しましょう
ご予約無しに直接ご来場された場合、担当者不在であったり、
他のお客様のご案内の都合上、お待たせしてしまうことがございます。
不動産会社に電話で相談したい!
日本住宅株式会社
0037-618-84618
無料
電話でのお問合せは「LIFULL HOME'S(ライフルホームズ)を見て」とお伝えください
- ※携帯電話はご利用いただけます
- ※光IP電話、及びIP電話をご利用のお客様はTEL:046-223-2500へご連絡ください
- ※携帯電話からお問合せいただいた方には、ショートメッセージ(SMS)またはLINE通知メッセージによるお問合せ内容に関する通知をお届けする場合があり、お客様の電話番号は株式会社LIFULLで一定期間保管されます
- ※株式会社LIFULLの個人情報の取扱い方針に同意のうえ、お電話ください
LIFULL HOME'Sは物件鮮度No.1を目指していきます 物件情報に誤りがある場合はコチラからご連絡ください
- 【物件番号】
- 1700873-0000073
- ※完成後1年未満で未入居の物件を「新築」と表示しております。
- ※完成予想図やCG合成画像は、門塀・植栽・庭・外観等、実際とは多少異なる場合があります。















