新築一戸建て 【GREENSTAGE155期B号棟×ZEH水準・BELS認定・ダンパー搭載】
この物件は未完成のため、掲載写真(外観、内観、設備等)には、施工例が含まれている場合があります。物件詳細については、掲載の不動産会社宛にお問合せください。
【ZEH水準・BELS認定・ GREENSTAGE155期B号棟】
■大宮エリアを生活圏に通勤ラクラク!
■ZEH水準・安心の制震ダンパーMIRAIE搭載で安心!
■共働き世帯へと気配りいっぱい!センスのある家!
■ゆったりとした間取り設計と安心・快適な設備仕様
■ハイグレードな設備と紀州産の木材を用いた構造材を使用!
■着工前につきカスタマイズ・基本的な仕様はあらかじめ設定されているので、オプション工事をしても総予算が見えやすいというメリットも!!
■浴室換気乾燥機付きで雨の日のお洗濯も安心ですよ!
0037-618-86388
無料
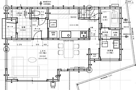
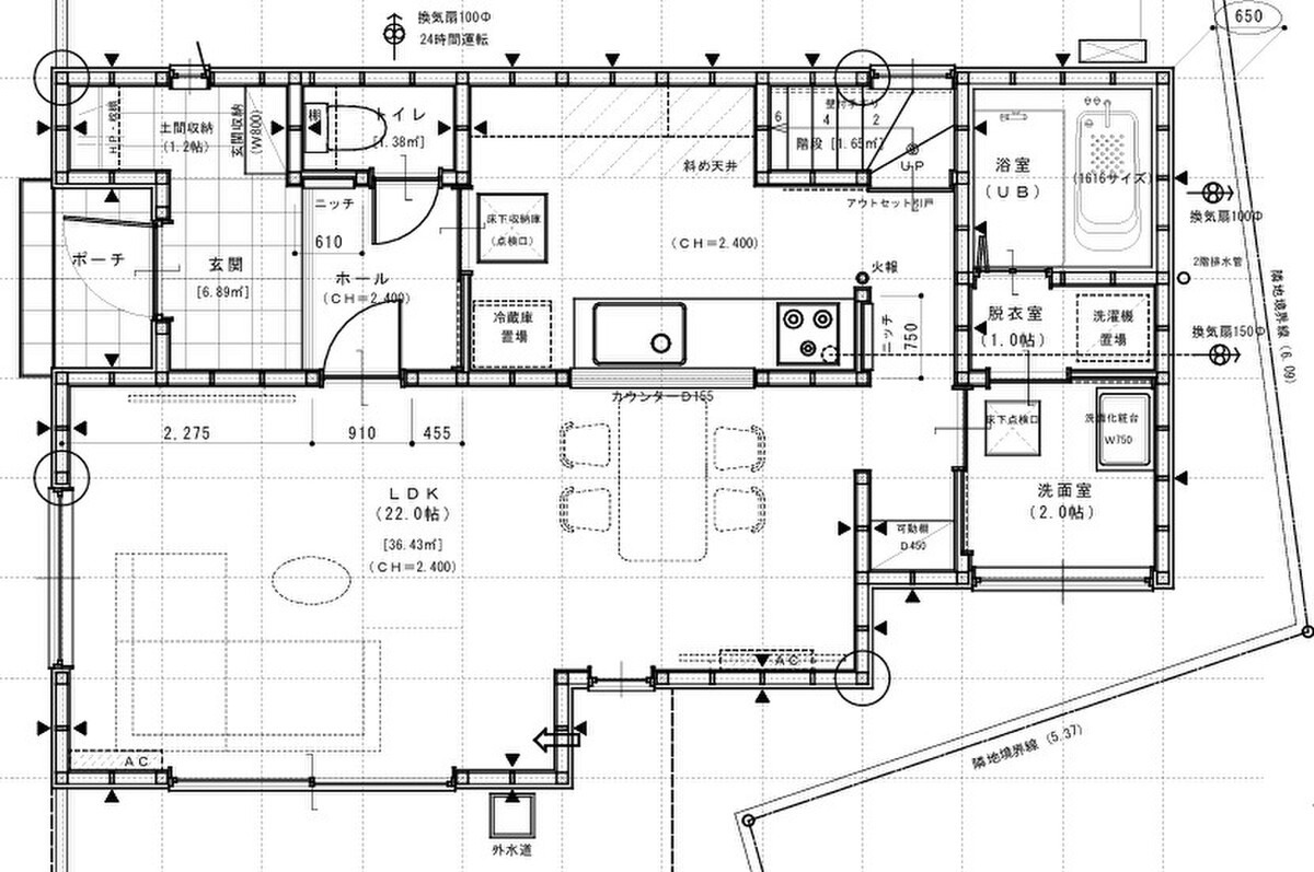
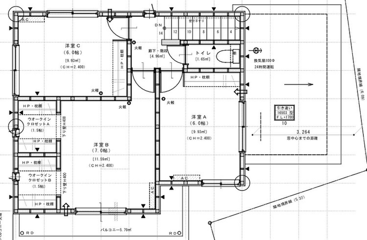
間取り図
0037-618-86388
無料
内観・室内
間取り・内観のこだわりポイント
- LDK15帖以上
- 全室2面採光
- 全室フローリング
0037-618-86388
無料
設備・仕様
設備・仕様のこだわりポイント
- キッチン
-
- カウンターキッチン
- ガスコンロ
- 収納
-
- 床下収納
- ウォークインクローゼット
- パントリー
- 全居室収納
- その他設備
-
- シャワー付洗面化粧台
- 温水洗浄便座
- 浴室乾燥機
- 浴室暖房
- トイレ2ヶ所以上
- 複層ガラス採用(二重サッシ・防犯サッシ等)
- 省エネ給湯器
- TVモニタ付インターホン
0037-618-86388
無料
外観・分譲地
外観・分譲地のこだわりポイント
- 駐車場あり
- 地盤調査済
- 整形地
- 平坦地
0037-618-86388
無料
周辺環境・地図
周辺情報
※半径4kmを超えると、周辺情報のアイコンは表示されません。
- ※不動産会社が入力した情報を基に物件の位置を表示しています。
- ※詳しくは不動産会社までお問合せください。
- ※地図上に表示される各種アイコンなどの情報は、おおよその所在地を表すものであり、物件・施設などの地点を保証するものではありません。
- ※地図の表示領域が広域になると周辺のお店・施設は表示できなくなります。
- ※地図、航空写真情報および地形ならびに周辺のお店・施設は、必ずしも現況を表すものではありません。
- ※物件から周辺のお店・施設までの距離は、利用が想定される道路を通行した場合の距離です。なお、必ずしも最短距離を保証するものではありません。
周辺環境のこだわりポイント
- 小学校 800m以内
- 複数路線
- 最寄り駅が始発駅
0037-618-86388
無料
物件概要
| 所在地 | 埼玉県さいたま市見沼区蓮沼1551-49 | ||
|---|---|---|---|
| 交通 |
東武野田線「大和田」駅 徒歩22分~23分 JR京浜東北・根岸線「大宮」駅 ビッグターミナル大宮駅まで自転車で22分 JR埼京線「大宮」駅 ビッグターミナル大宮駅まで車で約4.8km |
||
| 販売価格 | 4380万円 | 最多価格帯 | - |
| 建物面積 | 98.53m2 | 土地面積 | 173.39m2 |
| 間取り | 3LDK | 建物構造 | 木造2階建 |
| 販売スケジュール | 先着順受付中/販売中 | ||
| 販売戸数 / 総戸数 | 1戸 / 1戸 | ||
| 完成予定日 | 2026年12月 | 引き渡し可能年月 | 相談 |
| 駐車場 | 1台 ~ 4台(カースペース4台可♪車種によります) | 道路の幅員 | 西側4m位置指定道路 |
| 用途地域 | 第二種中高層住居専用地域 | 都市計画 | - |
| 地目 | 宅地 | 国土法 | - |
| 土地の権利 | 所有権 | 借地権の種類・期間 | - |
| 主たる設備の概要 | 電気、公営水道、本下水、集中プロパン | 建築確認番号 | 第25UDI1S建05114号 |
| 施工会社 | 【東海商事株式会社】 | 機構融資 | - |
| 売主 | 東海商事株式会社 [埼玉県知事(11)第10429号] | 取引態様 | 売主/東海商事株式会社 |
| モデルルーム情報 | 近隣に【GREENSTAGE148期モデル棟】オープン! | ||
| 備考 |
ご覧いただきましてありがとうございます。 見どころ満載の現地をご案内いたします♪ 住宅サイトより資料請求された方には『GREENSTAGEのスタイルブック』 を差し上げます☆彡 マイホーム計画なら手数料のかからない【弊社売主GREENSTAGE】スタッフまで♪ 物件詳細の事だけでなく、ご購入時の事などご提案します!! 区画図や画像、周辺地図から土地、最新情報は弊社スタッフにどうぞお気軽にお尋ねください! 【憧れの最旬アイテム!条件そろう新築一戸建マイホーム計画】 人気の埼玉県最大のビッグターミナル「大宮」駅を生活圏に持ち恵まれた住環境が整う住宅街に誕生。設計アイデアの詰まった憧れのマイホーム計画を! 【家族の安全を守る制震ユニット「ミライエ」を標準装備】 日本各地で起こる地震への備えは戸建てといえど万全にしたいもの。GREEN STAGEでは全邸すべてにこの制震ユニット「ミライエ」を導入。 建物の揺れ幅を低減するシステムに、ゴムで揺れを吸収することで建物の損傷やひずみを軽減するというもの。 大切なご家族と自宅を長期にわたって守る家づくりにこだわりを。 ■都心と自然が共存する大宮は、武蔵一宮氷川神社、大型公園充実、お出掛けがとても快適です。 ■ローンアドバイザーによる住宅ローンのご相談もお任せください! お客様に合わせた計画をご提案させて頂きます。 なお、資料送付に関しまして万全を期しておりますが、 万一、1週間以内にお手元に届かない際にはお手数をお掛けしますが、弊社までお知らせ下さい。(048-644-3411) |
||
| 情報更新日 | 2026/05/16 | 次回更新予定日 | 2026/05/30 |
| 取引条件有効期限 | 2027/02/15 | ||
住宅性能・販売概要・権利のこだわりポイント
- 所有権
- 仲介手数料不要
- 売主・代理
- 耐震・制震・免震構造
- 耐震・制震・免震構造
- ダンロップでお馴染み住友ゴム制震ダンパーMIRAIE搭載!
0037-618-86388
無料
取扱い不動産会社
東海商事株式会社の会社情報
お電話でのお問合せは「LIFULL HOME'S(ライフルホームズ)を見て」とお伝えください
GREENSTAGE 東海商事株式会社
0037-618-86388
無料
- ※携帯電話はご利用いただけます
- ※光IP電話、及びIP電話をご利用のお客様はTEL:048-644-3411へご連絡ください
- ※携帯電話からお問合せいただいた方には、ショートメッセージ(SMS)またはLINE通知メッセージによるお問合せ内容に関する通知をお届けする場合があり、お客様の電話番号は株式会社LIFULLで一定期間保管されます
- ※株式会社LIFULLの個人情報の取扱い方針に同意のうえ、お電話ください
| 会社名 |
東海商事株式会社 |
|---|---|
| 免許番号 | 埼玉県知事 (11) 第 10429 号 |
| 所在地 | 埼玉県さいたま市大宮区天沼町1-75 |
| 所属団体 |
(公社)全日本不動産協会埼玉県本部 |
この物件にお問合せする
実際に物件・周辺環境を見て検討したい!
近隣建物や接道の状況など資料で分からない部分も一目瞭然。 まずはWEBで事前予約、スムーズに見学しましょう
ご予約無しに直接ご来場された場合、担当者不在であったり、
他のお客様のご案内の都合上、お待たせしてしまうことがございます。
不動産会社に電話で相談したい!
GREENSTAGE 東海商事株式会社
0037-618-86388
無料
電話でのお問合せは「LIFULL HOME'S(ライフルホームズ)を見て」とお伝えください
- ※携帯電話はご利用いただけます
- ※光IP電話、及びIP電話をご利用のお客様はTEL:048-644-3411へご連絡ください
- ※携帯電話からお問合せいただいた方には、ショートメッセージ(SMS)またはLINE通知メッセージによるお問合せ内容に関する通知をお届けする場合があり、お客様の電話番号は株式会社LIFULLで一定期間保管されます
- ※株式会社LIFULLの個人情報の取扱い方針に同意のうえ、お電話ください
LIFULL HOME'Sは物件鮮度No.1を目指していきます 物件情報に誤りがある場合はコチラからご連絡ください
- 【物件番号】
- 1700720-0000125
- ※完成後1年未満で未入居の物件を「新築」と表示しております。
- ※完成予想図やCG合成画像は、門塀・植栽・庭・外観等、実際とは多少異なる場合があります。
この物件の周辺駅・路線






