一戸建て 【創建ホーム】DKとウッドデッキが繋がる 平屋の家
●敷地70坪越え
●広いお庭とウッドデッキ付きでも駐車2台可能
●LDKから繋がる屋根付きのウッドデッキ
●光と風が抜けるリビング勾配天井
●水まわりをひとまとめにした家事楽動線
JR入野駅まで徒歩約15分、山陽自動車道河内ICへも車で約6分。通勤・通学にも便利な好立地です。
自然豊かで閑静な住環境ながら、買い物施設や学校も身近に揃う、安心して暮らせるエリアです。
0037-618-11441
無料
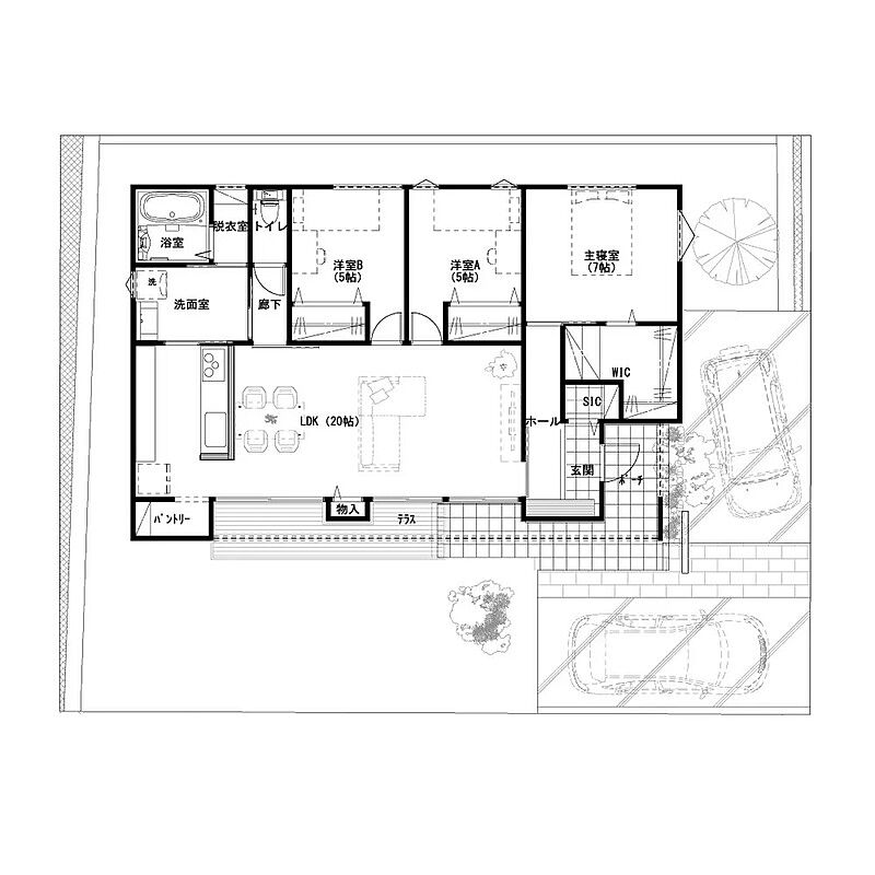
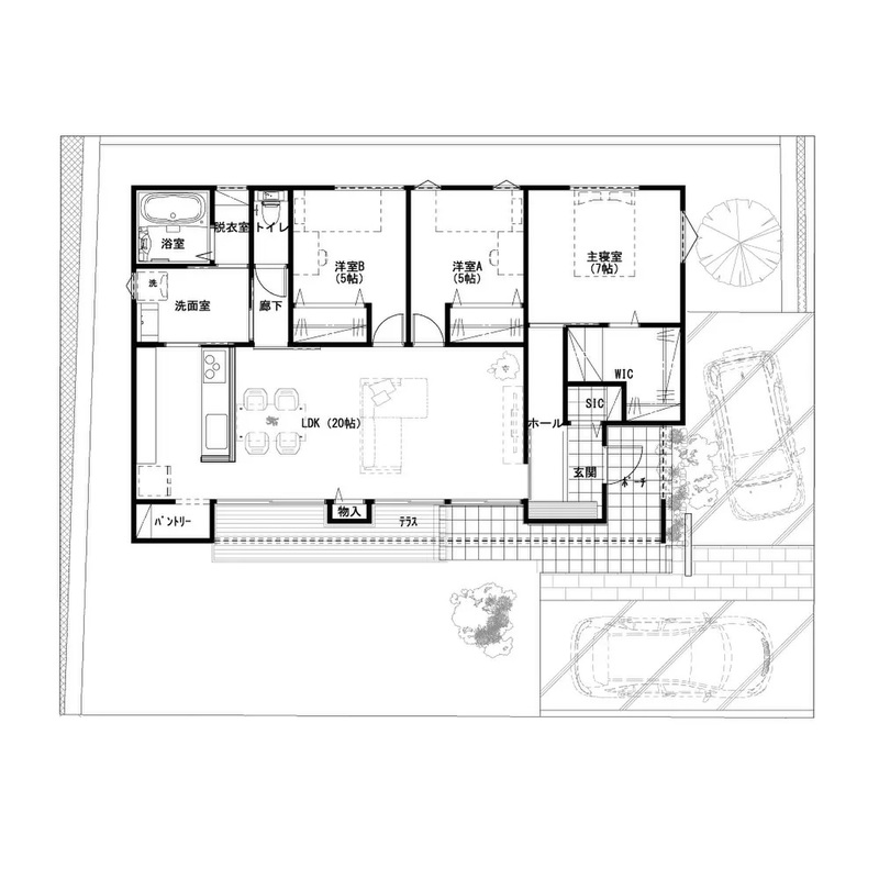
間取り図
0037-618-11441
無料
内観・室内
間取り・内観のこだわりポイント
- LDK15帖以上
0037-618-11441
無料
設備・仕様
設備・仕様のこだわりポイント
- キッチン
-
- IHコンロ
- 食器洗い乾燥機
- 収納
-
- ウォークインクローゼット
- シューズクローク
- パントリー
- 全居室収納
- その他設備
-
- 温水洗浄便座
- 浴室乾燥機
- 節水型トイレ
- 複層ガラス採用(二重サッシ・防犯サッシ等)
- スマートキー
0037-618-11441
無料
外観・分譲地
外観・分譲地のこだわりポイント
- テラス
- 庭が広い
- 駐車場あり
- 低層住宅地
- 整形地
- 前面道路6m以上
- 隣家との間隔が広い
- 平坦地
- 高台
0037-618-11441
無料
周辺環境・地図
周辺情報
※半径4kmを超えると、周辺情報のアイコンは表示されません。
- ※不動産会社が入力した情報を基に物件の位置を表示しています。
- ※詳しくは不動産会社までお問合せください。
- ※地図上に表示される各種アイコンなどの情報は、おおよその所在地を表すものであり、物件・施設などの地点を保証するものではありません。
- ※地図の表示領域が広域になると周辺のお店・施設は表示できなくなります。
- ※地図、航空写真情報および地形ならびに周辺のお店・施設は、必ずしも現況を表すものではありません。
- ※物件から周辺のお店・施設までの距離は、利用が想定される道路を通行した場合の距離です。なお、必ずしも最短距離を保証するものではありません。
周辺環境のこだわりポイント
- 小学校 800m以内
- 公園 400m以内
- 保育園・幼稚園 400m以内
0037-618-11441
無料
物件概要
| 所在地 | 広島県東広島市入野中山台4丁目1-15 | ||
|---|---|---|---|
| 交通 |
JR山陽本線「入野」駅 徒歩19分 |
||
| 販売価格 | 3,380万円 | 最多価格帯 | - |
| 建物面積 | 1F床面積/103.09 m2(31.18 坪)延床面積/103.09m2(31.18坪) | 土地面積 | 235.43m2 |
| 間取り | 3LDK+ランドリールーム+パントリー+SIC+WIC+ウッドデッキ | 建物構造 | 木造1階建 |
| 販売スケジュール | 先着順受付中/販売中 | ||
| 販売戸数 / 総戸数 | 1戸 / 1戸 | ||
| 完成予定日 | 即入居可 | 引き渡し可能年月 | 即入居可 |
| 駐車場 | 0台 ~ 2台 | 道路の幅員 | 幅員6m |
| 用途地域 | 第一種低層住居専用地域 | 都市計画 | - |
| 地目 | 宅地 | 国土法 | - |
| 土地の権利 | 所有権 | 借地権の種類・期間 | - |
| 主たる設備の概要 | ※オール電化住宅のためガス配管は行っていません。上水道:公営水道、下水道:公共下水、電気:中国電力 | 建築確認番号 | 第HP16‐4006127号 |
| 施工会社 | - | 機構融資 | - |
| 売主 | 創建ホーム株式会社 [国土交通大臣(5)第6509号] | 取引態様 | 売主/創建ホーム株式会社 |
| 備考 | - | ||
| 情報更新日 | 2026/03/31 | 次回更新予定日 | 随時 |
| 取引条件有効期限 | 2026/10/26 | ||
住宅性能・販売概要・権利のこだわりポイント
- 所有権
- 瑕疵担保付き
- 仲介手数料不要
- 売主・代理
- 耐震・制震・免震構造
- 即入居可
0037-618-11441
無料
取扱い不動産会社
創建ホーム株式会社の会社情報
お電話でのお問合せは「LIFULL HOME'S(ライフルホームズ)を見て」とお伝えください
創建ホーム株式会社 東広島支店
0037-618-11441
無料
- ※携帯電話はご利用いただけます
- ※光IP電話、及びIP電話をご利用のお客様はTEL:082-422-7877へご連絡ください
- ※携帯電話からお問合せいただいた方には、ショートメッセージ(SMS)またはLINE通知メッセージによるお問合せ内容に関する通知をお届けする場合があり、お客様の電話番号は株式会社LIFULLで一定期間保管されます
- ※株式会社LIFULLの個人情報の取扱い方針に同意のうえ、お電話ください
| 会社名 |
創建ホーム株式会社 |
|---|---|
| 免許番号 | 国土交通大臣 (5) 第 6509 号 |
| 所在地 | 広島県竹原市中央4丁目7-3 |
| 所属団体 |
(公社)宮城県宅地建物取引業協会 |
この物件にお問合せする
実際に物件・周辺環境を見て検討したい!
近隣建物や接道の状況など資料で分からない部分も一目瞭然。 まずはWEBで事前予約、スムーズに見学しましょう
ご予約無しに直接ご来場された場合、担当者不在であったり、
他のお客様のご案内の都合上、お待たせしてしまうことがございます。
不動産会社に電話で相談したい!
創建ホーム株式会社 東広島支店
0037-618-11441
無料
電話でのお問合せは「LIFULL HOME'S(ライフルホームズ)を見て」とお伝えください
- ※携帯電話はご利用いただけます
- ※光IP電話、及びIP電話をご利用のお客様はTEL:082-422-7877へご連絡ください
- ※携帯電話からお問合せいただいた方には、ショートメッセージ(SMS)またはLINE通知メッセージによるお問合せ内容に関する通知をお届けする場合があり、お客様の電話番号は株式会社LIFULLで一定期間保管されます
- ※株式会社LIFULLの個人情報の取扱い方針に同意のうえ、お電話ください
LIFULL HOME'Sは物件鮮度No.1を目指していきます 物件情報に誤りがある場合はコチラからご連絡ください
- 【物件番号】
- 1700577-0000105
- ※完成後1年未満で未入居の物件を「新築」と表示しております。
- ※完成予想図やCG合成画像は、門塀・植栽・庭・外観等、実際とは多少異なる場合があります。
物件を再検索する
広島県の人気エリアから新築一戸建てを探す






