新築一戸建て ポラスの分譲住宅 ブリスト大宮上小町 プレルヴァ
この物件は未完成のため、掲載写真(外観、内観、設備等)には、施工例が含まれている場合があります。物件詳細については、掲載の不動産会社宛にお問合せください。
大宮上小町に誕生する戸建プロジェクト始動〈全10邸〉
◆県内最大ターミナル駅「大宮」駅まで徒歩20分・自転車7分※実測
◆大宮駅利用で「東京」駅まで直通33分・「新宿」駅まで直通30分
◆敷地面積100.4m2×カースペース2台号棟
◆全邸太陽パネル設置×長期優良住宅×耐震等級3
◆ガス衣類乾燥機「乾太くん」を採用
◆ウルトラファインバブルのお湯が使える「エコワンX5」採用
◆大宮上小町の閑静な住環境
◆「三橋小学校」徒歩5分・「三橋中学校」徒歩9分・「かみこ幼稚園」徒歩3分
0037-618-09038
無料
魅力1 JR「大宮」駅まで徒歩20分の立地
東日本有数のビッグターミナル「大宮」の利便性を手の届く距離に置き、「池袋」「上野」「新宿」という大都市まで直通30分圏内のアクセスを誇りながら、穏やかな時間が流れる「上小町」エリア。子どもたちが安心して遊べる公園、通いやすい学校、日々の買い物に便利な商店など、ファミリーの暮らしに必要なものが整う地。「大宮の便利さは欲しいけれど、子育ては静かな場所で」?そう願う家族が辿り着く最適な地。
魅力2 注文住宅やデザイナーズマンションのような洗練されたインテリア性を実現
暮らしやすさを第一に考えたプランニング。デザイン性はもちろん、調湿・消臭機能を持つアクセントパネル、人感センサー、小さな子どもも安心なファインモーションなど、快適に暮らせる工夫を。
魅力3 毎日のお買い物に便利な商業施設が揃っています。
スーパーバリュー大宮三橋店/「お客様第一主義の徹底」「よい商品をより安く」「顧客満足度の高いサービスの提供」をモットーに掲げ、多種多様な商品を取り揃えるスーパーマーケット。営業時間は9:30~20:00です。
ヤオコー大宮上小町店/生鮮食品や日用品の取り扱いがあるスーパーマーケット。駐車場が52台分あり、車でも気軽にお買い物ができます。営業時間は9:30~21:00です。
0037-618-09038
無料
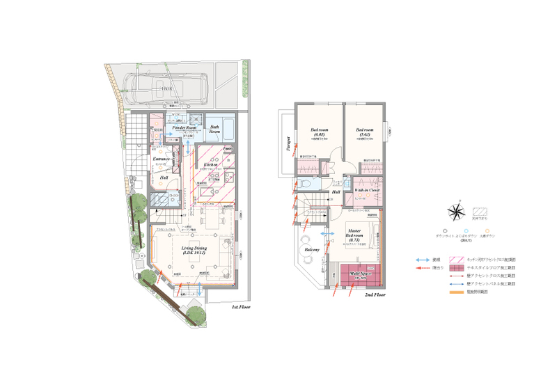
間取り図
0037-618-09038
無料
内観・室内
間取り・内観のこだわりポイント
- LDK15帖以上
- 4LDK以上
- 全居室6帖以上
- 吹き抜け
- 南面バルコニー
- 全室2面採光
- 全室フローリング
- 天井高2.5m以上
0037-618-09038
無料
設備・仕様
設備・仕様のこだわりポイント
- キッチン
-
- カウンターキッチン
- 食器洗い乾燥機
- 浄水器・活水器
- ガスコンロ
- 収納
-
- 床下収納
- ウォークインクローゼット
- シューズクローク
- パントリー
- 全居室収納
- その他設備
-
- 都市ガス
- シャワー付洗面化粧台
- 浴室1.6×1.8m以上
- トイレ2ヶ所以上
- 床暖房
- 複層ガラス採用(二重サッシ・防犯サッシ等)
- スマートキー
- 省エネ給湯器
- 電動シャッター
- TVモニタ付インターホン
- 宅配ボックス
省エネ性能
-
※「省エネ性能ラベル」は特定の住戸の性能を示し、全ての住戸の性能を示していない場合があります。
0037-618-09038
無料
外観・分譲地
-
「静謐の地」にふさわしい高水準の住まい
美意識と機能性が息づく、タウンデザイン。未来を見据えた環境に配...
-
大宮の街に相応しい気品ある街並み
温かみのあるナチュラルモダンな外壁材を採用し、美しさが長続きす...
-
洗練と気品が宿る街並みデザイン
エクステリアには、シックでどこかクラシカルな風合いが気品を感じ...
-
JR「大宮」駅まで徒歩20分の立地
大宮を生活圏とし、池袋・新宿へ30分圏内と好アクセスな「上小町...
-
快適な暮らしを紡ぎ出す「大宮」の壮大なアクセス力
東京駅に次ぐ多路線が乗り入れる大宮駅は、都心や県内主要都市へ自...
-
灯かりのいえなみ協定
住人がガイドラインに沿った協定に基づき、街全体で常夜灯を自動点...
外観・分譲地のこだわりポイント
- テラス
- 駐車場あり
- 総戸数・総区画数が10以上〜30未満
- 地盤調査済
- 南道路
- 敷地延長・変形地
- 前面道路6m以上
- 平坦地
0037-618-09038
無料
周辺環境・地図
周辺情報
※半径4kmを超えると、周辺情報のアイコンは表示されません。
- ※不動産会社が入力した情報を基に物件の位置を表示しています。
- ※詳しくは不動産会社までお問合せください。
- ※地図上に表示される各種アイコンなどの情報は、おおよその所在地を表すものであり、物件・施設などの地点を保証するものではありません。
- ※地図の表示領域が広域になると周辺のお店・施設は表示できなくなります。
- ※地図、航空写真情報および地形ならびに周辺のお店・施設は、必ずしも現況を表すものではありません。
- ※物件から周辺のお店・施設までの距離は、利用が想定される道路を通行した場合の距離です。なお、必ずしも最短距離を保証するものではありません。
-
【学校】
三橋小学校(現地より徒歩5分) (約380m)
教育DXで学びの自立と個別最適化することを目指し、教育活動が行...
-
【学校】
三橋中学校(現地より徒歩9分) (約690m)
「ゆたかに、かしこく、たくましく」を学校教育目標に掲げる中学校...
-
【学校】
三橋保育園(現地より徒歩3分) (約180m)
受入対象年齢は6か月~就学前まで、定員100名の保育園。毎日の...
-
【学校】
かみこ幼稚園(現地より徒歩3分) (約220m)
個性豊かに、明るくのびやかな子育てが行われている幼稚園。約30...
-
【買い物】
ウエルシアさいたま三橋店(現地より徒歩5分) (約340m)
医薬品や化粧品だけでなく、食品なども取り扱うドラッグストアです...
-
【買い物】
ヤオコー大宮上小町店(現地より徒歩11分) (約880m)
生鮮食品や日用品の取り扱いがあるスーパーマーケット。駐車場が5...
-
案内図
-
交通図
周辺環境のこだわりポイント
- スーパー 800m以内
- コンビニ 400m以内
- 小学校 800m以内
- 公園 400m以内
- 中学校 800m以内
- 保育園・幼稚園 400m以内
- 複数路線
- 最寄り駅が始発駅
0037-618-09038
無料
物件概要
| 所在地 | 埼玉県さいたま市大宮区上小町275番4他 | ||
|---|---|---|---|
| 交通 |
JR東北本線「大宮」駅 バス16分 中並木バス停 徒歩4分 |
||
| 販売価格 | 6,980万円 | 最多価格帯 | - |
| 建物面積 | 100.4m2 | 土地面積 | 119.01m2 / 私道負担あり 245.96m2(持分8分の1) |
| 間取り | 3LDK(2LDK対応可※別途有償)+ステップDEN+土間収納+パントリー+ランドリーコーナー+ウォークインクローゼット | 建物構造 | 木造2階建(在来工法) |
| 販売スケジュール | 3号棟は抽選販売となります(2026年9月12日(土)12:00受付締切/12:30抽選) | ||
| 販売戸数 / 総戸数 | 1戸 / 10戸 | ||
| 完成予定日 | 2026年7月下旬予定 | 引き渡し可能年月 | 2026年11月9日 |
| 駐車場 | 1台 | 道路の幅員 | 4.5m公道 |
| 用途地域 | 第二種中高層住居専用地域 | 都市計画 | 市街化区域 |
| 地目 | 宅地 畑 | 国土法 | - |
| 土地の権利 | 所有権 | 借地権の種類・期間 | - |
| 主たる設備の概要 | 公営水道、東京電力・他、都市ガス、本下水、カースペース、外構 | 建築確認番号 | 第SJK-KX255646620号(2026年2月12日)3号棟 |
| 施工会社 | ポラテック(株) | 機構融資 | - |
| 売主 | 中央グリーン開発(株) [宅建業:国土交通大臣(5)第6871号] | 取引態様 | 売主 |
| 備考 |
※3号棟は抽選販売となります。2026年9月12日(土)12:00受付締切、12:30抽選。 ※入居予定は号棟により異なります。詳しくは販売員までお問い合わせください。 ※ごみ置き場は共有持ち分になります。ごみ集積用地(3.51m2×1/10) ※未利用地は共有持ち分になります。未利用地(3.03m2×1/8) ※各施設までの徒歩所要時間(距離)は、「最も遠い号棟を起点」に計測しております。 ※毎週火・水曜日は弊社定休日となります。火・水曜日の見学予約はご対応いたしかねますのであらかじめご了承ください。 ※灯かりのいえなみ協定(R)がございます。詳しくは販売員までお問い合わせください。 ※建ペイ率・容積率に関しては道路幅員、接道状況により数値が異なる場合がございますのでご了承ください。 ※建物の一部が下がり壁、勾配天井、下がり天井になる場合がございます。詳細は設計図書でご確認ください。 [設備]公営水道/東京電力・他/都市ガス/本下水/カースペース/外構 |
||
| 情報更新日 | 2026/05/22 | 次回更新予定日 | 2026/05/23 |
| 取引条件有効期限 | 2026/05/24 | ||
住宅性能・販売概要・権利のこだわりポイント
- 所有権
- 売主・代理
- 長期優良住宅
0037-618-09038
無料
取扱い不動産会社
ポラスグループ 中央グリーン開発株式会社の会社情報
お電話でのお問合せは「LIFULL HOME'S(ライフルホームズ)を見て」とお伝えください
中央グリーン開発(株) 本店
0037-618-09038
無料
- ※携帯電話はご利用いただけます
- ※光IP電話、及びIP電話をご利用のお客様はTEL:0120-65-2381へご連絡ください
- ※携帯電話からお問合せいただいた方には、ショートメッセージ(SMS)またはLINE通知メッセージによるお問合せ内容に関する通知をお届けする場合があり、お客様の電話番号は株式会社LIFULLで一定期間保管されます
- ※株式会社LIFULLの個人情報の取扱い方針に同意のうえ、お電話ください
| 会社名 |
ポラスグループ 中央グリーン開発株式会社 |
|---|---|
| 免許番号 | 国土交通大臣 (5) 第 6871 号 |
| 所在地 | 埼玉県越谷市南越谷1-2905-3 |
| 所属団体 |
(公社)首都圏不動産公正取引協議会 |
ポラスグループ 中央グリーン開発の会社紹介
この物件にお問合せする
実際に物件・周辺環境を見て検討したい!
近隣建物や接道の状況など資料で分からない部分も一目瞭然。 まずはWEBで事前予約、スムーズに見学しましょう
ご予約無しに直接ご来場された場合、担当者不在であったり、
他のお客様のご案内の都合上、お待たせしてしまうことがございます。
不動産会社に電話で相談したい!
中央グリーン開発(株) 本店
0037-618-09038
無料
電話でのお問合せは「LIFULL HOME'S(ライフルホームズ)を見て」とお伝えください
- ※携帯電話はご利用いただけます
- ※光IP電話、及びIP電話をご利用のお客様はTEL:0120-65-2381へご連絡ください
- ※携帯電話からお問合せいただいた方には、ショートメッセージ(SMS)またはLINE通知メッセージによるお問合せ内容に関する通知をお届けする場合があり、お客様の電話番号は株式会社LIFULLで一定期間保管されます
- ※株式会社LIFULLの個人情報の取扱い方針に同意のうえ、お電話ください
LIFULL HOME'Sは物件鮮度No.1を目指していきます 物件情報に誤りがある場合はコチラからご連絡ください
- 【物件番号】
- 1700129-0000840
- ※完成後1年未満で未入居の物件を「新築」と表示しております。
- ※完成予想図やCG合成画像は、門塀・植栽・庭・外観等、実際とは多少異なる場合があります。
この物件の周辺駅・路線















