新築一戸建て 【ダイワハウス】セキュレア駿河区南八幡町II (分譲住宅)
南部小学校まで徒歩3分圏内。全12区画の閑静な住宅街です。
スーパー、ドラッグストア、公園、図書館、区役所が徒歩圏内に揃っています。
「イオンセントラルスクエア静岡」まで徒歩圏内。
0037-618-27403
無料
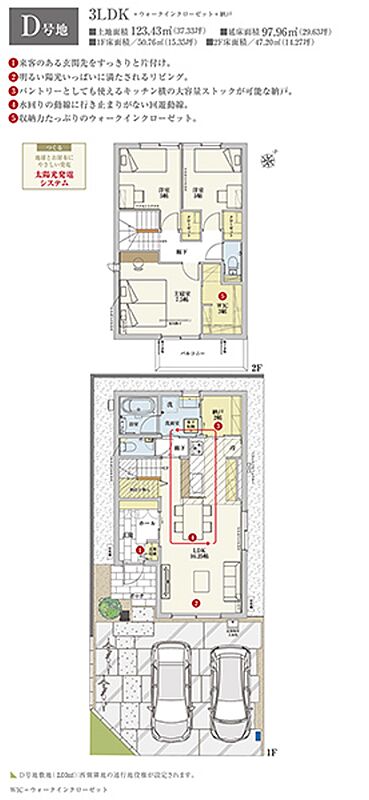
間取り図
0037-618-27403
無料
内観・室内
間取り・内観のこだわりポイント
- LDK15帖以上
- 吹き抜け
- 南面バルコニー
- 全室フローリング
- 天井高2.5m以上
0037-618-27403
無料
設備・仕様
設備・仕様のこだわりポイント
- キッチン
-
- カウンターキッチン
- 食器洗い乾燥機
- 浄水器・活水器
- 収納
-
- 床下収納
- ウォークインクローゼット
- 全居室収納
- その他設備
-
- 都市ガス
- マイホーム発電システム
- スマートハウス
- シャワー付洗面化粧台
- 温水洗浄便座
- 浴室乾燥機
- 浴室1.6×1.8m以上
- 浴室暖房
- トイレ2ヶ所以上
- タンクレストイレ
- 複層ガラス採用(二重サッシ・防犯サッシ等)
- TVモニタ付インターホン
- 宅配ボックス
0037-618-27403
無料
外観・分譲地
外観・分譲地のこだわりポイント
- 駐車場あり
- 総戸数・総区画数が10以上〜30未満
- 地盤調査済
- 南道路
- 整形地
- 平坦地
0037-618-27403
無料
周辺環境・地図
周辺情報
※半径4kmを超えると、周辺情報のアイコンは表示されません。
- ※不動産会社が入力した情報を基に物件の位置を表示しています。
- ※詳しくは不動産会社までお問合せください。
- ※地図上に表示される各種アイコンなどの情報は、おおよその所在地を表すものであり、物件・施設などの地点を保証するものではありません。
- ※地図の表示領域が広域になると周辺のお店・施設は表示できなくなります。
- ※地図、航空写真情報および地形ならびに周辺のお店・施設は、必ずしも現況を表すものではありません。
- ※物件から周辺のお店・施設までの距離は、利用が想定される道路を通行した場合の距離です。なお、必ずしも最短距離を保証するものではありません。
周辺環境のこだわりポイント
- スーパー 800m以内
- 公園 400m以内
- 保育園・幼稚園 400m以内
- 複数路線
0037-618-27403
無料
物件概要
| 所在地 | 静岡県静岡市駿河区南八幡町402番11他 | ||
|---|---|---|---|
| 交通 |
JR東海道本線「静岡」駅 徒歩23分~24分 静岡鉄道静岡清水線「新静岡」駅 徒歩30分~44分 |
||
| 販売価格 | 6,390万円~6,590万円 | 最多価格帯 | 6,000万円台 2戸 ※1,000万円単位 |
| 建物面積 | 97.96m2(D号地)、101.63m2(H号地) | 土地面積 | 123.43m2 私道負担あり 77m2のうち、6分の1の負担持分(D号地)、124.55m2 私道負担なし(H号地) |
| 間取り | 3LDK(D号地、H号地) | 建物構造 | 軽量鉄骨2階建(2戸) |
| 販売スケジュール | 先着順申込受付中 | ||
| 販売戸数 / 総戸数 | 2戸 / 12戸 | ||
| 完成予定日 | 令和7年12月完成済 2戸 | 引き渡し可能年月 | 即引渡可 2戸 |
| 駐車場 | 2台 | 道路の幅員 | 4m(アスファルト舗装) |
| 用途地域 | 第一種中高層住居専用地域 | 都市計画 | 市街化区域 |
| 地目 | - | 国土法 | 届出不要 |
| 土地の権利 | 所有権 | 借地権の種類・期間 | - |
| その他費用 | - | ||
| 主たる設備の概要 | 電気:大和ハウス工業(他の小売電気事業者の選択も可能です)、ガス:都市ガス、水道:市営水道、下水:公共下水道 | 建築確認番号 | 第ERI-25023563号他 |
| 施工会社 | - | 機構融資 | - |
| 売主 | 大和ハウス工業株式会社 [国土交通大臣(16)第245号 国土交通大臣許可(特-7)第5279号] | 取引態様 | 売主 |
| 備考 | - | ||
| 情報更新日 | 2026/05/21 | 次回更新予定日 | 随時 |
| 取引条件有効期限 | 2026/05/27 | ||
住宅性能・販売概要・権利のこだわりポイント
- 所有権
- 売主・代理
- 耐震・制震・免震構造
- 長期優良住宅
- 設計住宅性能評価書
- 建設住宅性能評価書(新築時)
- 即入居可
0037-618-27403
無料
取扱い不動産会社
大和ハウス工業株式会社の会社情報
お電話でのお問合せは「LIFULL HOME'S(ライフルホームズ)を見て」とお伝えください
静岡支店(担当:田巻)
0037-618-27403
無料
- ※携帯電話はご利用いただけます
- ※光IP電話、及びIP電話をご利用のお客様はTEL:0120-003-815へご連絡ください
- ※携帯電話からお問合せいただいた方には、ショートメッセージ(SMS)またはLINE通知メッセージによるお問合せ内容に関する通知をお届けする場合があり、お客様の電話番号は株式会社LIFULLで一定期間保管されます
- ※株式会社LIFULLの個人情報の取扱い方針に同意のうえ、お電話ください
| 会社名 |
大和ハウス工業株式会社 |
|---|---|
| 免許番号 | 国土交通大臣 (16) 第 245 号 |
| 所在地 | 大阪府大阪市北区梅田3丁目3番5号 |
| 所属団体 |
(一社)不動産協会 |
この物件にお問合せする
実際に物件・周辺環境を見て検討したい!
近隣建物や接道の状況など資料で分からない部分も一目瞭然。 まずはWEBで事前予約、スムーズに見学しましょう
ご予約無しに直接ご来場された場合、担当者不在であったり、
他のお客様のご案内の都合上、お待たせしてしまうことがございます。
不動産会社に電話で相談したい!
静岡支店(担当:田巻)
0037-618-27403
無料
電話でのお問合せは「LIFULL HOME'S(ライフルホームズ)を見て」とお伝えください
- ※携帯電話はご利用いただけます
- ※光IP電話、及びIP電話をご利用のお客様はTEL:0120-003-815へご連絡ください
- ※携帯電話からお問合せいただいた方には、ショートメッセージ(SMS)またはLINE通知メッセージによるお問合せ内容に関する通知をお届けする場合があり、お客様の電話番号は株式会社LIFULLで一定期間保管されます
- ※株式会社LIFULLの個人情報の取扱い方針に同意のうえ、お電話ください
LIFULL HOME'Sは物件鮮度No.1を目指していきます 物件情報に誤りがある場合はコチラからご連絡ください
- 【物件番号】
- 1700013-0016233
- ※完成後1年未満で未入居の物件を「新築」と表示しております。
- ※完成予想図やCG合成画像は、門塀・植栽・庭・外観等、実際とは多少異なる場合があります。






