

中庭のある家 プラスパティオ
お問合せ多数につき受付再開までお待ちください
カタログ詳細
ロイヤルSSS構法(グッドデザイン賞受賞)
ロイヤルSSS構法(グッドデザイン賞受賞)で建てる“中庭のある家”。 日常生活の中に楽しさやワクワクをかなえたいニーズにこたえて、家の外もデザインしました。家族と共に、または玄関導線からも手軽に入れるので、近隣・友人と共に外暮らしの新ライフスタイルを叶えます。 ※資料請求はロイヤルハウスWEBサイトより直接お問い合わせください https://www.royal-house.co.jp/catalog/
ロイヤルSSS構法(グッドデザイン賞受賞)で建てる“中庭のある家”。 日常生活の中に楽しさやワクワクをかなえたいニーズにこたえて、家の外もデザインしました。家族と共に、または玄関導線からも手軽に入れるので、近隣・友人と共に外暮らしの新ライフスタイルを叶えます。 ※資料請求はロイヤルハウスWEBサイトより直接お問い合わせください https://www.royal-house.co.jp/catalog/
- 参考本体価格
-
- 坪単価
- -
- 工法
- 木造軸組(在来)工法
- 建築対応エリア
カタログ写真(10件)

ロイヤルSSS構法の品質
ロイヤルSSS構法は ・次世代省エネ基準、平成25年省エネ基準に適合 ・長期優良住宅に適合 ・住宅性能表示7項目で最高級に対応 などを備えた安心テクノロジー住宅。 また、ロイヤルSSS構法のベースとなるアップルピンシステムは、国土交通省からH21~H23に「住宅等の安全性向上に資する技術開発」に採択され、日本、EU、中国の世界3か国で特許取得済み。ロイヤルSSS構法は、公的機関からも認められたシステムを取り入れています。

ロイヤルSSS構法で建てる家
木は経年変化により、徐々に接合部が弛むという課題があります。ロイヤルSSS構法は『引寄せの技』を使い、柱の中心側で捻ってガッチリ接合し、木が痩せるほど接合部が締まり強度が高まる構法です。また、在来工法では実現できない大空間をデザインすることができます。

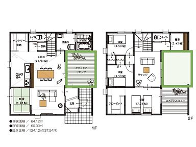
中庭のある家
住宅密集地など、プライバシーの確保が難しい敷地条件の場合に実力を発揮する中庭のある家。外に閉じて内に開く。敷地条件に応じたプランニングをすることで、様々なメリットが生まれます。

リビングを外に広げて、アウトドアリビングとして楽しめます。

収納や導線はもちろん計算しつくしてプランニング、豊かな暮らしをご提案します。

お好みに合わせて内装もご提案いたします。 たとえば高級感のある落ち着いた大人のインテリアスタイル。 深さのある濃い色をメインに使い、派手なコントラストやアクセントをつけずに空間をまとめることで重厚感を演出します。

自然な風合いやさしい印象で人気のベーシックスタイル。 柔らかな温かさを感じる空間を演出します。 飽きがこないカラーリングで子育てファミリーに人気のスタイルです。

シンプルで明るく上品なインテリアスタイル。 クロスやキッチンなどで空間にアクセントカラーを取り入れたり、カーテンや家具が主役の空間を作りやすく、実際より空間が広く感じたり、明るく感じる効果があります。

木の素材をいかした耐久性の高い天然木の内装壁材を使用。 光の具合や経年変化による多彩な表情を楽しむことができます。

目隠しプライベートパネル、可動庇オーニング、人工木デッキを標準装備。 お庭で過ごす時間が充実するようにデザインしています。
この会社の他のカタログ(14件)
この会社の他の情報
- 施工事例(0件)
- 画像(15件)
- 評判(1件)
- こだわり・特長(21件)
- 店舗・展示場・モデルハウス(47件)
- スタッフへのインタビュー(0件)
お問合せ
メールでお問合せ
共有する
- お問合せ多数につき受付再開までお待ちください
参考本体価格について
参考本体価格は、付帯設備費(外構工事・ガス水道の引き込み工事費用など)や諸費用を含まない建物を建てるためにかかる費用という、一般的な表記方針に準拠して掲出しております。
本体価格は、敷地条件やエリア・工法などによっても変動するため、表示の金額から外れる場合もございます。詳細な金額に関しては、掲載企業各社にお問合せください。
坪単価について
建物一坪あたりにかかる費用の目安として掲出しております。建てたいとお考えの坪数に当てはめて目安としてください。
坪単価は敷地条件やエリアなどにより変動するので、表示の金額から外れる場合もございます。詳細な金額に関しては、掲載企業各社にお問合せください。
建築対応エリア
| 広島県 | 広島市中区、広島市東区、広島市南区、広島市西区、広島市安佐南区、広島市安佐北区、広島市安芸区、広島市佐伯区 |
|---|
建てたいエリアを教えてください
選択していただくとお客様情報の入力に進みます。
※会社の建築対応エリアによって、選択できないエリアがあります。
オンライン相談とは
- 1
住宅メーカーへ問合せ
「この会社へお問合せ」ボタンを押して、フォーム上で「オンライン相談を希望する」旨をご記入し送信します。
- 2
住宅メーカーと日程を調整
住宅メーカーから連絡が来たらオンライン相談の日程を調整して、予約完了。
- 3
相談方法のご確認
メールやSMS等にてオンライン相談の利用方法が届きますので、ご確認ください。
- 4
指定場所にアクセス
当日、予約時刻になったらご指定のビデオ通話につなぎ、ご相談ください。
利用時の注意事項
- ビデオ通話については各住宅メーカー指定のものとなります。
- ビデオ通話利用時には通信が発生します。従量課金制通信サービスや通信料に上限があるネット回線・プランを利用する場合は、通信量に注意してください。
- 通信速度やアプリの設定によってはビデオ通話の画質が低下することがあります。安定した画質で利用するためにも、Wi-Fi環境下での利用を推奨します。
- ご利用のビデオ通話アプリによっては、対象のOSやブラウザに制限がある場合があります。詳しくはお問合せ先住宅メーカーにご確認ください。







