

【鹿児島市 2階建て】41.9坪 素朴でアンティークな風合いの家
施工事例データ
アンティークな風合いの塗り壁が特徴のK様邸。家の中に入ると自転車も入る広々としたホールが広がっている。「営業担当の方が色々な方面からアドバイスしてくれた。洋風の家を建てたいという気持ちと、営業担当の方との出会いがマッチしたので決めた」とK様。一番のこだわりはヴィンテージ加工の床。モデルハウスを見ていいなと思い、丸和建設に決めたとのこと。
アンティークな風合いの塗り壁が特徴のK様邸。家の中に入ると自転車も入る広々としたホールが広がっている。「営業担当の方が色々な方面からアドバイスしてくれた。洋風の家を建てたいという気持ちと、営業担当の方との出会いがマッチしたので決めた」とK様。一番のこだわりはヴィンテージ加工の床。モデルハウスを見ていいなと思い、丸和建設に決めたとのこと。
本体価格
坪単価
床面積
土地面積
間取り
工法
所在地
竣工年
家族構成
ペット
商品名
建築対応エリア
家づくりのヒントとは

- 家づくりのアイディア
- イメージふくらむ写真
- 工法や技術
- 間取り・プラン実例
内観・外観画像(6件)

塗り壁が特徴的な、アンティークな風合いの南欧風外観

自転車も入る広々とした玄関ホール

廊下やキッチンのアーチ、ビンテージ加工の床に家具の雰囲気まで統一された洋風のリビングダイニング

欧風に統一された家の中に1室だけある四畳半の和室。和の雰囲気を感じたくなった時にピッタリ

大きな窓から光が良く入る子供室。正面と壁とカーテンのテイストを合わせ、子供らしさのあふれる部屋となっている

家の各所にあるニッチにはお気に入りのぬいぐるみや雑貨、小物などを飾っている
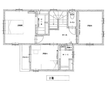
間取り図(2件)

1階

2階
家づくりのヒントとは

- 家づくりのアイディア
- イメージふくらむ写真
- 工法や技術
- 間取り・プラン実例
この会社の他の施工事例(40件)





施工事例
【鹿児島市 平屋】29.49坪(97.50㎡)グレイッシュカラーが目を惹く平屋
- 床面積
- 29.49坪(97.50㎡)
- 土地面積
- 68.12坪(225.21㎡)
- 竣工年
- -年
- 工法
- ツーバイフォー・ツーバイシックス工法

この会社のおすすめカタログ

【2F、平屋】企画住宅 RAKUie(ラクイエ)
家づくりに「楽」がある。住んでみて「楽」しさがある。
建てたいエリアを教えてください
選択していただくとお客様情報の入力に進みます。
※会社の建築対応エリアによって、選択できないエリアがあります。

【平屋】企画住宅 RAKUie(ラクイエ) プラン集
家づくりに「楽」がある。住んでみて「楽」しさがある。
建てたいエリアを教えてください
選択していただくとお客様情報の入力に進みます。
※会社の建築対応エリアによって、選択できないエリアがあります。

【2F】企画住宅 RAKUie(ラクイエ) プラン集
家づくりに「楽」がある。住んでみて「楽」しさがある。
建てたいエリアを教えてください
選択していただくとお客様情報の入力に進みます。
※会社の建築対応エリアによって、選択できないエリアがあります。
この会社の他の情報
- カタログ(3件)
- 画像(314件)
- 住宅イベント(0件)
- 評判(7件)
- こだわり・特長(24件)
- 店舗・展示場・モデルハウス(1件)
- スタッフへのインタビュー(0件)
お問合せ
電話でお問合せ
音声案内に従い、
店舗番号4132を入力してください
※上記番号で通話できない場合は、099-269-7600におかけ直しください
※住み替えを検討されているお客様以外からのお問合わせはお断りしております
メールでお問合せ
家づくりのヒントとは

- 家づくりのアイディア
- イメージふくらむ写真
- 工法や技術
- 間取り・プラン実例
共有する
建築対応エリア
| 宮崎県 | 都城市、小林市、えびの市 |
|---|---|
| 鹿児島県 | 鹿児島市、鹿屋市、枕崎市、阿久根市、出水市、指宿市、垂水市、薩摩川内市、日置市、曽於市、霧島市、いちき串木野市、南さつま市、志布志市、南九州市、伊佐市、姶良市、薩摩郡さつま町、出水郡長島町、姶良郡湧水町、曽於郡大崎町、肝属郡東串良町、肝属郡錦江町、肝属郡南大隅町、肝属郡肝付町 |
建てたいエリアを教えてください
選択していただくとお客様情報の入力に進みます。
※会社の建築対応エリアによって、選択できないエリアがあります。
オンライン相談とは
- 1
住宅メーカーへ問合せ
「この会社へお問合せ」ボタンを押して、フォーム上で「オンライン相談を希望する」旨をご記入し送信します。
- 2
住宅メーカーと日程を調整
住宅メーカーから連絡が来たらオンライン相談の日程を調整して、予約完了。
- 3
相談方法のご確認
メールやSMS等にてオンライン相談の利用方法が届きますので、ご確認ください。
- 4
指定場所にアクセス
当日、予約時刻になったらご指定のビデオ通話につなぎ、ご相談ください。
利用時の注意事項
- ビデオ通話については各住宅メーカー指定のものとなります。
- ビデオ通話利用時には通信が発生します。従量課金制通信サービスや通信料に上限があるネット回線・プランを利用する場合は、通信量に注意してください。
- 通信速度やアプリの設定によってはビデオ通話の画質が低下することがあります。安定した画質で利用するためにも、Wi-Fi環境下での利用を推奨します。
- ご利用のビデオ通話アプリによっては、対象のOSやブラウザに制限がある場合があります。詳しくはお問合せ先住宅メーカーにご確認ください。

