
【2400万円台/41坪】インナーガレージのある和モダンのお家
お問合せ多数につき受付再開までお待ちください
施工事例データ
ご主人様の無骨な駐車スペースではなく「遊び心のあるガレージスペース」と「趣味の時間を過ごせる書斎」、奥様の「明るく回遊できる家事動線を確保したLDK」と「スペースを活用した充実した収納」というご希望にお応えした家ができました。庭の桜の木が見える開放的なLDKやインナーガレージといった見どころが多くあり、回遊できる動線や温かみのある自然素材はイチマルらしさが感じられる仕上がりになりました。
ご主人様の無骨な駐車スペースではなく「遊び心のあるガレージスペース」と「趣味の時間を過ごせる書斎」、奥様の「明るく回遊できる家事動線を確保したLDK」と「スペースを活用した充実した収納」というご希望にお応えした家ができました。庭の桜の木が見える開放的なLDKやインナーガレージといった見どころが多くあり、回遊できる動線や温かみのある自然素材はイチマルらしさが感じられる仕上がりになりました。
本体価格
坪単価
床面積
土地面積
間取り
工法
所在地
竣工年
家族構成
ペット
商品名
建築対応エリア
内観・外観画像(10件)

こだわりのインナーガレージ
1階部分は和風なサイディングを、2階部分はモルタルの塗り壁でクールな和モダンスタイルん外観に。ご主人様ご希望のインナーガレージの内側にもサイディングを使用し、ガレージの扉の開閉でも異なる印象を与えるのが特徴的です。

おしゃれな玄関
広々とした玄関は洗い出し仕上げで高級感のある印象がありつつも、ガレージにもつながっているためアウトドアな雰囲気が垣間見えるおしゃれな空間になっています。シューズボックス、シューズクロークを設置しているため普段使いする物と保管する物とを別に収納できるスペースを確保していて便利な設計です。

自然素材を感じられるくつろぎのリビング
床に無垢の杉材を使用し、構造梁現しによって天井高に余裕を感じられる広々としたLDKになっています。奥には畳スペースを設け、家族での時間を過ごすこともでき自然素材を感じながらゆったりとくつろぐことができる。丸型の窓は陽光を取り入れるだけでなく外から見える和のイメージを感じさせるアクセントにもなっています。

自然素材を感じられるくつろぎのリビング
キッチンからはリビングの様子がわかるため、家族の様子を見ることができて、家族のつながりを感じられるのもこのLDKのポイントのひとつです。奥様のご希望からリビングには大きめの窓を設置し、明るく優しい陽光を取り入れることもでき、庭の桜の木を眺められる配置になっているのも魅力的です。

収納充実のキッチン
キッチンの背面には充実した容量の収納を設置し、引き戸を設けることで中の物が見えない設計になっています。友人を招待した際などにはとッチンの背面には充実した容量の収納を設置し、引き戸を設けることで中の物が見えない設計になっています。友人を招待した際などには戸を閉めて生活感を抑えられるのも便利です。

家事ラク動線
キッチンから脱衣室までつながる家事ラク動線を確保している便利な間取りです。リビングを横目に子どもの様子を確認でき、必要な収納も動線上にあるため使い勝手の良い回遊動線になっています。

スタディコーナー
キッチンからの回遊動線上に半個室のスタディコーナーを設置し、デスクワークやリモートワークができるスペースになっています。キッチン同様に、こちらからもリビングの様子がわかり、落ち着いて仕事ができる空間です。

無垢材のやさしさを感じられる水回り
杉の無垢材を感じられる動線が水回りまで続いている回遊動線が魅力です。階段下を有効活用した収納スペースもあるため、備蓄品等を収納することができます。

和のテイストが漂うトイレ
お施主様がこだわった場所の一つがこのトイレです。家の外観が和で内装は洋。この個室に入ったときには再度和を感じられるようにしたいとの想いから、木のスタイリッシュなカウンターと手洗いを設置し、落ち着きのある和のテイストを取り入れた仕上がりに設計しました。

こだわりの書斎
ご主人様ご希望の書斎は掘りこたつ式に設計しました。L字型に設置してあるデスクではパソコン等を置いて、落ち着いて作業することができ、横側を可動棚にすることで収納する物に合わせて効率的にスペースを活用できるようにしています。また、座席下にも収納があるため、卓上を整理した状態で使用できるのも便利なポイントです。
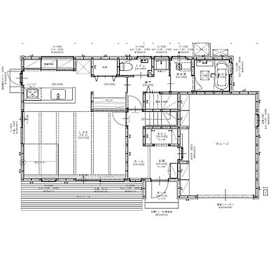
間取り図(2件)

1階にはお施主様ご希望のインナーガレージと家事ラク動線が叶う機能的な間取りに。

家族のくつろぎの時間を大事にする間取りになっています。
この会社の他の施工事例(9件)
この会社の他の情報
- モデルハウス・住宅展示場(0件)
- カタログ(7件)
- 画像(116件)
- 評判(0件)
- 住宅イベント(0件)
- こだわり・特長(18件)
- 店舗・営業所・支店(2件)
- スタッフへのインタビュー(0件)
お問合せ
メールでお問合せ
共有する
- お問合せ多数につき受付再開までお待ちください
建築対応エリア
| 岡山県 | 全域 |
|---|
建てたいエリアを教えてください
選択していただくとお客様情報の入力に進みます。
※会社の建築対応エリアによって、選択できないエリアがあります。
オンライン相談とは
- 1
住宅メーカーへ問合せ
「この会社へお問合せ」ボタンを押して、フォーム上で「オンライン相談を希望する」旨をご記入し送信します。
- 2
住宅メーカーと日程を調整
住宅メーカーから連絡が来たらオンライン相談の日程を調整して、予約完了。
- 3
相談方法のご確認
メールやSMS等にてオンライン相談の利用方法が届きますので、ご確認ください。
- 4
指定場所にアクセス
当日、予約時刻になったらご指定のビデオ通話につなぎ、ご相談ください。
利用時の注意事項
- ビデオ通話については各住宅メーカー指定のものとなります。
- ビデオ通話利用時には通信が発生します。従量課金制通信サービスや通信料に上限があるネット回線・プランを利用する場合は、通信量に注意してください。
- 通信速度やアプリの設定によってはビデオ通話の画質が低下することがあります。安定した画質で利用するためにも、Wi-Fi環境下での利用を推奨します。
- ご利用のビデオ通話アプリによっては、対象のOSやブラウザに制限がある場合があります。詳しくはお問合せ先住宅メーカーにご確認ください。











