
【36.5坪】こだわり造作家具と収納力のある和モダンの家
お問合せ多数につき受付再開までお待ちください
施工事例データ
和モダンなデザインにこだわった家が実現しました。外観の落ち着いた雰囲気や内観の細部にもそのこだわりが垣間見えます。オーダーメイドの家具によって、空間とのフィット感が高まり、機能性とデザイン性を兼ね備えた空間が演出されています。デザイン面のみならず、収納力も高く、様々な場所に多数の収納スペースが設けられており、無駄のない使い勝手の良い仕様になっています。
和モダンなデザインにこだわった家が実現しました。外観の落ち着いた雰囲気や内観の細部にもそのこだわりが垣間見えます。オーダーメイドの家具によって、空間とのフィット感が高まり、機能性とデザイン性を兼ね備えた空間が演出されています。デザイン面のみならず、収納力も高く、様々な場所に多数の収納スペースが設けられており、無駄のない使い勝手の良い仕様になっています。
本体価格
坪単価
床面積
土地面積
間取り
工法
所在地
竣工年
家族構成
ペット
商品名
建築対応エリア
内観・外観画像(10件)

こだわりの和モダン
落ち着いた雰囲気の外観で、ブラウンの塗り壁を基調として植栽との調和が取れた趣のある仕上がりになっています。和の印象がありながらも外観色やガルバリウム鋼板を採用した屋根がスタイリッシュさも演出している和モダンスタイルです。

高級感も感じられる和モダンな玄関
洗い出しを採用した玄関ポーチは塗り壁や天井の木目調との相性が良く、落ち着いた雰囲気を演出してくれます。全体的に、和風の要素を取り入れたポーチのデザインは、モダンなイメージともマッチしていて、高級感が感じられる玄関ポーチになっています。

便利な2WAY玄関
2WAY仕様の玄関を採用しました。シューズクロークに直接収納し、コートやカバンも収納できるハンガーパイプも設置して、スムーズな外出・帰宅をサポートします。来客時にはシューズクロークの扉を閉めることで生活感を消すことができるのも嬉しいポイントです。

無垢材たっぷりのリビング
タモの無垢床材を使用したリビングです。梁見せや造作家具の木材そのものが持つ独特な温かみのある風合いを感じられる落ち着いた空間になっています。南側の掃き出し窓からは柔らかな光彩が入り、リビングを優しく自然な明るさに保ってくれるのもポイントです。

便利なワークスペース
ダイニングの横にはワークスペースを設置し、テレワークや勉強などに使用できます。コンセントを複数設置しているので、パソコン・スマホなどの利用時にも便利な設計になっています。カウンターの上部には造作収納を設置し、収納量もあり広い用途で利用できます。

モダンな洗面台
サンワカンパニーの独立洗面台を採用し、鏡との間はタイルをあしらってモダンな雰囲気に仕上げています。ニッチを活用し、フェイスタオルを収納したり、小物を飾ったりと様々な活用方法ができるスペースを作りました。

キッチンも和モダンに
和のテイストを取り入れたモダンなデザインが特徴的なキッチンで、腰壁を木目調にすることでLDK全体を和モダンなデザインに統一しています。また、広めのシンクを設置し使い勝手が良い仕様です。キッチンの平面収納とフロアタイルがブラック系でまとめられていることでスタイリッシュさをプラスしているのも特徴です。

ホテルライクなトイレ
床や壁はグレーを基調とした清潔感のある色合いでホテルライクな雰囲気を感じるデザインに仕上げました。タンクレスのため、スリムでコンパクトな印象を与えます。窓から自然光を取り入れることで、トイレ内が明るく清潔感のある空間になっています。手洗器や造作のカウンターが高級感をより感じさせるデザインになっています。

2階は和モダンな洗面台を
2階にも洗面台を設置することで、忙しい朝でも効率よく身支度できます。丸型の鏡と大理石調のヘリンボーンテイストのタイルが和の雰囲気を感じさせる仕様になっています。洗面ボウルには、スタイリッシュな水栓が取り付けられているため、洗面スペース全体が和モダンな雰囲気に溢れています。

家事ラク動線
家事動線上にはキッチン横の家事コーナー・ファミリークローゼットがあり、洗濯・乾燥・収納がワンストップで行えるなど使い勝手のよい動線設計になっています。収納量も抜群で、家事効率をアップさせます。
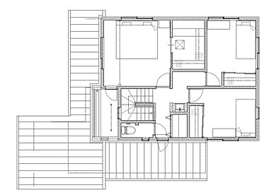
間取り図(2件)

帰宅後、大容量の2WAY玄関から洗面スペースを通ってLDKに入れる間取りなので、清潔に保つことができます。

2階はゆとりある寝室3部屋を完備し、落ち着いた時間を過ごすことができます。
この会社の他の施工事例(9件)
この会社の他の情報
- モデルハウス・住宅展示場(0件)
- カタログ(7件)
- 画像(116件)
- 評判(0件)
- 住宅イベント(0件)
- こだわり・特長(18件)
- 店舗・営業所・支店(2件)
- スタッフへのインタビュー(0件)
お問合せ
メールでお問合せ
共有する
- お問合せ多数につき受付再開までお待ちください
建築対応エリア
| 岡山県 | 全域 |
|---|
建てたいエリアを教えてください
選択していただくとお客様情報の入力に進みます。
※会社の建築対応エリアによって、選択できないエリアがあります。
オンライン相談とは
- 1
住宅メーカーへ問合せ
「この会社へお問合せ」ボタンを押して、フォーム上で「オンライン相談を希望する」旨をご記入し送信します。
- 2
住宅メーカーと日程を調整
住宅メーカーから連絡が来たらオンライン相談の日程を調整して、予約完了。
- 3
相談方法のご確認
メールやSMS等にてオンライン相談の利用方法が届きますので、ご確認ください。
- 4
指定場所にアクセス
当日、予約時刻になったらご指定のビデオ通話につなぎ、ご相談ください。
利用時の注意事項
- ビデオ通話については各住宅メーカー指定のものとなります。
- ビデオ通話利用時には通信が発生します。従量課金制通信サービスや通信料に上限があるネット回線・プランを利用する場合は、通信量に注意してください。
- 通信速度やアプリの設定によってはビデオ通話の画質が低下することがあります。安定した画質で利用するためにも、Wi-Fi環境下での利用を推奨します。
- ご利用のビデオ通話アプリによっては、対象のOSやブラウザに制限がある場合があります。詳しくはお問合せ先住宅メーカーにご確認ください。











