

デザイン性と機能性に優れた家
施工事例データ
ヘリンボーン柄のアクセントクロスやオークの床を採用し、目指したのはインダストリアルカフェスタイルの家。 デザイン性だけでなく使い勝手の良いキッチンや、洗面所へと直結する家事動線など、機能性にもこだわりました。
ヘリンボーン柄のアクセントクロスやオークの床を採用し、目指したのはインダストリアルカフェスタイルの家。 デザイン性だけでなく使い勝手の良いキッチンや、洗面所へと直結する家事動線など、機能性にもこだわりました。
本体価格
坪単価
床面積
土地面積
間取り
工法
所在地
竣工年
家族構成
ペット
商品名
建築対応エリア
家づくりのヒントとは

- 家づくりのアイディア
- イメージふくらむ写真
- 工法や技術
- 間取り・プラン実例
内観・外観画像(3件)

ヘリンボーン柄のアクセントクロスやオークの床を採用し、目指したのはインダストリアルカフェスタイルのLDK。

ブラックが印象的なキッチン&ダイニングスペース。 標準装備のキッチンは使い勝手が良く、食洗器などの機能も充実しています。

老後を考えて1階に設計された主寝室。 子ども達が巣立った後1階だけで生活が完結でき、永く安心して住み続けられるロングライフ設計住宅です。
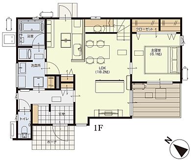
間取り図(2件)

1階平面図

2階平面図
家づくりのヒントとは

- 家づくりのアイディア
- イメージふくらむ写真
- 工法や技術
- 間取り・プラン実例
この会社の他の施工事例(2件)
この会社のおすすめカタログ

家づくり教科書
初めての家づくりでの「わからない」を解決してくれる教科書本です。
建てたいエリアを教えてください
選択していただくとお客様情報の入力に進みます。
※会社の建築対応エリアによって、選択できないエリアがあります。
この会社の他の情報
お問合せ
電話でお問合せ
音声案内に従い、
店舗番号8331を入力してください
※上記番号で通話できない場合は、0120-920-037におかけ直しください
※住み替えを検討されているお客様以外からのお問合わせはお断りしております
メールでお問合せ
家づくりのヒントとは

- 家づくりのアイディア
- イメージふくらむ写真
- 工法や技術
- 間取り・プラン実例
共有する
建築対応エリア
| 岡山県 | 岡山市北区、岡山市中区、岡山市東区、岡山市南区、倉敷市、玉野市、総社市、備前市、瀬戸内市、赤磐市、浅口市、和気郡和気町、都窪郡早島町、浅口郡里庄町、小田郡矢掛町、加賀郡吉備中央町 |
|---|
建てたいエリアを教えてください
選択していただくとお客様情報の入力に進みます。
※会社の建築対応エリアによって、選択できないエリアがあります。
オンライン相談とは
- 1
住宅メーカーへ問合せ
「この会社へお問合せ」ボタンを押して、フォーム上で「オンライン相談を希望する」旨をご記入し送信します。
- 2
住宅メーカーと日程を調整
住宅メーカーから連絡が来たらオンライン相談の日程を調整して、予約完了。
- 3
相談方法のご確認
メールやSMS等にてオンライン相談の利用方法が届きますので、ご確認ください。
- 4
指定場所にアクセス
当日、予約時刻になったらご指定のビデオ通話につなぎ、ご相談ください。
利用時の注意事項
- ビデオ通話については各住宅メーカー指定のものとなります。
- ビデオ通話利用時には通信が発生します。従量課金制通信サービスや通信料に上限があるネット回線・プランを利用する場合は、通信量に注意してください。
- 通信速度やアプリの設定によってはビデオ通話の画質が低下することがあります。安定した画質で利用するためにも、Wi-Fi環境下での利用を推奨します。
- ご利用のビデオ通話アプリによっては、対象のOSやブラウザに制限がある場合があります。詳しくはお問合せ先住宅メーカーにご確認ください。



