
風景を取り込むシカクの家
施工事例データ
シンプルな白のボックスに黒サッシでアクセントを。 リビング上部の吹き抜けが、開放感のある空間を生み出します。 フローリングにはアカシアの無垢材を採用し、あたたかみのある色合いに仕上がりました。 洗面台と玄関のベンチはシンプルハウスオリジナルとなっております。
シンプルな白のボックスに黒サッシでアクセントを。 リビング上部の吹き抜けが、開放感のある空間を生み出します。 フローリングにはアカシアの無垢材を採用し、あたたかみのある色合いに仕上がりました。 洗面台と玄関のベンチはシンプルハウスオリジナルとなっております。
本体価格
坪単価
床面積
土地面積
間取り
工法
所在地
竣工年
家族構成
ペット
商品名
建築対応エリア
家づくりのヒントとは

- 家づくりのアイディア
- イメージふくらむ写真
- 工法や技術
- 間取り・プラン実例
内観・外観画像(7件)

Facade
シンプルなボックスと白の佇まいに、外からの視線はオフし、中からは広がりをとらえる窓を計画。 季節を感じる緑が調和する外観。

Entrance
お気に入りを並べる飾り棚とベンチを造作した玄関です。 扉付きの収納ですっきりもキープ。

Living
表面の凸凹が味わいを生み出すハンドスクレイプ加工を施したアカシアの無垢床に、吹き抜けから届く光が美しさを演出。 大小で幅をそろえた窓や梁が、空間のアクセントに。 つながる和室をオープンにして、開放感のもとで家族の時間を過ごします。

Dining+Kitchen
使い勝手の良いカウンター型のダイニングキッチン。 グレーのアクセントクロスをあしらったキッチン腰壁がポイントに。

Walk in closet
角丸の垂れ壁奥に設けたウォークインクローゼットで、家族の衣類をまとめて収納。 北欧風クロスで気分もアップ。

Wash room
ブルーのタイルがアクセントの造作で仕上げた洗面台。

Toilet
ブルーグレイ×白の落ち着きと、光がインテリアの一部になる空間。
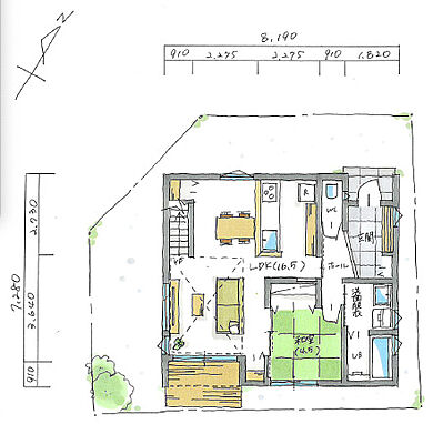
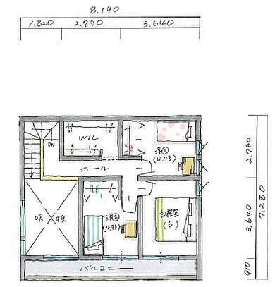
間取り図(2件)

リビングに設けた6.0帖の大きな吹き抜けがLDK全体を明るくし、 玄関からは直接LDKへ行ける動線と、和室へ行ける2つの動線を計画。来客があった際もすぐに対応できる、フレキシブルな間取りになっています。

洋室を3部屋計画し、家族全員が使いやすい位置にファミリークローゼットを3.0帖で計画。 階段を上がると吹き抜けを見下ろせる開放感のある間取り。
家づくりのヒントとは

- 家づくりのアイディア
- イメージふくらむ写真
- 工法や技術
- 間取り・プラン実例
この会社の他の施工事例(4件)
この会社の他の情報
- モデルハウス・住宅展示場(0件)
- カタログ(0件)
- 画像(78件)
- 評判(2件)
- 住宅イベント(0件)
- こだわり・特長(16件)
- 店舗・営業所・支店(2件)
- スタッフへのインタビュー(0件)
お問合せ
電話でお問合せ
音声案内に従い、
店舗番号7862を入力してください
※上記番号で通話できない場合は、0748-36-1808におかけ直しください
※住み替えを検討されているお客様以外からのお問合わせはお断りしております
メールでお問合せ
家づくりのヒントとは

- 家づくりのアイディア
- イメージふくらむ写真
- 工法や技術
- 間取り・プラン実例
共有する
他の「ローコスト住宅」の施工事例

施工事例
【一生健命の家づくり研究会】ヨガと暮らす サロン併設モダンガレージハウス|豊橋市
- 床面積
- 35.00坪(115.70㎡)
- 土地面積
- 43.00坪(142.14㎡)
- 竣工年
- 2024年
- 工法
- 木造軸組(在来)工法











施工事例
【ウェルズホーム】帰宅動線がスマートなシンプルモダンの家 ◆ 須賀川市 33坪
- 床面積
- 33.25坪(109.92㎡)
- 土地面積
- 48.24坪(162.80㎡)
- 竣工年
- 2024年
- 工法
- ツーバイフォー・ツーバイシックス工法
建築対応エリア
| 滋賀県 | 彦根市、長浜市、近江八幡市、甲賀市、東近江市、米原市、蒲生郡日野町、蒲生郡竜王町、愛知郡愛荘町、犬上郡豊郷町、犬上郡甲良町、犬上郡多賀町 |
|---|
建てたいエリアを教えてください
選択していただくとお客様情報の入力に進みます。
※会社の建築対応エリアによって、選択できないエリアがあります。
オンライン相談とは
- 1
住宅メーカーへ問合せ
「この会社へお問合せ」ボタンを押して、フォーム上で「オンライン相談を希望する」旨をご記入し送信します。
- 2
住宅メーカーと日程を調整
住宅メーカーから連絡が来たらオンライン相談の日程を調整して、予約完了。
- 3
相談方法のご確認
メールやSMS等にてオンライン相談の利用方法が届きますので、ご確認ください。
- 4
指定場所にアクセス
当日、予約時刻になったらご指定のビデオ通話につなぎ、ご相談ください。
利用時の注意事項
- ビデオ通話については各住宅メーカー指定のものとなります。
- ビデオ通話利用時には通信が発生します。従量課金制通信サービスや通信料に上限があるネット回線・プランを利用する場合は、通信量に注意してください。
- 通信速度やアプリの設定によってはビデオ通話の画質が低下することがあります。安定した画質で利用するためにも、Wi-Fi環境下での利用を推奨します。
- ご利用のビデオ通話アプリによっては、対象のOSやブラウザに制限がある場合があります。詳しくはお問合せ先住宅メーカーにご確認ください。






