

SPACIOUS HOME 開放感のある家
施工事例データ
築古の戸建てをスケルトンにし、再建築!2階建+地下+ロフトを全て室内階段で繋げ、4層のミルフィーユ住宅になりました。 1Fは水回り+リビングスペース。奥様のこだわりを詰めたリビングと設備は、見ごたえ十分! 2Fには、勾配天井の2ndリビングを設け、ヌックやボルダリング、ブランコ用フックをセット。 色々なクロスを使い、それぞれが楽しい空間になりました。
築古の戸建てをスケルトンにし、再建築!2階建+地下+ロフトを全て室内階段で繋げ、4層のミルフィーユ住宅になりました。 1Fは水回り+リビングスペース。奥様のこだわりを詰めたリビングと設備は、見ごたえ十分! 2Fには、勾配天井の2ndリビングを設け、ヌックやボルダリング、ブランコ用フックをセット。 色々なクロスを使い、それぞれが楽しい空間になりました。
本体価格
坪単価
床面積
土地面積
間取り
工法
所在地
竣工年
家族構成
ペット
商品名
建築対応エリア
家づくりのヒントとは

- 家づくりのアイディア
- イメージふくらむ写真
- 工法や技術
- 間取り・プラン実例
内観・外観画像(10件)

奥様のこだわりを詰めたリビング。 鉄骨造の住宅に、付け梁をし、室内窓も付いた、深呼吸したくなる空間です。

キッチンはアイランドタイプに。 白でまとめ明るく、おしゃれで開放的な空間に仕上がりました。

見た目もさることながら、使い勝手も抜群のキッチン。 作業スペースが広いのでご家族で並んでお料理が楽しめます。 収納もたっぷりでいつでもすっきりお使いいただけます。

リビングからつながる地下室は、物置…の予定から、リモートスペースに!? 尾籠可能なスペースは、集中したい時間にピッタリです。

他のお部屋とは雰囲気を変えてダークカラーでコーディネートした2ndリビングにはヌックやボルダリング、ブランコ用フックを設置。 読書好きなご家族が静と動を一緒に楽しめるスペースになりました。

2ndリビングから固定階段で行けるロフトも床を広げ、家族みんなの秘密基地に! 青空クロスを使った明るい仕上がりに。

家の顔になる玄関は天井が高く開放的。 その先に広がる空間を想像させます。

タンクレストイレを採用しすっきり明るく清潔感に溢れます。 掃除がしやすいのも嬉しいポイント。 グリーンと柄付きの壁紙を合わせた、個性が光るとっておきの空間です。

お洒落なオーバーヘッドシャワーを設置。 全身で一気にお湯を浴びることができ、あたたかくて浴び心地抜群。 浴室がより一層リラックスできる空間になりました。

洗面もまた、収納たっぷり。 サイドに窓を取り、明るい空間になりました。 朝の忙しい時間も快適に過ごせそう。
間取り図(3件)

生活動線を考えたつくり、地下室にも直接アクセスできます

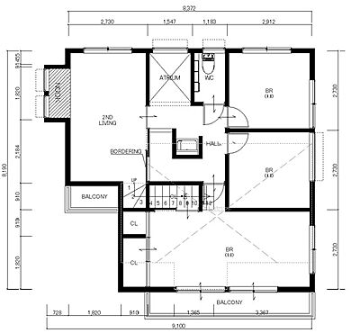
こだわりのセカンドリビングがある2F。主寝室は、9帖。無駄なスペースは一切ない間取りです

セカンドリビングから繋がるロフト。これは、写真と照らし合わせてほしい
家づくりのヒントとは

- 家づくりのアイディア
- イメージふくらむ写真
- 工法や技術
- 間取り・プラン実例
この会社の他の施工事例(37件)
この会社の他の情報
- モデルハウス・住宅展示場(0件)
- カタログ(0件)
- 画像(426件)
- 評判(1件)
- 住宅イベント(0件)
- こだわり・特長(33件)
- 店舗・営業所・支店(1件)
- スタッフへのインタビュー(0件)
お問合せ
電話でお問合せ
音声案内に従い、
店舗番号5097を入力してください
※上記番号で通話できない場合は、03-6303-2866におかけ直しください
※住み替えを検討されているお客様以外からのお問合わせはお断りしております
メールでお問合せ
家づくりのヒントとは

- 家づくりのアイディア
- イメージふくらむ写真
- 工法や技術
- 間取り・プラン実例
共有する
建築対応エリア
| 千葉県 | 市川市、船橋市、木更津市、市原市、君津市、富津市、浦安市、袖ケ浦市 |
|---|---|
| 東京都 | 全域 |
| 神奈川県 | 全域 |
建てたいエリアを教えてください
選択していただくとお客様情報の入力に進みます。
※会社の建築対応エリアによって、選択できないエリアがあります。
オンライン相談とは
- 1
住宅メーカーへ問合せ
「この会社へお問合せ」ボタンを押して、フォーム上で「オンライン相談を希望する」旨をご記入し送信します。
- 2
住宅メーカーと日程を調整
住宅メーカーから連絡が来たらオンライン相談の日程を調整して、予約完了。
- 3
相談方法のご確認
メールやSMS等にてオンライン相談の利用方法が届きますので、ご確認ください。
- 4
指定場所にアクセス
当日、予約時刻になったらご指定のビデオ通話につなぎ、ご相談ください。
利用時の注意事項
- ビデオ通話については各住宅メーカー指定のものとなります。
- ビデオ通話利用時には通信が発生します。従量課金制通信サービスや通信料に上限があるネット回線・プランを利用する場合は、通信量に注意してください。
- 通信速度やアプリの設定によってはビデオ通話の画質が低下することがあります。安定した画質で利用するためにも、Wi-Fi環境下での利用を推奨します。
- ご利用のビデオ通話アプリによっては、対象のOSやブラウザに制限がある場合があります。詳しくはお問合せ先住宅メーカーにご確認ください。







