

cafe' CALIFORNIA カフェ×カリフォルニアスタイル
施工事例データ
ブルーグレーのラップサイディングが目を引くカリフォルニアスタイルのデザイン。 南側に設けられた吹き抜けには、小窓を設置し、十分に自然光を取り入れ、カバードポーチと広い庭は、憩いの場所に。 ライトグレーを基調に、くすみ系カラーで統一したアクセントクロスにも注目ください。
ブルーグレーのラップサイディングが目を引くカリフォルニアスタイルのデザイン。 南側に設けられた吹き抜けには、小窓を設置し、十分に自然光を取り入れ、カバードポーチと広い庭は、憩いの場所に。 ライトグレーを基調に、くすみ系カラーで統一したアクセントクロスにも注目ください。
本体価格
坪単価
床面積
土地面積
間取り
工法
所在地
竣工年
家族構成
ペット
商品名
建築対応エリア
家づくりのヒントとは

- 家づくりのアイディア
- イメージふくらむ写真
- 工法や技術
- 間取り・プラン実例
内観・外観画像(10件)

吹き抜けが気持ちいい、開放的なLDK。 たっぷりの光が差し込む明るくあたたかい空間です。

人気のリビングイン階段を採用。 自然と家族の会話が増えコミュニケーションが広がります。

キッチン対面のカウンターを高めに設置し、カフェスタイルを演出。 ハイスツールが似合います。

背面にはカウンターをあえて備え付けず、自由に使い勝手の良いようにレイアウト出来るようデザインにしました。

キッチンの横にパントリーを設置。 可動式の棚で、しまうものに合わせて高さを変えられるので空間を無駄にする事なく収納出来ます。

洗面所は、広めの3帖。 室内干しにも対応! また、玄関からの動線も設け、すぐの手洗いが可能に。

シンプルにまとめ、清潔感が溢れます。 毎日何度も使う場所だからこそ、ほっと落ち着く空間に仕上げました。

チェックのアクセントクロスで遊び心をプラス。 ご家族皆さんの靴を収納しても余るほどの大容量です。

寝室にはかわいい照明をチョイス。 1日の疲れを癒すのにぴったりな落ち着く空間に仕上がりました。

WICも大容量! お洋服や鞄はもちろん、上部の棚にはご家族の思い出の品などもたっぷり収納可能。 お部屋をすっきり使うことができますね。
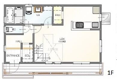
間取り図(2件)

生活動線重視の間取り。ウッドデッキへのアクセスも◎

吹抜けから振り分け式の間取り。子供部屋はも左右に振り分け。WICを有効に配置
家づくりのヒントとは

- 家づくりのアイディア
- イメージふくらむ写真
- 工法や技術
- 間取り・プラン実例
この会社の他の施工事例(37件)
この会社の他の情報
- モデルハウス・住宅展示場(0件)
- カタログ(0件)
- 画像(426件)
- 評判(1件)
- 住宅イベント(0件)
- こだわり・特長(33件)
- 店舗・営業所・支店(1件)
- スタッフへのインタビュー(0件)
お問合せ
電話でお問合せ
音声案内に従い、
店舗番号5097を入力してください
※上記番号で通話できない場合は、03-6303-2866におかけ直しください
※住み替えを検討されているお客様以外からのお問合わせはお断りしております
メールでお問合せ
家づくりのヒントとは

- 家づくりのアイディア
- イメージふくらむ写真
- 工法や技術
- 間取り・プラン実例
共有する
建築対応エリア
| 千葉県 | 市川市、船橋市、木更津市、市原市、君津市、富津市、浦安市、袖ケ浦市 |
|---|---|
| 東京都 | 全域 |
| 神奈川県 | 全域 |
建てたいエリアを教えてください
選択していただくとお客様情報の入力に進みます。
※会社の建築対応エリアによって、選択できないエリアがあります。
オンライン相談とは
- 1
住宅メーカーへ問合せ
「この会社へお問合せ」ボタンを押して、フォーム上で「オンライン相談を希望する」旨をご記入し送信します。
- 2
住宅メーカーと日程を調整
住宅メーカーから連絡が来たらオンライン相談の日程を調整して、予約完了。
- 3
相談方法のご確認
メールやSMS等にてオンライン相談の利用方法が届きますので、ご確認ください。
- 4
指定場所にアクセス
当日、予約時刻になったらご指定のビデオ通話につなぎ、ご相談ください。
利用時の注意事項
- ビデオ通話については各住宅メーカー指定のものとなります。
- ビデオ通話利用時には通信が発生します。従量課金制通信サービスや通信料に上限があるネット回線・プランを利用する場合は、通信量に注意してください。
- 通信速度やアプリの設定によってはビデオ通話の画質が低下することがあります。安定した画質で利用するためにも、Wi-Fi環境下での利用を推奨します。
- ご利用のビデオ通話アプリによっては、対象のOSやブラウザに制限がある場合があります。詳しくはお問合せ先住宅メーカーにご確認ください。







