

シンプルモダンな空間で、ゆったりとした時間が過ごせる住まい
施工事例データ
吹き抜けのリビングスペースは光にあふれています。リビングから開放的なタイル張りのテラスに続いて、オープンカフェのようなスペースになっています。玄関収納やウォークインクローゼットなど、家事楽な間取りです。
吹き抜けのリビングスペースは光にあふれています。リビングから開放的なタイル張りのテラスに続いて、オープンカフェのようなスペースになっています。玄関収納やウォークインクローゼットなど、家事楽な間取りです。
本体価格
坪単価
床面積
土地面積
間取り
工法
所在地
竣工年
家族構成
ペット
商品名
建築対応エリア
施工事例の特長
家づくりのヒントとは

- 家づくりのアイディア
- イメージふくらむ写真
- 工法や技術
- 間取り・プラン実例
内観・外観画像(10件)

大きな吹き抜けのリビングスペース。シンプルモダンな内装なので落ち着いた印象に。リビング階段は家族の気配がいつも感じられるのが良いですね。リビングの大きな掃き出し窓から日差しが差し込み、無垢床の温もりを感じられます。

造作カウンターはカフェのようにくつろいだり、お子様のスタディースペースとしても使えます。黒のスポットライトがオシャレですね!

キッチンの隣のユーティリティーは隙間時間にPC作業やアイロンがけ、ソーイングなどができて便利です。造作の棚は可動式なので、高さをカスタマイズできます。

キッチンはタカラスタンダードのキッチンでお手入れ楽ちん◎ユーティリティー⇔キッチン⇔洗面所が一直線なので移動がスムーズに。毎日の家事の時短に。

洋室の隣のウォークインクローゼットは建具を無しにして出入りがしやすいようにしました。1階の洋室は寝室や客間、趣味部屋や子供部屋として臨機応変に使っていただけます。

リビングから続くタイル張りのテラスにはテーブルチェアを置いて、オープンカフェのように使っていただけます。ブルーのガルバリウムはスタイリッシュな印象に。木目調のアクセントがおしゃれです。

玄関は無垢の床とそろえて玄関収納もWOOD ONEのピノアースにしました。アイアンのハンガーにはレインコートや上着などをかけられて便利◎「おかえり手洗い」を設置。帰ってきてすぐに手を洗えます。隣にはトイレがあり、トイレの手洗いと併用しています。

洗面脱衣室は可動棚を設置して、普段使いの衣類やタオル等をまとめて収納できます。収納スペースが多くたくさん収納できます。

1階に洋室を設けました。寝室や客間、趣味部屋や子供部屋として臨機応変に使用いただけます。ウォークインクローゼットも設置し、一階にもしっかり収納を確保。

子供部屋は可愛いアクセントクロスでお部屋の雰囲気を変えました。クローゼットは1.5帖と広めになっています。
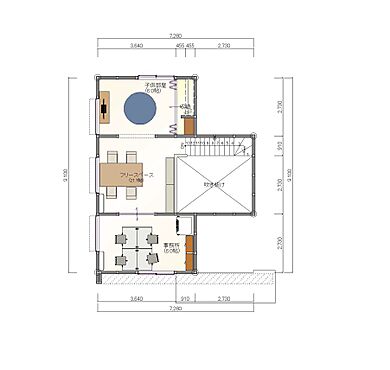
間取り図(2件)

1階間取図

2階間取図
家づくりのヒントとは

- 家づくりのアイディア
- イメージふくらむ写真
- 工法や技術
- 間取り・プラン実例
この会社の他の施工事例(30件)
この会社の他の情報
- カタログ(0件)
- 画像(374件)
- 住宅イベント(4件)
- 評判(7件)
- こだわり・特長(26件)
- 店舗・展示場・モデルハウス(1件)
- スタッフへのインタビュー(0件)
お問合せ
電話でお問合せ
音声案内に従い、
店舗番号5217を入力してください
※上記番号で通話できない場合は、0749-24-8810におかけ直しください
※住み替えを検討されているお客様以外からのお問合わせはお断りしております
メールでお問合せ
家づくりのヒントとは

- 家づくりのアイディア
- イメージふくらむ写真
- 工法や技術
- 間取り・プラン実例
共有する
他の「ローコスト住宅」の施工事例








施工事例
廿日市市 T様邸 カワイイをたくさん詰め込んだこだわりの住まい!
- 床面積
- 40.90坪(135.21㎡)
- 土地面積
- 59.60坪(197.03㎡)
- 竣工年
- 2022年
- 工法
- ツーバイフォー・ツーバイシックス工法

施工事例
【ウェルズホーム】暮らしやすさもデザインも洗練された家 ◆ 郡山市 31坪
- 床面積
- 31.87坪(105.35㎡)
- 土地面積
- 56.76坪(187.65㎡)
- 竣工年
- 2025年
- 工法
- ツーバイフォー・ツーバイシックス工法



建築対応エリア
| 三重県 | 亀山市、伊賀市 |
|---|---|
| 滋賀県 | 全域 |
| 京都府 | 京都市北区、京都市上京区、京都市左京区、京都市中京区、京都市東山区、京都市下京区、京都市南区、京都市右京区、京都市伏見区、京都市山科区、京都市西京区 |
建てたいエリアを教えてください
選択していただくとお客様情報の入力に進みます。
※会社の建築対応エリアによって、選択できないエリアがあります。
オンライン相談とは
- 1
住宅メーカーへ問合せ
「この会社へお問合せ」ボタンを押して、フォーム上で「オンライン相談を希望する」旨をご記入し送信します。
- 2
住宅メーカーと日程を調整
住宅メーカーから連絡が来たらオンライン相談の日程を調整して、予約完了。
- 3
相談方法のご確認
メールやSMS等にてオンライン相談の利用方法が届きますので、ご確認ください。
- 4
指定場所にアクセス
当日、予約時刻になったらご指定のビデオ通話につなぎ、ご相談ください。
利用時の注意事項
- ビデオ通話については各住宅メーカー指定のものとなります。
- ビデオ通話利用時には通信が発生します。従量課金制通信サービスや通信料に上限があるネット回線・プランを利用する場合は、通信量に注意してください。
- 通信速度やアプリの設定によってはビデオ通話の画質が低下することがあります。安定した画質で利用するためにも、Wi-Fi環境下での利用を推奨します。
- ご利用のビデオ通話アプリによっては、対象のOSやブラウザに制限がある場合があります。詳しくはお問合せ先住宅メーカーにご確認ください。







