

【プライベートガーデン付】スタイリッシュモダンなお家
施工事例データ
「日常とラグジュアリーの間」をテーマにした一邸。 非日常を感じられるホテルライクな印象を大切にしつつ、シンプルな空間と機能的な動線で、ラグジュアリーに寄り過ぎないバランスを意識◎ 設備やアクセントクロスはグレー系でまとめ、 ウォルナットの床材・家具を選び、モダンで落ち着いた雰囲気を演出しました。
「日常とラグジュアリーの間」をテーマにした一邸。 非日常を感じられるホテルライクな印象を大切にしつつ、シンプルな空間と機能的な動線で、ラグジュアリーに寄り過ぎないバランスを意識◎ 設備やアクセントクロスはグレー系でまとめ、 ウォルナットの床材・家具を選び、モダンで落ち着いた雰囲気を演出しました。
本体価格
坪単価
床面積
土地面積
間取り
工法
所在地
竣工年
家族構成
ペット
商品名
建築対応エリア
施工事例の特長
家づくりのヒントとは

- 家づくりのアイディア
- イメージふくらむ写真
- 工法や技術
- 間取り・プラン実例
内観・外観画像(10件)

リビングとダイニング・キッチンのエリアを分けたL字型LDKは、 リビングのコーナーに大型のソファを置くなど、インテリアの自由度が高い空間。 シンプルな空間を目指し、ペンダントライトなどは飾らず、ダウンライトですっきりコーディネートしています◎

広々としたリビングは、 グレー×ウォルナットカラーでコーディネートした、高級感のあるスタイリッシュモダンスタイル。 真鍮のような少しくすんだゴールドカラーやステンレスなどの金属製インテリアがよく映え、好みの小物を飾って自分らしくアレンジを楽しめます◎

高級感あふれるキッチンは、 玄関クロークから直接出入りができる動線◎ お買い物してきた食品や日用品を冷蔵庫とパントリーにサッと収納できてとっても便利。 キッチンに立っている時もリビングやダイニングの様子が見渡せるので、小さなお子様との暮らしも安心です◎

おしゃれな玄関クロークは、 靴だけでなく、アウター、ベビーカー、アウトドアグッズなど、様々なアイテムをまとめて収納できる大容量◎ 玄関は人感センサー照明とスマートキーを採用した多機能仕様で、快適な暮らしが叶います!

ホテルライクな世界観を演出する階段は、 スタイリッシュ×ミニマルなデザインが非日常気分を盛り上げます。 階段を通して降り注ぐ自然光がホール全体を明るく照らし、空間が広く開放的に感じられるのもポイントです◎

落ち着いた空間の主寝室には、 テレワークに重宝する、主寝室の一角に設けたカウンターコーナーを設置。 鏡とメイクBOXを置いてドレッサーに、就寝前の読書スペースにと、多彩な使い方ができるマルチな空間です。 主寝室の奥には3帖分の大型ウォークインクローゼットを用意◎

5.29帖の洋室を二間続きでレイアウト。 お子様が小さいうちは間仕切りなしのまま、オモチャを思いきり広げられる広いプレイルームとして使い、個室がほしい年ごろになったら2部屋に分けるなど、ライフスタイルの変化に合わせたカスタマイズが可能です◎

約4帖の広さがある洗面所は、 室内用物干し、収納棚、ハンガーパイプを完備し、ランドリールームとしての充実の機能も。 洗って干して、畳んで、収納と、お洗濯がこの空間だけで完結し、家事の負担を軽減できます◎

落ち着いた空間のお手洗いは、 塗り壁風のグレーのアクセントクロス、大理石調フロア、ペンダントライトで、大人っぽくラグジュアリーな雰囲気に。 壁にはトイレットペーパーが美しく納まるペーパーニッチを造作するなど、デザインと機能いずれにもこだわった空間です◎

LDKからの眺望とアクセスが叶うプライベートガーデン。 屋外用のテーブル&チェアを置いてアウトドアリビングとして使ったり、お家キャンプや家庭菜園を楽しんだり。 夏はお子様のプール遊びにも大活躍し、お外に出かけなくても自宅で楽しく過ごせます◎
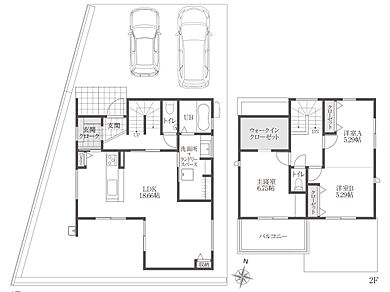
間取り図(1件)

駐車場を含めた、1階、2階の間取りです◎
家づくりのヒントとは

- 家づくりのアイディア
- イメージふくらむ写真
- 工法や技術
- 間取り・プラン実例
この会社の他の施工事例(79件)
この会社のおすすめカタログ

スタイルブック
デザインを楽しむ「定額制自由設計」住宅
建てたいエリアを教えてください
選択していただくとお客様情報の入力に進みます。
※会社の建築対応エリアによって、選択できないエリアがあります。

d.crossカタログ
デザインを楽しむ「定額制自由設計」住宅
建てたいエリアを教えてください
選択していただくとお客様情報の入力に進みます。
※会社の建築対応エリアによって、選択できないエリアがあります。

Life-size等身大の平屋カタログ【16坪~30坪】
定額制自由設計の平屋住宅【16坪~30坪】
建てたいエリアを教えてください
選択していただくとお客様情報の入力に進みます。
※会社の建築対応エリアによって、選択できないエリアがあります。
この会社の他の情報
お問合せ
電話でお問合せ
音声案内に従い、
店舗番号4592を入力してください
※上記番号で通話できない場合は、0566-53-7700におかけ直しください
※住み替えを検討されているお客様以外からのお問合わせはお断りしております
メールでお問合せ
家づくりのヒントとは

- 家づくりのアイディア
- イメージふくらむ写真
- 工法や技術
- 間取り・プラン実例
共有する
建築対応エリア
| 愛知県 | 名古屋市南区、名古屋市緑区、岡崎市、半田市、碧南市、刈谷市、豊田市、安城市、西尾市、蒲郡市、常滑市、東海市、大府市、知多市、知立市、高浜市、豊明市、日進市、みよし市、愛知郡東郷町、知多郡阿久比町、知多郡東浦町、知多郡武豊町、額田郡幸田町 |
|---|
建てたいエリアを教えてください
選択していただくとお客様情報の入力に進みます。
※会社の建築対応エリアによって、選択できないエリアがあります。
オンライン相談とは
- 1
住宅メーカーへ問合せ
「この会社へお問合せ」ボタンを押して、フォーム上で「オンライン相談を希望する」旨をご記入し送信します。
- 2
住宅メーカーと日程を調整
住宅メーカーから連絡が来たらオンライン相談の日程を調整して、予約完了。
- 3
相談方法のご確認
メールやSMS等にてオンライン相談の利用方法が届きますので、ご確認ください。
- 4
指定場所にアクセス
当日、予約時刻になったらご指定のビデオ通話につなぎ、ご相談ください。
利用時の注意事項
- ビデオ通話については各住宅メーカー指定のものとなります。
- ビデオ通話利用時には通信が発生します。従量課金制通信サービスや通信料に上限があるネット回線・プランを利用する場合は、通信量に注意してください。
- 通信速度やアプリの設定によってはビデオ通話の画質が低下することがあります。安定した画質で利用するためにも、Wi-Fi環境下での利用を推奨します。
- ご利用のビデオ通話アプリによっては、対象のOSやブラウザに制限がある場合があります。詳しくはお問合せ先住宅メーカーにご確認ください。







