

重厚感とナチュラルデザインを兼ね備えた邸宅
施工事例データ
深い軒が印象的な、高級感・重厚感溢れる外観デザインに、石と植栽が作り出すナチュラルなロックガーデンがマッチする、建物から外構までこだわり抜いた邸宅。
深い軒が印象的な、高級感・重厚感溢れる外観デザインに、石と植栽が作り出すナチュラルなロックガーデンがマッチする、建物から外構までこだわり抜いた邸宅。
本体価格
坪単価
床面積
土地面積
間取り
工法
所在地
竣工年
家族構成
ペット
商品名
建築対応エリア
施工事例の特長
家づくりのヒントとは

- 家づくりのアイディア
- イメージふくらむ写真
- 工法や技術
- 間取り・プラン実例
内観・外観画像(10件)

玄関ポーチ 玄関扉を出た先にも軒がしっかりとあり雨の日でも安心。

LDK。 落ち着きのあるナチュラルな色合いの内装材に、黒の建具やインテリアがアクセントになり、和モダンな雰囲気を演出。

黒のアクセントクロスの中でも一番濃い黒を使用し、締まりのあるデザインに。

キッチンもナチュラルなカラーにすることで、リビングダイニングとの一体感を演出。 フラットなデザインにすることで開放感も。

和室の小窓から植栽の緑が見え、くつろぎの空間に。

スッキリとしたデザインのトイレ。 空間の邪魔をしない位置に収納もあり、使いやすさも抜群。

玄関横、また、トイレの近くに洗面台を設置。 家族が使う洗面と別にすることで来客時も安心。

ウォークインクローゼット ご夫婦で使い分けのしやすい形。

タイルデッキ。 BBQやプールも楽しむことのできる広さのタイルデッキ。

夜の外観
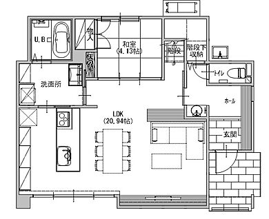
間取り図(2件)

1階間取り図

2階間取り図
家づくりのヒントとは

- 家づくりのアイディア
- イメージふくらむ写真
- 工法や技術
- 間取り・プラン実例
この会社の他の施工事例(14件)
この会社のおすすめカタログ

LEGAGE
LEGAGE:結ぶ、つなぐの意~プレミアムブランド~
建てたいエリアを教えてください
選択していただくとお客様情報の入力に進みます。
※会社の建築対応エリアによって、選択できないエリアがあります。

東宝ホーム株式会社『STYLE CATALOGUE』
建築家があなたの夢をカタチにします。
建てたいエリアを教えてください
選択していただくとお客様情報の入力に進みます。
※会社の建築対応エリアによって、選択できないエリアがあります。

東宝ホーム株式会社『会社案内』
家族が健康で永く住める家とアフターサービスで、お客様の満足度を高める。
建てたいエリアを教えてください
選択していただくとお客様情報の入力に進みます。
※会社の建築対応エリアによって、選択できないエリアがあります。
この会社の他の情報
- カタログ(6件)
- 画像(161件)
- 住宅イベント(1件)
- 評判(4件)
- こだわり・特長(27件)
- 店舗・展示場・モデルハウス(1件)
- スタッフへのインタビュー(0件)
お問合せ
電話でお問合せ
音声案内に従い、
店舗番号1062を入力してください
※上記番号で通話できない場合は、096-377-8600におかけ直しください
※住み替えを検討されているお客様以外からのお問合わせはお断りしております
メールでお問合せ
家づくりのヒントとは

- 家づくりのアイディア
- イメージふくらむ写真
- 工法や技術
- 間取り・プラン実例
共有する
他の「平屋住宅」の施工事例
建築対応エリア
| 熊本県 | 全域 |
|---|
建てたいエリアを教えてください
選択していただくとお客様情報の入力に進みます。
※会社の建築対応エリアによって、選択できないエリアがあります。
オンライン相談とは
- 1
住宅メーカーへ問合せ
「この会社へお問合せ」ボタンを押して、フォーム上で「オンライン相談を希望する」旨をご記入し送信します。
- 2
住宅メーカーと日程を調整
住宅メーカーから連絡が来たらオンライン相談の日程を調整して、予約完了。
- 3
相談方法のご確認
メールやSMS等にてオンライン相談の利用方法が届きますので、ご確認ください。
- 4
指定場所にアクセス
当日、予約時刻になったらご指定のビデオ通話につなぎ、ご相談ください。
利用時の注意事項
- ビデオ通話については各住宅メーカー指定のものとなります。
- ビデオ通話利用時には通信が発生します。従量課金制通信サービスや通信料に上限があるネット回線・プランを利用する場合は、通信量に注意してください。
- 通信速度やアプリの設定によってはビデオ通話の画質が低下することがあります。安定した画質で利用するためにも、Wi-Fi環境下での利用を推奨します。
- ご利用のビデオ通話アプリによっては、対象のOSやブラウザに制限がある場合があります。詳しくはお問合せ先住宅メーカーにご確認ください。



















