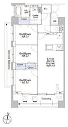
不動産・住宅情報サイトLIFULL HOME'S>賃貸>関東>東京都>東京23区>大田区>池上駅>池上駅の賃貸「宅配ボックス付き物件」物件一覧

不動産・住宅情報サイトLIFULL HOME'S>おすすめ特集>宅配ボックス付き物件>東京都>東京23区>大田区>池上駅の賃貸「宅配ボックス付き物件」物件一覧

条件を変更する

「オンライン内見」「オンライン相談」「IT重説」とは?

物件の内見や不動産会社スタッフとの相談、契約前の重要事項説明をオンライン(ビデオ通話)で行うことができるサービスです。

オンライン内見
ビデオ通話で現地(物件)にいる不動産会社スタッフと映像・音声を使ってリアルタイムで会話しながら内見ができます。
オンライン相談
「物件について聞きたいことがある」など不動産会社スタッフへの相談もビデオ通話で行うことができます。
IT重説
契約前の重要事項説明(重説)をビデオ通話で行うことができます。

条件を削除すると新着お知らせメールの
配信が停止されますがよろしいですか?