LIFULL HOME'Sは物件鮮度No.1!※評価について
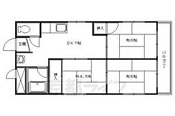
ハイツ油小路(4階/401/3DK/50m²)
ハイツ油小路(4階/401/3DK/50m²)
8万円/管理費等3,000円
2026/04/11 更新
画像一覧
1/30間取り
間取
2/30外観
3/30外観
4/30リビング/ダイニング
5/30リビング/ダイニング
6/30リビング/ダイニング
7/30リビング/ダイニング
8/30リビング/ダイニング
9/30リビング/ダイニング
10/30キッチン
11/30キッチン
12/30キッチン
13/30キッチン
14/30キッチン
15/30浴室
16/30トイレ
17/30洗面
18/30洗面
19/30収納
20/30設備
21/30設備
22/30設備
23/30設備
24/30玄関
25/30バルコニー
26/30バルコニー
27/30その他
28/30その他
29/30その他
30/30周辺
ローソン丸太町小川店まで89m 府庁近くのローソン。もちろん24時間営業で便利。
間取り
外観
外観
リビング/ダイニング
リビング/ダイニング
リビング/ダイニング
リビング/ダイニング
リビング/ダイニング
リビング/ダイニング
キッチン
キッチン
キッチン
キッチン
キッチン
浴室
トイレ
洗面
洗面
収納
設備
設備
設備
設備
玄関
バルコニー
バルコニー
その他
その他
その他
周辺
1〜4月は引越しシーズンのピークです。お問合せはお早めに!
仲介手数料割引
仲介手数料が家賃の半月分(外税)です。
- 利用条件
- 株式会社京都ライフ 北山店で利用可
- 他特典との併用可
- ・法人契約、事業用物件は除く。 ・積水ハウス、大東建託の管理物件は除く。
利用方法
来店時に本特典の画面をスマートフォンやタブレットでスタッフに提示、または画面印刷した用紙を提示ください。
有効期限 なし
台所広いです キッチン広めガス2口コンロ設置可能。
基本情報
不動産用語- 賃料
- 8万円
- 管理費等
- 3,000円
初期費用などお気軽にお問合せください
- 敷金/礼金
- 8万円/8万円
- 保証金/敷引・償却金
- -/-
- 交通
京都市営烏丸線 丸太町駅 徒歩7分
京都市営烏丸線 烏丸御池駅 徒歩15分
- 所在地
京都府京都市中京区竹屋町通油小路東入大文字町
地図を見る- 築年月
- 1983年1月(築44年)
- 主要採光面
- 東
- 専有面積
- 50㎡
- バルコニー面積
- -
- 所在階/階数
- 4階/4階建
- 現況
- 空家
- 入居可能時期
- 即時

人気物件はすぐに埋まってしまいます。
気になったらお早めにお問合せください。
- 情報公開日
2026/04/11
4日前 公開
- 情報更新日
2026/04/11
4日前 更新
- 次回更新
予定日 - 2026/04/25
物件のこだわり/設備・条件
新築(非該当)
2階以上の物件(該当)
南向き(非該当)
駐車場(非該当)
オートロック(非該当)
エアコン(該当)
バス・トイレ別(該当)
追焚機能(非該当)
フローリング(該当)
ペット相談(非該当)
入居条件
即入居可キッチン/バス・トイレ
設備・サービス
エアコン、CATV、光ファイバー、公営水道、都市ガス、下水、フローリング、バルコニー、駐輪場ありその他
住まい探し特典あり備考
地下鉄丸太町駅まで徒歩7分の3DKマンションです。嬉しい3点セパレートなど充実の設備。コンビニ、スーパー、ドラッグストアなど近くにあって便利ですよ。光ファイバー対応しています。 物件情報はもちろん京都のエリア情報まで幅広く対応させていただきます!
物件周辺の生活情報
学校
- 御所南小学校(1,000m)
- 京都御池中学校(1,100m)
買い物
- コンビニ(89m)
- スーパー(309m)
- ドラッグストア(798m)
その他施設
- 総合病院(307m)
- 銀行(109m)
- 京都下立売堀川郵便局(257m)
交通
- 京都市営烏丸線 丸太町駅 徒歩7分
- 普通(停車)
- 急行(停車)
- 京都市営烏丸線 烏丸御池駅 徒歩15分
- 普通(停車)
- 急行(停車)
※急行等の停車駅情報について
急行等の停車駅に関するデータは、随時更新をしておりますが、最新の内容であることを保証するものではありません。
最新かつ正確な情報につきましては、各鉄道会社のウェブサイトにてご確認ください
物件周辺の口コミ
- 京都府京都市上京区武者小路通室町東入に住む人の口コミ30代女性
交通の便がよい。子育て環境がよい(校区がよい)。地域が密着していて、安心できる。
口コミを見る
この物件周辺に住む人の口コミ
口コミは、LIFULL HOME'Sが実際にこの物件の周辺に住む18歳~69歳の男女を対象に、WEBアンケート調査を実施しています。内容には回答者の主観的な表現が含まれる場合があるほか、事実と異なる場合もございます。ご了承ください。
- 京都府京都市上京区武者小路通室町東入に住む人の口コミ30代女性
- 交通の便がよい。子育て環境がよい(校区がよい)。地域が密着していて、安心できる。
- 京都府京都市上京区武者小路通小川東入に住む人の口コミ50代女性
- 駅に近く買い物も便利。役所も近い。繁華街までも自転車で行ける
- 京都府京都市上京区椹木町通智恵光院上る西入に住む人の口コミ40代男性
- 地域の繋がりがあるが、地元出身者だけの繋がりじゃない。保育園、小中学校も徒歩で5分圏内。スーパーやコンビニも徒歩圏内で充実。二条城があるので景観も治安も良いから。
- 京都府京都市上京区浄福寺通丸太町上る西入に住む人の口コミ60代女性
- 時々暴走族が走っている。高級感のあるおしゃれな店が家の近くにない。
- 京都府京都市上京区松屋町通丸太町下る2筋目西入に住む人の口コミ60代男性
- 歴史的な建造物の近くなので借景できて良い。ただし観光客が多く迷惑することもある。
- 京都府京都市上京区智恵光院通中立売下るに住む人の口コミ40代女性
- 買い物や移動手段などが充実しているという点では満足している。ただ自然や子どもが外で遊べる空間は少なく町全体に閉塞感がある。
- 京都府京都市上京区葭屋町通出水上るに住む人の口コミ40代女性
- 治安が良く夜でも子どもだけでも外で歩けるところや日常の買い物ができるスーパーもある点は満足している。小さい公園はあるが、ボールを使えなかったりするので、子どもの遊び場所としてはあまり満足ではない。
- 京都府京都市中京区竹屋町通東洞院東入に住む人の口コミ40代女性
- 買い物のスーパーが少し少ない以外全ての生活するにおいて大変満足してます
- 京都府京都市上京区堀川通寺之内下るに住む人の口コミ50代女性
- ペットを散歩させているかたのマナーがあまりよくなくので、歩道などあまりきれいではない。
- 京都府京都市中京区小川通丸太町上るに住む人の口コミ40代女性
- 適度に都会で、交通も便利で、住むのに不満がないが、車通りが多いので、少しうるさい。
物件概要
- 建物構造
- RC(鉄筋コンクリート)
- 駐車場
- 無
- 総戸数
- 12戸
- 契約形態
- -
- 契約期間
- 2年間
- 更新料
- 新賃料の1ヶ月分
- その他費用
- 水道代:3,000円、書類代:20,000円
- 保証会社
- -
- 住宅保険
- 要
- 管理
- 管理員:巡回
- LIFULL HOME'S
物件番号 - 0119809-0239855
- 自社管理番号
- 01329-401-13
- 取引態様
- 仲介
- 会社名
- 株式会社京都ライフ 北山店
営業スタッフコメント

株式会社京都ライフ 北山店営業
松野
花道だけ歩こう
業界経験1年
資格少額短期保険募集人
- 会社実績や特徴・サービス情報
- 地下鉄烏丸線沿線を中心に京都市内全域のお部屋探しは京都ライフ北山店へお任せください。ファミリー様向き物件、社会人様向きのお部屋はもちろん各大学の学生様向き物件も多数ございます。京都大学、同志社大学、同志社女子大学、京都産業大学、大谷大学、立命館大学、京都府立大学、ノートルダム女子大学の学生さんは当店までご相談ください。 当店では居住用物件個人契約の仲介手数料は家賃の半月分(外税)です。※一部物件を除く
地下鉄烏丸線沿線を中心に京都市内全域のお部屋探しは京都ライフ北山店へお任せください。ファミリー様向き物件、社会人様向きのお部屋はもちろん各大学の学生様向き物件も多数ございます。京都大学、同志社大学、同志社女子大学、京都産業大学、大谷大学、立命館大学、京都府立大学、ノートルダム女子大学の学生さんは当店までご相談ください。 当店では居住用物件個人契約の仲介手数料は家賃の半月分(外税)です。※一部物件を除く
- 電話でお問合せ(通話無料)
お問合せ先 :株式会社京都ライフ 北山店
不動産会社情報
株式会社京都ライフ 北山店京都ライフ北山店

京都府京都市北区上賀茂岩ケ垣内町98−2
京都市営烏丸線 北山駅 徒歩1分
- 営業時間
- 09:30~19:00
- 定休日
- 年中無休(盆・正月を除く)
優良店認定
地下鉄烏丸線「北山」から徒歩1分。キッズスペースも備えた明るく綺麗な店内で、ゆっくりとお部屋探ししていただけます。活気あふれるスタッフが皆様のご来店をお待ちしています。
- 店舗の特徴
- 賃貸管理業務
- 24時間管理物件取扱い
- リフォーム対応
- 引越し業者紹介可
- 年中無休
- 系列店舗での対応可
- 保証人不要な物件あり
- 法人契約取扱い
- 駅から歩いて3分以内
電話でお問合せお客様の電話番号は不動産会社には通知されません
- 不動産会社に
つながります
お客様の電話番号は不動産会社に通知されません
- ※光IP電話、及びIP電話からはご利用になれません
- ※お電話によるお問合せは、店舗営業時間内にお願いします。つながらない場合は、お問合せフォームよりお問合せください
- ※不動産会社がお電話に出られなかった場合、お問合せいただいた後に不動産会社より折り返しのお電話がある場合がございます(お客様が非通知設定した場合は対象外です)
- ※株式会社LIFULLは電話会社が提供するサービスを介してお客様の発信者番号を受領後、折り返し専用の電話番号を発番してお問合せの不動産会社に通知します(お客様の発信者番号がお問合せの不動産会社に通知されることはございません)
- ※携帯電話からお問合せいただいた方に対し、株式会社LIFULLは電話会社が提供するメッセ―ジサービスを介してお客様の発信者番号を受領後、ショートメッセージ(SMS)またはLINE通知メッセージによるお問合せ内容に関する通知をお届けする場合があります
- ※お客様が通話中に不動産会社にお伝えになったお客様の個人情報及び、電話会社が発番する折り返し専用の電話番号は、お問合せ先不動産会社が資料送付・電子メール送信・電話連絡などの目的で保管する可能性があります。お問合せ先不動産会社が保管する個人情報の取扱いについては、各不動産会社に直接お問合せください
- ※株式会社LIFULLでは本サービスを円滑に運用するために、お客様の発信者番号をサービスご利用の控えとして一定期間保管いたします
- ※上記および株式会社LIFULLの個人情報の取扱い方針に同意のうえ、お電話ください
【LIFULL HOME'S物件番号】0119809-0239855【自社管理番号】01329-401-13
オンライン対応
オンライン内見・オンライン相談・IT重説に対応している物件です

「オンライン内見」「オンライン相談」「IT重説」とは?
物件の内見や不動産会社スタッフとの相談、契約前の重要事項説明をオンライン(ビデオ通話)で行うことができるサービスです。
オンライン内見
ビデオ通話で現地(物件)にいる不動産会社スタッフと映像・音声を使ってリアルタイムで会話しながら内見ができます。
オンライン相談
「物件について聞きたいことがある」など不動産会社スタッフへの相談もビデオ通話で行うことができます。
IT重説
契約前の重要事項説明(重説)をビデオ通話で行うことができます。
利用時の注意事項
- ビデオ通話については各不動産会社指定のものとなります。
- ビデオ通話利用時には通信が発生します。従量課金制通信サービスや通信量に上限があるネット回線・プランを利用する場合は、通信量にご注意ください。
- 通信速度やアプリの設定によってはビデオ通話の画質が低下することがあります。安定した画質で利用するためにも、Wi-Fi環境下での利用を推奨します。
- ご利用のビデオ通話アプリによっては、対象のOSやブラウザに制限がある場合があります。詳しくはお問合せ先不動産会社にご確認ください。
初期費用・月額費用をあわせて確認!この物件に住んだときの費用めやす
めやすを見るこの物件に住んだときの費用めやす
- 初期費用
- 月額費用
- 追加費用※ご確認ください
追加で費用が
かかる場合があります
必ずご確認ください
初期費用めやす約0円
追加で費用がかかります(※)敷金
80,000
- 礼金
80,000
賃料+共益費・管理費の1ヶ月分として換算
賃料の1ヶ月分+税として換算。不動産会社によって金額が異なるため正確な金額は不動産会社にお問合せください
※追加費用もチェック!
これらの項目以外にも費用がかかる場合があります。正確な金額は不動産会社にお問合せください。
- 初期費用
- 鍵交換費:不動産会社に要確認
- 室内清掃費:不動産会社に要確認
- 火災保険費:不動産会社に要確認
- その他
- 水道代:3000円
- 書類代:20000円
- 保証会社
- 不動産会社に要確認
不動産会社より
台所広いです キッチン広めガス2口コンロ設置可能。
地下鉄丸太町駅まで徒歩7分の3DKマンションです。嬉しい3点セパレートなど充実の設備。コンビニ、スーパー、ドラッグストアなど近くにあって便利ですよ。光ファイバー対応しています。 物件情報はもちろん京都のエリア情報まで幅広く対応させていただきます!
- 保存する
- 共有する
- ※各種情報と現状に差異がある場合は、現状優先となります
- ※不動産会社が入力した情報を基に物件の位置を表示しています。詳しくは不動産会社までお問合せください
- ※不動産会社の方からの上記電話番号によるお問合せはお断りしております。こちら不動産会社詳細からお問合せください
- ※LIFULL HOME'Sは物件鮮度No.1を目指していきます。閲覧中の物件が「成約済である」「実際の物件情報と異なる点がある」などの場合、「掲載110番」からお問合せください
- ※QRコードは株式会社デンソーウェーブの登録商標です
したい暮らしのタグから探す
同じ建物の他の部屋
LIFULL HOME'S 地図・周辺情報
買い物
- ローソン 丸太町小川店
- デイリーカナートイズミヤ 堀川丸太町店
- ココカラファインプラスイズミヤ堀川丸太町店
- セブンイレブン 堀川丸太町店
- Seriaイズミヤ堀川丸太町店
グルメ
- 餃子の王将 府庁前店
- モスバーガー イズミヤ堀川丸太町店
- CoCo壱番屋 堀川丸太町店
- マクドナルド 烏丸丸太町店
- すき家 烏丸丸太町店
育児・教育
- ひまわり幼稚園
- 京都市立二条城北小学校
- 私立平安女学院中学校
- こぐま保育園
- 京都市立新町小学校
医療
- 京都第二赤十字病院
- 医療法人毛利病院
- 医療法人財団足立病院
- 医療法人愛寿会同仁病院
- 医療法人知音会京都新町病院
公共施設・郵便局
- 京都府庁前郵便局
- 京都市こどもみらい館子育て図書館
- 京都府警察本部
- 京都大宮丸太町郵便局
- 京都市中央図書館
公園
- 梅屋広場公園
- 京都御苑
- 光徳公園
- 船岡山公園
- 岡崎公園
利用可能な駅
- 徒歩10分以内
京都市営烏丸線
- 丸太町駅徒歩7分
- すべての駅
京都市営烏丸線
- 烏丸御池駅徒歩15分
- 周辺情報は2023年07月21日時点のものになります。
- 周辺情報は、参考情報としてのみご利用ください(周辺情報は、株式会社LIFULLが地図情報の提供事業者から提供を受けた情報とLIFULL HOME'Sの物件情報に基づき、独自の方法で抽出し提供しているものです。周辺情報は、移転や閉鎖等により情報が最新ではない、または正しくない場合がありますが、地図情報の提供事業者から提供された情報をそのまま周辺情報として表示しているため、正確かつ最新の情報へ修正することができないことがあります。)
- 周辺情報は、株式会社LIFULLが掲載するものであり、不動産物件情報を掲載している不動産会社が掲載するものではありません
- 交通情報の一部については、株式会社LIFULLが掲載するものであり、不動産物件情報を掲載している不動産会社が掲載するものではない場合があります。交通情報に関する質問などは株式会社LIFULLにお問合せください







