LIFULL HOME'Sは物件鮮度No.1!※評価について
京都市営烏丸線 烏丸御池駅 徒歩8分1K/39.6㎡
京都市営烏丸線 烏丸御池駅 徒歩8分1K/39.6㎡
9.6万円/管理費等6,000円
4時間前 更新
画像一覧
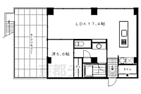
1/30間取り
間取
2/30外観
3/30外観
4/30リビング/ダイニング
5/30リビング/ダイニング
6/30リビング/ダイニング
7/30リビング/ダイニング
8/30リビング/ダイニング
9/30キッチン
10/30キッチン
11/30キッチン
12/30キッチン
13/30浴室
14/30浴室
15/30トイレ
16/30洗面
17/30収納
18/30収納
19/30収納
20/30設備
21/30設備
22/30設備
23/30設備
24/30玄関
25/30バルコニー
26/30バルコニー
27/30その他
28/30その他
29/30その他
30/30周辺
京都西洞院三条郵便局まで173m 西洞院の郵便局です
間取り
外観
外観
リビング/ダイニング
リビング/ダイニング
リビング/ダイニング
リビング/ダイニング
リビング/ダイニング
キッチン
キッチン
キッチン
キッチン
浴室
浴室
トイレ
洗面
収納
収納
収納
設備
設備
設備
設備
玄関
バルコニー
バルコニー
その他
その他
その他
周辺
仲介手数料割引
仲介手数料が家賃の半月分(外税)です。
- 利用条件
- 株式会社京都ライフ 北大路店で利用可
- 他特典との併用可
- ・法人契約、事業用物件は除く。 ・積水ハウス、大東建託の管理物件は除く。
利用方法
来店時に本特典の画面をスマートフォンやタブレットでスタッフに提示、または画面印刷した用紙を提示ください。
有効期限 なし
デザイナーズ 8タイプ有 デザイナーズマンション仕様
基本情報
不動産用語- 賃料
- 9.6万円
- 管理費等
- 6,000円
初期費用などお気軽にお問合せください
物件のこだわり/設備・条件
新築(非該当)
2階以上の物件(該当)
南向き(非該当)
駐車場(非該当)
オートロック(該当)
エアコン(該当)
バス・トイレ別(該当)
追焚機能(非該当)
フローリング(該当)
ペット相談(非該当)
位置
角部屋入居条件
事務所可(SOHO向け)、二人入居可、即入居可キッチン/バス・トイレ
設備・サービス
オートロック、防犯カメラ、TVモニタ付インターホン、エアコン、シューズボックス、CS対応、BS対応、光ファイバー、公営水道、都市ガス、下水、フローリング、バルコニー、室内洗濯機置場、エレベーター、ゴミ出し24時間OK、宅配ボックス、駐輪場ありその他
リノベーション物件、デザイナーズ、住まい探し特典あり
リノベーション
- 施工内容
2007年11月 実施
全面リノベーション物件
物件周辺の生活情報
学校
- 高倉小学校(849m)
- 京都御池中学校(1,000m)
買い物
- コンビニ(193m)
- スーパー(359m)
その他施設
- 総合病院(1,100m)
- 銀行(215m)
- 京都西洞院三条郵便局(173m)
交通
- 京都市営烏丸線 烏丸御池駅 徒歩8分
- 普通(停車)
- 急行(停車)
- 京都地下鉄東西線 二条城前駅 徒歩4分
- 普通(停車)
※急行等の停車駅情報について
急行等の停車駅に関するデータは、随時更新をしておりますが、最新の内容であることを保証するものではありません。
最新かつ正確な情報につきましては、各鉄道会社のウェブサイトにてご確認ください
物件周辺の口コミ
- 京都府京都市中京区押小路通小川東入に住む人の口コミ30代女性
近くに必要なものは一通り揃えられる店があることや、交通の便が良いこと、清潔感があること。
口コミを見る
この物件周辺に住む人の口コミ
口コミは、LIFULL HOME'Sが実際にこの物件の周辺に住む18歳~69歳の男女を対象に、WEBアンケート調査を実施しています。内容には回答者の主観的な表現が含まれる場合があるほか、事実と異なる場合もございます。ご了承ください。
- 京都府京都市中京区押小路通小川東入に住む人の口コミ30代女性
- 近くに必要なものは一通り揃えられる店があることや、交通の便が良いこと、清潔感があること。
- 京都府京都市上京区元誓願寺通大宮東入に住む人の口コミ20代女性
- 道が狭く、また一方通行の道路で車がものすごいスピードを出していて危ない。
- 京都府京都市上京区猪熊通下立売上るに住む人の口コミ30代男性
- 今までこの街で暮らしてきて不自由を感じてこなかった点とこれから一生涯この街で暮らしても不自由を感じないだろうと思う点から満足しています。
- 京都府京都市中京区釜座通丸太町上るに住む人の口コミ30代男性
- 京都一住みやすい町に選ばれているだけあり、交通の便、飲食店が充実しており、また、その一方で近くに鴨川等自然も豊富である。
- 京都府京都市中京区竹屋町通西洞院東入に住む人の口コミ30代女性
- 歴史と伝統の街。町衆のつながりもあって安心感がある。またすぐ近所には京都御苑があり、まるでニューヨークのセントラルパークのような市民の憩いの場所となっている。
- 京都府京都市中京区押小路通東洞院東入に住む人の口コミ30代男性
- 交通の便が良いオフィス街だが、遊ぶ施設は少ない為、駅付近でも割と静か。治安も良い。
- 京都府京都市中京区油小路通竹屋町下る西入に住む人の口コミ20代女性
- 近くに住んでいる人の騒音がうるさいので、それが無ければ満足している。
- 京都府京都市中京区二条通新町西入に住む人の口コミ20代男性
- もともと生まれ育った街であるし、家から駅は近く交通の便はよい。文化財も近隣におおくある。
- 京都府京都市中京区丸太町通西洞院西入に住む人の口コミ30代女性
- 駅から徒歩五分以内ではないが、スーパーやクリーニング店など生活に必要な施設が徒歩圏内で、比較的治安がよく、観光客も多くなく静かであり、住みやすいから。
- 京都府京都市中京区新町通御池下るに住む人の口コミ20代女性
- 交通の便も良くスーパー、コンビニ、薬局も近くにあり非常に住みやすい
物件概要
- 建物構造
- RC(鉄筋コンクリート)
- 駐車場
- 近隣 30,800円(税込) 物件からの距離160m
- 総戸数
- 36戸
- 契約形態
- -
- 契約期間
- 2年間
- 更新料
- 新賃料の1ヶ月分
- その他費用
- 室内清掃費用:33,000円、入居者サポート:16,500円、書類代:5,500円、町会費:300円
- 保証会社
加入要
保証会社:日本セーフティー
保証会社利用料:初回:月額賃料等の50%、更新時:1万円/1年
- 住宅保険
- 要
- 管理
- 管理員:巡回
- LIFULL HOME'S
物件番号 - 0124322-0200159
- 自社管理番号
- 09641-402-22
- 取引態様
- 仲介
- 会社名
- 株式会社京都ライフ 北大路店
営業スタッフコメント

株式会社京都ライフ 北大路店営業
藤田直己
初志貫徹
業界経験1年
資格少額短期保険募集人
- 会社実績や特徴・サービス情報
- 地下鉄烏丸線沿線を中心に京都市内全域のお部屋探しは京都ライフ北大路店にお任せください。ファミリー様向き物件、社会人様向きのお部屋はもちろん各大学の学生様向き物件も多数ございます。京都大学、同志社大学、同志社女子大学、京都産業大学、大谷大学、立命館大学、京都府立大学、ノートルダム女子大学の学生さんは当店までご相談ください。 当店では居住用物件個人契約の仲介手数料は家賃の半月分(外税)です。
地下鉄烏丸線沿線を中心に京都市内全域のお部屋探しは京都ライフ北大路店にお任せください。ファミリー様向き物件、社会人様向きのお部屋はもちろん各大学の学生様向き物件も多数ございます。京都大学、同志社大学、同志社女子大学、京都産業大学、大谷大学、立命館大学、京都府立大学、ノートルダム女子大学の学生さんは当店までご相談ください。 当店では居住用物件個人契約の仲介手数料は家賃の半月分(外税)です。
- 電話でお問合せ(通話無料)
お問合せ先 :株式会社京都ライフ 北大路店
不動産会社情報
株式会社京都ライフ 北大路店京都ライフ北大路店

京都府京都市北区小山上総町11
京都市営烏丸線 北大路駅 徒歩1分
- 営業時間
- 09:30~19:00
- 定休日
- 年中無休(盆・正月を除く)
優良店認定
創業40年以上。お部屋探しは京都ライフで。地下鉄烏丸線北大路駅から歩いてすぐ。明るくスタイリッシュな店内で、お部屋探ししていただけます。活気あふれるスタッフが皆様のご来店をお待ちしています。
- 店舗の特徴
- 賃貸管理業務
- 24時間管理物件取扱い
- リフォーム対応
- 引越し業者紹介可
- 年中無休
- オンライン相談可
- 保証人不要な物件あり
- 法人契約取扱い
- 女性スタッフ対応可
- 駅から歩いて3分以内
電話でお問合せお客様の電話番号は不動産会社には通知されません
- 不動産会社に
つながります
お客様の電話番号は不動産会社に通知されません
- ※光IP電話、及びIP電話からはご利用になれません
- ※お電話によるお問合せは、店舗営業時間内にお願いします。つながらない場合は、お問合せフォームよりお問合せください
- ※不動産会社がお電話に出られなかった場合、お問合せいただいた後に不動産会社より折り返しのお電話がある場合がございます(お客様が非通知設定した場合は対象外です)
- ※株式会社LIFULLは電話会社が提供するサービスを介してお客様の発信者番号を受領後、折り返し専用の電話番号を発番してお問合せの不動産会社に通知します(お客様の発信者番号がお問合せの不動産会社に通知されることはございません)
- ※携帯電話からお問合せいただいた方に対し、株式会社LIFULLは電話会社が提供するメッセ―ジサービスを介してお客様の発信者番号を受領後、ショートメッセージ(SMS)またはLINE通知メッセージによるお問合せ内容に関する通知をお届けする場合があります
- ※お客様が通話中に不動産会社にお伝えになったお客様の個人情報及び、電話会社が発番する折り返し専用の電話番号は、お問合せ先不動産会社が資料送付・電子メール送信・電話連絡などの目的で保管する可能性があります。お問合せ先不動産会社が保管する個人情報の取扱いについては、各不動産会社に直接お問合せください
- ※株式会社LIFULLでは本サービスを円滑に運用するために、お客様の発信者番号をサービスご利用の控えとして一定期間保管いたします
- ※上記および株式会社LIFULLの個人情報の取扱い方針に同意のうえ、お電話ください
【LIFULL HOME'S物件番号】0124322-0200159【自社管理番号】09641-402-22
オンライン対応
オンライン内見・オンライン相談・IT重説に対応している物件です

「オンライン内見」「オンライン相談」「IT重説」とは?
物件の内見や不動産会社スタッフとの相談、契約前の重要事項説明をオンライン(ビデオ通話)で行うことができるサービスです。
オンライン内見
ビデオ通話で現地(物件)にいる不動産会社スタッフと映像・音声を使ってリアルタイムで会話しながら内見ができます。
オンライン相談
「物件について聞きたいことがある」など不動産会社スタッフへの相談もビデオ通話で行うことができます。
IT重説
契約前の重要事項説明(重説)をビデオ通話で行うことができます。
利用時の注意事項
- ビデオ通話については各不動産会社指定のものとなります。
- ビデオ通話利用時には通信が発生します。従量課金制通信サービスや通信量に上限があるネット回線・プランを利用する場合は、通信量にご注意ください。
- 通信速度やアプリの設定によってはビデオ通話の画質が低下することがあります。安定した画質で利用するためにも、Wi-Fi環境下での利用を推奨します。
- ご利用のビデオ通話アプリによっては、対象のOSやブラウザに制限がある場合があります。詳しくはお問合せ先不動産会社にご確認ください。
初期費用・月額費用をあわせて確認!この物件に住んだときの費用めやす
めやすを見るこの物件に住んだときの費用めやす
- 初期費用
- 月額費用
- 追加費用※ご確認ください
追加で費用が
かかる場合があります
必ずご確認ください
初期費用めやす約0円
追加で費用がかかります(※)敷金
96,000
- 礼金
192,000
賃料+共益費・管理費の1ヶ月分として換算
賃料の1ヶ月分+税として換算。不動産会社によって金額が異なるため正確な金額は不動産会社にお問合せください
※追加費用もチェック!
これらの項目以外にも費用がかかる場合があります。正確な金額は不動産会社にお問合せください。
- 初期費用
- 鍵交換費:不動産会社に要確認
- 室内清掃費:33,000円
- 火災保険費:不動産会社に要確認
- 月額費用
- 駐車場費:30,800円(税込)※近隣
- その他
- 入居者サポート:16500円
- 書類代:5500円
- 町会費:300円
- 保証会社
- 初回:月額賃料等の50%、更新時:1万円/1年
不動産会社より
デザイナーズ 8タイプ有 デザイナーズマンション仕様
- 保存する
- 共有する
- ※各種情報と現状に差異がある場合は、現状優先となります
- ※不動産会社が入力した情報を基に物件の位置を表示しています。詳しくは不動産会社までお問合せください
- ※不動産会社の方からの上記電話番号によるお問合せはお断りしております。こちら不動産会社詳細からお問合せください
- ※LIFULL HOME'Sは物件鮮度No.1を目指していきます。閲覧中の物件が「成約済である」「実際の物件情報と異なる点がある」などの場合、「掲載110番」からお問合せください
- ※QRコードは株式会社デンソーウェーブの登録商標です
同じ建物の他の部屋
LIFULL HOME'S 地図・周辺情報
買い物
- セブンイレブン 京都堀川三条店
- フレスコ プチ新町御池店
- ダックス京都御池店
- ローソン 三条堀川店
- やまや烏丸御池店
グルメ
- めしや宮本むなし 御池店
- なか卯 二条城店
- モスバーガー 烏丸御池店
- GYOZA OHSHO烏丸御池店
- スターバックスコーヒー京都三条烏丸ビル店
育児・教育
- 光明幼稚園
- 京都市立洛中小学校
- 京都市立洛風中学校
- 六満こども園
- 京都市立高倉小学校
医療
- 医療法人毛利病院
- 医療法人知音会京都新町病院
- 山元病院
- 医療法人財団足立病院
- 京都第二赤十字病院
公共施設・郵便局
- 京都西洞院三条郵便局
- 京都市こどもみらい館子育て図書館
- 京都市中京区役所
- 京都二条油小路郵便局
- 京都市下京図書館
公園
- 梅屋広場公園
- 光徳公園
- 京都御苑
- 円山公園
- 梅小路公園
利用可能な駅
- 徒歩10分以内
京都地下鉄東西線
- 二条城前駅徒歩4分
京都市営烏丸線
- 烏丸御池駅徒歩8分
- 周辺情報は2023年07月21日時点のものになります。
- 周辺情報は、参考情報としてのみご利用ください(周辺情報は、株式会社LIFULLが地図情報の提供事業者から提供を受けた情報とLIFULL HOME'Sの物件情報に基づき、独自の方法で抽出し提供しているものです。周辺情報は、移転や閉鎖等により情報が最新ではない、または正しくない場合がありますが、地図情報の提供事業者から提供された情報をそのまま周辺情報として表示しているため、正確かつ最新の情報へ修正することができないことがあります。)
- 周辺情報は、株式会社LIFULLが掲載するものであり、不動産物件情報を掲載している不動産会社が掲載するものではありません
- 交通情報の一部については、株式会社LIFULLが掲載するものであり、不動産物件情報を掲載している不動産会社が掲載するものではない場合があります。交通情報に関する質問などは株式会社LIFULLにお問合せください







