LIFULL HOME'Sは物件鮮度No.1!※評価について
阪急京都本線 大宮駅 徒歩5分
4.6万円/管理費等3,000円
10時間前 更新
画像一覧
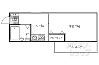
1/25間取り
2/25外観
3/25リビング/ダイニング
洋室
4/25室内
洋室
5/25寝室
洋室
6/25寝室
洋室
7/25子供部屋
洋室
8/25キッチン
キッチン
9/25キッチン
シンク
10/25キッチン
コンロ
11/25浴室
風呂
12/25浴室
ユニットバス
13/25トイレ
トイレ
14/25洗面
洗面所
15/25収納
収納
16/25収納
収納
17/25設備
洗濯機置場
18/25玄関
玄関
19/25玄関
玄関
20/25バルコニー
ベランダ
21/25その他
眺望
22/25その他
エアコン
23/25その他
眺望
24/25周辺
フレスコ 大宮店まで330メートル
25/25周辺
セブンイレブン 阪急大宮駅南店まで270メートル
間取り
外観
リビング/ダイニング
室内
寝室
寝室
子供部屋
キッチン
キッチン
キッチン
浴室
浴室
トイレ
洗面
収納
収納
設備
玄関
玄関
バルコニー
その他
その他
その他
周辺
周辺
お問合せ先 :株式会社エリッツ 深草店
住まい探し特典内容
電気・ガス・インターネットの手続き代行のご案内します。
- 利用条件
- 株式会社エリッツ 深草店で利用可
- 他特典との併用可
利用方法
来店時に本特典の画面をスマートフォンやタブレットでスタッフに提示、または画面印刷した用紙を提示ください。
有効期限 なし
阪急大宮駅徒歩4分です。--パノラマ掲載--
基本情報
不動産用語- 賃料
- 4.6万円
- 管理費等
- 3,000円
初期費用などお気軽にお問合せください
- 敷金/礼金
- 1ヶ月/無
- 保証金/敷引・償却金
- -/-
- 交通
阪急京都本線 大宮駅 徒歩5分
JR山陰本線 丹波口駅 徒歩10分
京都地下鉄烏丸線 四条駅 徒歩15分
- 所在地
京都府京都市下京区綾小路通大宮西入坊門町
地図を見る- 築年月
- 1985年3月(築41年)
- 主要採光面
- 西
- 専有面積
- 22㎡
- バルコニー面積
- -
- 所在階/階数
- 2階/3階建
入居可能日などお気軽にお問合せください
- 現況
- 空家
- 入居可能時期
- 2025年11月 下旬

人気物件はすぐに埋まってしまいます。
気になったらお早めにお問合せください。
- 情報公開日
2025/08/05
112日前 公開
- 情報更新日
2025/11/25
10時間前 更新
- 次回更新
予定日 - 2025/12/01
物件のこだわり/設備・条件
新築(非該当)
2階以上の物件(該当)
南向き(非該当)
駐車場あり(該当)
オートロック(非該当)
エアコン(該当)
バス・トイレ別(非該当)
追焚機能(非該当)
フローリング(非該当)
ペット相談(非該当)
位置
角部屋入居条件
二人入居不可、単身者限定キッチン/バス・トイレ
設備・サービス
TVモニタ付インターホン、エアコン、クローゼット、CATV、光ファイバー、公営水道、下水、バルコニー、室内洗濯機置場、駐車場あり、駐輪場ありその他
住まい探し特典あり備考
阪急電鉄京都線の大宮駅まで徒歩5分のマンションです。周辺にはセブンイレブン 阪急大宮駅南店があり便利です。・光ファイバーインターネット接続可 ハウスクリーニング27500円(退去時)・その他(月額):330円・その他(月額):800円
物件周辺の生活情報
買い物
- コンビニ(270m)
- スーパー(330m)
交通
- 阪急京都本線 大宮駅 徒歩5分
- 普通(停車)
- 準急(停車)
- 堺筋準急(停車)
- 通勤特急(停車)
- 特急(通過)
- 急行(停車)
- 準特急(停車)
- JR山陰本線 丹波口駅 徒歩10分
- 普通(停車)
- 快速とっとりライナー(通過)
- 快速通勤ライナー(通過)
- 快速(通過)
※急行等の停車駅情報について
急行等の停車駅に関するデータは、随時更新をしておりますが、最新の内容であることを保証するものではありません。
最新かつ正確な情報につきましては、各鉄道会社のウェブサイトにてご確認ください
物件周辺の口コミ
- 京都府京都市下京区壬生川通仏光寺下るに住む人の口コミ30代女性
駅近で家賃が安い。街中の割に駐車場もある。私鉄、市バスなど公共交通機関が充実。静か。繁華街まで自転車圏内
口コミを見る
この物件周辺に住む人の口コミ
口コミは、LIFULL HOME'Sが実際にこの物件の周辺に住む18歳~69歳の男女を対象に、WEBアンケート調査を実施しています。内容には回答者の主観的な表現が含まれる場合があるほか、事実と異なる場合もございます。ご了承ください。
- 京都府京都市下京区壬生川通仏光寺下るに住む人の口コミ30代女性
- 駅近で家賃が安い。街中の割に駐車場もある。私鉄、市バスなど公共交通機関が充実。静か。繁華街まで自転車圏内
- 京都府京都市下京区壬生川通仏光寺下るに住む人の口コミ30代女性
- 駅は朝晩は特急電車も停車する。最も近いスーパーがなくなり、次に近いスーパーは値段が高めなので、別のスーパーへ自転車で買いに行かなくてはならず不便だが選択肢がある。
- 京都府京都市中京区西ノ京小堀町に住む人の口コミ20代女性
- 電車もバスもあるからどこでもいきやすいし、映画館もあるのでぶらっといけるのがいい。
- 京都府京都市右京区松原通西大路西入に住む人の口コミ30代男性
- 交通の利便性も高く、近くに大型ショッピングモールなどお店が沢山あり、最寄駅周辺の飲食店が充実している。大通りが近くにあるので交通量も多く、夜中の騒音は多いが比較的住みやすく満足はしている。
- 京都府京都市下京区西七条名倉町に住む人の口コミ20代女性
- 買い物も便利だし交通の面でも便利なので全体的には満足しているけど、夜になると女性や子どもが1人で出歩くのは少し危険。交番が近くに1つしかないが基本的に警察が中にいないので意味が無い。
- 京都府京都市中京区壬生森前町に住む人の口コミ20代女性
- 買い物がすぐできる。コンビニが多い。歴史的建造物が行動範囲内に多い。
- 京都府京都市下京区七条御所ノ内本町に住む人の口コミ20代女性
- 日用品を買う場所やゆっくりできるカフェ、ショッピングセンターもあり、退屈しない。交通の便がよく、バスや自転車で大概の用事はすませられる。
- 京都府京都市中京区聚楽廻東町に住む人の口コミ30代男性
- 生活する上で必要なものは全て楽に揃えることができるし、バスや電車の利便性も良い。
- 京都府京都市中京区壬生森前町に住む人の口コミ30代女性
- 買い物も便利で不便は全くないが、細い道も多いので、夜は少し暗いのが難点である。
- 京都府京都市下京区中堂寺坊城町に住む人の口コミ30代男性
- 駅が近い。スーパーの数はそんなに無いが近くにある。公園が近くにある。ドラックストアが近くにある。家族で行ける飲食店が近くにある。
物件概要
- 建物構造
- RC(鉄筋コンクリート)
- 駐車場
- 空有 19,800円(税込)
- 総戸数
- 21戸
- 契約形態
- -
- 契約期間
- 2年間
- 更新料
- 新賃料の1ヶ月分
- その他費用
- 管理会社書類代(初回):5,500円、安心入居サポート(初回):16,500円、給湯代(月額):1,500円
- 保証会社
加入要
保証会社利用料:225、250円
- 住宅保険
- 要
- 管理
- -
- LIFULL HOME'S
物件番号 - 0110592-0284055
- 自社管理番号
- 20559-0201
- 取引態様
- 仲介
- 会社名
- 株式会社エリッツ 深草店
営業スタッフコメント

株式会社エリッツ 深草店
金沓
深草エリアだけでなく、広域で対応可能です!
業界経験17年
資格宅地建物取引士、賃貸不動産経営管理士
- スタッフ情報
- 龍谷大学生様・伏見区のお部屋探しは賃貸のエリッツ深草店にお任せ下さい。賃貸のエリッツ深草店は、伏見区の賃貸物件を豊富に取り揃えております。龍谷大学の正面にあり、龍谷大学周辺の賃貸物件の取り扱い数は地域ナンバーワン。龍谷大学から徒歩1分なので、大学の授業の合間や授業終わりでもすぐに賃貸物件のご案内に行けますよ。もちろん龍谷大学の学生様以外にも、社会人の一人暮らしや、新婚、ご家族の方向けの賃貸物件もご紹介できます。伏見区深草エリアは、京阪・JR・地下鉄・近鉄と様々な沿線があり、商業施設も充実して、生活がとっても便利です。新婚様・ファミリー様にもオススメです。賃貸のエリッツ深草店には、龍大OBや伏見区で生まれ育ったスタッフが在籍しております。伏見区はもちろん、京都市内どのエリアでもお探しさせて頂きます。お部屋探し以外のことでもぜひご相談ください。ご来店スタッフ一同心よりお待ちしております。
龍谷大学生様・伏見区のお部屋探しは賃貸のエリッツ深草店にお任せ下さい。賃貸のエリッツ深草店は、伏見区の賃貸物件を豊富に取り揃えております。龍谷大学の正面にあり、龍谷大学周辺の賃貸物件の取り扱い数は地域ナンバーワン。龍谷大学から徒歩1分なので、大学の授業の合間や授業終わりでもすぐに賃貸物件のご案内に行けますよ。もちろん龍谷大学の学生様以外にも、社会人の一人暮らしや、新婚、ご家族の方向けの賃貸物件もご紹介できます。伏見区深草エリアは、京阪・JR・地下鉄・近鉄と様々な沿線があり、商業施設も充実して、生活がとっても便利です。新婚様・ファミリー様にもオススメです。賃貸のエリッツ深草店には、龍大OBや伏見区で生まれ育ったスタッフが在籍しております。伏見区はもちろん、京都市内どのエリアでもお探しさせて頂きます。お部屋探し以外のことでもぜひご相談ください。ご来店スタッフ一同心よりお待ちしております。
- 電話でお問合せ(通話無料)
お問合せ先 :株式会社エリッツ 深草店
不動産会社情報
株式会社エリッツ 深草店賃貸のエリッツ深草店

京都府京都市伏見区深草西浦町4丁目31番地
京阪本線 龍谷大前深草駅 徒歩5分
- 営業時間
- 10:00~19:00
- 定休日
- 水曜日(祝日を除く)、年末年始 ※部屋探しのお問い合わせは無休
優良店認定
伏見区のお部屋探しはエリッツ深草店へ。龍谷大学生様のお部屋探しは物件数NO,1のエリッツにお任せ下さい。新婚様向け物件も多数ございます。日本語学校の留学生も歓迎します。
- 店舗の特徴
- 引越し業者紹介可
- バリアフリー
- 社宅・寮物件取扱い
- オンライン相談可
- 保証人不要な物件あり
- 法人契約取扱い
電話でお問合せお客様の電話番号は不動産会社には通知されません
- 不動産会社に
つながります
お客様の電話番号は不動産会社に通知されません
- ※光IP電話、及びIP電話からはご利用になれません
- ※お電話によるお問合せは、店舗営業時間内にお願いします。つながらない場合は、お問合せフォームよりお問合せください
- ※不動産会社がお電話に出られなかった場合、お問合せいただいた後に不動産会社より折り返しのお電話がある場合がございます(お客様が非通知設定した場合は対象外です)
- ※株式会社LIFULLは電話会社が提供するサービスを介してお客様の発信者番号を受領後、折り返し専用の電話番号を発番してお問合せの不動産会社に通知します(お客様の発信者番号がお問合せの不動産会社に通知されることはございません)
- ※携帯電話からお問合せいただいた方に対し、株式会社LIFULLは電話会社が提供するメッセ―ジサービスを介してお客様の発信者番号を受領後、ショートメッセージ(SMS)またはLINE通知メッセージによるお問合せ内容に関する通知をお届けする場合があります
- ※お客様が通話中に不動産会社にお伝えになったお客様の個人情報及び、電話会社が発番する折り返し専用の電話番号は、お問合せ先不動産会社が資料送付・電子メール送信・電話連絡などの目的で保管する可能性があります。お問合せ先不動産会社が保管する個人情報の取扱いについては、各不動産会社に直接お問合せください
- ※株式会社LIFULLでは本サービスを円滑に運用するために、お客様の発信者番号をサービスご利用の控えとして一定期間保管いたします
- ※上記および株式会社LIFULLの個人情報の取扱い方針に同意のうえ、お電話ください
【LIFULL HOME'S物件番号】0110592-0284055【自社管理番号】20559-0201
オンライン対応
オンライン相談・IT重説に対応している物件です

「オンライン内見」「オンライン相談」「IT重説」とは?
物件の内見や不動産会社スタッフとの相談、契約前の重要事項説明をオンライン(ビデオ通話)で行うことができるサービスです。
オンライン内見
ビデオ通話で現地(物件)にいる不動産会社スタッフと映像・音声を使ってリアルタイムで会話しながら内見ができます。
オンライン相談
「物件について聞きたいことがある」など不動産会社スタッフへの相談もビデオ通話で行うことができます。
IT重説
契約前の重要事項説明(重説)をビデオ通話で行うことができます。
利用時の注意事項
- ビデオ通話については各不動産会社指定のものとなります。
- ビデオ通話利用時には通信が発生します。従量課金制通信サービスや通信量に上限があるネット回線・プランを利用する場合は、通信量にご注意ください。
- 通信速度やアプリの設定によってはビデオ通話の画質が低下することがあります。安定した画質で利用するためにも、Wi-Fi環境下での利用を推奨します。
- ご利用のビデオ通話アプリによっては、対象のOSやブラウザに制限がある場合があります。詳しくはお問合せ先不動産会社にご確認ください。
初期費用・月額費用をあわせて確認!この物件に住んだときの費用めやす
めやすを見るこの物件に住んだときの費用めやす
- 初期費用
- 月額費用
- 追加費用※ご確認ください
追加で費用が
かかる場合があります
必ずご確認ください
初期費用めやす約0円
追加で費用がかかります(※)敷金
46,000
- 礼金
0
賃料+共益費・管理費の1ヶ月分として換算
賃料の1ヶ月分+税として換算。不動産会社によって金額が異なるため正確な金額は不動産会社にお問合せください
※追加費用もチェック!
これらの項目以外にも費用がかかる場合があります。正確な金額は不動産会社にお問合せください。
- 初期費用
- 鍵交換費:不動産会社に要確認
- 室内清掃費:不動産会社に要確認
- 火災保険費:不動産会社に要確認
- 月額費用
- 駐車場費:19,800円(税込)※契約任意
- その他
- 管理会社書類代(初回):5500円
- 安心入居サポート(初回):16500円
- 給湯代(月額):1500円
- 保証会社
- 225、250円
不動産会社より
阪急大宮駅徒歩4分です。--パノラマ掲載--
阪急電鉄京都線の大宮駅まで徒歩5分のマンションです。周辺にはセブンイレブン 阪急大宮駅南店があり便利です。・光ファイバーインターネット接続可 ハウスクリーニング27500円(退去時)・その他(月額):330円・その他(月額):800円
- 保存する
- 共有する
- ※各種情報と現状に差異がある場合は、現状優先となります
- ※不動産会社が入力した情報を基に物件の位置を表示しています。詳しくは不動産会社までお問合せください
- ※不動産会社の方からの上記電話番号によるお問合せはお断りしております。こちら不動産会社詳細からお問合せください
- ※LIFULL HOME'Sは物件鮮度No.1を目指していきます。閲覧中の物件が「成約済である」「実際の物件情報と異なる点がある」などの場合、「掲載110番」からお問合せください
- ※QRコードは株式会社デンソーウェーブの登録商標です
この物件を取扱う他の会社
LIFULL HOME'Sでは、主要項目が同一の物件をまとめて表示しています。所在地や営業時間、掲載画像等から不動産会社を選んでお問合せください。
最近見た賃貸物件
LIFULL HOME'S 地図・周辺情報
買い物
- セブンイレブン 京都壬生川仏光寺店
- フレスコ 大宮店
- スギ薬局四条大宮店
- ファミリーマート 大宮高辻店
- ライフ 四条大宮店
グルメ
- CoCo壱番屋 京都四条大宮店
- ガスト 京都四条大宮店(から好し取扱店)
- マクドナルド 四条大宮店
- なか卯 四条壬生店
- ロッテリア 京都四条大宮店
育児・教育
- 光林保育園
- 京都市立洛中小学校
- 京都市立洛友中学校
- たちばな保育園
- 京都市立光徳小学校
医療
- 山元病院
- 医療法人令寿会しまばら病院
- 医療法人回生会京都回生病院
- 医療法人知音会京都新町病院
- 安威医院
公共施設・郵便局
- 京都四条大宮郵便局
- 京都市下京図書館
- 京都府中京警察署
- 京都大宮松原郵便局
- 京都市こどもみらい館子育て図書館
公園
- 光徳公園
- 梅小路公園
- 梅小路公園
- 梅屋広場公園
- 東大丸公園
利用可能な駅
- 徒歩10分以内
阪急京都本線
- 大宮駅徒歩5分
JR山陰本線
- 丹波口駅徒歩10分
- その他交通
- 京都地下鉄烏丸線 四条駅 徒歩15分
- 周辺情報は2023年07月21日時点のものになります。
- 周辺情報は、参考情報としてのみご利用ください(周辺情報は、株式会社LIFULLが地図情報の提供事業者から提供を受けた情報とLIFULL HOME'Sの物件情報に基づき、独自の方法で抽出し提供しているものです。周辺情報は、移転や閉鎖等により情報が最新ではない、または正しくない場合がありますが、地図情報の提供事業者から提供された情報をそのまま周辺情報として表示しているため、正確かつ最新の情報へ修正することができないことがあります。)
- 周辺情報は、株式会社LIFULLが掲載するものであり、不動産物件情報を掲載している不動産会社が掲載するものではありません
- 交通情報の一部については、株式会社LIFULLが掲載するものであり、不動産物件情報を掲載している不動産会社が掲載するものではない場合があります。交通情報に関する質問などは株式会社LIFULLにお問合せください





























