LIFULL HOME'Sは物件鮮度No.1!※評価について
パークタワー池袋イーストプレイス 20階/2003
31.5万円/管理費等15,000円
3日前 更新
画像一覧
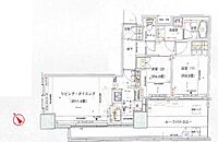
1/26間取り
間取図
2/26外観
外観・土地
3/26外観
外観・土地
4/26リビング/ダイニング
リビング
5/26リビング/ダイニング
リビング
6/26室内
内装
7/26寝室
寝室
8/26キッチン
キッチン
9/26キッチン
キッチン
10/26浴室
バス
11/26トイレ
トイレ
12/26洗面
洗面所
13/26収納
収納
14/26設備
セキュリティ
15/26設備
共用設備
16/26玄関
玄関
17/26バルコニー
バルコニー
18/26エントランス
エントランス
19/26駐車場
駐車場
20/26その他
敷地内/建物
21/26周辺
豊島区立西巣鴨中学校 心障学級 636m
22/26周辺
豊島区立朋有小学校 281m
23/26周辺
東池袋第二保育園 337m
24/26周辺
総合病院一心病院 956m
25/26周辺
大越外科医院 187m
26/26周辺
大塚台公園 479m
間取り
外観
外観
リビング/ダイニング
リビング/ダイニング
室内
寝室
キッチン
キッチン
浴室
トイレ
洗面
収納
設備
設備
玄関
バルコニー
エントランス
駐車場
その他
周辺
周辺
周辺
周辺
周辺
周辺
お問合せ先 :グランデ池袋店 (株式会社グランデ)
住まい探し特典内容
電気・ガス・水道・ネットの移転手続きを「代行」いたします!(無料)
- 利用条件
- グランデ池袋店 (株式会社グランデ)で利用可
- 他特典との併用可
利用方法
来店時に本特典の画面をスマートフォンやタブレットでスタッフに提示、または画面印刷した用紙を提示ください。
有効期限 なし
定期借家
この物件の契約期間は、2年間です
※定期借家物件は、賃貸借契約期間満了後、原則として契約の更新ができない物件です。貸主との合意があれば再契約が可能な場合があります
仲介手数料【0.55ヶ月分】対象物件 現地、又は最寄り駅【お待合わせ】にてご案内可能
物件のこだわり/設備・条件
新築(非該当)
2階以上の物件(該当)
南向き(非該当)
駐車場(非該当)
オートロック(該当)
エアコン(該当)
バス・トイレ別(該当)
追焚機能(非該当)
フローリング(該当)
ペット相談(非該当)
位置
角部屋入居条件
保証人不要キッチン/バス・トイレ
設備・サービス
オートロック、防犯カメラ、TVモニタ付インターホン、ディンプルキー、エアコン、クローゼット、シューズボックス、公営水道、都市ガス、下水、フローリング、バルコニー、室内洗濯機置場、ルーフバルコニー、ゲストルーム、エレベーター、ゴミ出し24時間OK、宅配ボックス、制震構造、バイク置き場あり、駐輪場ありその他
初期費用カード決済可、フロントサービス、タワーマンション、分譲賃貸、住まい探し特典あり備考
当物件は■仲介手数料【0.55ヶ月分】でご紹介いたします。■「高級賃貸」に精通した専門スタッフがご対応いたします。■現地、又は最寄り駅「お待合わせ」にてご案内いたします。■初期費用(全額、又は一部)の分割払いを、喜んでお受けいたします。(クレジットカード・入居ローン・など)■原則再契約可(再契約料新賃料の1ヶ月分)/ルームクリーニング費用借主負担(退去時)/短期解約時、違約金が発生する場合がございます。
物件周辺の生活情報
学校
- 豊島区立朋有小学校(281m)
- 豊島区立西巣鴨中学校 心障学級(636m)
その他施設
- 総合病院(956m)
- 公園(479m)
- 東池袋第二保育園(337m)
交通
- JR山手線 大塚駅 徒歩9分
- 普通(停車)
- 東京メトロ有楽町線 東池袋駅 徒歩8分
- 普通(停車)
- 通勤急行(通過)
- 急行(通過)
※急行等の停車駅情報について
急行等の停車駅に関するデータは、随時更新をしておりますが、最新の内容であることを保証するものではありません。
最新かつ正確な情報につきましては、各鉄道会社のウェブサイトにてご確認ください
物件周辺の口コミ
- 東京都豊島区東池袋に住む人の口コミ50代女性
複数の路線があり交通の便が良い。業務スーパーやドン・キホーテ等の安い店から百貨店等の店舗もあり、買いたいものがすぐ買える。
口コミを見る
この物件周辺に住む人の口コミ
口コミは、LIFULL HOME'Sが実際にこの物件の周辺に住む18歳~69歳の男女を対象に、WEBアンケート調査を実施しています。内容には回答者の主観的な表現が含まれる場合があるほか、事実と異なる場合もございます。ご了承ください。
- 東京都豊島区東池袋に住む人の口コミ50代女性
- 複数の路線があり交通の便が良い。業務スーパーやドン・キホーテ等の安い店から百貨店等の店舗もあり、買いたいものがすぐ買える。
- 東京都豊島区東池袋に住む人の口コミ40代女性
- 利便性抜群。いかなるジャンルの買い物も十分できる。一人ぐらしには最適な街だが、夜中ちょっとうるさい時がある
- 東京都豊島区東池袋に住む人の口コミ60代女性
- 交通の便がいいので便利。スーパー自体は数が多い訳ではないが、近くにあるスーパーは安い。
- 東京都豊島区東池袋に住む人の口コミ30代女性
- 子育てしやすく公園も多い。保育園も割と入りやすい。生活に必要なものは一通り揃う。少し足を伸ばせばデパートもあるのでなんでも揃う。
- 東京都豊島区東池袋に住む人の口コミ50代男性
- 全てにわたって生活がしやすい。また,交通機関を利用すると手軽に自然豊かな所へも移動できる。
- 東京都豊島区東池袋に住む人の口コミ30代男性
- 交通の便が良くて食料の買い出しに行くのに時間がかからないので
- 東京都豊島区東池袋に住む人の口コミ50代男性
- 繁華街なので物の購入に困る事もありませんし、交通機関の利便性もよいからです。
- 東京都豊島区東池袋に住む人の口コミ50代女性
- 他地域に住んだ事がないので比較はできないが、日常の買い物、交通の利便性、今後10円20年先を考えると医療施設や自治体の高齢者福祉サービスの点で充実している、
- 東京都豊島区東池袋に住む人の口コミ30代女性
- 繁華街で賑やかだけど治安がいい。流行の服が安く手に入る。交通の便がいい。
- 東京都豊島区東池袋に住む人の口コミ40代女性
- 公共機関を含めて、生活に必要なものは全て手に届く範囲にあるので非常に生活しやすい。ひとりで外食しても目立たないし、さみしくも思わない。1人暮らしはうってつけの街だと思います。
物件概要
- 建物構造
- RC(鉄筋コンクリート)
- 駐車場
- 空無
- 総戸数
- 204戸
- 契約形態
定期借家
- 契約期間
- 2年間
- 更新料
- -
- その他費用
- -
- 保証会社
加入要
保証会社:貸主指定会社
保証会社利用料:月額賃料等の50%(初回保証料)、1200円/月
- 住宅保険
- 要
- 管理
- 管理員:日勤
- LIFULL HOME'S
物件番号 - 0139205-0072303
- 自社管理番号
- 68662802-1
- 取引態様
- 仲介
- 会社名
- グランデ池袋店 (株式会社グランデ)
営業スタッフコメント

グランデ池袋店 (株式会社グランデ)
松山秋香
些細なことでも気になる事やお困り事は、お気軽にご相談ください!
業界経験4年
- 会社実績や特徴・サービス情報
- 【高級賃貸専門店】だからからこそできるサービスに自信があります。 グランデでは全ての物件が『仲介手数料 0円~0.55ヶ月分』!『現地直行内見』も喜んでお受け致します。 お部屋探しのことなら【グランデ池袋店】に全てお任せ下さい。 ~当店の5つの強み~ 1)【高級賃貸専門】のスタッフがストレスフリー且つ安心なご案内をお約束致します。 2)他社様がネットに掲載されている物件は、全てお調べし『好条件』でご紹介致します。 (他社様でお申込みされた物件でも、『好条件』でご紹介できる場合がございます) 3)『審査』『保証人』『費用』など、どのような難しいご条件でも遠慮なくご相談頂けます。 4)クレジットカードの『初期費用分割払い(全額又は一部)』を喜んでお受け致します。 (クレカ以外の方法もございます) 5)店舗に『ご来店できない』お客様でも、『オンライン』でお部屋探しを完結できます。
【高級賃貸専門店】だからからこそできるサービスに自信があります。 グランデでは全ての物件が『仲介手数料 0円~0.55ヶ月分』!『現地直行内見』も喜んでお受け致します。 お部屋探しのことなら【グランデ池袋店】に全てお任せ下さい。 ~当店の5つの強み~ 1)【高級賃貸専門】のスタッフがストレスフリー且つ安心なご案内をお約束致します。 2)他社様がネットに掲載されている物件は、全てお調べし『好条件』でご紹介致します。 (他社様でお申込みされた物件でも、『好条件』でご紹介できる場合がございます) 3)『審査』『保証人』『費用』など、どのような難しいご条件でも遠慮なくご相談頂けます。 4)クレジットカードの『初期費用分割払い(全額又は一部)』を喜んでお受け致します。 (クレカ以外の方法もございます) 5)店舗に『ご来店できない』お客様でも、『オンライン』でお部屋探しを完結できます。
- 電話でお問合せ(通話無料)
お問合せ先 :グランデ池袋店 (株式会社グランデ)
不動産会社情報
グランデ池袋店 (株式会社グランデ)

東京都豊島区東池袋4丁目25-12 サンシャイン・サイド 5階
JR山手線 池袋駅 徒歩7分
- 営業時間
- 10:00~19:00(※時間外対応出来る場合もございます)
- 定休日
- 年中無休(年末年始などを除く)
優良店認定
全物件、仲介手数料0円〜0.55ヶ月分。高級賃貸専門スタッフが、現地お待合わせにてご案内。他社様ご掲載の物件も好条件でご紹介。どのようなご条件でも相談可能。初期費用全額分割可能。(クレジットカード等)
- 店舗の特徴
- 引越し業者紹介可
- 年中無休
- オンライン相談可
- 保証人不要な物件あり
- 入居ローンあり
- 法人契約取扱い
- 女性スタッフ対応可
- 19時以降も営業
- 駅から歩いて3分以内
- 外国語を話せるスタッフ在籍
電話でお問合せお客様の電話番号は不動産会社には通知されません
- 不動産会社に
つながります
お客様の電話番号は不動産会社に通知されません
- ※光IP電話、及びIP電話からはご利用になれません
- ※お電話によるお問合せは、店舗営業時間内にお願いします。つながらない場合は、お問合せフォームよりお問合せください
- ※不動産会社がお電話に出られなかった場合、お問合せいただいた後に不動産会社より折り返しのお電話がある場合がございます(お客様が非通知設定した場合は対象外です)
- ※株式会社LIFULLは電話会社が提供するサービスを介してお客様の発信者番号を受領後、折り返し専用の電話番号を発番してお問合せの不動産会社に通知します(お客様の発信者番号がお問合せの不動産会社に通知されることはございません)
- ※携帯電話からお問合せいただいた方に対し、株式会社LIFULLは電話会社が提供するメッセ―ジサービスを介してお客様の発信者番号を受領後、ショートメッセージ(SMS)またはLINE通知メッセージによるお問合せ内容に関する通知をお届けする場合があります
- ※お客様が通話中に不動産会社にお伝えになったお客様の個人情報及び、電話会社が発番する折り返し専用の電話番号は、お問合せ先不動産会社が資料送付・電子メール送信・電話連絡などの目的で保管する可能性があります。お問合せ先不動産会社が保管する個人情報の取扱いについては、各不動産会社に直接お問合せください
- ※株式会社LIFULLでは本サービスを円滑に運用するために、お客様の発信者番号をサービスご利用の控えとして一定期間保管いたします
- ※上記および株式会社LIFULLの個人情報の取扱い方針に同意のうえ、お電話ください
【LIFULL HOME'S物件番号】0139205-0072303【自社管理番号】68662802-1
初期費用・月額費用をあわせて確認!この物件に住んだときの費用めやす
めやすを見るこの物件に住んだときの費用めやす
- 初期費用
- 月額費用
- 追加費用※ご確認ください
追加で費用が
かかる場合があります
必ずご確認ください
初期費用めやす約0円
追加で費用がかかります(※)敷金
315,000
- 礼金
315,000
- 保証金
0
賃料+共益費・管理費の1ヶ月分として換算
賃料の1ヶ月分+税として換算。不動産会社によって金額が異なるため正確な金額は不動産会社にお問合せください
※追加費用もチェック!
これらの項目以外にも費用がかかる場合があります。正確な金額は不動産会社にお問合せください。
- 初期費用
- 鍵交換費:不動産会社に要確認
- 室内清掃費:不動産会社に要確認
- 火災保険費:不動産会社に要確認
- 保証会社
- 月額賃料等の50%(初回保証料)、1200円/月
不動産会社より
仲介手数料【0.55ヶ月分】対象物件 現地、又は最寄り駅【お待合わせ】にてご案内可能
当物件は■仲介手数料【0.55ヶ月分】でご紹介いたします。■「高級賃貸」に精通した専門スタッフがご対応いたします。■現地、又は最寄り駅「お待合わせ」にてご案内いたします。■初期費用(全額、又は一部)の分割払いを、喜んでお受けいたします。(クレジットカード・入居ローン・など)■原則再契約可(再契約料新賃料の1ヶ月分)/ルームクリーニング費用借主負担(退去時)/短期解約時、違約金が発生する場合がございます。
- 保存する
- 共有する
- ※各種情報と現状に差異がある場合は、現状優先となります
- ※不動産会社が入力した情報を基に物件の位置を表示しています。詳しくは不動産会社までお問合せください
- ※不動産会社の方からの上記電話番号によるお問合せはお断りしております。こちら不動産会社詳細からお問合せください
- ※LIFULL HOME'Sは物件鮮度No.1を目指していきます。閲覧中の物件が「成約済である」「実際の物件情報と異なる点がある」などの場合、「掲載110番」からお問合せください
- ※QRコードは株式会社デンソーウェーブの登録商標です
最近見た賃貸物件
LIFULL HOME'S 地図・周辺情報
買い物
- ファミリーマート 東池袋春日通り店
- まいばすけっと東池袋2丁目店
- スギ薬局東池袋店
- セブンイレブン 東池袋3丁目店
- マルエツプチ 東池袋三丁目店
グルメ
- 松屋 向原店
- なか卯 東池袋向原店
- イタリアントマトカフェジュニア池袋サンシャインアルタ店
- 丸亀製麺サンシャインシティアルタ店
- タリーズコーヒーサンシャイン水族館店
育児・教育
- AIAI NURSERY第一東池袋
- 豊島区立朋有小学校
- 豊島区立西巣鴨中学校
- まちの保育園東池袋
- 豊島区立豊成小学校
医療
- 岡本病院
- 医療法人社団生全会池袋病院
- 医療法人社団日心会総合病院一心病院
- 山口病院
- 医療法人社団偕翔会豊島中央病院
公共施設・郵便局
- 豊島郵便局
- 豊島区立中央図書館
- 豊島区役所
- サンシャイン60内郵便局
- 豊島区立上池袋図書館
公園
- 東池袋中央公園
- 大塚公園
- 池袋西口公園
- 元池袋史跡公園
- 教育の森公園
利用可能な駅
- 徒歩10分以内
都電荒川線
- 向原駅徒歩5分
- 東池袋四丁目駅徒歩10分
- 大塚駅前駅徒歩10分
東京メトロ有楽町線
- 東池袋駅徒歩8分
JR山手線
- 大塚駅徒歩9分
- すべての駅
東京メトロ丸ノ内線
- 新大塚駅徒歩12分
- 茗荷谷駅徒歩26分
都電荒川線
- 巣鴨新田駅徒歩12分
- 都電雑司ヶ谷駅徒歩12分
- 庚申塚駅徒歩19分
- 鬼子母神前駅徒歩19分
- 新庚申塚駅徒歩23分
- 学習院下駅徒歩26分
- 西ヶ原四丁目駅徒歩28分
- 面影橋駅徒歩29分
- 早稲田駅徒歩34分
- 滝野川一丁目駅徒歩36分
JR山手線
- 池袋駅徒歩17分
- 巣鴨駅徒歩24分
- 目白駅徒歩29分
- 駒込駅徒歩33分
東京メトロ副都心線
- 雑司が谷駅徒歩20分
東武東上線
- 北池袋駅徒歩22分
- 下板橋駅徒歩28分
東京メトロ有楽町線
- 護国寺駅徒歩24分
- 要町駅徒歩30分
都営三田線
- 西巣鴨駅徒歩27分
- 千石駅徒歩33分
- 新板橋駅徒歩33分
JR埼京線
- 板橋駅徒歩28分
- 周辺情報は2023年07月21日時点のものになります。
- 周辺情報は、参考情報としてのみご利用ください(周辺情報は、株式会社LIFULLが地図情報の提供事業者から提供を受けた情報とLIFULL HOME'Sの物件情報に基づき、独自の方法で抽出し提供しているものです。周辺情報は、移転や閉鎖等により情報が最新ではない、または正しくない場合がありますが、地図情報の提供事業者から提供された情報をそのまま周辺情報として表示しているため、正確かつ最新の情報へ修正することができないことがあります。)
- 周辺情報は、株式会社LIFULLが掲載するものであり、不動産物件情報を掲載している不動産会社が掲載するものではありません
- 交通情報の一部については、株式会社LIFULLが掲載するものであり、不動産物件情報を掲載している不動産会社が掲載するものではない場合があります。交通情報に関する質問などは株式会社LIFULLにお問合せください













































