LIFULL HOME'Sは物件鮮度No.1!※評価について
京都市営烏丸線 今出川駅 徒歩15分
12.05万円/管理費等9,500円
19時間前 更新
画像一覧
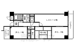
1/30間取り
間取
2/30外観
3/30外観
4/30リビング/ダイニング
広々とした室内です。
5/30リビング/ダイニング
室内別角度です。
6/30リビング/ダイニング
別部屋です。
7/30リビング/ダイニング
別部屋の別角度です。
8/30リビング/ダイニング
別部屋の別角度です。
9/30室内
別部屋です。
10/30室内
脱衣所です。
11/30キッチン
綺麗なキッチンです。
12/30キッチン
綺麗なキッチンです。
13/30キッチン
キッチンの収納です。
14/30キッチン
キッチンの収納です。
15/30キッチン
シンクです。
16/30キッチン
コンロです。
17/30浴室
広々とした浴室です。
18/30浴室
広々とした浴室です。
19/30トイレ
綺麗なトイレです。
20/30洗面
綺麗な洗面台です。
21/30収納
広々とした収納です。
22/30収納
靴箱です。
23/30収納
広々とした収納です。
24/30収納
広々とした収納です。
25/30設備
来客時も安心です。
26/30設備
給湯器です。
27/30設備
室内洗濯機置きです。
28/30玄関
広々とした玄関です。
29/30バルコニー
広々としたバルコニーです。
30/30周辺
KYOTO COOP西陣店まで80m 店内広々とした生協です。
間取り
外観
外観
リビング/ダイニング
リビング/ダイニング
リビング/ダイニング
リビング/ダイニング
リビング/ダイニング
室内
室内
キッチン
キッチン
キッチン
キッチン
キッチン
キッチン
浴室
浴室
トイレ
洗面
収納
収納
収納
収納
設備
設備
設備
玄関
バルコニー
周辺
仲介手数料割引
仲介手数料 賃料50%(税別)でご紹介可能です。
- 利用条件
- 株式会社京都ライフ 四条烏丸店で利用可
- 他特典との併用可
- 法人契約・事業用は除きます。
利用方法
来店時に本特典の画面をスマートフォンやタブレットでスタッフに提示、または画面印刷した用紙を提示ください。
有効期限 なし
乾隆学区でお探しならここ 生活便利な今出川通り沿い。乾隆学区のファミリー物件です。
基本情報
不動産用語- 賃料
- 12.05万円
- 管理費等
- 9,500円
初期費用などお気軽にお問合せください
- 敷金/礼金
- 12.05万円/12.05万円
- 保証金/敷引・償却金
- -/-
- 交通
京都市営烏丸線 今出川駅 徒歩15分
京福電気鉄道北野線 北野白梅町駅 徒歩15分
- 所在地
京都府京都市上京区今出川通浄福寺西入北小路中之町
地図を見る- 築年月
- 2000年12月(築25年)
- 主要採光面
- 南
- 専有面積
- 67.5㎡
- バルコニー面積
- -
- 所在階/階数
- 4階/9階建
- 現況
- 空家
- 入居可能時期
- 即時

人気物件はすぐに埋まってしまいます。
気になったらお早めにお問合せください。
- 情報公開日
2025/11/07
22日前 公開
- 情報更新日
2025/11/28
19時間前 更新
- 次回更新
予定日 - 2025/12/11
物件のこだわり/設備・条件
新築(非該当)
2階以上の物件(該当)
南向き(該当)
駐車場(非該当)
オートロック(該当)
エアコン(非該当)
バス・トイレ別(該当)
追焚機能(非該当)
フローリング(該当)
ペット相談(非該当)
位置
角部屋入居条件
二人入居可、即入居可キッチン/バス・トイレ
設備・サービス
オートロック、防犯カメラ、シューズボックス、BS対応、光ファイバー、公営水道、都市ガス、下水、フローリング、バルコニー、室内洗濯機置場、南面バルコニー、エレベーター、駐輪場ありその他
住まい探し特典あり備考
生活便利な今出川通り沿いの9階建てマンション。 全戸角部屋・収納充実3LDK。 オートロックに防犯カメラでセキュリティー性が高く 安心ですね。 周辺は市バスのアクセスも良く、お買い物が便利な 立地でファミリー様におすすめな物件です。 更新料が30,000円で長くお住まいいただけますよ。 物件情報はもちろん京都のエリア情報まで幅広く対応させていただきます!
物件周辺の生活情報
学校
- 乾隆小学校(700m)
- 嘉楽中学校(202m)
買い物
- コンビニ(220m)
- スーパー(80m)
- ドラッグストア(532m)
その他施設
- 総合病院(1,300m)
- 銀行(400m)
- ホームセンターコーナン西陣上七軒店(720m)
交通
- 京都市営烏丸線 今出川駅 徒歩15分
- 普通(停車)
- 急行(停車)
- 京福電気鉄道北野線 北野白梅町駅 徒歩15分
- 普通(停車)
※急行等の停車駅情報について
急行等の停車駅に関するデータは、随時更新をしておりますが、最新の内容であることを保証するものではありません。
最新かつ正確な情報につきましては、各鉄道会社のウェブサイトにてご確認ください
物件概要
- 建物構造
- SRC(鉄骨鉄筋コンクリート)
- 駐車場
- 空無
- 総戸数
- 16戸
- 契約形態
- -
- 契約期間
- 2年間
- 更新料
- 30,000円
- その他費用
- 鍵交換費用:15,000円、室内清掃費用:55,000円
- 保証会社
加入要
保証会社:日本セーフティー
保証会社利用料:初回:月額賃料等の60%、更新時:1万円/1年
- 住宅保険
- 要
- 管理
- 管理員:巡回
- LIFULL HOME'S
物件番号 - 0106225-0320261
- 自社管理番号
- 28994-401-03
- 取引態様
- 仲介
- 会社名
- 株式会社京都ライフ 四条烏丸店
営業スタッフコメント

株式会社京都ライフ 四条烏丸店店長
豊原勇介
丁寧な応対を心がけております。
業界経験10年
資格少額短期保険募集人
- スタッフ情報
- 創業40年以上にわたり京都市の中心にて賃貸仲介業をさせていただいております。 当店四条烏丸店は、京都市内のビジネス街である四条烏丸に店舗を構えており、 社会人のお客様、転勤等の法人契約などのお客様と多く関わらせていただいております。
創業40年以上にわたり京都市の中心にて賃貸仲介業をさせていただいております。 当店四条烏丸店は、京都市内のビジネス街である四条烏丸に店舗を構えており、 社会人のお客様、転勤等の法人契約などのお客様と多く関わらせていただいております。
- 電話でお問合せ(通話無料)
お問合せ先 :株式会社京都ライフ 四条烏丸店
不動産会社情報
株式会社京都ライフ 四条烏丸店京都ライフ四条烏丸店
京都府京都市下京区四条通新町東入月鉾町47-15
京都市営烏丸線 四条駅 徒歩3分
- 営業時間
- 09:30~19:00
- 定休日
- 年中無休(盆正月を除く)
京都に生まれて四十年かんたんお部屋探しでおなじみの京都ライフ「四条烏丸店」。
- 店舗の特徴
- 賃貸管理業務
- 引越し業者紹介可
- 年中無休
- 送迎あり
- オンライン相談可
- 保証人不要な物件あり
- 法人契約取扱い
- 女性スタッフ対応可
- 19時以降も営業
- 駅から歩いて3分以内
電話でお問合せお客様の電話番号は不動産会社には通知されません
- 不動産会社に
つながります
お客様の電話番号は不動産会社に通知されません
- ※光IP電話、及びIP電話からはご利用になれません
- ※お電話によるお問合せは、店舗営業時間内にお願いします。つながらない場合は、お問合せフォームよりお問合せください
- ※不動産会社がお電話に出られなかった場合、お問合せいただいた後に不動産会社より折り返しのお電話がある場合がございます(お客様が非通知設定した場合は対象外です)
- ※株式会社LIFULLは電話会社が提供するサービスを介してお客様の発信者番号を受領後、折り返し専用の電話番号を発番してお問合せの不動産会社に通知します(お客様の発信者番号がお問合せの不動産会社に通知されることはございません)
- ※携帯電話からお問合せいただいた方に対し、株式会社LIFULLは電話会社が提供するメッセ―ジサービスを介してお客様の発信者番号を受領後、ショートメッセージ(SMS)またはLINE通知メッセージによるお問合せ内容に関する通知をお届けする場合があります
- ※お客様が通話中に不動産会社にお伝えになったお客様の個人情報及び、電話会社が発番する折り返し専用の電話番号は、お問合せ先不動産会社が資料送付・電子メール送信・電話連絡などの目的で保管する可能性があります。お問合せ先不動産会社が保管する個人情報の取扱いについては、各不動産会社に直接お問合せください
- ※株式会社LIFULLでは本サービスを円滑に運用するために、お客様の発信者番号をサービスご利用の控えとして一定期間保管いたします
- ※上記および株式会社LIFULLの個人情報の取扱い方針に同意のうえ、お電話ください
【LIFULL HOME'S物件番号】0106225-0320261【自社管理番号】28994-401-03
オンライン対応
オンライン内見・オンライン相談・IT重説に対応している物件です

「オンライン内見」「オンライン相談」「IT重説」とは?
物件の内見や不動産会社スタッフとの相談、契約前の重要事項説明をオンライン(ビデオ通話)で行うことができるサービスです。
オンライン内見
ビデオ通話で現地(物件)にいる不動産会社スタッフと映像・音声を使ってリアルタイムで会話しながら内見ができます。
オンライン相談
「物件について聞きたいことがある」など不動産会社スタッフへの相談もビデオ通話で行うことができます。
IT重説
契約前の重要事項説明(重説)をビデオ通話で行うことができます。
利用時の注意事項
- ビデオ通話については各不動産会社指定のものとなります。
- ビデオ通話利用時には通信が発生します。従量課金制通信サービスや通信量に上限があるネット回線・プランを利用する場合は、通信量にご注意ください。
- 通信速度やアプリの設定によってはビデオ通話の画質が低下することがあります。安定した画質で利用するためにも、Wi-Fi環境下での利用を推奨します。
- ご利用のビデオ通話アプリによっては、対象のOSやブラウザに制限がある場合があります。詳しくはお問合せ先不動産会社にご確認ください。
初期費用・月額費用をあわせて確認!この物件に住んだときの費用めやす
めやすを見るこの物件に住んだときの費用めやす
- 初期費用
- 月額費用
- 追加費用※ご確認ください
追加で費用が
かかる場合があります
必ずご確認ください
初期費用めやす約0円
追加で費用がかかります(※)敷金
120,500
- 礼金
120,500
賃料+共益費・管理費の1ヶ月分として換算
賃料の1ヶ月分+税として換算。不動産会社によって金額が異なるため正確な金額は不動産会社にお問合せください
※追加費用もチェック!
これらの項目以外にも費用がかかる場合があります。正確な金額は不動産会社にお問合せください。
- 初期費用
- 鍵交換費:15,000円
- 室内清掃費:55,000円
- 火災保険費:不動産会社に要確認
- 保証会社
- 初回:月額賃料等の60%、更新時:1万円/1年
不動産会社より
乾隆学区でお探しならここ 生活便利な今出川通り沿い。乾隆学区のファミリー物件です。
生活便利な今出川通り沿いの9階建てマンション。 全戸角部屋・収納充実3LDK。 オートロックに防犯カメラでセキュリティー性が高く 安心ですね。 周辺は市バスのアクセスも良く、お買い物が便利な 立地でファミリー様におすすめな物件です。 更新料が30,000円で長くお住まいいただけますよ。 物件情報はもちろん京都のエリア情報まで幅広く対応させていただきます!
- 保存する
- 共有する
- ※各種情報と現状に差異がある場合は、現状優先となります
- ※不動産会社が入力した情報を基に物件の位置を表示しています。詳しくは不動産会社までお問合せください
- ※不動産会社の方からの上記電話番号によるお問合せはお断りしております。こちら不動産会社詳細からお問合せください
- ※LIFULL HOME'Sは物件鮮度No.1を目指していきます。閲覧中の物件が「成約済である」「実際の物件情報と異なる点がある」などの場合、「掲載110番」からお問合せください
- ※QRコードは株式会社デンソーウェーブの登録商標です
したい暮らしのタグから探す
最近見た賃貸物件
LIFULL HOME'S 地図・周辺情報
買い物
- セブンイレブン 京都西陣郵便局店
- 業務スーパー 西陣店
- ドラッグユタカ西陣店
- セブンイレブン 京都千本今出川店
- イオンスタイル西陣小町
グルメ
- 無添くら寿司 西陣店
- 餃子の王将 中立売店
- マクドナルド 千本中立売店
- すき家 千本中立売店
- サイゼリヤ 今出川駅前店
育児・教育
- 浄福寺幼稚園
- 京都市立西陣中央小学校
- 京都市立嘉楽中学校
- 京都市立乾隆幼稚園
- 京都市立乾隆小学校
医療
- 社会医療法人西陣健康会堀川病院
- 社会福祉法人京都社会事業財団西陣病院
- 医療法人相馬病院
- 医療法人愛寿会同仁病院
- 室町病院
公共施設・郵便局
- 西陣郵便局
- 京都市北図書館
- 京都府上京警察署
- 京都千本寺之内郵便局
- 京都市中央図書館
公園
- 船岡山公園
- 梅屋広場公園
- 京都御苑
- 大宮交通公園
- 土堂公園
利用可能な駅
- すべての駅
京都市営烏丸線
- 今出川駅徒歩15分
京福電気鉄道北野線
- 北野白梅町駅徒歩15分
- 周辺情報は2023年07月21日時点のものになります。
- 周辺情報は、参考情報としてのみご利用ください(周辺情報は、株式会社LIFULLが地図情報の提供事業者から提供を受けた情報とLIFULL HOME'Sの物件情報に基づき、独自の方法で抽出し提供しているものです。周辺情報は、移転や閉鎖等により情報が最新ではない、または正しくない場合がありますが、地図情報の提供事業者から提供された情報をそのまま周辺情報として表示しているため、正確かつ最新の情報へ修正することができないことがあります。)
- 周辺情報は、株式会社LIFULLが掲載するものであり、不動産物件情報を掲載している不動産会社が掲載するものではありません
- 交通情報の一部については、株式会社LIFULLが掲載するものであり、不動産物件情報を掲載している不動産会社が掲載するものではない場合があります。交通情報に関する質問などは株式会社LIFULLにお問合せください









































