LIFULL HOME'Sは物件鮮度No.1!※評価について
ラポート小林 5階/505
7.1万円/管理費等8,000円
6時間前 更新
画像一覧
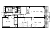
1/30間取り
2/30外観
3/30外観
4/30リビング/ダイニング
リビング
5/30リビング/ダイニング
リビング
6/30室内
洋室
7/30寝室
洋室
8/30寝室
洋室
9/30寝室
和室
10/30子供部屋
洋室
11/30キッチン
キッチン
12/30キッチン
キッチン
13/30浴室
風呂
14/30浴室
風呂
15/30トイレ
トイレ
16/30洗面
洗面所
17/30収納
収納
18/30設備
下駄箱
19/30設備
冷蔵庫置場
20/30設備
洗濯機置場
21/30玄関
玄関
22/30バルコニー
ベランダ
23/30エントランス
エントランス
24/30その他
廊下
25/30その他
眺望
26/30その他
エアコン
27/30その他
給湯器リモコン
28/30その他
ドアフォン(TV含)
29/30その他
インターホン
30/30周辺
ハッピー 六原三室戸店まで240メートル
間取り
外観
外観
リビング/ダイニング
リビング/ダイニング
室内
寝室
寝室
寝室
子供部屋
キッチン
キッチン
浴室
浴室
トイレ
洗面
収納
設備
設備
設備
玄関
バルコニー
エントランス
その他
その他
その他
その他
その他
その他
周辺
お問合せ先 :株式会社エリッツ 六地蔵店
仲介手数料割引
ご成約時の仲介手数料が賃料の半月分(税別)です。
- 利用条件
- 株式会社エリッツ 六地蔵店で利用可
- 他特典との併用可
- 借主が法人または一部の物件は対象外です。
利用方法
来店時に本特典の画面をスマートフォンやタブレットでスタッフに提示、または画面印刷した用紙を提示ください。
有効期限 なし
ファミリー様にオススメの3LDKマンションです。--パノラマ掲載--
物件のこだわり/設備・条件
新築(非該当)
2階以上の物件(該当)
南向き(非該当)
駐車場あり(該当)
オートロック(該当)
エアコン(該当)
バス・トイレ別(該当)
追焚機能(非該当)
フローリング(該当)
ペット相談(非該当)
入居条件
二人入居可、即入居可キッチン/バス・トイレ
設備・サービス
オートロック、エアコン、クローゼット、シューズボックス、CATV、BS対応、光ファイバー、公営水道、都市ガス、下水、フローリング、バルコニー、室内洗濯機置場、エレベーター、駐車場あり、駐輪場ありその他
住まい探し特典あり備考
【三室戸小学校区域・東宇治中学校区域】京阪宇治線三室戸駅徒歩5分、JR奈良線宇治駅徒歩15分の2WAYアクセス可能で利便の良い住宅地にある分譲仕様の3LDK賃貸。人気のカウンターキッチンです。・光ファイバーインターネット接続可・プレート代(初回):3300円
物件周辺の生活情報
学校
- 三室戸小学校(890m)
- 東宇治中学校(1,800m)
買い物
- コンビニ(270m)
- スーパー(240m)
- ドラッグストア(270m)
その他施設
- 総合病院(2,250m)
交通
- JR奈良線 宇治駅 徒歩15分
- 普通(停車)
- 区間快速(停車)
- 快速(停車)
- みやこ路快速(停車)
- 京阪宇治線 三室戸駅 徒歩5分
- 普通(停車)
※急行等の停車駅情報について
急行等の停車駅に関するデータは、随時更新をしておりますが、最新の内容であることを保証するものではありません。
最新かつ正確な情報につきましては、各鉄道会社のウェブサイトにてご確認ください
物件周辺の口コミ
- 京都府宇治市莵道に住む人の口コミ60代女性
ウグイスなどの鳥の鳴き声がしたり空気が綺麗で観光スポットも近くにあり、スーパーもたくさんあり住みやすい町です。
口コミを見る
この物件周辺に住む人の口コミ
口コミは、LIFULL HOME'Sが実際にこの物件の周辺に住む18歳~69歳の男女を対象に、WEBアンケート調査を実施しています。内容には回答者の主観的な表現が含まれる場合があるほか、事実と異なる場合もございます。ご了承ください。
- 京都府宇治市莵道に住む人の口コミ60代女性
- ウグイスなどの鳥の鳴き声がしたり空気が綺麗で観光スポットも近くにあり、スーパーもたくさんあり住みやすい町です。
- 京都府宇治市莵道に住む人の口コミ50代男性
- 平等院や歴史的な世界遺産もあり、買物に不自由がないので住みやすく落ち着いた街だと思う
- 京都府宇治市莵道に住む人の口コミ40代女性
- 近くに駅やスーパーがあり、便利です。治安もさほど悪くないので、住みやすいところだと思います。
- 京都府宇治市莵道に住む人の口コミ40代男性
- 終電が遅くまである(JR奈良線京都駅23時58分発、京阪宇治線中書島駅24時19分発)、交通の便が良い(JR奈良線30分毎、京阪宇治線10分毎)
- 京都府宇治市莵道に住む人の口コミ40代女性
- 今は子育てがしやすいので満足していますが、将来老後のことを考えると、買い物も病院も遠く、坂道を歩くことになると想像すると、生活が大変になると思うので。
- 京都府宇治市莵道に住む人の口コミ50代女性
- 京都市内に比べて静かで物価も安い。自然が多いので子育てしやすい。ただ、川が近いので春先に虫の大群が発生するのでそれだけが難点です。
- 京都府宇治市莵道に住む人の口コミ40代女性
- 日用品を揃えるには便利。趣向品や特別な物でも交通機関や車で一時間もかからなく購入出来る。少し道幅が狭いが何処でもアクセスしやすいし住みやすい。が 観光客が多いのでマナーが気になる
- 京都府宇治市莵道に住む人の口コミ50代男性
- 歴史ある街で観光スポットがたくさんある割に人混みを気にしなくてよい。また名産品は日本でも一番と言われていて自慢できる。
- 京都府宇治市莵道に住む人の口コミ30代男性
- 静かな環境で、自然も多いが、電車や高速道路の便がよく住みやすい
- 京都府宇治市莵道に住む人の口コミ50代男性
- 元々環境もいい歴史的な田舎町ですが、市政が停滞しておりサポート体制が弱い。従って、市民税も高いし公共サービスが悪いし、公共設備も充実していない。海外からの観光客で潤ってはいるが、寂しい田舎町です。
物件概要
- 建物構造
- RC(鉄筋コンクリート)
- 駐車場
- 空有 11,000円(税込)
- 総戸数
- 79戸
- 契約形態
- -
- 契約期間
- 2年間
- 更新料
- 33,000円
- その他費用
- 駐車場手数料(初回):11,000円、管理会社書類代(初回):11,000円、ベルヴィクラブ(初回):38,500円
- 保証会社
加入要
保証会社利用料:44、500円
- 住宅保険
- 要
- 管理
- -
- LIFULL HOME'S
物件番号 - 0118323-0228217
- 自社管理番号
- 7145-0505
- 取引態様
- 仲介
- 会社名
- 株式会社エリッツ 六地蔵店
営業スタッフコメント

株式会社エリッツ 六地蔵店
三崎日向
元気に精一杯務めさせていただきます。
業界経験4年
資格少額短期保険募集人
- 会社実績や特徴・サービス情報
- エリッツは京都No.1の店舗数を誇りますので、宇治市内に限らず、京都ならどこでもご紹介・ご案内させて頂けます。賃貸物件をお探しの方は、是非エリッツ六地蔵店をご利用下さいませ。
エリッツは京都No.1の店舗数を誇りますので、宇治市内に限らず、京都ならどこでもご紹介・ご案内させて頂けます。賃貸物件をお探しの方は、是非エリッツ六地蔵店をご利用下さいませ。
- 電話でお問合せ(通話無料)
お問合せ先 :株式会社エリッツ 六地蔵店
不動産会社情報
株式会社エリッツ 六地蔵店賃貸のエリッツ六地蔵店

京都府宇治市六地蔵奈良町74番地1 パデシオン六地蔵 ザ・ミッドモール1階
京都地下鉄東西線 六地蔵駅 徒歩1分
- 営業時間
- 10:00~19:00
- 定休日
- 水曜日(祝日を除く)、年末年始 お部屋探しのお問い合わせは無休
優良店認定
エリッツは京都No.1の店舗数を誇りますので、宇治市内に限らず、京都ならどこでもご紹介・ご案内させて頂けます!!賃貸物件をお探しの方は、是非エリッツ六地蔵店をご利用下さいませ!
- 店舗の特徴
- 賃貸管理業務
- 引越し業者紹介可
- 駐車場あり
- バリアフリー
- 系列店舗での対応可
- オンライン相談可
- 保証人不要な物件あり
- 法人契約取扱い
- 駅から歩いて3分以内
電話でお問合せお客様の電話番号は不動産会社には通知されません
- 不動産会社に
つながります
お客様の電話番号は不動産会社に通知されません
- ※光IP電話、及びIP電話からはご利用になれません
- ※お電話によるお問合せは、店舗営業時間内にお願いします。つながらない場合は、お問合せフォームよりお問合せください
- ※不動産会社がお電話に出られなかった場合、お問合せいただいた後に不動産会社より折り返しのお電話がある場合がございます(お客様が非通知設定した場合は対象外です)
- ※株式会社LIFULLは電話会社が提供するサービスを介してお客様の発信者番号を受領後、折り返し専用の電話番号を発番してお問合せの不動産会社に通知します(お客様の発信者番号がお問合せの不動産会社に通知されることはございません)
- ※携帯電話からお問合せいただいた方に対し、株式会社LIFULLは電話会社が提供するメッセ―ジサービスを介してお客様の発信者番号を受領後、ショートメッセージ(SMS)またはLINE通知メッセージによるお問合せ内容に関する通知をお届けする場合があります
- ※お客様が通話中に不動産会社にお伝えになったお客様の個人情報及び、電話会社が発番する折り返し専用の電話番号は、お問合せ先不動産会社が資料送付・電子メール送信・電話連絡などの目的で保管する可能性があります。お問合せ先不動産会社が保管する個人情報の取扱いについては、各不動産会社に直接お問合せください
- ※株式会社LIFULLでは本サービスを円滑に運用するために、お客様の発信者番号をサービスご利用の控えとして一定期間保管いたします
- ※上記および株式会社LIFULLの個人情報の取扱い方針に同意のうえ、お電話ください
【LIFULL HOME'S物件番号】0118323-0228217【自社管理番号】7145-0505
オンライン対応
オンライン内見・オンライン相談・IT重説に対応している物件です

「オンライン内見」「オンライン相談」「IT重説」とは?
物件の内見や不動産会社スタッフとの相談、契約前の重要事項説明をオンライン(ビデオ通話)で行うことができるサービスです。
オンライン内見
ビデオ通話で現地(物件)にいる不動産会社スタッフと映像・音声を使ってリアルタイムで会話しながら内見ができます。
オンライン相談
「物件について聞きたいことがある」など不動産会社スタッフへの相談もビデオ通話で行うことができます。
IT重説
契約前の重要事項説明(重説)をビデオ通話で行うことができます。
利用時の注意事項
- ビデオ通話については各不動産会社指定のものとなります。
- ビデオ通話利用時には通信が発生します。従量課金制通信サービスや通信量に上限があるネット回線・プランを利用する場合は、通信量にご注意ください。
- 通信速度やアプリの設定によってはビデオ通話の画質が低下することがあります。安定した画質で利用するためにも、Wi-Fi環境下での利用を推奨します。
- ご利用のビデオ通話アプリによっては、対象のOSやブラウザに制限がある場合があります。詳しくはお問合せ先不動産会社にご確認ください。
初期費用・月額費用をあわせて確認!この物件に住んだときの費用めやす
めやすを見るこの物件に住んだときの費用めやす
- 初期費用
- 月額費用
- 追加費用※ご確認ください
追加で費用が
かかる場合があります
必ずご確認ください
初期費用めやす約0円
追加で費用がかかります(※)敷金
0
- 礼金
0
賃料+共益費・管理費の1ヶ月分として換算
賃料の1ヶ月分+税として換算。不動産会社によって金額が異なるため正確な金額は不動産会社にお問合せください
※追加費用もチェック!
これらの項目以外にも費用がかかる場合があります。正確な金額は不動産会社にお問合せください。
- 初期費用
- 鍵交換費:不動産会社に要確認
- 室内清掃費:不動産会社に要確認
- 火災保険費:不動産会社に要確認
- 月額費用
- 駐車場費:11,000円(税込)※契約任意
- その他
- 駐車場手数料(初回):11000円
- 管理会社書類代(初回):11000円
- ベルヴィクラブ(初回):38500円
- 保証会社
- 44、500円
不動産会社より
ファミリー様にオススメの3LDKマンションです。--パノラマ掲載--
【三室戸小学校区域・東宇治中学校区域】京阪宇治線三室戸駅徒歩5分、JR奈良線宇治駅徒歩15分の2WAYアクセス可能で利便の良い住宅地にある分譲仕様の3LDK賃貸。人気のカウンターキッチンです。・光ファイバーインターネット接続可・プレート代(初回):3300円
- 保存する
- 共有する
- ※各種情報と現状に差異がある場合は、現状優先となります
- ※不動産会社が入力した情報を基に物件の位置を表示しています。詳しくは不動産会社までお問合せください
- ※不動産会社の方からの上記電話番号によるお問合せはお断りしております。こちら不動産会社詳細からお問合せください
- ※LIFULL HOME'Sは物件鮮度No.1を目指していきます。閲覧中の物件が「成約済である」「実際の物件情報と異なる点がある」などの場合、「掲載110番」からお問合せください
- ※QRコードは株式会社デンソーウェーブの登録商標です
したい暮らしのタグから探す
この物件を取扱う他の会社
LIFULL HOME'Sでは、主要項目が同一の物件をまとめて表示しています。所在地や営業時間、掲載画像等から不動産会社を選んでお問合せください。
株式会社エリッツ 新田辺店
京都府京田辺市田辺中央1丁目3番地1 新田辺ステーションパーク南館
近鉄京都線 新田辺駅 徒歩2分
- 営業時間
- 10:00~19:00
- 定休日
- 火・水曜日(祝日を除く)、年末年始 ※部屋探しのお問い合わせは無休
LIFULL HOME'S 地図・周辺情報
買い物
- セブンイレブン 宇治三室戸店
- ハッピー六原三室戸店
- ダックス宇治三室戸店
- ローソン 宇治菟道店
- ワッツウィズ宇治莵道フレンドマート店
グルメ
- ガスト 宇治東店(から好し取扱店)
- サガミ 宇治東店
- すし処函館市場京阪宇治店
- マクドナルド 宇治東アルプラザ店
- リンガーハット アル・プラザ宇治東店
育児・教育
- あさひ保育園
- 宇治市立三室戸小学校
- 宇治市立東宇治中学校
- みんなのき三室戸こども園
- 宇治市立菟道小学校
医療
- 医療法人社団一心会都倉病院
- 宇治武田病院
- 医療法人栄仁会宇治おうばく病院介護医療院むつみ
- 医療法人栄仁会・宇治おうばく病院
- 京都府立洛南病院
公共施設・郵便局
- 宇治菟道郵便局
- 宇治市東宇治図書館
- 宇治警察署
- 宇治橋郵便局
- 宇治市中央図書館
公園
- お茶と宇治のまち歴史公園
- 大吉山風致公園
- 莵道公園
- 東隼上り児童公園
- 府立宇治公園
利用可能な駅
- 徒歩10分以内
京阪宇治線
- 三室戸駅徒歩5分
- すべての駅
京阪宇治線
- 宇治駅徒歩11分
- 黄檗駅徒歩29分
JR奈良線
- 宇治駅徒歩15分
- 黄檗駅徒歩25分
- JR小倉駅3.2km
近鉄京都線
- 小倉駅3.5km
- 周辺情報は2023年07月21日時点のものになります。
- 周辺情報は、参考情報としてのみご利用ください(周辺情報は、株式会社LIFULLが地図情報の提供事業者から提供を受けた情報とLIFULL HOME'Sの物件情報に基づき、独自の方法で抽出し提供しているものです。周辺情報は、移転や閉鎖等により情報が最新ではない、または正しくない場合がありますが、地図情報の提供事業者から提供された情報をそのまま周辺情報として表示しているため、正確かつ最新の情報へ修正することができないことがあります。)
- 周辺情報は、株式会社LIFULLが掲載するものであり、不動産物件情報を掲載している不動産会社が掲載するものではありません
- 交通情報の一部については、株式会社LIFULLが掲載するものであり、不動産物件情報を掲載している不動産会社が掲載するものではない場合があります。交通情報に関する質問などは株式会社LIFULLにお問合せください

















