LIFULL HOME'Sは物件鮮度No.1!※評価について
ジェノヴィア京成立石IIIスカイガーデン 2階/206
9.7万円/管理費等11,000円
3時間前 更新
画像一覧
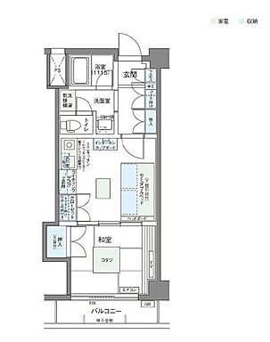
1/28間取り
2/28外観
3/28リビング/ダイニング
4/28リビング/ダイニング
5/28室内
6/28室内
7/28キッチン
8/28キッチン
9/28浴室
10/28トイレ
11/28洗面
12/28収納
13/28収納
14/28設備
15/28設備
16/28設備
17/28設備
18/28玄関
19/28エントランス
20/28その他
21/28周辺
ユアエルム青戸 徒歩15分。ショッピングセンター 1150m
22/28周辺
サミットストア 徒歩1分。スーパー 70m
23/28周辺
いなげやお花茶屋店 徒歩9分。 690m
24/28周辺
業務スーパー 徒歩5分。スーパー 350m
25/28周辺
セブンイレブン葛飾立石4丁目店 徒歩5分。 390m
26/28周辺
ウエルシア葛飾立石店 徒歩2分。 130m
27/28周辺
どらっぐぱぱす青戸店 徒歩13分。 1040m
28/28周辺
Olympic立石店 徒歩5分。 360m
間取り
外観
リビング/ダイニング
リビング/ダイニング
室内
室内
キッチン
キッチン
浴室
トイレ
洗面
収納
収納
設備
設備
設備
設備
玄関
エントランス
その他
周辺
周辺
周辺
周辺
周辺
周辺
周辺
周辺
お問合せ先 :株式会社タウンハウジング東京 新小岩店
住まい探し特典内容
仲介手数料が50%OFF〜最大100%OFFタウン引っ越しサービスが10%OFF
- 利用条件
- 株式会社タウンハウジング東京 新小岩店で利用可
- 他特典との併用はできませんので、ご注意ください。
- 当社を過去にご利用いただいたお客様限定 詳細は担当にお尋ねください。
利用方法
来店時に本特典の画面をスマートフォンやタブレットでスタッフに提示、または画面印刷した用紙を提示ください。
有効期限 なし
定期借家
この物件の契約期間は、2年間です
※定期借家物件は、賃貸借契約期間満了後、原則として契約の更新ができない物件です。貸主との合意があれば再契約が可能な場合があります
お部屋探しは、タウンハウジングにお任せください!
物件のこだわり/設備・条件
新築(非該当)
2階以上の物件(該当)
南向き(非該当)
駐車場(非該当)
オートロック(該当)
エアコン(該当)
バス・トイレ別(該当)
追焚機能(非該当)
フローリング(該当)
ペット相談可(該当)
入居条件
楽器不可、事務所不可、二人入居可、ペット相談、即入居可、小型犬可キッチン/バス・トイレ
設備・サービス
オートロック、TVモニタ付インターホン、エアコン、クローゼット、インターネット対応、インターネット使用料無料、都市ガス、フローリング、バルコニー、室内洗濯機置場、家具・家電付き、全室フローリング、エレベーター、宅配ボックスその他
初期費用カード決済可、分譲賃貸、住まい探し特典あり備考
創業44年 東京・神奈川・埼玉・千葉、直営139店舗のネットワークでお部屋探しをサポートするタウンハウジングです!
物件周辺の生活情報
買い物
- コンビニ(390m)
- スーパー(70m)
- ドラッグストア(130m)
その他施設
- ユアエルム青戸(1,150m)
交通
- 京成押上線 京成立石駅 徒歩8分
- 普通(停車)
- 快速(通過)
- 通勤特急(通過)
- 特急(通過)
- アクセス特急(通過)
- 快特(通過)
- 京成本線 お花茶屋駅 徒歩13分
- 普通(停車)
- 快速(通過)
- 通勤特急(通過)
- 特急(通過)
- アクセス特急(通過)
- 快特(通過)
※急行等の停車駅情報について
急行等の停車駅に関するデータは、随時更新をしておりますが、最新の内容であることを保証するものではありません。
最新かつ正確な情報につきましては、各鉄道会社のウェブサイトにてご確認ください
物件周辺の口コミ
- 東京都葛飾区立石に住む人の口コミ30代女性
大型商店は少ないが、お店の数が多く、生活で不便を感じたことがない。病院も複数あり、患者が選べる状態。
口コミを見る
この物件周辺に住む人の口コミ
口コミは、LIFULL HOME'Sが実際にこの物件の周辺に住む18歳~69歳の男女を対象に、WEBアンケート調査を実施しています。内容には回答者の主観的な表現が含まれる場合があるほか、事実と異なる場合もございます。ご了承ください。
- 東京都葛飾区立石に住む人の口コミ30代女性
- 大型商店は少ないが、お店の数が多く、生活で不便を感じたことがない。病院も複数あり、患者が選べる状態。
- 東京都葛飾区立石に住む人の口コミ30代女性
- 23区内でありながら、安い八百屋やスーパーがあって生活には大変便利。都心にも30分以内で出ることができるので十分。
- 東京都葛飾区立石に住む人の口コミ20代女性
- 浅草線、京急線との接続により、移動の利便性が高い。公共福祉も充実しており、子育てもしやすそうに感じる
- 東京都葛飾区立石に住む人の口コミ30代女性
- 下町なので、品の良さはないが、駅前の商店街や活気など人情味があり治安も全く不安になることがないのでそう言った意味でも満足。ただ都心へのアクセスの悪さやおしゃれ感はないのでその面は若干不満
- 東京都葛飾区立石に住む人の口コミ30代女性
- 駅の近くに商店街があり、惣菜を売っているお店が充実しているので会社帰りに購入することができて便利。気軽に食べることができるお店もあるので、料理をしたくない時に行くことができる。
- 東京都葛飾区東新小岩に住む人の口コミ30代女性
- 交通便利で、買い物とか、日常生活は最適ですけど、のんびりしたい時入れるオシャレで美味しいコーヒー屋さんがなくて、困ります
- 東京都葛飾区東新小岩に住む人の口コミ30代女性
- 葛飾区は、住みやすくて交通のアクセスも悪くない点ですね。やはり、住んでいて良い街なのだと思います。
- 東京都葛飾区白鳥に住む人の口コミ20代女性
- 街がゴミで汚れていない、深夜に騒音がない、危険な目にあったことがないという点で、住みやすい。また、近くにスーパー、ジム、病院が揃っている点でも住みやすい。
- 東京都葛飾区青戸に住む人の口コミ30代女性
- 閑静な住宅街で川もあり、散歩や運動ができる。スーパーも何店舗かあり、買い物もしやすいと思います。役所なども比較的行きやすいし、治安も悪く無い
- 東京都葛飾区奥戸に住む人の口コミ20代女性
- 業務用スーパーや5階建の100円ショップ、昔ながらの商店街があり買い物にとても便利です。駅前は賑やかですが、少し離れると川があり、大きな空を見ながらペットの散歩やランニングが出来ます。
物件概要
- 建物構造
- RC(鉄筋コンクリート)
- 駐車場
- 空無
- 総戸数
- -
- 契約形態
定期借家
- 契約期間
- 2年間
- 更新料
- 新賃料の1ヶ月分
- その他費用
- 鍵交換費用:33,000円、室内清掃費用:55,000円、事務手数料:22,000円、リブクラブ/月:2,200円、SBI少額短期保険/月:800円
- 保証会社
加入要
保証会社:その他
保証会社利用料:初回保証料:総賃料の100% 更新時:20,000円/年毎
- 住宅保険
- 不要
- 管理
- -
- LIFULL HOME'S
物件番号 - 0005021-0253312
- 自社管理番号
- R00504-132339
- 取引態様
- 仲介
- 会社名
- 株式会社タウンハウジング東京 新小岩店
営業スタッフコメント

株式会社タウンハウジング東京 新小岩店ルームアドバイザー
任海瑶
新小岩周辺はもちろん京成線・都営新宿線等他エリアも幅広く対応させていただきます!
業界経験2年
- 物件情報
- 当社では、契約金等の決済にクレジットカード決済を導入しており、お客様に契約をより身近に感じて頂けます!また、ご来店の全てのお客様にフリードリンクをご提供させて頂きます!首都圏直営店舗が多数あり、様々なご条件でのお部屋探しにご対応出来ます!一緒に楽しくお部屋探しをしましょう!
当社では、契約金等の決済にクレジットカード決済を導入しており、お客様に契約をより身近に感じて頂けます!また、ご来店の全てのお客様にフリードリンクをご提供させて頂きます!首都圏直営店舗が多数あり、様々なご条件でのお部屋探しにご対応出来ます!一緒に楽しくお部屋探しをしましょう!
- 電話でお問合せ(通話無料)
お問合せ先 :株式会社タウンハウジング東京 新小岩店
不動産会社情報
株式会社タウンハウジング東京 新小岩店

東京都葛飾区新小岩1丁目40-8 エイワビル2階
JR総武線 新小岩駅 徒歩2分
- 営業時間
- 10:00~19:00
- 定休日
- 毎週水曜日 年末年始 GW 夏季休暇
優良店認定
ご遠方のお客様も安心のIT重説対応!オンライン内見で自宅にいながら物件をスマホで見ることも可能です!葛飾区・江戸川区のお部屋探しはタウンハウジング東京新小岩店へ!
- 店舗の特徴
- 賃貸管理業務
- リフォーム対応
- 引越し業者紹介可
- 系列店舗での対応可
- オンライン相談可
- 保証人不要な物件あり
- 法人契約取扱い
- 女性スタッフ対応可
- 駅から歩いて3分以内
電話でお問合せお客様の電話番号は不動産会社には通知されません
- 不動産会社に
つながります
お客様の電話番号は不動産会社に通知されません
- ※光IP電話、及びIP電話からはご利用になれません
- ※お電話によるお問合せは、店舗営業時間内にお願いします。つながらない場合は、お問合せフォームよりお問合せください
- ※不動産会社がお電話に出られなかった場合、お問合せいただいた後に不動産会社より折り返しのお電話がある場合がございます(お客様が非通知設定した場合は対象外です)
- ※株式会社LIFULLは電話会社が提供するサービスを介してお客様の発信者番号を受領後、折り返し専用の電話番号を発番してお問合せの不動産会社に通知します(お客様の発信者番号がお問合せの不動産会社に通知されることはございません)
- ※携帯電話からお問合せいただいた方に対し、株式会社LIFULLは電話会社が提供するメッセ―ジサービスを介してお客様の発信者番号を受領後、ショートメッセージ(SMS)またはLINE通知メッセージによるお問合せ内容に関する通知をお届けする場合があります
- ※お客様が通話中に不動産会社にお伝えになったお客様の個人情報及び、電話会社が発番する折り返し専用の電話番号は、お問合せ先不動産会社が資料送付・電子メール送信・電話連絡などの目的で保管する可能性があります。お問合せ先不動産会社が保管する個人情報の取扱いについては、各不動産会社に直接お問合せください
- ※株式会社LIFULLでは本サービスを円滑に運用するために、お客様の発信者番号をサービスご利用の控えとして一定期間保管いたします
- ※上記および株式会社LIFULLの個人情報の取扱い方針に同意のうえ、お電話ください
【LIFULL HOME'S物件番号】0005021-0253312【自社管理番号】R00504-132339
オンライン対応
オンライン内見・オンライン相談・IT重説に対応している物件です

「オンライン内見」「オンライン相談」「IT重説」とは?
物件の内見や不動産会社スタッフとの相談、契約前の重要事項説明をオンライン(ビデオ通話)で行うことができるサービスです。
オンライン内見
ビデオ通話で現地(物件)にいる不動産会社スタッフと映像・音声を使ってリアルタイムで会話しながら内見ができます。
オンライン相談
「物件について聞きたいことがある」など不動産会社スタッフへの相談もビデオ通話で行うことができます。
IT重説
契約前の重要事項説明(重説)をビデオ通話で行うことができます。
利用時の注意事項
- ビデオ通話については各不動産会社指定のものとなります。
- ビデオ通話利用時には通信が発生します。従量課金制通信サービスや通信量に上限があるネット回線・プランを利用する場合は、通信量にご注意ください。
- 通信速度やアプリの設定によってはビデオ通話の画質が低下することがあります。安定した画質で利用するためにも、Wi-Fi環境下での利用を推奨します。
- ご利用のビデオ通話アプリによっては、対象のOSやブラウザに制限がある場合があります。詳しくはお問合せ先不動産会社にご確認ください。
初期費用・月額費用をあわせて確認!この物件に住んだときの費用めやす
めやすを見るこの物件に住んだときの費用めやす
- 初期費用
- 月額費用
- 追加費用※ご確認ください
追加で費用が
かかる場合があります
必ずご確認ください
初期費用めやす約0円
追加で費用がかかります(※)敷金
0
- 礼金
97,000
賃料+共益費・管理費の1ヶ月分として換算
賃料の1ヶ月分+税として換算。不動産会社によって金額が異なるため正確な金額は不動産会社にお問合せください
※追加費用もチェック!
これらの項目以外にも費用がかかる場合があります。正確な金額は不動産会社にお問合せください。
- 初期費用
- 鍵交換費:33,000円
- 室内清掃費:55,000円
- 火災保険費:不動産会社に要確認
- その他
- 事務手数料:22000円
- リブクラブ/月:2200円
- SBI少額短期保険/月:800円
- 保証会社
- 初回保証料:総賃料の100% 更新時:20,000円/年毎
不動産会社より
お部屋探しは、タウンハウジングにお任せください!
創業44年 東京・神奈川・埼玉・千葉、直営139店舗のネットワークでお部屋探しをサポートするタウンハウジングです!
- 保存する
- 共有する
- ※各種情報と現状に差異がある場合は、現状優先となります
- ※不動産会社が入力した情報を基に物件の位置を表示しています。詳しくは不動産会社までお問合せください
- ※不動産会社の方からの上記電話番号によるお問合せはお断りしております。こちら不動産会社詳細からお問合せください
- ※LIFULL HOME'Sは物件鮮度No.1を目指していきます。閲覧中の物件が「成約済である」「実際の物件情報と異なる点がある」などの場合、「掲載110番」からお問合せください
- ※QRコードは株式会社デンソーウェーブの登録商標です
したい暮らしのタグから探す
この物件を取扱う他の会社
LIFULL HOME'Sでは、主要項目が同一の物件をまとめて表示しています。所在地や営業時間、掲載画像等から不動産会社を選んでお問合せください。
最近見た賃貸物件
LIFULL HOME'S 地図・周辺情報
買い物
- ローソン 立石一丁目店
- ダイソー京成立石駅前店
- ユニバーサルドラッグ立石駅前店
- ファミリーマート 立石駅前店
- ヨークフーズ立石店
グルメ
- 松屋 京成立石店
- 天丼てんや 立石店
- ドトールコーヒーショップ京成立石店
- サンマルクカフェ京成立石店
- 中華食堂日高屋京成立石店
育児・教育
- 東立石保育園
- 葛飾区立本田小学校
- 葛飾区立立石中学校
- 摩耶幼稚園
- 葛飾区立清和小学校
医療
- 平成立石病院
- 葛飾厚生会東立病院
- 小澤病院
- 医療法人社団明芳会イムス葛飾ハートセンター
- 医療法人社団明芳会イムスリハビリテーションセンター東京葛飾病院
公共施設・郵便局
- 立石郵便局
- 葛飾区立立石図書館
- 葛飾区役所
- 葛飾立石一郵便局
- 葛飾区立奥戸地区図書館
公園
- 渋江公園
- 葛飾区奥戸総合スポーツセンター運動公園
- 青戸平和公園
- 北沼交通公園
- 荒川四ツ木橋緑地
利用可能な駅
- 徒歩10分以内
京成押上線
- 京成立石駅徒歩8分
- すべての駅
京成本線
- お花茶屋駅徒歩13分
- 青砥駅徒歩15分
- 堀切菖蒲園駅徒歩26分
京成押上線
- 四ツ木駅徒歩23分
- 八広駅徒歩34分
北総鉄道
- 京成高砂駅徒歩32分
東武伊勢崎線
- 堀切駅3.2km
- 鐘ヶ淵駅3.2km
- 東向島駅3.4km
JR常磐線
- 亀有駅3.3km
- 綾瀬駅4km
- 周辺情報は2023年07月21日時点のものになります。
- 周辺情報は、参考情報としてのみご利用ください(周辺情報は、株式会社LIFULLが地図情報の提供事業者から提供を受けた情報とLIFULL HOME'Sの物件情報に基づき、独自の方法で抽出し提供しているものです。周辺情報は、移転や閉鎖等により情報が最新ではない、または正しくない場合がありますが、地図情報の提供事業者から提供された情報をそのまま周辺情報として表示しているため、正確かつ最新の情報へ修正することができないことがあります。)
- 周辺情報は、株式会社LIFULLが掲載するものであり、不動産物件情報を掲載している不動産会社が掲載するものではありません
- 交通情報の一部については、株式会社LIFULLが掲載するものであり、不動産物件情報を掲載している不動産会社が掲載するものではない場合があります。交通情報に関する質問などは株式会社LIFULLにお問合せください


















































