LIFULL HOME'Sは物件鮮度No.1!※評価について
グランパルク(1階/108/1LDK/41.95m²)
グランパルク(1階/108/1LDK/41.95m²)
7.4万円/管理費等7,000円
3日前 更新
画像一覧
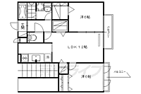
1/30間取り
間取
2/30外観
3/30外観
4/30リビング/ダイニング
5/30リビング/ダイニング
6/30リビング/ダイニング
7/30リビング/ダイニング
8/30リビング/ダイニング
9/30リビング/ダイニング
10/30リビング/ダイニング
11/30リビング/ダイニング
12/30キッチン
13/30キッチン
14/30キッチン
15/30浴室
16/30浴室
17/30トイレ
18/30洗面
19/30洗面
20/30収納
21/30収納
22/30設備
23/30設備
24/30設備
25/30設備
26/30玄関
27/30バルコニー
28/30その他
29/30その他
30/30周辺
マツモト 洛南店まで1700m 営業時間 午前9:00~午後11:00
間取り
外観
外観
リビング/ダイニング
リビング/ダイニング
リビング/ダイニング
リビング/ダイニング
リビング/ダイニング
リビング/ダイニング
リビング/ダイニング
リビング/ダイニング
キッチン
キッチン
キッチン
浴室
浴室
トイレ
洗面
洗面
収納
収納
設備
設備
設備
設備
玄関
バルコニー
その他
その他
周辺
お問合せ先 :(株)京都ライフ 小倉店
1〜4月は引越しシーズンのピークです。お問合せはお早めに!
仲介手数料割引
成約時の仲介手数料半月分の税別でご紹介可能です。
- 利用条件
- (株)京都ライフ 小倉店で利用可
- 他特典との併用可
- 個人契約、居住用物件に限ります。 大東建託、積水ハウス物件は除く。
利用方法
来店時に本特典の画面をスマートフォンやタブレットでスタッフに提示、または画面印刷した用紙を提示ください。
有効期限 なし
ペット可1LDKです。 ワンちゃん相談可能です。設備も納得ですよ。
物件のこだわり/設備・条件
新築(非該当)
2階以上の物件(非該当)
南向き(非該当)
駐車場あり(該当)
オートロック(該当)
エアコン(該当)
バス・トイレ別(該当)
追焚機能(非該当)
フローリング(該当)
ペット相談可(該当)
位置
角部屋入居条件
二人入居可、ペット相談、保証人不要キッチン/バス・トイレ
設備・サービス
オートロック、TVモニタ付インターホン、エアコン、シューズボックス、BS対応、インターネット対応、インターネット使用料無料、公営水道、都市ガス、下水、フローリング、バルコニー、室内洗濯機置場、ゴミ出し24時間OK、駐車場あり、駐輪場ありその他
住まい探し特典あり備考
CMでお馴染みのダイワハウスの建物です。 大きな収納もついていて収納も楽々ですよ。内装は主張しすぎず、インテリアコーディネートもしやすい落ち着いたデザインになっております。 家賃やガレージ代も入居者様のことを考えた低家賃となっています。ペットも相談可能です。 物件情報はもちろん京都のエリア情報まで幅広く対応させていただきます!
物件周辺の生活情報
学校
- 上鳥羽小学校(1,458m)
- 洛南中学校(1,700m)
買い物
- コンビニ(949m)
- スーパー(1,700m)
その他施設
- 銀行(1,574m)
- ドン.キホーテ京都南インター店(1,825m)
交通
- 近鉄京都線 竹田駅 徒歩23分
- 普通(停車)
- 準急(停車)
- 急行(停車)
- 京都市営烏丸線 くいな橋駅 徒歩25分
- 普通(停車)
- 急行(停車)
※急行等の停車駅情報について
急行等の停車駅に関するデータは、随時更新をしておりますが、最新の内容であることを保証するものではありません。
最新かつ正確な情報につきましては、各鉄道会社のウェブサイトにてご確認ください
物件概要
- 建物構造
- 軽量鉄骨造
- 駐車場
- 空有 11,000円(税込)
- 総戸数
- 14戸
- 契約形態
- -
- 契約期間
- 2年間
- 更新料
- 新賃料の1ヶ月分
- その他費用
- 室内清掃費用:71,500円
- 保証会社
加入要
保証会社利用料:初回:3.5万円、月額:保証料として月額賃料等の1%+800円
- 住宅保険
- 要
- 管理
- -
- LIFULL HOME'S
物件番号 - 0100017-0238966
- 自社管理番号
- 24958-108-11
- 取引態様
- 仲介
- 会社名
- (株)京都ライフ 小倉店
営業スタッフコメント

(株)京都ライフ 小倉店
中江
営業の立場ではなくお客様の立場でご紹介。
業界経験3年
資格少額短期保険募集人
- 会社実績や特徴・サービス情報
- 宇治市、城陽市、京田辺市、京都南エリアのお部屋探しは「京都ライフ」へお任せ下さい。仲介手数料は一律、家賃の50%(税別)。来客用ガレージも完備。学生様の新生活も全力でサポートいたします。
宇治市、城陽市、京田辺市、京都南エリアのお部屋探しは「京都ライフ」へお任せ下さい。仲介手数料は一律、家賃の50%(税別)。来客用ガレージも完備。学生様の新生活も全力でサポートいたします。
- 電話でお問合せ(通話無料)
お問合せ先 :(株)京都ライフ 小倉店
不動産会社情報
(株)京都ライフ 小倉店京都ライフ小倉店
京都府宇治市小倉町神楽田21-5 ア‐バネックス小倉ビル1F
近鉄京都線 小倉駅 徒歩2分
- 営業時間
- 09:30~19:00
- 定休日
- 年中無休(盆正月を除く)
京都全域くまなくネット!京都でのお部屋探しは創業40年の「かんたんお部屋探しは・・・京都ライフへ!!
- 店舗の特徴
- 賃貸管理業務
- 24時間管理物件取扱い
- リフォーム対応
- 引越し業者紹介可
- 年中無休
- 保証人不要な物件あり
- 法人契約取扱い
- 駅から歩いて3分以内
電話でお問合せお客様の電話番号は不動産会社には通知されません
- 不動産会社に
つながります
お客様の電話番号は不動産会社に通知されません
- ※光IP電話、及びIP電話からはご利用になれません
- ※お電話によるお問合せは、店舗営業時間内にお願いします。つながらない場合は、お問合せフォームよりお問合せください
- ※不動産会社がお電話に出られなかった場合、お問合せいただいた後に不動産会社より折り返しのお電話がある場合がございます(お客様が非通知設定した場合は対象外です)
- ※株式会社LIFULLは電話会社が提供するサービスを介してお客様の発信者番号を受領後、折り返し専用の電話番号を発番してお問合せの不動産会社に通知します(お客様の発信者番号がお問合せの不動産会社に通知されることはございません)
- ※携帯電話からお問合せいただいた方に対し、株式会社LIFULLは電話会社が提供するメッセ―ジサービスを介してお客様の発信者番号を受領後、ショートメッセージ(SMS)またはLINE通知メッセージによるお問合せ内容に関する通知をお届けする場合があります
- ※お客様が通話中に不動産会社にお伝えになったお客様の個人情報及び、電話会社が発番する折り返し専用の電話番号は、お問合せ先不動産会社が資料送付・電子メール送信・電話連絡などの目的で保管する可能性があります。お問合せ先不動産会社が保管する個人情報の取扱いについては、各不動産会社に直接お問合せください
- ※株式会社LIFULLでは本サービスを円滑に運用するために、お客様の発信者番号をサービスご利用の控えとして一定期間保管いたします
- ※上記および株式会社LIFULLの個人情報の取扱い方針に同意のうえ、お電話ください
【LIFULL HOME'S物件番号】0100017-0238966【自社管理番号】24958-108-11
オンライン対応
オンライン相談に対応している物件です

「オンライン内見」「オンライン相談」「IT重説」とは?
物件の内見や不動産会社スタッフとの相談、契約前の重要事項説明をオンライン(ビデオ通話)で行うことができるサービスです。
オンライン内見
ビデオ通話で現地(物件)にいる不動産会社スタッフと映像・音声を使ってリアルタイムで会話しながら内見ができます。
オンライン相談
「物件について聞きたいことがある」など不動産会社スタッフへの相談もビデオ通話で行うことができます。
IT重説
契約前の重要事項説明(重説)をビデオ通話で行うことができます。
利用時の注意事項
- ビデオ通話については各不動産会社指定のものとなります。
- ビデオ通話利用時には通信が発生します。従量課金制通信サービスや通信量に上限があるネット回線・プランを利用する場合は、通信量にご注意ください。
- 通信速度やアプリの設定によってはビデオ通話の画質が低下することがあります。安定した画質で利用するためにも、Wi-Fi環境下での利用を推奨します。
- ご利用のビデオ通話アプリによっては、対象のOSやブラウザに制限がある場合があります。詳しくはお問合せ先不動産会社にご確認ください。
初期費用・月額費用をあわせて確認!この物件に住んだときの費用めやす
めやすを見るこの物件に住んだときの費用めやす
- 初期費用
- 月額費用
- 追加費用※ご確認ください
追加で費用が
かかる場合があります
必ずご確認ください
初期費用めやす約0円
追加で費用がかかります(※)敷金
0
- 礼金
100,000
賃料+共益費・管理費の1ヶ月分として換算
賃料の1ヶ月分+税として換算。不動産会社によって金額が異なるため正確な金額は不動産会社にお問合せください
※追加費用もチェック!
これらの項目以外にも費用がかかる場合があります。正確な金額は不動産会社にお問合せください。
- 初期費用
- 鍵交換費:不動産会社に要確認
- 室内清掃費:71,500円
- 火災保険費:不動産会社に要確認
- 月額費用
- 駐車場費:11,000円(税込)※契約任意
- 保証会社
- 初回:3.5万円、月額:保証料として月額賃料等の1%+800円
不動産会社より
ペット可1LDKです。 ワンちゃん相談可能です。設備も納得ですよ。
CMでお馴染みのダイワハウスの建物です。 大きな収納もついていて収納も楽々ですよ。内装は主張しすぎず、インテリアコーディネートもしやすい落ち着いたデザインになっております。 家賃やガレージ代も入居者様のことを考えた低家賃となっています。ペットも相談可能です。 物件情報はもちろん京都のエリア情報まで幅広く対応させていただきます!
- 保存する
- 共有する
- ※各種情報と現状に差異がある場合は、現状優先となります
- ※不動産会社が入力した情報を基に物件の位置を表示しています。詳しくは不動産会社までお問合せください
- ※不動産会社の方からの上記電話番号によるお問合せはお断りしております。こちら不動産会社詳細からお問合せください
- ※LIFULL HOME'Sは物件鮮度No.1を目指していきます。閲覧中の物件が「成約済である」「実際の物件情報と異なる点がある」などの場合、「掲載110番」からお問合せください
- ※QRコードは株式会社デンソーウェーブの登録商標です
したい暮らしのタグから探す
この物件を取扱う他の会社
LIFULL HOME'Sでは、主要項目が同一の物件をまとめて表示しています。所在地や営業時間、掲載画像等から不動産会社を選んでお問合せください。
株式会社京都ライフ 山科店
京都府京都市山科区竹鼻竹ノ街道町11
JR東海道・山陽本線 山科駅 徒歩3分
- 営業時間
- 09:30~19:00
- 定休日
- 夏期休暇 8月13日〜8月16日 年末年始休暇 12月27日〜1月4日
株式会社京都ライフ 京田辺店
優良店認定
京都府京田辺市田辺中央1丁目7-11
JR片町線(学研都市線) 京田辺駅 徒歩4分
- 営業時間
- 09:30~19:00
- 定休日
- 水曜定休(4/21〜9/20の期間)、盆・正月
株式会社京都ライフ 京都駅前店
京都府京都市下京区塩小路通東洞院西入東塩小路町717-1 京都駅前ビル2階
JR東海道・山陽本線 京都駅 徒歩2分
- 営業時間
- 09:30~19:00
- 定休日
- 年中無休(盆正月を除く)
LIFULL HOME'S 地図・周辺情報
買い物
- ローソン 名神高速京都南インター店
- A-プライス京都南店
- ディスカウントドラッグコスモス祥栄店
- ファミリーマート 千本赤池店
- ジャパン 京都伏見店
グルメ
- 吉野家 1号線京都南インター店
- マクドナルド 1号線上鳥羽店
- 松のや京都南インター店
- 餃子の王将 上鳥羽店
- マクドナルド 1号線城南宮店
育児・教育
- 山ノ本こども園
- 京都市立上鳥羽小学校
- 京都市立久世中学校
- 上鳥羽保育園
- 京都市立祥栄小学校
医療
- 医療法人五木田病院介護医療院
- 医療法人財団医道会十条武田リハビリテーション病院
- 医療法人清水会京都リハビリテーション病院
- 医療法人社団蘇生会蘇生会総合病院介護医療院
- 医療法人社団蘇生会総合病院
公共施設・郵便局
- 京都上鳥羽郵便局
- 京都市久世ふれあいセンター図書館
- 京都府南警察署
- 京都吉祥院観音堂郵便局
- 京都市吉祥院図書館
公園
- 東向公園
- 鳥羽離宮跡公園
- 塔ノ森公園
- 下鳥羽公園
- 桂川緑地久我橋東詰公園
利用可能な駅
- すべての駅
近鉄京都線
- 竹田駅徒歩23分
- 上鳥羽口駅徒歩24分
- 伏見駅徒歩36分
- 十条駅徒歩37分
京都市営烏丸線
- くいな橋駅徒歩25分
- 十条駅3.1km
京阪本線
- 墨染駅3.4km
- 龍谷大前深草駅3.4km
- 藤森駅3.5km
- 丹波橋駅4km
JR東海道・山陽本線
- 西大路駅3.6km
- 桂川駅4.1km
- 向日町駅4.8km
- 周辺情報は2023年07月21日時点のものになります。
- 周辺情報は、参考情報としてのみご利用ください(周辺情報は、株式会社LIFULLが地図情報の提供事業者から提供を受けた情報とLIFULL HOME'Sの物件情報に基づき、独自の方法で抽出し提供しているものです。周辺情報は、移転や閉鎖等により情報が最新ではない、または正しくない場合がありますが、地図情報の提供事業者から提供された情報をそのまま周辺情報として表示しているため、正確かつ最新の情報へ修正することができないことがあります。)
- 周辺情報は、株式会社LIFULLが掲載するものであり、不動産物件情報を掲載している不動産会社が掲載するものではありません
- 交通情報の一部については、株式会社LIFULLが掲載するものであり、不動産物件情報を掲載している不動産会社が掲載するものではない場合があります。交通情報に関する質問などは株式会社LIFULLにお問合せください

















