LIFULL HOME'Sは物件鮮度No.1!※評価について
過去掲載時の参考情報
以下の物件情報は広告情報ではありません。LIFULL HOME'Sが過去に掲載された物件情報を元に作成した参考情報です。
賃貸マンション物件概要
- お問合せ状況
- 現在この物件はお問合せできません
- 交通
- 所在地
京都府京田辺市三山木北垣内
地図を見る- 築年月
- 2012年1月(築15年)
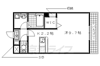
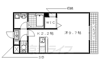
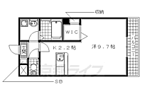
- 間取り
- ワンルーム
- 主要採光面
- 東
- 専有面積
- 33.05㎡
- 所在階/階数
- 1階/5階建
- 建物構造
- RC(鉄筋コンクリート)
- 総戸数
- 20戸
物件のこだわり/設備・条件
新築(非該当)
2階以上の物件(非該当)
南向き(非該当)
駐車場あり(該当)
オートロック(該当)
エアコン(該当)
バス・トイレ別(該当)
追焚機能(該当)
フローリング(該当)
ペット相談(非該当)
入居条件
二人入居不可、単身者限定キッチン/バス・トイレ
専用バス、専用トイレ、バス・トイレ別、追焚機能、シャワー、シャワー付洗面化粧台、温水洗浄便座、浴室乾燥機、洗面所独立、給湯ガスコンロ設置済、コンロ二口、システムキッチン、カウンターキッチンセキュリティ
オートロック、TVモニタ付インターホン駐車・駐輪
駐車場あり、駐輪場ありテレビ・通信
BS対応、インターネット対応電気・ガス・水道
公営水道、プロパンガス、下水収納
クローゼット、シューズボックス室内
エアコン、フローリング、室内洗濯機置場、照明器具付き建物設備
エレベーター特徴
住まい探し特典ありバルコニー・庭
バルコニー
物件周辺の生活情報
学校
- 田辺小学校(3,100m)
買い物
- コンビニ(220m)
- スーパー(550m)
- ドラッグストア(700m)
その他施設
- 総合病院(3,600m)
- 銀行(350m)
交通
- JR片町線(学研都市線) JR三山木駅 徒歩4分
- 普通(停車)
- 区間快速(停車)
- 快速(停車)
- 近鉄京都線 三山木駅 徒歩7分
- 普通(停車)
- 準急(通過)
- 急行(停車)
※急行等の停車駅情報について
急行等の停車駅に関するデータは、随時更新をしておりますが、最新の内容であることを保証するものではありません。
最新かつ正確な情報につきましては、各鉄道会社のウェブサイトにてご確認ください
LIFULL HOME'S 地図・周辺情報
買い物
- セブンイレブン 京田辺三山木店
- サンフレッシュ三山木店
- ダックス京田辺三山木店
- ファミリーマート 京田辺三山木店
- ワッツウィズ三山木サンフレッシュ店
グルメ
- まいどおおきに食堂 京田辺三山木食堂
- コメダ珈琲店京田辺三山木店
- なか卯 フォレストモール京田辺店
- COCO’S 京田辺店
- マクドナルド 山城田辺店
育児・教育
- みんなのき三山木こども園
- 京田辺市立三山木小学校
- 私立同志社国際中学校
- 京田辺市立三山木幼稚園
- 京田辺市立草内小学校
医療
- 医療法人社団石鎚会同志社山手病院
- 芳松会田辺病院
公共施設・郵便局
- 田辺三山木郵便局
- 京田辺市立中央図書館中部分室
- 井手町役場
- 草内郵便局
- 井手町図書館
公園
- 鶴沢公園
- 田辺公園
利用可能な駅
- 徒歩10分以内
JR片町線(学研都市線)
- JR三山木駅徒歩4分
近鉄京都線
- 三山木駅徒歩7分
- 近鉄宮津駅徒歩9分
- すべての駅
JR片町線(学研都市線)
- 同志社前駅徒歩17分
- 下狛駅徒歩23分
近鉄京都線
- 狛田駅徒歩24分
- 興戸駅徒歩25分
- 新田辺駅3.8km
JR奈良線
- 玉水駅徒歩32分
- 周辺情報は2023年07月21日時点のものになります。
- 周辺情報は、参考情報としてのみご利用ください(周辺情報は、株式会社LIFULLが地図情報の提供事業者から提供を受けた情報とLIFULL HOME'Sの物件情報に基づき、独自の方法で抽出し提供しているものです。周辺情報は、移転や閉鎖等により情報が最新ではない、または正しくない場合がありますが、地図情報の提供事業者から提供された情報をそのまま周辺情報として表示しているため、正確かつ最新の情報へ修正することができないことがあります。)
- 周辺情報は、株式会社LIFULLが掲載するものであり、不動産物件情報を掲載している不動産会社が掲載するものではありません
- 交通情報の一部については、株式会社LIFULLが掲載するものであり、不動産物件情報を掲載している不動産会社が掲載するものではない場合があります。交通情報に関する質問などは株式会社LIFULLにお問合せください






















































