LIFULL HOME'Sは物件鮮度No.1!※評価について
シーズン嵐山 6階
6万円/管理費等7,000円
3日前 更新
画像一覧
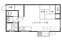
1/30間取り
2/30外観
3/30外観
4/30リビング/ダイニング
5/30リビング/ダイニング
6/30リビング/ダイニング
7/30リビング/ダイニング
8/30寝室
9/30寝室
10/30キッチン
11/30キッチン
12/30浴室
13/30トイレ
14/30洗面
15/30洗面
16/30収納
17/30収納
18/30設備
19/30玄関
20/30バルコニー
21/30エントランス
22/30エントランス
23/30エントランス
24/30その他
25/30その他
26/30その他
27/30その他
28/30その他
29/30その他
30/30周辺
間取り
外観
外観
リビング/ダイニング
リビング/ダイニング
リビング/ダイニング
リビング/ダイニング
寝室
寝室
キッチン
キッチン
浴室
トイレ
洗面
洗面
収納
収納
設備
玄関
バルコニー
エントランス
エントランス
エントランス
その他
その他
その他
その他
その他
その他
周辺
お問合せ先 :株式会社BRAVE 賃貸住宅サービス FC桂駅前店
仲介手数料割引
ご成約につき(来店時提示)仲介手数料賃料の10%+消費税です。該当不可物件あり
- 利用条件
- 株式会社BRAVE 賃貸住宅サービス FC桂駅前店で利用可
- 他特典との併用はできませんので、ご注意ください。
- 1.今月中のご来店、申込に限る。 2.月末の場合は翌月も利用 3.個人契約に限る
利用方法
来店時に本特典の画面をスマートフォンやタブレットでスタッフに提示、または画面印刷した用紙を提示ください。
有効期限 2025年11月30日まで
バルコニーのある物件での生活は、優雅で魅力的です。万が一のときにも安心、24時間セキュリティ付です。
物件のこだわり/設備・条件
新築(非該当)
2階以上の物件(該当)
南向き(該当)
駐車場あり(該当)
オートロック(非該当)
エアコン(該当)
バス・トイレ別(該当)
追焚機能(非該当)
フローリング(該当)
ペット相談(非該当)
入居条件
二人入居可、即入居可キッチン/バス・トイレ
設備・サービス
エアコン、クローゼット、シューズボックス、光ファイバー、公営水道、都市ガス、下水、フローリング、バルコニー、室内洗濯機置場、照明器具付き、南面バルコニー、タイル貼り、エレベーター、駐車場あり、駐輪場ありその他
初期費用カード決済可、住まい探し特典あり備考
法人相談 保証会社可
物件周辺の生活情報
学校
- 広沢小学校(443m)
- 嵯峨中学校(388m)
買い物
- コンビニ(184m)
- スーパー(375m)
その他施設
- 総合病院(1,548m)
- 公園(1,901m)
- 西松屋 嵯峨丸太町通店(273m)
交通
- 京福電気鉄道嵐山本線 鹿王院駅 徒歩7分
- 普通(停車)
- JR山陰本線 嵯峨嵐山駅 徒歩9分
- 普通(停車)
- 快速とっとりライナー(通過)
- 快速通勤ライナー(通過)
- 快速(停車)
※急行等の停車駅情報について
急行等の停車駅に関するデータは、随時更新をしておりますが、最新の内容であることを保証するものではありません。
最新かつ正確な情報につきましては、各鉄道会社のウェブサイトにてご確認ください
物件周辺の口コミ
- 京都府京都市右京区嵯峨新宮町に住む人の口コミ50代女性
交通の便がよくスーパーやドラッグストアなど生活必需品はすぐ手に入るので非常に便利。ただ図書館などの文化施設、衣料品店がないのが欠点です。
口コミを見る
この物件周辺に住む人の口コミ
口コミは、LIFULL HOME'Sが実際にこの物件の周辺に住む18歳~69歳の男女を対象に、WEBアンケート調査を実施しています。内容には回答者の主観的な表現が含まれる場合があるほか、事実と異なる場合もございます。ご了承ください。
- 京都府京都市右京区嵯峨新宮町に住む人の口コミ50代女性
- 交通の便がよくスーパーやドラッグストアなど生活必需品はすぐ手に入るので非常に便利。ただ図書館などの文化施設、衣料品店がないのが欠点です。
- 京都府京都市右京区嵯峨新宮町に住む人の口コミ50代男性
- 交通の便が良く、市内なのにすぐ近くに自然があり、川には蛍が飛び、小中高すべが徒歩圏内。
- 京都府京都市右京区嵯峨新宮町に住む人の口コミ40代女性
- 日中もさほど車通りも多くないが、夜はさらに少なくなり静かでよい
- 京都府京都市右京区嵯峨新宮町に住む人の口コミ50代男性
- 鉄道駅・バス停・小・中・高校も徒歩10分以内である。またスーパー等の買い物・ガソリンスタンドもすぐそばであり、ホタルの飛ぶ川がすぐ裏で、少し歩けば山や森・畑・田んぼもあり自然もいっぱいです。
- 京都府京都市右京区嵯峨新宮町に住む人の口コミ60代女性
- 北に少し行けば自然豊かな場所があり、散歩出来るし、南に行けば、スーパーやドラッグストア、コンビニもある。どちらも徒歩圏内。バス、JRや地元の電車の駅も近いので、とても便利な場所だと思っている。
- 京都府京都市右京区嵯峨北堀町に住む人の口コミ50代男性
- 生まれ育った町であるし、日中は観光客が多い場所ではあるが、夕方にはほぼ居なくなるし、平日は人も少なく落ち着いた風情のある町だから。
- 京都府京都市右京区嵯峨大覚寺門前堂ノ前町に住む人の口コミ50代男性
- 比較的観光地に近く、春、秋、行楽シーズンは道が大渋滞になる。それ以外は満足である。
- 京都府京都市右京区嵯峨天龍寺油掛町に住む人の口コミ60代男性
- 引っ越ししてきた時は、二戸一建て や三戸いち建て の建売街で密集、隣の音がうるさい状態。現在は切り離して一戸建てにしています。狭い、隣、向かいが近いからやや不満です。余裕で離れた住宅街が理想
- 京都府京都市右京区嵯峨天龍寺広道町に住む人の口コミ60代女性
- 交通機関、銀行、買い物など日常生活は満足だか子供、老人の施設が入所しやすくなればと思います
- 京都府京都市右京区嵯峨天龍寺広道町に住む人の口コミ60代女性
- JRの駅が近いので、構内放送や電車の発着音がうるさい。それ以外は至って静かだから余計に気になるのだと思う。
物件概要
- 建物構造
- SRC(鉄骨鉄筋コンクリート)
- 駐車場
- 空有 料金:賃料に含む
- 総戸数
- -
- 契約形態
- -
- 契約期間
- 2年間
- 更新料
- -
- その他費用
- 鍵交換代:22,000円、ハウスクリーニング代:44,000円
- 保証会社
- -
- 住宅保険
- 要
- 管理
- 管理員:巡回
- LIFULL HOME'S
物件番号 - 0106011-0224609
- 自社管理番号
- 15658302
- 取引態様
- 仲介
- 会社名
- 株式会社BRAVE 賃貸住宅サービス FC桂駅前店
営業スタッフコメント

株式会社BRAVE 賃貸住宅サービス FC桂駅前店
大原諒也
フットワークの軽さを生かし全力で頑張ります。
業界経験1年
資格宅地建物取引士
- スタッフ情報
- ご希望のお部屋が見つかるよう、一生懸命お手伝いさせて頂きます。京都府全域どこでもご紹介可能です。
ご希望のお部屋が見つかるよう、一生懸命お手伝いさせて頂きます。京都府全域どこでもご紹介可能です。
- 電話でお問合せ(通話無料)
お問合せ先 :株式会社BRAVE 賃貸住宅サービス FC桂駅前店
不動産会社情報
京都市西京区・桂周辺、南区、向日市、長岡京市、桂川のお部屋探しは当店にお任せ下さい。最新空室情報を随時更新中。賃貸マンション、アパート、ハイツ、貸家、借家は京都市賃貸専門店の賃貸住宅サービス桂駅前店へ
- 店舗の特徴
- 賃貸管理業務
- リフォーム対応
- 引越し業者紹介可
- 駐車場あり
- オンライン相談可
- 保証人不要な物件あり
- 法人契約取扱い
- 駅から歩いて3分以内
電話でお問合せお客様の電話番号は不動産会社には通知されません
- 不動産会社に
つながります
お客様の電話番号は不動産会社に通知されません
- ※光IP電話、及びIP電話からはご利用になれません
- ※お電話によるお問合せは、店舗営業時間内にお願いします。つながらない場合は、お問合せフォームよりお問合せください
- ※不動産会社がお電話に出られなかった場合、お問合せいただいた後に不動産会社より折り返しのお電話がある場合がございます(お客様が非通知設定した場合は対象外です)
- ※株式会社LIFULLは電話会社が提供するサービスを介してお客様の発信者番号を受領後、折り返し専用の電話番号を発番してお問合せの不動産会社に通知します(お客様の発信者番号がお問合せの不動産会社に通知されることはございません)
- ※携帯電話からお問合せいただいた方に対し、株式会社LIFULLは電話会社が提供するメッセ―ジサービスを介してお客様の発信者番号を受領後、ショートメッセージ(SMS)またはLINE通知メッセージによるお問合せ内容に関する通知をお届けする場合があります
- ※お客様が通話中に不動産会社にお伝えになったお客様の個人情報及び、電話会社が発番する折り返し専用の電話番号は、お問合せ先不動産会社が資料送付・電子メール送信・電話連絡などの目的で保管する可能性があります。お問合せ先不動産会社が保管する個人情報の取扱いについては、各不動産会社に直接お問合せください
- ※株式会社LIFULLでは本サービスを円滑に運用するために、お客様の発信者番号をサービスご利用の控えとして一定期間保管いたします
- ※上記および株式会社LIFULLの個人情報の取扱い方針に同意のうえ、お電話ください
【LIFULL HOME'S物件番号】0106011-0224609【自社管理番号】15658302
オンライン対応
オンライン内見・オンライン相談・IT重説に対応している物件です

「オンライン内見」「オンライン相談」「IT重説」とは?
物件の内見や不動産会社スタッフとの相談、契約前の重要事項説明をオンライン(ビデオ通話)で行うことができるサービスです。
オンライン内見
ビデオ通話で現地(物件)にいる不動産会社スタッフと映像・音声を使ってリアルタイムで会話しながら内見ができます。
オンライン相談
「物件について聞きたいことがある」など不動産会社スタッフへの相談もビデオ通話で行うことができます。
IT重説
契約前の重要事項説明(重説)をビデオ通話で行うことができます。
利用時の注意事項
- ビデオ通話については各不動産会社指定のものとなります。
- ビデオ通話利用時には通信が発生します。従量課金制通信サービスや通信量に上限があるネット回線・プランを利用する場合は、通信量にご注意ください。
- 通信速度やアプリの設定によってはビデオ通話の画質が低下することがあります。安定した画質で利用するためにも、Wi-Fi環境下での利用を推奨します。
- ご利用のビデオ通話アプリによっては、対象のOSやブラウザに制限がある場合があります。詳しくはお問合せ先不動産会社にご確認ください。
初期費用・月額費用をあわせて確認!この物件に住んだときの費用めやす
めやすを見るこの物件に住んだときの費用めやす
- 初期費用
- 月額費用
- 追加費用※ご確認ください
追加で費用が
かかる場合があります
必ずご確認ください
初期費用めやす約0円
追加で費用がかかります(※)敷金
0
- 礼金
0
- 保証金
0
賃料+共益費・管理費の1ヶ月分として換算
賃料の1ヶ月分+税として換算。不動産会社によって金額が異なるため正確な金額は不動産会社にお問合せください
※追加費用もチェック!
これらの項目以外にも費用がかかる場合があります。正確な金額は不動産会社にお問合せください。
- 初期費用
- 鍵交換費:不動産会社に要確認
- 室内清掃費:不動産会社に要確認
- 火災保険費:不動産会社に要確認
- 月額費用
- 駐車場費:賃料に含む
- その他
- 鍵交換代:22000円
- ハウスクリーニング代:44000円
- 保証会社
- 不動産会社に要確認
不動産会社より
バルコニーのある物件での生活は、優雅で魅力的です。万が一のときにも安心、24時間セキュリティ付です。
法人相談 保証会社可
- 保存する
- 共有する
- ※各種情報と現状に差異がある場合は、現状優先となります
- ※不動産会社が入力した情報を基に物件の位置を表示しています。詳しくは不動産会社までお問合せください
- ※不動産会社の方からの上記電話番号によるお問合せはお断りしております。こちら不動産会社詳細からお問合せください
- ※LIFULL HOME'Sは物件鮮度No.1を目指していきます。閲覧中の物件が「成約済である」「実際の物件情報と異なる点がある」などの場合、「掲載110番」からお問合せください
- ※QRコードは株式会社デンソーウェーブの登録商標です
したい暮らしのタグから探す
この物件を取扱う他の会社
LIFULL HOME'Sでは、主要項目が同一の物件をまとめて表示しています。所在地や営業時間、掲載画像等から不動産会社を選んでお問合せください。
最近見た賃貸物件
LIFULL HOME'S 地図・周辺情報
買い物
- ファミリーマート 嵯峨新宮町店
- フレスコ にっさん嵯峨店
- ダックス右京嵯峨店
- ファミリーマート 京都嵯峨広沢店
- グルメシティ 嵯峨店
グルメ
- 和食さと 嵯峨店
- 上島珈琲店京都嵯峨嵐山店
- タリーズコーヒー嵐電嵐山駅店
- ガスト 京都嵯峨野店(から好し取扱店)
- ケンタッキーフライドチキン 嵯峨野店
育児・教育
- 佛教大学付属幼稚園
- 京都市立広沢小学校
- 京都市立嵯峨中学校
- うぐいす保育園
- 京都市立嵐山小学校
医療
- 医療法人淳宰晃会嵯峨さくら病院
- 医療法人河端病院
- 独立行政法人国立病院機構宇多野病院
- 一般財団法人高雄病院介護医療院優都ぴあ
- (財)高雄病院
公共施設・郵便局
- 京都広沢郵便局
- 京都市右京中央図書館
- 右京警察署
- 京都嵯峨郵便局
- 京都市右京区役所
公園
- 広沢池公園
- 嵐山モンキーパークいわたやま
- 土堂公園
利用可能な駅
- 徒歩10分以内
京福電気鉄道嵐山本線
- 鹿王院駅徒歩7分
JR山陰本線
- 嵯峨嵐山駅徒歩9分
- 周辺情報は2023年07月21日時点のものになります。
- 周辺情報は、参考情報としてのみご利用ください(周辺情報は、株式会社LIFULLが地図情報の提供事業者から提供を受けた情報とLIFULL HOME'Sの物件情報に基づき、独自の方法で抽出し提供しているものです。周辺情報は、移転や閉鎖等により情報が最新ではない、または正しくない場合がありますが、地図情報の提供事業者から提供された情報をそのまま周辺情報として表示しているため、正確かつ最新の情報へ修正することができないことがあります。)
- 周辺情報は、株式会社LIFULLが掲載するものであり、不動産物件情報を掲載している不動産会社が掲載するものではありません
- 交通情報の一部については、株式会社LIFULLが掲載するものであり、不動産物件情報を掲載している不動産会社が掲載するものではない場合があります。交通情報に関する質問などは株式会社LIFULLにお問合せください
























































