LIFULL HOME'Sは物件鮮度No.1!※評価について
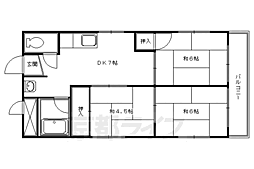
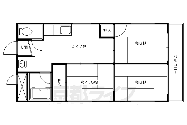
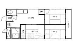
ハイツ油小路(4階/401/3DK/50m²)
ハイツ油小路(4階/401/3DK/50m²)
8万円/管理費等3,000円
2026/04/11 更新
画像一覧
1/30間取り
間取
2/30外観
3/30外観
4/30リビング/ダイニング
5/30リビング/ダイニング
6/30リビング/ダイニング
7/30リビング/ダイニング
8/30リビング/ダイニング
9/30リビング/ダイニング
10/30キッチン
11/30キッチン
12/30キッチン
13/30キッチン
14/30キッチン
15/30浴室
16/30トイレ
17/30洗面
18/30洗面
19/30収納
20/30設備
21/30設備
22/30設備
23/30設備
24/30玄関
25/30バルコニー
26/30バルコニー
27/30その他
28/30その他
29/30その他
30/30周辺
ローソン丸太町小川店まで89m 府庁近くのローソン。もちろん24時間営業で便利。
間取り
外観
外観
リビング/ダイニング
リビング/ダイニング
リビング/ダイニング
リビング/ダイニング
リビング/ダイニング
リビング/ダイニング
キッチン
キッチン
キッチン
キッチン
キッチン
浴室
トイレ
洗面
洗面
収納
設備
設備
設備
設備
玄関
バルコニー
バルコニー
その他
その他
その他
周辺
1〜4月は引越しシーズンのピークです。お問合せはお早めに!
仲介手数料割引
ご成約時、仲介手数料は賃料50%(外税)です。
- 利用条件
- 株式会社京都ライフ 二条駅前店で利用可
- 他特典との併用可
- ・法人契約、事業用物件は除きます。 ・積水ハウス、大東建託の管理物件は除きます。
利用方法
来店時に本特典の画面をスマートフォンやタブレットでスタッフに提示、または画面印刷した用紙を提示ください。
有効期限 なし
台所広いです キッチン広めガス2口コンロ設置可能。
基本情報
不動産用語- 賃料
- 8万円
- 管理費等
- 3,000円
初期費用などお気軽にお問合せください
- 敷金/礼金
- 8万円/8万円
- 保証金/敷引・償却金
- -/-
- 交通
京都市営烏丸線 丸太町駅 徒歩7分
京都市営烏丸線 烏丸御池駅 徒歩15分
- 所在地
京都府京都市中京区大文字町
地図を見る- 築年月
- 1983年1月(築44年)
- 主要採光面
- 東
- 専有面積
- 50㎡
- バルコニー面積
- -
- 所在階/階数
- 4階/4階建
- 現況
- 空家
- 入居可能時期
- 即時

人気物件はすぐに埋まってしまいます。
気になったらお早めにお問合せください。
- 情報公開日
2026/04/11
4日前 公開
- 情報更新日
2026/04/11
4日前 更新
- 次回更新
予定日 - 2026/04/25
物件のこだわり/設備・条件
新築(非該当)
2階以上の物件(該当)
南向き(非該当)
駐車場(非該当)
オートロック(非該当)
エアコン(該当)
バス・トイレ別(該当)
追焚機能(非該当)
フローリング(該当)
ペット相談(非該当)
入居条件
即入居可キッチン/バス・トイレ
設備・サービス
エアコン、CATV、光ファイバー、公営水道、都市ガス、下水、フローリング、バルコニー、駐輪場ありその他
住まい探し特典あり備考
地下鉄丸太町駅まで徒歩7分の3DKマンションです。嬉しい3点セパレートなど充実の設備。コンビニ、スーパー、ドラッグストアなど近くにあって便利ですよ。光ファイバー対応しています。 物件情報はもちろん京都のエリア情報まで幅広く対応させていただきます!
物件周辺の生活情報
学校
- 御所南小学校(1,000m)
- 京都御池中学校(1,100m)
買い物
- コンビニ(89m)
- スーパー(309m)
- ドラッグストア(798m)
その他施設
- 総合病院(307m)
- 銀行(109m)
- 京都下立売堀川郵便局(257m)
交通
- 京都市営烏丸線 丸太町駅 徒歩7分
- 普通(停車)
- 急行(停車)
- 京都市営烏丸線 烏丸御池駅 徒歩15分
- 普通(停車)
- 急行(停車)
※急行等の停車駅情報について
急行等の停車駅に関するデータは、随時更新をしておりますが、最新の内容であることを保証するものではありません。
最新かつ正確な情報につきましては、各鉄道会社のウェブサイトにてご確認ください
物件周辺の口コミ
- 京都府京都市上京区松屋町通丸太町下る2筋目西入に住む人の口コミ60代男性
都会にありながら、けっこう密な近所づきあいがあり、体育祭などの行事やリサイクル活動も盛ん。
口コミを見る
この物件周辺に住む人の口コミ
口コミは、LIFULL HOME'Sが実際にこの物件の周辺に住む18歳~69歳の男女を対象に、WEBアンケート調査を実施しています。内容には回答者の主観的な表現が含まれる場合があるほか、事実と異なる場合もございます。ご了承ください。
- 京都府京都市上京区松屋町通丸太町下る2筋目西入に住む人の口コミ60代男性
- 都会にありながら、けっこう密な近所づきあいがあり、体育祭などの行事やリサイクル活動も盛ん。
- 京都府京都市上京区今出川通浄福寺西入2丁目に住む人の口コミ60代男性
- 歩いて行ける範囲内に日常生活に必要なものがそろっているから。
- 京都府京都市上京区一条通東堀川東入上るに住む人の口コミ60代女性
- 街中であるのに意外と静かで落ち着いているし、治安がよく、安心して住める。でも、古い町なので、おしゃれなお店はなく、カフェなども、あまりない。バスは観光客で混んでいるので、高齢者や乳幼児連れは大変。
- 京都府京都市上京区出水通千本東入に住む人の口コミ50代男性
- 普段の生活をするには必要十分に揃っていると思うが、子育て世代や老人だけの世帯だと、不便に感じるところもあると思います。
- 京都府京都市上京区堀川通寺之内上るに住む人の口コミ40代女性
- お店が多く、食材の買い物が楽しめる。また、小さな雑貨屋さんや、老舗の和菓子屋、パン屋が多く、休日には自転車でハシゴし、買い物を楽しめる。
- 京都府京都市上京区小川通上立売上るに住む人の口コミ40代女性
- 長年住み慣れているので、近所の人ともよい関係ができているから。
- 京都府京都市上京区智恵光院通出水上るに住む人の口コミ30代女性
- 満足していると言うには、些少の不満もあるから難しいけど、不満かと聞かれれば、どちらかと言うと満足しているから。
- 京都府京都市中京区釜座通竹屋町上るに住む人の口コミ50代男性
- 言い出したらきりがないが、50年以上住んでいて特に不満はない。買い物に便利で交通の便もよく将来免許がなくても大丈夫だと思う。
- 京都府京都市中京区竹屋町通西洞院東入に住む人の口コミ30代女性
- 歴史と伝統の街。町衆のつながりもあって安心感がある。またすぐ近所には京都御苑があり、まるでニューヨークのセントラルパークのような市民の憩いの場所となっている。
- 京都府京都市上京区日暮通出水下る西入に住む人の口コミ50代男性
- 子供を育てるのに地域のつながりが良く安心している。買い物も便利。交通機関も便利
物件概要
- 建物構造
- RC(鉄筋コンクリート)
- 駐車場
- 無
- 総戸数
- 12戸
- 契約形態
- -
- 契約期間
- 2年間
- 更新料
- 新賃料の1ヶ月分
- その他費用
- 水道代:3,000円、書類代:20,000円
- 保証会社
- -
- 住宅保険
- 要
- 管理
- 管理員:巡回
- LIFULL HOME'S
物件番号 - 0142941-0208997
- 自社管理番号
- 01329-401-27
- 取引態様
- 仲介
- 会社名
- 株式会社京都ライフ 二条駅前店
営業スタッフコメント

株式会社京都ライフ 二条駅前店
酒井栞
素晴らしいお部屋に出会えるまで全力でサポート致します!
業界経験2年
資格少額短期保険募集人
- 会社実績や特徴・サービス情報
- 京都市内部屋付け数3年連続1位。(株式会社全国賃貸住宅新聞調べ) 当店はJR山陰線、地下鉄東西線の二条駅から3分に立地し、通勤・通学のアクセスの良さ、近隣施設の充実から近年住みたい街と言われる二条駅すぐの所に店舗を構えております。 各エリア専門のスタッフが揃っておりますので、二条駅周辺だけでなく、京都市全域、向日市・長岡京市・宇治市など幅広くご紹介させて頂きます。 社会人のご単身・ファミリー様をはじめ、先端科学大学・同志社大学・立命館大学・京都大学など大学生のお部屋探しも全力でサポートさせて頂きます。 創業40年、地域密着に拘らせて頂いた京都最大級の物件情報をもとに、 誠心誠意、ご満足頂けるお部屋をご紹介させて頂きます。 お部屋を探しは京都ライフ 二条駅前店へ、お気軽にお立ち寄りください
京都市内部屋付け数3年連続1位。(株式会社全国賃貸住宅新聞調べ) 当店はJR山陰線、地下鉄東西線の二条駅から3分に立地し、通勤・通学のアクセスの良さ、近隣施設の充実から近年住みたい街と言われる二条駅すぐの所に店舗を構えております。 各エリア専門のスタッフが揃っておりますので、二条駅周辺だけでなく、京都市全域、向日市・長岡京市・宇治市など幅広くご紹介させて頂きます。 社会人のご単身・ファミリー様をはじめ、先端科学大学・同志社大学・立命館大学・京都大学など大学生のお部屋探しも全力でサポートさせて頂きます。 創業40年、地域密着に拘らせて頂いた京都最大級の物件情報をもとに、 誠心誠意、ご満足頂けるお部屋をご紹介させて頂きます。 お部屋を探しは京都ライフ 二条駅前店へ、お気軽にお立ち寄りください
- 電話でお問合せ(通話無料)
お問合せ先 :株式会社京都ライフ 二条駅前店
不動産会社情報
株式会社京都ライフ 二条駅前店

京都府京都市中京区西ノ京職司町72 ウエストフィールド1階
京都地下鉄東西線 二条駅 徒歩3分
- 営業時間
- 09:30~19:00
- 定休日
- 年中無休(盆正月を除く)
優良店認定
JR、地下鉄とアクセスの良さで人気の二条エリアはもちろん、京都中心地エリア、大宮エリア、西院エリア、円町エリア、北野白梅町エリアなど幅広いエリアでのお部屋探しをサポートいたします。
- 店舗の特徴
- 賃貸管理業務
- 24時間管理物件取扱い
- リフォーム対応
- 引越し業者紹介可
- バリアフリー
- 系列店舗での対応可
- 保証人不要な物件あり
- 法人契約取扱い
- 駅から歩いて3分以内
電話でお問合せお客様の電話番号は不動産会社には通知されません
- 不動産会社に
つながります
お客様の電話番号は不動産会社に通知されません
- ※光IP電話、及びIP電話からはご利用になれません
- ※お電話によるお問合せは、店舗営業時間内にお願いします。つながらない場合は、お問合せフォームよりお問合せください
- ※不動産会社がお電話に出られなかった場合、お問合せいただいた後に不動産会社より折り返しのお電話がある場合がございます(お客様が非通知設定した場合は対象外です)
- ※株式会社LIFULLは電話会社が提供するサービスを介してお客様の発信者番号を受領後、折り返し専用の電話番号を発番してお問合せの不動産会社に通知します(お客様の発信者番号がお問合せの不動産会社に通知されることはございません)
- ※携帯電話からお問合せいただいた方に対し、株式会社LIFULLは電話会社が提供するメッセ―ジサービスを介してお客様の発信者番号を受領後、ショートメッセージ(SMS)またはLINE通知メッセージによるお問合せ内容に関する通知をお届けする場合があります
- ※お客様が通話中に不動産会社にお伝えになったお客様の個人情報及び、電話会社が発番する折り返し専用の電話番号は、お問合せ先不動産会社が資料送付・電子メール送信・電話連絡などの目的で保管する可能性があります。お問合せ先不動産会社が保管する個人情報の取扱いについては、各不動産会社に直接お問合せください
- ※株式会社LIFULLでは本サービスを円滑に運用するために、お客様の発信者番号をサービスご利用の控えとして一定期間保管いたします
- ※上記および株式会社LIFULLの個人情報の取扱い方針に同意のうえ、お電話ください
【LIFULL HOME'S物件番号】0142941-0208997【自社管理番号】01329-401-27
初期費用・月額費用をあわせて確認!この物件に住んだときの費用めやす
めやすを見るこの物件に住んだときの費用めやす
- 初期費用
- 月額費用
- 追加費用※ご確認ください
追加で費用が
かかる場合があります
必ずご確認ください
初期費用めやす約0円
追加で費用がかかります(※)敷金
80,000
- 礼金
80,000
賃料+共益費・管理費の1ヶ月分として換算
賃料の1ヶ月分+税として換算。不動産会社によって金額が異なるため正確な金額は不動産会社にお問合せください
※追加費用もチェック!
これらの項目以外にも費用がかかる場合があります。正確な金額は不動産会社にお問合せください。
- 初期費用
- 鍵交換費:不動産会社に要確認
- 室内清掃費:不動産会社に要確認
- 火災保険費:不動産会社に要確認
- その他
- 水道代:3000円
- 書類代:20000円
- 保証会社
- 不動産会社に要確認
不動産会社より
台所広いです キッチン広めガス2口コンロ設置可能。
地下鉄丸太町駅まで徒歩7分の3DKマンションです。嬉しい3点セパレートなど充実の設備。コンビニ、スーパー、ドラッグストアなど近くにあって便利ですよ。光ファイバー対応しています。 物件情報はもちろん京都のエリア情報まで幅広く対応させていただきます!
- 保存する
- 共有する
- ※各種情報と現状に差異がある場合は、現状優先となります
- ※不動産会社が入力した情報を基に物件の位置を表示しています。詳しくは不動産会社までお問合せください
- ※不動産会社の方からの上記電話番号によるお問合せはお断りしております。こちら不動産会社詳細からお問合せください
- ※LIFULL HOME'Sは物件鮮度No.1を目指していきます。閲覧中の物件が「成約済である」「実際の物件情報と異なる点がある」などの場合、「掲載110番」からお問合せください
- ※QRコードは株式会社デンソーウェーブの登録商標です
したい暮らしのタグから探す
同じ建物の他の部屋
LIFULL HOME'S 地図・周辺情報
買い物
- ローソン 丸太町小川店
- デイリーカナートイズミヤ 堀川丸太町店
- ココカラファインプラスイズミヤ堀川丸太町店
- セブンイレブン 堀川丸太町店
- Seriaイズミヤ堀川丸太町店
グルメ
- 餃子の王将 府庁前店
- モスバーガー イズミヤ堀川丸太町店
- CoCo壱番屋 堀川丸太町店
- マクドナルド 烏丸丸太町店
- すき家 烏丸丸太町店
育児・教育
- ひまわり幼稚園
- 京都市立二条城北小学校
- 私立平安女学院中学校
- こぐま保育園
- 京都市立新町小学校
医療
- 京都第二赤十字病院
- 医療法人毛利病院
- 医療法人財団足立病院
- 医療法人愛寿会同仁病院
- 医療法人知音会京都新町病院
公共施設・郵便局
- 京都府庁前郵便局
- 京都市こどもみらい館子育て図書館
- 京都府警察本部
- 京都大宮丸太町郵便局
- 京都市中央図書館
公園
- 梅屋広場公園
- 京都御苑
- 光徳公園
- 船岡山公園
- 岡崎公園
利用可能な駅
- 徒歩10分以内
京都市営烏丸線
- 丸太町駅徒歩7分
- すべての駅
京都市営烏丸線
- 烏丸御池駅徒歩15分
- 周辺情報は2023年07月21日時点のものになります。
- 周辺情報は、参考情報としてのみご利用ください(周辺情報は、株式会社LIFULLが地図情報の提供事業者から提供を受けた情報とLIFULL HOME'Sの物件情報に基づき、独自の方法で抽出し提供しているものです。周辺情報は、移転や閉鎖等により情報が最新ではない、または正しくない場合がありますが、地図情報の提供事業者から提供された情報をそのまま周辺情報として表示しているため、正確かつ最新の情報へ修正することができないことがあります。)
- 周辺情報は、株式会社LIFULLが掲載するものであり、不動産物件情報を掲載している不動産会社が掲載するものではありません
- 交通情報の一部については、株式会社LIFULLが掲載するものであり、不動産物件情報を掲載している不動産会社が掲載するものではない場合があります。交通情報に関する質問などは株式会社LIFULLにお問合せください






