LIFULL HOME'Sは物件鮮度No.1!※評価について
安行慈林 貸家(2LDK/75.34m²)
安行慈林 貸家(2LDK/75.34m²)
9.2万円/管理費等-
3日前 更新
お問合せ先 :株式会社SKハウス
1〜4月は引越しシーズンのピークです。お問合せはお早めに!
引越し料金割引
弊社からのご紹介で引越し料金が5000円OFFとなります!
- 利用条件
- 株式会社SKハウスで利用可
- 他特典との併用可
- ご契約時までにお知らせくださいませ。
利用方法
来店時に本特典の画面をスマートフォンやタブレットでスタッフに提示、または画面印刷した用紙を提示ください。
有効期限 なし
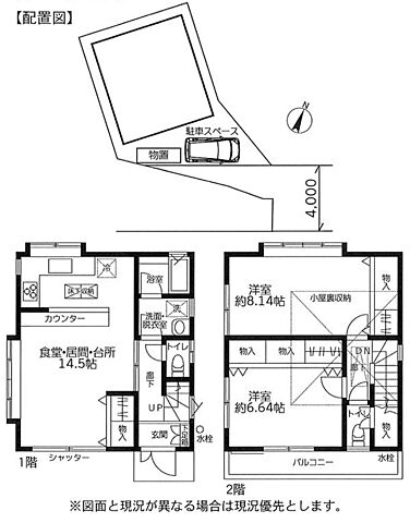
軽自動車敷地内に駐車可能です。ペット飼育2匹迄相談可能!
物件のこだわり/設備・条件
新築(非該当)
2階以上の物件(非該当)
南向き(非該当)
駐車場あり(該当)
オートロック(非該当)
エアコン(該当)
バス・トイレ別(該当)
追焚機能(該当)
フローリング(非該当)
ペット相談可(該当)
入居条件
二人入居可、高齢者歓迎、ペット可、保証人不要、フリーランスフレンドリー、大型犬相談、中型犬相談、小型犬可、猫相談、多頭飼い可- 上記以外や相談可の
詳細はお問合せください - 上記以外や相談可の詳細は
お電話ください(通話無料)電話でお問合せ キッチン/バス・トイレ
ガスコンロ設置済、コンロ三口、システムキッチン、給湯、専用バス、専用トイレ、バス・トイレ別、追焚機能、温水洗浄便座、洗面所独立設備・サービス
エアコン、床下収納、クローゼット、シューズボックス、公営水道、都市ガス、バルコニー、室内洗濯機置場、駐車場あり、バイク置き場あり、駐輪場ありその他
リフォーム物件、住まい探し特典あり備考
エアコン残置となります。経済的な都市ガス!学区☆慈林小学校・安行中学校☆内見可能予定日3月30日〜。初期費用、その他ご質問等ございましたらお気軽にお問合せくださいませ。スタッフ一同お待ちしております。
リフォーム
- 内装
2026年03月 実施
壁、天井(クロス、塗装等)
物件周辺の生活情報
学校
- 川口市立慈林小学校(760m)
- 川口市立鳩ケ谷中学校(1,540m)
買い物
- コンビニ(470m)
- スーパー(480m)
- ドラッグストア(380m)
その他施設
- 総合病院(1,060m)
- 公園(1,900m)
- 銀行(1,590m)
交通
- 埼玉高速鉄道 新井宿駅 徒歩12分
- 普通(停車)
- 急行(停車)
※急行等の停車駅情報について
急行等の停車駅に関するデータは、随時更新をしておりますが、最新の内容であることを保証するものではありません。
最新かつ正確な情報につきましては、各鉄道会社のウェブサイトにてご確認ください
物件周辺の口コミ
- 埼玉県川口市大字安行慈林に住む人の口コミ40代女性
高台の住宅街で日当たりもよく、スーパーやコンビニも近くにあるため
口コミを見る
この物件周辺に住む人の口コミ
口コミは、LIFULL HOME'Sが実際にこの物件の周辺に住む18歳~69歳の男女を対象に、WEBアンケート調査を実施しています。内容には回答者の主観的な表現が含まれる場合があるほか、事実と異なる場合もございます。ご了承ください。
- 埼玉県川口市大字安行慈林に住む人の口コミ40代女性
- 高台の住宅街で日当たりもよく、スーパーやコンビニも近くにあるため
- 埼玉県川口市大字安行慈林に住む人の口コミ30代女性
- 近所に変な人もいなくて、長年住んでる人が多いので色々教えてもらっている
- 埼玉県川口市大字安行慈林に住む人の口コミ40代女性
- 比較的 近くにスーパーや病院、学校、幼稚園、公民館、銀行などがあり行きやすいので
- 埼玉県川口市大字安行慈林に住む人の口コミ60代男性
- あまり周りに気を使うこともなく、それでいて適度にあいさつを交わしたり、物を差し上げたりもらったりできる。苦情なのもなく、子供たちとも挨拶を交わすことができて満足である。
- 埼玉県川口市大字安行慈林に住む人の口コミ50代男性
- 駅まで近く、スーパー、コンビニも24時間営業していて買い物に便利。区画整理が進んでないので道が整備されていないのが難点。
- 埼玉県川口市大字安行慈林に住む人の口コミ60代男性
- スーパーなどが競争して安売りなどしているのでものが安く暮らしやすい。車で5分程度の距離に安売り店が多くあり、お得感が半端ない。病院もそこそこあり便利である。
- 埼玉県川口市大字安行慈林に住む人の口コミ50代男性
- osokumade aiteiru tenpo ga aru
- 埼玉県川口市大字安行慈林に住む人の口コミ30代女性
- 子育てしやすく、公共機関も自家用車も用途によって使い分けられ便利。自然も多いから散歩も楽しめる。
物件概要
- 建物構造
- 木造
- 駐車場
- 空有 (1台) 無料 物件からの距離0m 軽自動車
- 総戸数
- 1戸
- 契約形態
- -
- 契約期間
- -
- 更新料
- -
- その他費用
- -
- 保証会社
加入要
保証会社利用料:初回保証料:総賃料50%〜
- 住宅保険
- 要
- 管理
- -
- LIFULL HOME'S
物件番号 - 0152015-0000332
- 自社管理番号
- -
- 取引態様
- 仲介
- 会社名
- 株式会社SKハウス
営業スタッフコメント

株式会社SKハウス
小泉勇介
お客様に寄り添いご満足いただけるご対応常に心がけております!
業界経験8年
資格宅地建物取引士、少額短期保険募集人
- 会社実績や特徴・サービス情報
- 埼玉川口を中心に一都三県(東京・千葉・埼玉・神奈川)の賃貸仲介から売買仲介を行ってます!お客様へのヒアリングを大事にし素敵な新生活を始めるサポートをさせていただきます!その他、不動産投資や入居等に関するお悩みやご相談も真摯にご対応させていただきます。!ポータルサイトや他社サイトで気になるお部屋がございましたら、お力になれるかと思いますのでお気軽にお問い合わせ下さい!
埼玉川口を中心に一都三県(東京・千葉・埼玉・神奈川)の賃貸仲介から売買仲介を行ってます!お客様へのヒアリングを大事にし素敵な新生活を始めるサポートをさせていただきます!その他、不動産投資や入居等に関するお悩みやご相談も真摯にご対応させていただきます。!ポータルサイトや他社サイトで気になるお部屋がございましたら、お力になれるかと思いますのでお気軽にお問い合わせ下さい!
- 電話でお問合せ(通話無料)
お問合せ先 :株式会社SKハウス
不動産会社情報
賃貸仲介から売買仲介メインとし、お客様へのヒアリングを大事にし素敵な新生活を始めるサポートをさせて頂きます!スタッフ一同お待ちしておりますので、よろしくお願いいたします。
- 店舗の特徴
- 賃貸管理業務
- リフォーム対応
- 引越し業者紹介可
- 駐車場あり
- 送迎あり
- 社宅・寮物件取扱い
- オンライン相談可
- 保証人不要な物件あり
- 法人契約取扱い
- 19時以降も営業
電話でお問合せお客様の電話番号は不動産会社には通知されません
- 不動産会社に
つながります
お客様の電話番号は不動産会社に通知されません
- ※光IP電話、及びIP電話からはご利用になれません
- ※お電話によるお問合せは、店舗営業時間内にお願いします。つながらない場合は、お問合せフォームよりお問合せください
- ※不動産会社がお電話に出られなかった場合、お問合せいただいた後に不動産会社より折り返しのお電話がある場合がございます(お客様が非通知設定した場合は対象外です)
- ※株式会社LIFULLは電話会社が提供するサービスを介してお客様の発信者番号を受領後、折り返し専用の電話番号を発番してお問合せの不動産会社に通知します(お客様の発信者番号がお問合せの不動産会社に通知されることはございません)
- ※携帯電話からお問合せいただいた方に対し、株式会社LIFULLは電話会社が提供するメッセ―ジサービスを介してお客様の発信者番号を受領後、ショートメッセージ(SMS)またはLINE通知メッセージによるお問合せ内容に関する通知をお届けする場合があります
- ※お客様が通話中に不動産会社にお伝えになったお客様の個人情報及び、電話会社が発番する折り返し専用の電話番号は、お問合せ先不動産会社が資料送付・電子メール送信・電話連絡などの目的で保管する可能性があります。お問合せ先不動産会社が保管する個人情報の取扱いについては、各不動産会社に直接お問合せください
- ※株式会社LIFULLでは本サービスを円滑に運用するために、お客様の発信者番号をサービスご利用の控えとして一定期間保管いたします
- ※上記および株式会社LIFULLの個人情報の取扱い方針に同意のうえ、お電話ください
【LIFULL HOME'S物件番号】0152015-0000332
オンライン対応
オンライン相談・IT重説に対応している物件です

「オンライン内見」「オンライン相談」「IT重説」とは?
物件の内見や不動産会社スタッフとの相談、契約前の重要事項説明をオンライン(ビデオ通話)で行うことができるサービスです。
オンライン内見
ビデオ通話で現地(物件)にいる不動産会社スタッフと映像・音声を使ってリアルタイムで会話しながら内見ができます。
オンライン相談
「物件について聞きたいことがある」など不動産会社スタッフへの相談もビデオ通話で行うことができます。
IT重説
契約前の重要事項説明(重説)をビデオ通話で行うことができます。
利用時の注意事項
- ビデオ通話については各不動産会社指定のものとなります。
- ビデオ通話利用時には通信が発生します。従量課金制通信サービスや通信量に上限があるネット回線・プランを利用する場合は、通信量にご注意ください。
- 通信速度やアプリの設定によってはビデオ通話の画質が低下することがあります。安定した画質で利用するためにも、Wi-Fi環境下での利用を推奨します。
- ご利用のビデオ通話アプリによっては、対象のOSやブラウザに制限がある場合があります。詳しくはお問合せ先不動産会社にご確認ください。
初期費用・月額費用をあわせて確認!この物件に住んだときの費用めやす
めやすを見るこの物件に住んだときの費用めやす
- 初期費用
- 月額費用
- 追加費用※ご確認ください
追加で費用が
かかる場合があります
必ずご確認ください
初期費用めやす約0円
追加で費用がかかります(※)敷金
92,000
- 礼金
92,000
賃料+共益費・管理費の1ヶ月分として換算
賃料の1ヶ月分+税として換算。不動産会社によって金額が異なるため正確な金額は不動産会社にお問合せください
※追加費用もチェック!
これらの項目以外にも費用がかかる場合があります。正確な金額は不動産会社にお問合せください。
- 初期費用
- 鍵交換費:不動産会社に要確認
- 室内清掃費:不動産会社に要確認
- 火災保険費:不動産会社に要確認
- 月額費用
- 駐車場費:無料
- 保証会社
- 初回保証料:総賃料50%〜
不動産会社より
軽自動車敷地内に駐車可能です。ペット飼育2匹迄相談可能!
エアコン残置となります。経済的な都市ガス!学区☆慈林小学校・安行中学校☆内見可能予定日3月30日〜。初期費用、その他ご質問等ございましたらお気軽にお問合せくださいませ。スタッフ一同お待ちしております。
- 保存する
- 共有する
- ※各種情報と現状に差異がある場合は、現状優先となります
- ※不動産会社が入力した情報を基に物件の位置を表示しています。詳しくは不動産会社までお問合せください
- ※不動産会社の方からの上記電話番号によるお問合せはお断りしております。こちら不動産会社詳細からお問合せください
- ※LIFULL HOME'Sは物件鮮度No.1を目指していきます。閲覧中の物件が「成約済である」「実際の物件情報と異なる点がある」などの場合、「掲載110番」からお問合せください
- ※QRコードは株式会社デンソーウェーブの登録商標です
LIFULL HOME'S 地図・周辺情報
買い物
- セブンイレブン 川口赤山店
- 西友 川口赤山店
- マツモトキヨシ西友川口赤山店
- セブンイレブン 川口安行慈林北店
- マルエツ 安行慈林店
グルメ
- 安楽亭 赤山店
- サイゼリヤ 西新井宿店
- 華屋与兵衛 川口西新井宿店
- デニーズ 川口新井宿店
- 丸亀製麺川口新井宿店
育児・教育
- 翠ケ丘幼稚園
- 川口市立慈林小学校
- 川口市立鳩ケ谷中学校
- 川口市立桜保育所
- 川口市立桜町小学校
医療
- (財)鳩ケ谷中央病院
- 川口市立医療センター
- 医療法人あかつき会はとがや病院
- 川口さくら病院
- 医療法人社団大成会武南病院
公共施設・郵便局
- 鳩ケ谷桜町郵便局
- 川口市立鳩ヶ谷図書館
- 武南警察署
- 鳩ヶ谷本町郵便局
- 川口市立新郷図書館
公園
- 赤山歴史自然公園
- 県立安行武南自然公園
- 百観音公園
- 安行公園
- 新郷若宮公園
利用可能な駅
- すべての駅
埼玉高速鉄道
- 新井宿駅徒歩12分
- 周辺情報は2023年07月21日時点のものになります。
- 周辺情報は、参考情報としてのみご利用ください(周辺情報は、株式会社LIFULLが地図情報の提供事業者から提供を受けた情報とLIFULL HOME'Sの物件情報に基づき、独自の方法で抽出し提供しているものです。周辺情報は、移転や閉鎖等により情報が最新ではない、または正しくない場合がありますが、地図情報の提供事業者から提供された情報をそのまま周辺情報として表示しているため、正確かつ最新の情報へ修正することができないことがあります。)
- 周辺情報は、株式会社LIFULLが掲載するものであり、不動産物件情報を掲載している不動産会社が掲載するものではありません
- 交通情報の一部については、株式会社LIFULLが掲載するものであり、不動産物件情報を掲載している不動産会社が掲載するものではない場合があります。交通情報に関する質問などは株式会社LIFULLにお問合せください

















