LIFULL HOME'Sは物件鮮度No.1!※評価について
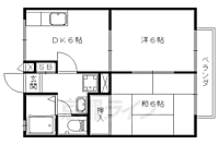
京都地下鉄東西線 醍醐駅 徒歩8分(2階/2DK/43.58m²)
京都地下鉄東西線 醍醐駅 徒歩8分(2階/2DK/43.58m²)
5.9万円/管理費等4,000円
4時間前 更新
画像一覧
1/30間取り
間取
2/30外観
3/30外観
4/30リビング/ダイニング
5/30リビング/ダイニング
6/30リビング/ダイニング
7/30リビング/ダイニング
8/30リビング/ダイニング
9/30リビング/ダイニング
10/30リビング/ダイニング
11/30キッチン
12/30キッチン
13/30キッチン
14/30浴室
15/30浴室
16/30トイレ
17/30洗面
18/30洗面
19/30収納
20/30収納
21/30設備
22/30設備
23/30設備
24/30設備
25/30玄関
26/30バルコニー
27/30バルコニー
28/30その他
29/30その他
30/30周辺
醍醐駅まで600m
間取り
外観
外観
リビング/ダイニング
リビング/ダイニング
リビング/ダイニング
リビング/ダイニング
リビング/ダイニング
リビング/ダイニング
リビング/ダイニング
キッチン
キッチン
キッチン
浴室
浴室
トイレ
洗面
洗面
収納
収納
設備
設備
設備
設備
玄関
バルコニー
バルコニー
その他
その他
周辺
LINEチャットでも 相談できます
お問合せ先 :ウインズリンク株式会社 アパマンショップ山科店
1〜4月は引越しシーズンのピークです。お問合せはお早めに!
仲介手数料割引
御成約時の仲介手数料が賃料の半月分(税別)
- 利用条件
- ウインズリンク株式会社 アパマンショップ山科店で利用可
- 他特典との併用可
利用方法
来店時に本特典の画面をスマートフォンやタブレットでスタッフに提示、または画面印刷した用紙を提示ください。
有効期限 なし
醍醐駅まで徒歩8分 閑静な住宅地 徒歩圏内に大型商業施設もございます。
物件周辺の生活情報
交通
- 京都地下鉄東西線 醍醐駅 徒歩8分
- 普通(停車)
- 京都地下鉄東西線 石田駅 徒歩18分
- 普通(停車)
※急行等の停車駅情報について
急行等の停車駅に関するデータは、随時更新をしておりますが、最新の内容であることを保証するものではありません。
最新かつ正確な情報につきましては、各鉄道会社のウェブサイトにてご確認ください
物件周辺の口コミ
- 京都府京都市伏見区醍醐和泉町に住む人の口コミ60代女性
交通の利便性や生活に必要な施設や公共の建物が近くにあり、由緒ある神社仏閣も多数存在し、自然環境にも恵まれている。日常生活には不便を感じることはない。
口コミを見る
この物件周辺に住む人の口コミ
口コミは、LIFULL HOME'Sが実際にこの物件の周辺に住む18歳~69歳の男女を対象に、WEBアンケート調査を実施しています。内容には回答者の主観的な表現が含まれる場合があるほか、事実と異なる場合もございます。ご了承ください。
- 京都府京都市伏見区醍醐和泉町に住む人の口コミ60代女性
- 交通の利便性や生活に必要な施設や公共の建物が近くにあり、由緒ある神社仏閣も多数存在し、自然環境にも恵まれている。日常生活には不便を感じることはない。
- 京都府京都市伏見区醍醐和泉町に住む人の口コミ60代女性
- 公共の施設も近くにあり、交通の便も良い。買い物にも不自由することがない。外食店も多い。日常生活にあまり支障のない環境である。
- 京都府京都市伏見区醍醐柏森町に住む人の口コミ50代男性
- 子育てがしやすく買い物にも比較的便利で病院も一通りそろっているから。
- 京都府京都市伏見区醍醐御霊ケ下町に住む人の口コミ50代男性
- 昔からある住宅街で、最近地下鉄が開通したから、新旧取り混ぜて住民の活力が高い。
- 京都府京都市山科区小野西浦に住む人の口コミ50代男性
- 治安が良い。交通の便が良い。人が多すぎず少なすぎず。日常生活に不便のない環境である。
- 京都府京都市伏見区醍醐上端山町に住む人の口コミ40代女性
- 車で少しいったところに子どもの遊び場もたくさんあり、子育てに困らない。同じくショッピングも用途に応じて充実している店がたくさんある。自然が豊かにあり、身近に歴史を感じる社寺がある。
- 京都府京都市伏見区小栗栖南後藤町に住む人の口コミ40代男性
- ドラッグストアやスーパーマーケットや大型商業施設などが密集しており、消費者観点から見れば生活面は大満足です。
- 京都府京都市山科区小野西浦に住む人の口コミ50代男性
- 長年その土地で暮らしているので、知り合いも多いし良くも悪くも住んでいるのが当たり前だから
- 京都府京都市伏見区醍醐西大路町に住む人の口コミ60代男性
- 環境が良い、交通の便が良い、近所付き合いが大変だが嫌いな人とは付き合わなくて良い、治安が良い、スーパーが多い
- 京都府京都市山科区勧修寺東堂田町に住む人の口コミ60代女性
- 買い物するスーパーとかコンビニとか近くにある。散歩出来る遊歩道もある。春には桜が咲いて綺麗です。
物件概要
- 建物構造
- 軽量鉄骨造
- 駐車場
- 空有 8,800円(税込)
- 総戸数
- 6戸
- 契約形態
- -
- 契約期間
- 2年間
- 更新料
- 新賃料の1ヶ月分
- その他費用
- 鍵交換費用:16,500円、室内清掃費用:38,500円、抗菌除菌処理代:30,800円、入居者サポート:880円
- 保証会社
加入要
保証会社:全保連
保証会社利用料:初回:月額賃料等の50%、更新時:1.3万円/1年(初回保証料 総賃料120% 更新保証料なしプランあり)
- 住宅保険
- 要
- 管理
- -
- LIFULL HOME'S
物件番号 - 0148634-0080223
- 自社管理番号
- 80958-202-71
- 取引態様
- 仲介
- 会社名
- ウインズリンク株式会社 アパマンショップ山科店
営業スタッフコメント

ウインズリンク株式会社 アパマンショップ山科店
宮本周
宜しくお願い致します。
業界経験1年
- 会社実績や特徴・サービス情報
- 京都市の東の玄関口として発展を続けている山科区は、近年はアクセス面の良さから京都、滋賀、大阪と幅広い地域のベッドタウンとして注目されています。JR、地下鉄、京阪と3つの沿線が利用できる山科駅は通勤・通学の要として人気の駅でもあります。そんな山科区のお部屋探しは、アパマンショップ山科店にぜひお任せください!スタッフ一同、お待ちしております!
京都市の東の玄関口として発展を続けている山科区は、近年はアクセス面の良さから京都、滋賀、大阪と幅広い地域のベッドタウンとして注目されています。JR、地下鉄、京阪と3つの沿線が利用できる山科駅は通勤・通学の要として人気の駅でもあります。そんな山科区のお部屋探しは、アパマンショップ山科店にぜひお任せください!スタッフ一同、お待ちしております!
- 電話でお問合せ(通話無料)
お問合せ先 :ウインズリンク株式会社 アパマンショップ山科店
不動産会社情報
ウインズリンク株式会社 アパマンショップ山科店

京都府京都市山科区安朱南屋敷町19-11
JR東海道・山陽本線 山科駅 徒歩2分
- 営業時間
- 09:30~19:00
- 定休日
- なし(盆休み8/13〜8/16・年末年始12/27〜1/4)
優良店認定
京都市山科区エリアのお部屋探しは、アパマンショップ山科店にお任せください!あなたにぴったりのお部屋をご紹介します。
- 店舗の特徴
- 賃貸管理業務
- リフォーム対応
- 引越し業者紹介可
- 年中無休
- 社宅・寮物件取扱い
- オンライン相談可
- 保証人不要な物件あり
- 法人契約取扱い
- 女性スタッフ対応可
- 駅から歩いて3分以内
電話でお問合せお客様の電話番号は不動産会社には通知されません
- 不動産会社に
つながります
お客様の電話番号は不動産会社に通知されません
- ※光IP電話、及びIP電話からはご利用になれません
- ※お電話によるお問合せは、店舗営業時間内にお願いします。つながらない場合は、お問合せフォームよりお問合せください
- ※不動産会社がお電話に出られなかった場合、お問合せいただいた後に不動産会社より折り返しのお電話がある場合がございます(お客様が非通知設定した場合は対象外です)
- ※株式会社LIFULLは電話会社が提供するサービスを介してお客様の発信者番号を受領後、折り返し専用の電話番号を発番してお問合せの不動産会社に通知します(お客様の発信者番号がお問合せの不動産会社に通知されることはございません)
- ※携帯電話からお問合せいただいた方に対し、株式会社LIFULLは電話会社が提供するメッセ―ジサービスを介してお客様の発信者番号を受領後、ショートメッセージ(SMS)またはLINE通知メッセージによるお問合せ内容に関する通知をお届けする場合があります
- ※お客様が通話中に不動産会社にお伝えになったお客様の個人情報及び、電話会社が発番する折り返し専用の電話番号は、お問合せ先不動産会社が資料送付・電子メール送信・電話連絡などの目的で保管する可能性があります。お問合せ先不動産会社が保管する個人情報の取扱いについては、各不動産会社に直接お問合せください
- ※株式会社LIFULLでは本サービスを円滑に運用するために、お客様の発信者番号をサービスご利用の控えとして一定期間保管いたします
- ※上記および株式会社LIFULLの個人情報の取扱い方針に同意のうえ、お電話ください
【LIFULL HOME'S物件番号】0148634-0080223【自社管理番号】80958-202-71
初期費用・月額費用をあわせて確認!この物件に住んだときの費用めやす
めやすを見るこの物件に住んだときの費用めやす
- 初期費用
- 月額費用
- 追加費用※ご確認ください
追加で費用が
かかる場合があります
必ずご確認ください
初期費用めやす約0円
追加で費用がかかります(※)敷金
50,000
- 礼金
59,000
賃料+共益費・管理費の1ヶ月分として換算
賃料の1ヶ月分+税として換算。不動産会社によって金額が異なるため正確な金額は不動産会社にお問合せください
※追加費用もチェック!
これらの項目以外にも費用がかかる場合があります。正確な金額は不動産会社にお問合せください。
- 初期費用
- 鍵交換費:16,500円
- 室内清掃費:38,500円
- 火災保険費:不動産会社に要確認
- 月額費用
- 駐車場費:8,800円(税込)※契約任意
- その他
- 抗菌除菌処理代:30800円
- 入居者サポート:880円
- 保証会社
- 初回:月額賃料等の50%、更新時:1.3万円/1年(初回保証料 総賃料120% 更新保証料なしプランあり)
不動産会社より
醍醐駅まで徒歩8分 閑静な住宅地 徒歩圏内に大型商業施設もございます。
地下鉄醍醐駅まで徒歩8分の2DKです。嬉しい3点セパレートなど充実の設備。光ファイバー対応しています。
- 保存する
- 共有する
- ※各種情報と現状に差異がある場合は、現状優先となります
- ※不動産会社が入力した情報を基に物件の位置を表示しています。詳しくは不動産会社までお問合せください
- ※不動産会社の方からの上記電話番号によるお問合せはお断りしております。こちら不動産会社詳細からお問合せください
- ※LIFULL HOME'Sは物件鮮度No.1を目指していきます。閲覧中の物件が「成約済である」「実際の物件情報と異なる点がある」などの場合、「掲載110番」からお問合せください
- ※QRコードは株式会社デンソーウェーブの登録商標です
同じ建物の他の部屋
LIFULL HOME'S 地図・周辺情報
買い物
- ファミリーマート 伏見醍醐大構店
- アル・プラザ 醍醐
- キリン堂醍醐店
- ローソン 醍醐多近田店
- ワッツ醍醐店
グルメ
- 吉野家 外環状線醍醐店
- マクドナルド 醍醐アルプラザ店
- ケンタッキーフライドチキン アル・プラザ醍醐店
- 杵屋 京都パセオダイゴロー店
- かつや 京都醍醐店
育児・教育
- 醍醐保育園
- 京都市立醍醐小学校
- 京都市立醍醐中学校
- 社会福祉法人醍醐福祉会中山保育園
- 京都市立池田東小学校
医療
- 医療法人松寿会共和病院
- 医療法人新生十全会なごみの里病院
- 医療法人医仁会武田総合病院
- 医療法人財団桜花会醍醐病院
- 医療法人徳洲会六地蔵総合病院
公共施設・郵便局
- 伏見醍醐郵便局
- 京都市醍醐中央図書館
- 京都市伏見区役所醍醐支所
- 伏見東郵便局
- 京都市醍醐図書館
公園
利用可能な駅
- 徒歩10分以内
京都地下鉄東西線
- 醍醐駅徒歩8分
- すべての駅
京都地下鉄東西線
- 石田駅徒歩18分
- 小野駅徒歩24分
- 椥辻駅3.1km
JR奈良線
- 六地蔵駅徒歩32分
- 木幡駅3.2km
京阪宇治線
- 六地蔵駅徒歩37分
- 木幡駅3.5km
- 周辺情報は2023年07月21日時点のものになります。
- 周辺情報は、参考情報としてのみご利用ください(周辺情報は、株式会社LIFULLが地図情報の提供事業者から提供を受けた情報とLIFULL HOME'Sの物件情報に基づき、独自の方法で抽出し提供しているものです。周辺情報は、移転や閉鎖等により情報が最新ではない、または正しくない場合がありますが、地図情報の提供事業者から提供された情報をそのまま周辺情報として表示しているため、正確かつ最新の情報へ修正することができないことがあります。)
- 周辺情報は、株式会社LIFULLが掲載するものであり、不動産物件情報を掲載している不動産会社が掲載するものではありません
- 交通情報の一部については、株式会社LIFULLが掲載するものであり、不動産物件情報を掲載している不動産会社が掲載するものではない場合があります。交通情報に関する質問などは株式会社LIFULLにお問合せください









