LIFULL HOME'Sは物件鮮度No.1!※評価について
Nビル 3階
10万円/管理費等2,000円
19時間前 更新
画像一覧
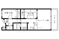
1/30間取り
間取
2/30外観
3/30外観
4/30リビング/ダイニング
大きなリビングは日当たりもいいですよ
5/30リビング/ダイニング
17帖を超えるリビング。
6/30リビング/ダイニング
窓の多さがポイント
7/30リビング/ダイニング
なんと言ってもこの広さ
8/30リビング/ダイニング
パーティーも開けそうw
9/30リビング/ダイニング
和室が併設してます
10/30リビング/ダイニング
まるで分譲マンション
11/30リビング/ダイニング
独立部屋もあります
12/30リビング/ダイニング
窓が大きいので明るいですよ
13/30リビング/ダイニング
壁一面収納
14/30室内
洗面台も大きめ
15/30キッチン
L字システムキッチン
16/30キッチン
3口コンロ付です。
17/30浴室
足も伸ばせそうな浴槽
18/30浴室
追炊き機能付です。
19/30トイレ
明るいトイレで清潔感アップ
20/30トイレ
ウォシュレット付きのトイレ。
21/30洗面
広くて明るいですよ
22/30洗面
洗面台です。
23/30収納
たっぷりと入る機能的な収納。
24/30収納
大きな押入れで収納力も良好
25/30収納
どれだけ入れても大丈夫
26/30玄関
玄関もゆったりとしています。
27/30玄関
玄関もひろいです
28/30バルコニー
広いバルコニー。
29/30その他
風通しのお部屋です。
30/30周辺
フレスコ 丹波橋店まで92m 丹波橋通り沿いに面してます
間取り
外観
外観
リビング/ダイニング
リビング/ダイニング
リビング/ダイニング
リビング/ダイニング
リビング/ダイニング
リビング/ダイニング
リビング/ダイニング
リビング/ダイニング
リビング/ダイニング
リビング/ダイニング
室内
キッチン
キッチン
浴室
浴室
トイレ
トイレ
洗面
洗面
収納
収納
収納
玄関
玄関
バルコニー
その他
周辺
住まい探し特典内容
仲介手数料が家賃の半月分(消費税)です。
- 利用条件
- 株式会社京都ライフ 伏見桃山店で利用可
- 他特典との併用可
- 法人様契約、事業用物件は対象外です。積水ハウス、大東建託の管理物件は除く。
利用方法
来店時に本特典の画面をスマートフォンやタブレットでスタッフに提示、または画面印刷した用紙を提示ください。
有効期限 なし
駅近でスーパー3つ L字型キッチンがオシャレ 収納も大きめです。
物件のこだわり/設備・条件
新築(非該当)
2階以上の物件(該当)
南向き(非該当)
駐車場(非該当)
オートロック(非該当)
エアコン(該当)
バス・トイレ別(該当)
追焚機能(非該当)
フローリング(該当)
ペット相談(非該当)
位置
角部屋入居条件
二人入居可、即入居可キッチン/バス・トイレ
設備・サービス
TVモニタ付インターホン、エアコン、公営水道、都市ガス、下水、フローリング、バルコニー、室内洗濯機置場その他
住まい探し特典あり備考
京阪丹波橋駅まで徒歩7分の2LDKマンションです。京阪、近鉄のダブルアクセス。システムキッチンコンビニ、スーパー、ホームセンターなど近くにあって便利ですよ。 物件情報はもちろん京都のエリア情報まで幅広く対応させていただきます!
物件周辺の生活情報
学校
- 伏見板橋小学校(249m)
- 伏見中学校(248m)
買い物
- コンビニ(275m)
- スーパー(92m)
その他施設
- 総合病院(792m)
- 銀行(232m)
- 京都御駕篭郵便局(333m)
交通
- 京阪本線 丹波橋駅 徒歩7分
- 普通(停車)
- 区間急行(通過)
- 急行(停車)
- 特急(停車)
- 通勤準急・準急(停車)
- 快速特急 洛楽(通過)
- 通勤快急・快速急行(停車)
- 近鉄京都線 伏見駅 徒歩9分
- 普通(停車)
- 準急(通過)
- 急行(通過)
※急行等の停車駅情報について
急行等の停車駅に関するデータは、随時更新をしておりますが、最新の内容であることを保証するものではありません。
最新かつ正確な情報につきましては、各鉄道会社のウェブサイトにてご確認ください
物件周辺の口コミ
- 京都府京都市伏見区鍛冶屋町に住む人の口コミ50代女性
街中は静かで、だからといって田舎でもなく多方面への交通アクセスも便利。衣食住に関わることも不便ではない。
口コミを見る
この物件周辺に住む人の口コミ
口コミは、LIFULL HOME'Sが実際にこの物件の周辺に住む18歳~69歳の男女を対象に、WEBアンケート調査を実施しています。内容には回答者の主観的な表現が含まれる場合があるほか、事実と異なる場合もございます。ご了承ください。
- 京都府京都市伏見区鍛冶屋町に住む人の口コミ50代女性
- 街中は静かで、だからといって田舎でもなく多方面への交通アクセスも便利。衣食住に関わることも不便ではない。
- 京都府京都市伏見区深草善導寺町に住む人の口コミ50代男性
- すぐ近くに近鉄電車の駅があり、スーパー、コンビにもあり、図書館までも自転車ですぐに行ける。徒歩五分のところにあったイズミヤが建て直しのために閉店したが、これも今年の冬には再開なので。
- 京都府京都市伏見区景勝町に住む人の口コミ50代女性
- 静かで、子育てするには充実しているが、車がないと不便を感じるから。
- 京都府京都市伏見区鳥羽町に住む人の口コミ30代女性
- メジャーなコンビニもドラッグストアーも複数、郵便局あり、それら歩いて5分以内に買い物できるし、バス停にバスも20分ずつ停車しますから充実してます。でも、深夜にバイクの騒音が迷惑です。
- 京都府京都市伏見区景勝町に住む人の口コミ40代男性
- 生活する上での支障が少なく、比較的暮らしやすいと感じるから。
- 京都府京都市伏見区桃山井伊掃部西町に住む人の口コミ60代男性
- 大型商業施設も近くにありながら、閑静な住宅地で落ち着いている
- 京都府京都市伏見区津知橋町に住む人の口コミ30代男性
- 概ね生活圏で揃えることができ、交通機関も多いので、移動も便利であるが、郊外に位置しているので、都心部程の店舗はない。
- 京都府京都市伏見区深草新門丈町に住む人の口コミ50代女性
- 交通が便利で自動車無しで動けるところが最も満足している。日用品食料の買物、病院には困っていないが、図書館、スポーツジム、スーパー銭湯など自分の趣味に関わる施設が徒歩圏内にあればさらに満足度は上がる。
- 京都府京都市伏見区舞台町に住む人の口コミ50代女性
- 比較的に安い店が多く 生活自体に不便を感じない。年齢層は高めですが モラルやマナーを守らない人も多く 不愉快なこともあります。
- 京都府京都市伏見区深草越後屋敷町に住む人の口コミ40代女性
- 歴史街道が近くにあり、神社仏閣も多くあることから、一人でも散策して、充実した時間が過ごせる点に満足しています。
物件概要
- 建物構造
- ALC造
- 駐車場
- 無
- 総戸数
- 3戸
- 契約形態
- -
- 契約期間
- 2年間
- 更新料
- 新賃料の1ヶ月分
- その他費用
- ファイテック(消火剤):4,950円、害虫駆除・消毒:35,200円
- 保証会社
加入要
保証会社:ナップ保証
保証会社利用料:初回:月額賃料等の100%、更新時:1万円/1年
- 住宅保険
- 要
- 管理
- -
- LIFULL HOME'S
物件番号 - 0138141-0149830
- 自社管理番号
- 12479-301-25
- 取引態様
- 仲介
- 会社名
- 株式会社京都ライフ 伏見桃山店
営業スタッフコメント

株式会社京都ライフ 伏見桃山店
奥田光貴
全力でサポート致します。
業界経験5年
- スタッフ情報
- 京都の賃貸は京都ライフまでお待ちしております。 伏見桃山に新店を出させて頂きました。新しいお店でお待ちしております。 ご質問、ご不明な点等がございましたらお気軽にお電話、メールにてお問い合わせくださいませ。
京都の賃貸は京都ライフまでお待ちしております。 伏見桃山に新店を出させて頂きました。新しいお店でお待ちしております。 ご質問、ご不明な点等がございましたらお気軽にお電話、メールにてお問い合わせくださいませ。
- 電話でお問合せ(通話無料)
お問合せ先 :株式会社京都ライフ 伏見桃山店
不動産会社情報
株式会社京都ライフ 伏見桃山店

京都府京都市伏見区観音寺町215-1 CONNECT桃山2F
近鉄京都線 桃山御陵前駅 徒歩1分
- 営業時間
- 09:30~19:00
- 定休日
- 年中無休(盆正月を除く)
優良店認定
桃山御陵前駅降りればスグ!人口の多い伏見区、沿線の多い伏見区、大阪へも出易い伏見区でお探しの方へ! もちろん京都市内どこでもご案内致します。全力でお部屋探しをサポートさせて頂きます!
- 店舗の特徴
- 賃貸管理業務
- 24時間管理物件取扱い
- リフォーム対応
- 引越し業者紹介可
- 年中無休
- 社宅・寮物件取扱い
- オンライン相談可
- 保証人不要な物件あり
- 法人契約取扱い
- 駅から歩いて3分以内
電話でお問合せお客様の電話番号は不動産会社には通知されません
- 不動産会社に
つながります
お客様の電話番号は不動産会社に通知されません
- ※光IP電話、及びIP電話からはご利用になれません
- ※お電話によるお問合せは、店舗営業時間内にお願いします。つながらない場合は、お問合せフォームよりお問合せください
- ※不動産会社がお電話に出られなかった場合、お問合せいただいた後に不動産会社より折り返しのお電話がある場合がございます(お客様が非通知設定した場合は対象外です)
- ※株式会社LIFULLは電話会社が提供するサービスを介してお客様の発信者番号を受領後、折り返し専用の電話番号を発番してお問合せの不動産会社に通知します(お客様の発信者番号がお問合せの不動産会社に通知されることはございません)
- ※携帯電話からお問合せいただいた方に対し、株式会社LIFULLは電話会社が提供するメッセ―ジサービスを介してお客様の発信者番号を受領後、ショートメッセージ(SMS)またはLINE通知メッセージによるお問合せ内容に関する通知をお届けする場合があります
- ※お客様が通話中に不動産会社にお伝えになったお客様の個人情報及び、電話会社が発番する折り返し専用の電話番号は、お問合せ先不動産会社が資料送付・電子メール送信・電話連絡などの目的で保管する可能性があります。お問合せ先不動産会社が保管する個人情報の取扱いについては、各不動産会社に直接お問合せください
- ※株式会社LIFULLでは本サービスを円滑に運用するために、お客様の発信者番号をサービスご利用の控えとして一定期間保管いたします
- ※上記および株式会社LIFULLの個人情報の取扱い方針に同意のうえ、お電話ください
【LIFULL HOME'S物件番号】0138141-0149830【自社管理番号】12479-301-25
初期費用・月額費用をあわせて確認!この物件に住んだときの費用めやす
めやすを見るこの物件に住んだときの費用めやす
- 初期費用
- 月額費用
- 追加費用※ご確認ください
追加で費用が
かかる場合があります
必ずご確認ください
初期費用めやす約0円
追加で費用がかかります(※)敷金
200,000
- 礼金
100,000
賃料+共益費・管理費の1ヶ月分として換算
賃料の1ヶ月分+税として換算。不動産会社によって金額が異なるため正確な金額は不動産会社にお問合せください
※追加費用もチェック!
これらの項目以外にも費用がかかる場合があります。正確な金額は不動産会社にお問合せください。
- 初期費用
- 鍵交換費:不動産会社に要確認
- 室内清掃費:不動産会社に要確認
- 火災保険費:不動産会社に要確認
- その他
- ファイテック(消火剤):4950円
- 害虫駆除・消毒:35200円
- 保証会社
- 初回:月額賃料等の100%、更新時:1万円/1年
不動産会社より
駅近でスーパー3つ L字型キッチンがオシャレ 収納も大きめです。
京阪丹波橋駅まで徒歩7分の2LDKマンションです。京阪、近鉄のダブルアクセス。システムキッチンコンビニ、スーパー、ホームセンターなど近くにあって便利ですよ。 物件情報はもちろん京都のエリア情報まで幅広く対応させていただきます!
- 保存する
- 共有する
- ※各種情報と現状に差異がある場合は、現状優先となります
- ※不動産会社が入力した情報を基に物件の位置を表示しています。詳しくは不動産会社までお問合せください
- ※不動産会社の方からの上記電話番号によるお問合せはお断りしております。こちら不動産会社詳細からお問合せください
- ※LIFULL HOME'Sは物件鮮度No.1を目指していきます。閲覧中の物件が「成約済である」「実際の物件情報と異なる点がある」などの場合、「掲載110番」からお問合せください
- ※QRコードは株式会社デンソーウェーブの登録商標です
したい暮らしのタグから探す
LIFULL HOME'S 地図・周辺情報
買い物
- ファミリーマート 伏見舞台町店
- ワッツ丹波橋店
- ダックス伏見丹波橋店
- ファミリーマート 伏見西丹波橋店
- 万代 丹波橋店
グルメ
- CoCo壱番屋 新堀川店
- 無添くら寿司 京都伏見店
- かつや 京都新堀川店
- なか卯 新堀川店
- ケンタッキーフライドチキン カナートモール伏見店
育児・教育
- 第二あけぼの保育園
- 京都市立伏見板橋小学校
- 京都市立伏見中学校
- 京都市立伏見住吉幼稚園
- 京都市立伏見住吉小学校
医療
- 社会医療法人岡本病院(財団)伏見岡本病院
- 社会福祉法人浩照会伏見桃山総合病院
- 医療法人清水会京都リハビリテーション病院
- 医療法人社団蘇生会総合病院
- 医療法人社団蘇生会蘇生会総合病院介護医療院
公共施設・郵便局
- 京都御駕篭郵便局
- 京都市伏見中央図書館
- 京都市伏見区役所
- 伏見竹田口郵便局
- 京都市向島図書館
公園
- 三栖公園
- 竹田公園
- 下鳥羽公園
- 鳥羽離宮跡公園
- 伏見桃山城運動公園
利用可能な駅
- 徒歩10分以内
京阪本線
- 丹波橋駅徒歩7分
近鉄京都線
- 伏見駅徒歩9分
- すべての駅
近鉄京都線
- 近鉄丹波橋駅徒歩12分
- 桃山御陵前駅徒歩18分
- 竹田駅徒歩25分
- 上鳥羽口駅3.5km
京阪本線
- 伏見桃山駅徒歩18分
- 墨染駅徒歩20分
- 中書島駅徒歩21分
- 藤森駅徒歩32分
- 龍谷大前深草駅3.3km
JR奈良線
- 桃山駅徒歩24分
- JR藤森駅徒歩29分
京阪宇治線
- 観月橋駅徒歩29分
- 桃山南口駅3.4km
京都市営烏丸線
- くいな橋駅徒歩37分
- 周辺情報は2023年07月21日時点のものになります。
- 周辺情報は、参考情報としてのみご利用ください(周辺情報は、株式会社LIFULLが地図情報の提供事業者から提供を受けた情報とLIFULL HOME'Sの物件情報に基づき、独自の方法で抽出し提供しているものです。周辺情報は、移転や閉鎖等により情報が最新ではない、または正しくない場合がありますが、地図情報の提供事業者から提供された情報をそのまま周辺情報として表示しているため、正確かつ最新の情報へ修正することができないことがあります。)
- 周辺情報は、株式会社LIFULLが掲載するものであり、不動産物件情報を掲載している不動産会社が掲載するものではありません
- 交通情報の一部については、株式会社LIFULLが掲載するものであり、不動産物件情報を掲載している不動産会社が掲載するものではない場合があります。交通情報に関する質問などは株式会社LIFULLにお問合せください









