LIFULL HOME'Sは物件鮮度No.1!※評価について
近建イレブン 5階/505
4.4万円/管理費等6,000円
2時間前 更新
画像一覧
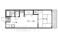
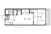
1/26間取り
2/26リビング/ダイニング
和室
3/26室内
和室
4/26寝室
和室
5/26寝室
和室
6/26子供部屋
和室
7/26キッチン
キッチン
8/26キッチン
キッチン
9/26キッチン
シンク
10/26浴室
風呂
11/26浴室
風呂
12/26トイレ
トイレ
13/26洗面
洗面所
14/26洗面
収納
15/26収納
収納
16/26収納
収納
17/26設備
洗濯機置場
18/26玄関
玄関
19/26バルコニー
ベランダ
20/26その他
眺望
21/26その他
エアコン
22/26その他
眺望
23/26その他
エアコン
24/26その他
集合ポスト
25/26周辺
サンディ 山科竹鼻店まで780メートル
26/26周辺
ローソン 山科四ノ宮店まで40メートル
間取り
リビング/ダイニング
室内
寝室
寝室
子供部屋
キッチン
キッチン
キッチン
浴室
浴室
トイレ
洗面
洗面
収納
収納
設備
玄関
バルコニー
その他
その他
その他
その他
その他
周辺
周辺
お問合せ先 :株式会社エリッツ 椥辻店
住まい探し特典内容
電気・ガス・インターネットの手続き代行のご案内します。
- 利用条件
- 株式会社エリッツ 椥辻店で利用可
- 他特典との併用可
利用方法
来店時に本特典の画面をスマートフォンやタブレットでスタッフに提示、または画面印刷した用紙を提示ください。
有効期限 なし
賃貸マンション--パノラマ掲載--
物件のこだわり/設備・条件
新築(非該当)
2階以上の物件(該当)
南向き(該当)
駐車場(非該当)
オートロック(非該当)
エアコン(該当)
バス・トイレ別(該当)
追焚機能(非該当)
フローリング(該当)
ペット相談(非該当)
入居条件
二人入居可、即入居可キッチン/バス・トイレ
設備・サービス
エアコン、CATV、光ファイバー、公営水道、都市ガス、下水、フローリング、バルコニー、洗濯機置場あり、南面バルコニー、エレベーター、駐輪場ありその他
初期費用カード決済可、住まい探し特典あり備考
お部屋はおもな開口部が南方向に向いており、お部屋の床はフローリングとなっております。お風呂とトイレが分かれているお部屋です。周辺にはローソン 山科四ノ宮店があり便利です。・光ファイバーインターネット接続可 ハウスクリーニング36300円(退去時)
物件周辺の生活情報
買い物
- コンビニ(40m)
- スーパー(780m)
その他施設
- 総合病院(720m)
交通
- JR東海道・山陽本線 山科駅 徒歩11分
- 普通(停車)
- 新快速(停車)
- 快速(停車)
- 緩行電車(停車)
- 特別快速(通過)
- 区間快速(通過)
- 京阪京津線 四宮駅 徒歩4分
- 普通(停車)
※急行等の停車駅情報について
急行等の停車駅に関するデータは、随時更新をしておりますが、最新の内容であることを保証するものではありません。
最新かつ正確な情報につきましては、各鉄道会社のウェブサイトにてご確認ください
物件周辺の口コミ
- 京都府京都市山科区四ノ宮神田町に住む人の口コミ50代女性
必要であれば電車一本で近くの百貨店にも他府県にも移動しやすい
口コミを見る
この物件周辺に住む人の口コミ
口コミは、LIFULL HOME'Sが実際にこの物件の周辺に住む18歳~69歳の男女を対象に、WEBアンケート調査を実施しています。内容には回答者の主観的な表現が含まれる場合があるほか、事実と異なる場合もございます。ご了承ください。
- 京都府京都市山科区四ノ宮神田町に住む人の口コミ50代女性
- 必要であれば電車一本で近くの百貨店にも他府県にも移動しやすい
- 京都府京都市山科区東野北井ノ上町に住む人の口コミ30代男性
- 京都市内に30分以内に到着できるし、住むにはのんびりしていてよいところだ
- 京都府京都市山科区四ノ宮鎌手町に住む人の口コミ60代男性
- 毎日特に困ったことが無い、変化や大きな刺激はないが、幸せだと思う。
- 京都府京都市山科区安朱中溝町に住む人の口コミ60代女性
- JRの駅に近く新幹線、関空行きの特急に乗るのに一駅と便利。商業施設も歩いて行ける。散策は春は桜、秋は紅葉と季節の変化を楽しめる。ただ近くに美味しい京料理の店が無いのが残念です?
- 京都府京都市山科区上野御所ノ内町に住む人の口コミ30代女性
- 買い物移動には便利ですが、治安があまりよくなく、市内でも犯罪率が高いため
- 京都府京都市山科区安朱堂ノ後町に住む人の口コミ30代女性
- 都会でもなく田舎でもなく、買い物も便利。図書館や公園、支援センターもあり子どもも遊べる。しかし、公園は古くあまりきれいではない。土地が高い。
- 滋賀県大津市横木に住む人の口コミ40代女性
- 都会のような疲れる人間関係も無く ひとは穏やかでゆったり。空がキレイなのはいうまでもなく癒される、ただし、バイパスが間近にあり車の走行音はうるさい。国道も高速も近くにあるため 音や排ガスに不満
- 京都府京都市山科区竹鼻扇町に住む人の口コミ30代女性
- 交通の便がよく、買い物にすぐに行けるので、日常生活に困らない。
- 京都府京都市山科区音羽前出町に住む人の口コミ30代女性
- 歩いて10分以内にスーパーが5件あるし、その他何でもそろうから
- 京都府京都市山科区上野御所ノ内町に住む人の口コミ30代女性
- 交通の便がよく、京都駅まで電車で5分、河原町へも地下鉄で15分の距離であり、国道・ICも10分圏内にあることから車使用の有無に関わらず快適に過ごせている。
物件概要
- 建物構造
- RC(鉄筋コンクリート)
- 駐車場
- 近隣 10,000円(税無) 物件からの距離424m
- 総戸数
- 50戸
- 契約形態
- -
- 契約期間
- 2年間
- 更新料
- -
- その他費用
- 鍵交換費用:16,500円、管理会社書類代(初回):3,300円
- 保証会社
加入要
保証会社利用料:20、000円
- 住宅保険
- 要
- 管理
- -
- LIFULL HOME'S
物件番号 - 0117104-0266759
- 自社管理番号
- 6592-0505
- 取引態様
- 仲介
- 会社名
- 株式会社エリッツ 椥辻店
営業スタッフコメント

株式会社エリッツ 椥辻店
岡田直樹
お部屋探しを精一杯サポートさせていただきます。
業界経験5年
- 会社実績や特徴・サービス情報
- 賃貸のエリッツ椥辻店です。親切・丁寧な応対で、ご納得頂ける物件が見つかるまでご提案させて頂きます。山科エリアでお探しの方はもちろん、伏見区・宇治など幅広いエリアをお探しの方でも構いませんので、ぜひご利用下さいませ。
賃貸のエリッツ椥辻店です。親切・丁寧な応対で、ご納得頂ける物件が見つかるまでご提案させて頂きます。山科エリアでお探しの方はもちろん、伏見区・宇治など幅広いエリアをお探しの方でも構いませんので、ぜひご利用下さいませ。
- 電話でお問合せ(通話無料)
お問合せ先 :株式会社エリッツ 椥辻店
不動産会社情報
株式会社エリッツ 椥辻店賃貸のエリッツ椥辻店

京都府京都市山科区椥辻中在家町17 プラザ椥ノ辻1F
京都地下鉄東西線 椥辻駅 徒歩3分
- 営業時間
- 10:00~19:00
- 定休日
- 水曜日(祝日を除く)、年末年始 ※部屋探しのお問い合わせは無休
優良店認定
1人暮らし用のマンションからファミリー向けのマンションと幅広くお客様のご要望にあう物件を徹底的にスタッフ全員でお探しさせて頂きます。
- 店舗の特徴
- 24時間管理物件取扱い
- 引越し業者紹介可
- 駐車場あり
- 系列店舗での対応可
- 社宅・寮物件取扱い
- オンライン相談可
- 保証人不要な物件あり
- 法人契約取扱い
- 駅から歩いて3分以内
電話でお問合せお客様の電話番号は不動産会社には通知されません
- 不動産会社に
つながります
お客様の電話番号は不動産会社に通知されません
- ※光IP電話、及びIP電話からはご利用になれません
- ※お電話によるお問合せは、店舗営業時間内にお願いします。つながらない場合は、お問合せフォームよりお問合せください
- ※不動産会社がお電話に出られなかった場合、お問合せいただいた後に不動産会社より折り返しのお電話がある場合がございます(お客様が非通知設定した場合は対象外です)
- ※株式会社LIFULLは電話会社が提供するサービスを介してお客様の発信者番号を受領後、折り返し専用の電話番号を発番してお問合せの不動産会社に通知します(お客様の発信者番号がお問合せの不動産会社に通知されることはございません)
- ※携帯電話からお問合せいただいた方に対し、株式会社LIFULLは電話会社が提供するメッセ―ジサービスを介してお客様の発信者番号を受領後、ショートメッセージ(SMS)またはLINE通知メッセージによるお問合せ内容に関する通知をお届けする場合があります
- ※お客様が通話中に不動産会社にお伝えになったお客様の個人情報及び、電話会社が発番する折り返し専用の電話番号は、お問合せ先不動産会社が資料送付・電子メール送信・電話連絡などの目的で保管する可能性があります。お問合せ先不動産会社が保管する個人情報の取扱いについては、各不動産会社に直接お問合せください
- ※株式会社LIFULLでは本サービスを円滑に運用するために、お客様の発信者番号をサービスご利用の控えとして一定期間保管いたします
- ※上記および株式会社LIFULLの個人情報の取扱い方針に同意のうえ、お電話ください
【LIFULL HOME'S物件番号】0117104-0266759【自社管理番号】6592-0505
オンライン対応
オンライン内見・オンライン相談・IT重説に対応している物件です

「オンライン内見」「オンライン相談」「IT重説」とは?
物件の内見や不動産会社スタッフとの相談、契約前の重要事項説明をオンライン(ビデオ通話)で行うことができるサービスです。
オンライン内見
ビデオ通話で現地(物件)にいる不動産会社スタッフと映像・音声を使ってリアルタイムで会話しながら内見ができます。
オンライン相談
「物件について聞きたいことがある」など不動産会社スタッフへの相談もビデオ通話で行うことができます。
IT重説
契約前の重要事項説明(重説)をビデオ通話で行うことができます。
利用時の注意事項
- ビデオ通話については各不動産会社指定のものとなります。
- ビデオ通話利用時には通信が発生します。従量課金制通信サービスや通信量に上限があるネット回線・プランを利用する場合は、通信量にご注意ください。
- 通信速度やアプリの設定によってはビデオ通話の画質が低下することがあります。安定した画質で利用するためにも、Wi-Fi環境下での利用を推奨します。
- ご利用のビデオ通話アプリによっては、対象のOSやブラウザに制限がある場合があります。詳しくはお問合せ先不動産会社にご確認ください。
初期費用・月額費用をあわせて確認!この物件に住んだときの費用めやす
めやすを見るこの物件に住んだときの費用めやす
- 初期費用
- 月額費用
- 追加費用※ご確認ください
追加で費用が
かかる場合があります
必ずご確認ください
初期費用めやす約0円
追加で費用がかかります(※)敷金
44,000
- 礼金
0
賃料+共益費・管理費の1ヶ月分として換算
賃料の1ヶ月分+税として換算。不動産会社によって金額が異なるため正確な金額は不動産会社にお問合せください
※追加費用もチェック!
これらの項目以外にも費用がかかる場合があります。正確な金額は不動産会社にお問合せください。
- 初期費用
- 鍵交換費:16,500円
- 室内清掃費:不動産会社に要確認
- 火災保険費:不動産会社に要確認
- 月額費用
- 駐車場費:10,000円※近隣
- その他
- 管理会社書類代(初回):3300円
- 保証会社
- 20、000円
不動産会社より
賃貸マンション--パノラマ掲載--
お部屋はおもな開口部が南方向に向いており、お部屋の床はフローリングとなっております。お風呂とトイレが分かれているお部屋です。周辺にはローソン 山科四ノ宮店があり便利です。・光ファイバーインターネット接続可 ハウスクリーニング36300円(退去時)
- 保存する
- 共有する
- ※各種情報と現状に差異がある場合は、現状優先となります
- ※不動産会社が入力した情報を基に物件の位置を表示しています。詳しくは不動産会社までお問合せください
- ※不動産会社の方からの上記電話番号によるお問合せはお断りしております。こちら不動産会社詳細からお問合せください
- ※LIFULL HOME'Sは物件鮮度No.1を目指していきます。閲覧中の物件が「成約済である」「実際の物件情報と異なる点がある」などの場合、「掲載110番」からお問合せください
- ※QRコードは株式会社デンソーウェーブの登録商標です
したい暮らしのタグから探す
この物件を取扱う他の会社
LIFULL HOME'Sでは、主要項目が同一の物件をまとめて表示しています。所在地や営業時間、掲載画像等から不動産会社を選んでお問合せください。
株式会社エリッツ 山科店
優良店認定
京都府京都市山科区竹鼻竹ノ街道町42−2 オフィス山科1F
JR東海道・山陽本線 山科駅 徒歩6分
- 営業時間
- 10:00~19:00
- 定休日
- 年中無休(年末年始を除く)
最近見た賃貸物件
LIFULL HOME'S 地図・周辺情報
買い物
- ローソン 山科四ノ宮店
- サンディ山科竹鼻店
- ココカラファインJR山科駅前店
- ローソン 山科四ノ宮垣ノ内町店
- ワッツ山科ラクト店
グルメ
- ガスト 京都山科店(から好し取扱店)
- ドトールコーヒーショップEneJet京都東インター店
- 餃子の王将 山科駅前店
- 松屋 山科店
- 鶴橋風月 山科店
育児・教育
- 安朱保育園
- 京都市立音羽小学校
- 私立一燈園中学校
- いずみ幼稚園
- 京都市立音羽川小学校
医療
- 医療法人社団洛和会洛和会音羽病院
- 一般社団法人愛生会山科病院
- 医療法人社団洛和会洛和会音羽リハビリテーション病院
- 医療法人洛和会洛和会音羽記念病院
- 加藤山科病院
公共施設・郵便局
- 山科四宮郵便局
- 京都市山科図書館
- 京都市山科区役所
- 京都山科竹鼻郵便局
- 山科警察署
公園
利用可能な駅
- 徒歩10分以内
京阪京津線
- 四宮駅徒歩4分
- すべての駅
JR東海道・山陽本線
- 山科駅徒歩11分
京阪京津線
- 京阪山科駅徒歩11分
- 追分駅徒歩19分
- 御陵駅徒歩29分
- 大谷駅3.2km
京都地下鉄東西線
- 東野駅徒歩16分
- 椥辻駅徒歩31分
- その他交通
- 京都地下鉄東西線 山科駅 徒歩9分
- 周辺情報は2023年07月21日時点のものになります。
- 周辺情報は、参考情報としてのみご利用ください(周辺情報は、株式会社LIFULLが地図情報の提供事業者から提供を受けた情報とLIFULL HOME'Sの物件情報に基づき、独自の方法で抽出し提供しているものです。周辺情報は、移転や閉鎖等により情報が最新ではない、または正しくない場合がありますが、地図情報の提供事業者から提供された情報をそのまま周辺情報として表示しているため、正確かつ最新の情報へ修正することができないことがあります。)
- 周辺情報は、株式会社LIFULLが掲載するものであり、不動産物件情報を掲載している不動産会社が掲載するものではありません
- 交通情報の一部については、株式会社LIFULLが掲載するものであり、不動産物件情報を掲載している不動産会社が掲載するものではない場合があります。交通情報に関する質問などは株式会社LIFULLにお問合せください












































