LIFULL HOME'Sは物件鮮度No.1!※評価について
LEGAL京都四条河原町通りII 8階/801
16.5万円/管理費等14,610円
15時間前 更新
画像一覧
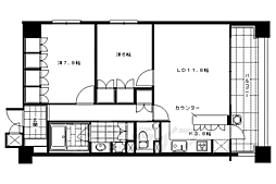
1/30間取り
間取
2/30外観
3/30外観
4/30リビング/ダイニング
5/30リビング/ダイニング
6/30リビング/ダイニング
7/30リビング/ダイニング
8/30寝室
9/30キッチン
10/30キッチン
11/30キッチン
12/30キッチン
13/30浴室
14/30浴室
15/30トイレ
16/30洗面
17/30収納
18/30収納
19/30収納
20/30設備
21/30設備
22/30設備
23/30設備
24/30玄関
25/30バルコニー
26/30バルコニー
27/30その他
28/30その他
29/30その他
30/30周辺
セブンイレブン京都河原町高辻店まで67m 便利な立地ですよ。
間取り
外観
外観
リビング/ダイニング
リビング/ダイニング
リビング/ダイニング
リビング/ダイニング
寝室
キッチン
キッチン
キッチン
キッチン
浴室
浴室
トイレ
洗面
収納
収納
収納
設備
設備
設備
設備
玄関
バルコニー
バルコニー
その他
その他
その他
周辺
仲介手数料割引
仲介手数料50%(税別)でご成約頂けます。
- 利用条件
- 株式会社京都ライフ 烏丸五条店で利用可
- 他特典との併用可
- ※法人契約、積水ハウス、大東建託の管理物件は家賃1か月分の仲介手数料要。
利用方法
来店時に本特典の画面をスマートフォンやタブレットでスタッフに提示、または画面印刷した用紙を提示ください。
有効期限 なし
豪華な設備で優雅な暮らし 設備充実・場所も中心部でお考えの方・
基本情報
不動産用語- 賃料
- 16.5万円
- 管理費等
- 14,610円
初期費用などお気軽にお問合せください
物件のこだわり/設備・条件
新築(非該当)
2階以上の物件(該当)
南向き(非該当)
駐車場あり(該当)
オートロック(該当)
エアコン(非該当)
バス・トイレ別(該当)
追焚機能(該当)
フローリング(該当)
ペット相談(非該当)
入居条件
二人入居可、即入居可キッチン/バス・トイレ
設備・サービス
オートロック、管理人常駐、TVモニタ付インターホン、BS対応、光ファイバー、公営水道、都市ガス、下水、フローリング、バルコニー、室内洗濯機置場、照明器具付き、エレベーター、宅配ボックス、駐車場あり、駐輪場ありその他
分譲賃貸、住まい探し特典あり備考
阪急河原町駅まで徒歩4分の分譲賃貸マンションです。京阪、阪急、地下鉄のトリプルアクセス。嬉しい3点セパレートに浴室乾燥機、追い焚き機能付浴室、システムキッチン、温水洗浄便座など充実の設備。オートロック、TVホンでセキュリティも安心です。コンビニ、スーパーなど近くにあって便利ですよ。光ファイバー対応しています。 物件情報はもちろん京都のエリア情報まで幅広く対応させていただきます!
物件周辺の生活情報
学校
- 洛央小学校(567m)
- 下京中学校(1,100m)
買い物
- コンビニ(67m)
- スーパー(153m)
その他施設
- 総合病院(1,200m)
- 銀行(337m)
- 京都寺町松原郵便局(239m)
交通
- 阪急京都本線 京都河原町駅 徒歩4分
- 普通(停車)
- 準急(停車)
- 堺筋準急(停車)
- 通勤特急(停車)
- 特急(停車)
- 急行(停車)
- 準特急(停車)
- 京阪本線 祇園四条駅 徒歩6分
- 普通(停車)
- 区間急行(通過)
- 急行(停車)
- 特急(停車)
- 通勤準急・準急(停車)
- 快速特急 洛楽(停車)
- 通勤快急・快速急行(停車)
※急行等の停車駅情報について
急行等の停車駅に関するデータは、随時更新をしておりますが、最新の内容であることを保証するものではありません。
最新かつ正確な情報につきましては、各鉄道会社のウェブサイトにてご確認ください
物件周辺の口コミ
- 京都府京都市中京区堺町通三条上るに住む人の口コミ50代女性
生活に必要なものが揃っていて便利。観光シーズンは何処へ行っても満員なのが少し憂鬱ではあるが落ち着けるお寺や御所、静かなカフェなどもあり、暮らしやすい場所である。病院も多く安心。
口コミを見る
この物件周辺に住む人の口コミ
口コミは、LIFULL HOME'Sが実際にこの物件の周辺に住む18歳~69歳の男女を対象に、WEBアンケート調査を実施しています。内容には回答者の主観的な表現が含まれる場合があるほか、事実と異なる場合もございます。ご了承ください。
- 京都府京都市中京区堺町通三条上るに住む人の口コミ50代女性
- 生活に必要なものが揃っていて便利。観光シーズンは何処へ行っても満員なのが少し憂鬱ではあるが落ち着けるお寺や御所、静かなカフェなどもあり、暮らしやすい場所である。病院も多く安心。
- 京都府京都市下京区仏光寺通堺町東入に住む人の口コミ40代男性
- 都会なのでなんでも揃っているし、交通の便もすごくいい。しかし、最近は外国からの観光客が大量で市民の生活圏にまで侵入している。いい加減に疲弊してきている
- 京都府京都市東山区宮川筋8丁目に住む人の口コミ50代男性
- 今はコロナ禍で少ないですが普段は観光客が多すぎるので、そこが少し減点です
- 京都府京都市中京区蛸薬師通柳馬場東入に住む人の口コミ30代女性
- 利便性の面ではとても評価できる。ただ、財政破綻が噂されているだけあって、今後が不安
- 京都府京都市東山区大和大路通松原下る2丁目に住む人の口コミ40代男性
- 騒がしくもないが。閑散もしておらず、静かな暮らしに向いている。
- 京都府京都市東山区祇園町南側に住む人の口コミ50代男性
- 京都市の考える街づくりが、観光ビジネス中心に考えているため、幹線道路である四条通などを歩道を大きくするため車道を減らし渋滞がおきている。車での移動が困難になってきている。
- 京都府京都市中京区麩屋町通六角上るに住む人の口コミ50代男性
- 京都で一番の商店街が徒歩2分ほどと大変便利な環境です。バス停や複数の駅まで徒歩10分あれば、大体行けます。夜も静かで過ごしやすいのが、理由です。
- 京都府京都市中京区堺町通六角下るに住む人の口コミ40代女性
- 便利、楽しい、生活水準が高い、商業施設が多いが、御所や鴨川などの自然も楽しめる点。
- 京都府京都市中京区御幸町通三条上るに住む人の口コミ40代女性
- 交通の便がよく、川も山も御所もあり、リラックスできるし、買い物も便利だから。
- 京都府京都市下京区仏光寺通堺町東入に住む人の口コミ40代女性
- 終電でも無事に家に帰ることができ、生活に必要なものはひととおり車を利用しなくても近所で揃えることが出来ることが魅力
物件概要
- 建物構造
- SRC(鉄骨鉄筋コンクリート)
- 駐車場
- 空有 35,000円(税込)
- 総戸数
- 53戸
- 契約形態
- -
- 契約期間
- 2年間
- 更新料
- -
- その他費用
- -
- 保証会社
- -
- 住宅保険
- 要
- 管理
- 管理員:常駐
- LIFULL HOME'S
物件番号 - 0126938-0255396
- 自社管理番号
- 09030-801-23
- 取引態様
- 仲介
- 会社名
- 株式会社京都ライフ 烏丸五条店
営業スタッフコメント

株式会社京都ライフ 烏丸五条店賃貸仲介営業
中山登夢
お部屋探しは、私にお任せを!
業界経験2年
資格宅地建物取引士
- 会社実績や特徴・サービス情報
- この度は物件情報のご閲覧ありがとうございます。 ご案内ご希望の際は店頭・現地・最寄り駅等、 お客様のご都合に合わせお待ち合わせも可能です。 お気軽におっしゃってくださいませ。 お問い合わせを心よりお待ちしております。
この度は物件情報のご閲覧ありがとうございます。 ご案内ご希望の際は店頭・現地・最寄り駅等、 お客様のご都合に合わせお待ち合わせも可能です。 お気軽におっしゃってくださいませ。 お問い合わせを心よりお待ちしております。
- 電話でお問合せ(通話無料)
お問合せ先 :株式会社京都ライフ 烏丸五条店
不動産会社情報
京都の情報を熟知した店舗スタッフが、豊富な物件量で皆様のお部屋探しを全力でサポートさせていただきます!お客様からのお問い合わせ・ご来店、烏丸五条店スタッフ一同心よりお待ちしております。
- 店舗の特徴
- 引越し業者紹介可
- 系列店舗での対応可
- 社宅・寮物件取扱い
- オンライン相談可
- 保証人不要な物件あり
- 法人契約取扱い
- 女性スタッフ対応可
- 駅から歩いて3分以内
電話でお問合せお客様の電話番号は不動産会社には通知されません
- 不動産会社に
つながります
お客様の電話番号は不動産会社に通知されません
- ※光IP電話、及びIP電話からはご利用になれません
- ※お電話によるお問合せは、店舗営業時間内にお願いします。つながらない場合は、お問合せフォームよりお問合せください
- ※不動産会社がお電話に出られなかった場合、お問合せいただいた後に不動産会社より折り返しのお電話がある場合がございます(お客様が非通知設定した場合は対象外です)
- ※株式会社LIFULLは電話会社が提供するサービスを介してお客様の発信者番号を受領後、折り返し専用の電話番号を発番してお問合せの不動産会社に通知します(お客様の発信者番号がお問合せの不動産会社に通知されることはございません)
- ※携帯電話からお問合せいただいた方に対し、株式会社LIFULLは電話会社が提供するメッセ―ジサービスを介してお客様の発信者番号を受領後、ショートメッセージ(SMS)またはLINE通知メッセージによるお問合せ内容に関する通知をお届けする場合があります
- ※お客様が通話中に不動産会社にお伝えになったお客様の個人情報及び、電話会社が発番する折り返し専用の電話番号は、お問合せ先不動産会社が資料送付・電子メール送信・電話連絡などの目的で保管する可能性があります。お問合せ先不動産会社が保管する個人情報の取扱いについては、各不動産会社に直接お問合せください
- ※株式会社LIFULLでは本サービスを円滑に運用するために、お客様の発信者番号をサービスご利用の控えとして一定期間保管いたします
- ※上記および株式会社LIFULLの個人情報の取扱い方針に同意のうえ、お電話ください
【LIFULL HOME'S物件番号】0126938-0255396【自社管理番号】09030-801-23
オンライン対応
オンライン内見・オンライン相談・IT重説に対応している物件です

「オンライン内見」「オンライン相談」「IT重説」とは?
物件の内見や不動産会社スタッフとの相談、契約前の重要事項説明をオンライン(ビデオ通話)で行うことができるサービスです。
オンライン内見
ビデオ通話で現地(物件)にいる不動産会社スタッフと映像・音声を使ってリアルタイムで会話しながら内見ができます。
オンライン相談
「物件について聞きたいことがある」など不動産会社スタッフへの相談もビデオ通話で行うことができます。
IT重説
契約前の重要事項説明(重説)をビデオ通話で行うことができます。
利用時の注意事項
- ビデオ通話については各不動産会社指定のものとなります。
- ビデオ通話利用時には通信が発生します。従量課金制通信サービスや通信量に上限があるネット回線・プランを利用する場合は、通信量にご注意ください。
- 通信速度やアプリの設定によってはビデオ通話の画質が低下することがあります。安定した画質で利用するためにも、Wi-Fi環境下での利用を推奨します。
- ご利用のビデオ通話アプリによっては、対象のOSやブラウザに制限がある場合があります。詳しくはお問合せ先不動産会社にご確認ください。
初期費用・月額費用をあわせて確認!この物件に住んだときの費用めやす
めやすを見るこの物件に住んだときの費用めやす
- 初期費用
- 月額費用
- 追加費用※ご確認ください
追加で費用が
かかる場合があります
必ずご確認ください
初期費用めやす約0円
追加で費用がかかります(※)敷金
0
- 礼金
250,000
賃料+共益費・管理費の1ヶ月分として換算
賃料の1ヶ月分+税として換算。不動産会社によって金額が異なるため正確な金額は不動産会社にお問合せください
※追加費用もチェック!
これらの項目以外にも費用がかかる場合があります。正確な金額は不動産会社にお問合せください。
- 初期費用
- 鍵交換費:不動産会社に要確認
- 室内清掃費:不動産会社に要確認
- 火災保険費:不動産会社に要確認
- 月額費用
- 駐車場費:35,000円(税込)※契約任意
- 保証会社
- 不動産会社に要確認
不動産会社より
豪華な設備で優雅な暮らし 設備充実・場所も中心部でお考えの方・
阪急河原町駅まで徒歩4分の分譲賃貸マンションです。京阪、阪急、地下鉄のトリプルアクセス。嬉しい3点セパレートに浴室乾燥機、追い焚き機能付浴室、システムキッチン、温水洗浄便座など充実の設備。オートロック、TVホンでセキュリティも安心です。コンビニ、スーパーなど近くにあって便利ですよ。光ファイバー対応しています。 物件情報はもちろん京都のエリア情報まで幅広く対応させていただきます!
- 保存する
- 共有する
- ※各種情報と現状に差異がある場合は、現状優先となります
- ※不動産会社が入力した情報を基に物件の位置を表示しています。詳しくは不動産会社までお問合せください
- ※不動産会社の方からの上記電話番号によるお問合せはお断りしております。こちら不動産会社詳細からお問合せください
- ※LIFULL HOME'Sは物件鮮度No.1を目指していきます。閲覧中の物件が「成約済である」「実際の物件情報と異なる点がある」などの場合、「掲載110番」からお問合せください
- ※QRコードは株式会社デンソーウェーブの登録商標です
この物件を取扱う他の会社
LIFULL HOME'Sでは、主要項目が同一の物件をまとめて表示しています。所在地や営業時間、掲載画像等から不動産会社を選んでお問合せください。
株式会社京都ライフ 河原町四条店
京都府京都市中京区奈良屋町291-2 wise core BLD.1階
阪急京都本線 京都河原町駅 徒歩4分
- 営業時間
- 09:30~19:00
- 定休日
- 年中無休(盆正月を除く)
最近見た賃貸物件
LIFULL HOME'S 地図・周辺情報
買い物
- セブンイレブン 京都河原町高辻店
- ワッツ四条寺町店
- オーエスドラッグ四条河原町店
- ファミリーマート 河原町仏光寺店
- フレスコ 寺町店
グルメ
- サイゼリヤ 四条河原町駅前店
- あぶりや 四条河原町駅前店
- ロイヤル キッチン高島屋京都店
- モスバーガー 四条河原町店
- マクドナルド 四条河原町店
育児・教育
- 永興開智こども園
- 京都市立洛央小学校
- 京都市立開睛小中学校
- 光保育園
- 京都市立高倉小学校
医療
- 原田病院
- 医療法人知音会京都新町病院
- 医療法人財団足立病院
- 山元病院
- 木津屋橋武田病院
公共施設・郵便局
- 京都寺町松原郵便局
- 京都市東山図書館
- 京都市東山区役所
- 京都高島屋内郵便局
- 京都市下京図書館
公園
- 円山公園
- 円山公園
- 東山山頂公園
- 岡崎公園
- 梅屋広場公園
利用可能な駅
- 徒歩10分以内
阪急京都本線
- 京都河原町駅徒歩4分
京阪本線
- 祇園四条駅徒歩6分
- 周辺情報は2023年07月21日時点のものになります。
- 周辺情報は、参考情報としてのみご利用ください(周辺情報は、株式会社LIFULLが地図情報の提供事業者から提供を受けた情報とLIFULL HOME'Sの物件情報に基づき、独自の方法で抽出し提供しているものです。周辺情報は、移転や閉鎖等により情報が最新ではない、または正しくない場合がありますが、地図情報の提供事業者から提供された情報をそのまま周辺情報として表示しているため、正確かつ最新の情報へ修正することができないことがあります。)
- 周辺情報は、株式会社LIFULLが掲載するものであり、不動産物件情報を掲載している不動産会社が掲載するものではありません
- 交通情報の一部については、株式会社LIFULLが掲載するものであり、不動産物件情報を掲載している不動産会社が掲載するものではない場合があります。交通情報に関する質問などは株式会社LIFULLにお問合せください


































