LIFULL HOME'Sは物件鮮度No.1!※評価について
物件概要
- お問合せ状況
- 現在この物件はお問合せできません
- 交通
- 所在地
埼玉県さいたま市大宮区吉敷町1丁目54-3
地図を見る- 築年月
- 2002年3月(築24年)
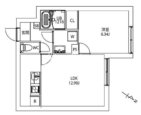
- 間取り
- 2LDK
- 主要採光面
- 東
- 専有面積
- 55.02㎡
- 所在階/階数
- 7階/9階建(地下1階)
- 建物構造
- SRC(鉄骨鉄筋コンクリート)
物件のこだわり/設備・条件
新築(非該当)
2階以上の物件(該当)
南向き(非該当)
駐車場(非該当)
オートロック(該当)
エアコン(該当)
バス・トイレ別(該当)
追焚機能(該当)
フローリング(該当)
ペット相談(非該当)
位置
角部屋、眺望が良い入居条件
事務所不可、二人入居可キッチン/バス・トイレ
コンロ二口、カウンターキッチン、給湯、専用バス、専用トイレ、バス・トイレ別、追焚機能、シャワー、シャワー付洗面化粧台、洗面所独立、オートバス設備・サービス
オートロック、防犯カメラ、24時間有人管理、エアコン、全居室収納、クローゼット、シューズボックス、CATV、BS対応、光ファイバー、公営水道、都市ガス、フローリング、出窓、バルコニー、室内洗濯機置場、24時間換気システム、エレベーター、宅配ボックス、駐輪場ありその他
最寄り駅が始発駅
物件周辺の生活情報
買い物
- コンビニ(298m)
- スーパー(1,012m)
その他施設
- 大宮ラクーン(887m)
交通
- 湘南新宿ライン高海 大宮駅 徒歩9分
- 普通(停車)
- 快速(停車)
- 特別快速(停車)
- JR京浜東北・根岸線 さいたま新都心駅 徒歩13分
- 普通(停車)
- 快速(停車)
※急行等の停車駅情報について
急行等の停車駅に関するデータは、随時更新をしておりますが、最新の内容であることを保証するものではありません。
最新かつ正確な情報につきましては、各鉄道会社のウェブサイトにてご確認ください
LIFULL HOME'S 地図・周辺情報
買い物
- セブンイレブン さいたま吉敷町店
- 島忠ホームズ さいたま中央店
- AP by AMERICAN PHARMACY大宮店
- セブンイレブン さいたま上落合9丁目店
- 角上魚類ホームズさいたま中央店
グルメ
- エ・プロント大宮区役所店
- 吉野家 大宮店
- CoCo壱番屋 大宮南銀座通り店
- スターバックスコーヒーエキュート大宮ノース店
- 銀だこ ルミネ大宮店
育児・教育
- 保育園ハニーガーデンさいたま新都心
- さいたま市立大宮南小学校
- 私立淑徳与野中学校
- さいたま市立大宮保育園
- さいたま市立大宮小学校
医療
- 医療法人社団宇治病院
- さいたま赤十字病院
- 埼玉県立小児医療センター
- 社会福祉法人シナプス埼玉精神神経センター
- 医療法人社団双愛会大宮双愛病院
公共施設・郵便局
- 与野上落合郵便局
- さいたま市立大宮図書館
- さいたま市大宮区役所
- 大宮浅間郵便局
- さいたま市立桜木図書館
公園
- 鐘塚公園
- さいたま新都心公園
- 大成2丁目南公園
- 合併記念見沼公園
- 大宮公園
利用可能な駅
- 徒歩10分以内
湘南新宿ライン高海
- 大宮駅徒歩9分
- すべての駅
JR京浜東北・根岸線
- さいたま新都心駅徒歩13分
- 与野駅徒歩29分
JR埼京線
- 北与野駅徒歩18分
- 与野本町駅徒歩36分
東武野田線
- 北大宮駅徒歩25分
- 大宮公園駅3.2km
埼玉新都市交通
- 鉄道博物館(大成)駅徒歩35分
- 周辺情報は2023年07月21日時点のものになります。
- 周辺情報は、参考情報としてのみご利用ください(周辺情報は、株式会社LIFULLが地図情報の提供事業者から提供を受けた情報とLIFULL HOME'Sの物件情報に基づき、独自の方法で抽出し提供しているものです。周辺情報は、移転や閉鎖等により情報が最新ではない、または正しくない場合がありますが、地図情報の提供事業者から提供された情報をそのまま周辺情報として表示しているため、正確かつ最新の情報へ修正することができないことがあります。)
- 周辺情報は、株式会社LIFULLが掲載するものであり、不動産物件情報を掲載している不動産会社が掲載するものではありません
- 交通情報の一部については、株式会社LIFULLが掲載するものであり、不動産物件情報を掲載している不動産会社が掲載するものではない場合があります。交通情報に関する質問などは株式会社LIFULLにお問合せください








































