LIFULL HOME'Sは物件鮮度No.1!※評価について
メゾンド本町 1階/103
7.9万円/管理費等6,500円
21時間前 更新
画像一覧
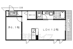
1/30間取り
間取
2/30外観
3/30外観
4/30リビング/ダイニング
西と南の2面窓のLDKです。
5/30リビング/ダイニング
西と北の2面窓の洋室です。
6/30リビング/ダイニング
南と西の2面窓で明るいLDKです。
7/30リビング/ダイニング
南と西の2面窓で明るいLDKです。
8/30リビング/ダイニング
南と西の2面窓で明るいLDKです。
9/30リビング/ダイニング
南と西の2面窓で明るいLDKです。
10/30リビング/ダイニング
カウンター下にある棚です。
11/30リビング/ダイニング
西と北の2面窓で明るい洋室です。
12/30リビング/ダイニング
西と北の2面窓で明るい洋室です。
13/30リビング/ダイニング
西と北の2面窓で明るい洋室です。
14/30キッチン
お料理もしやすいシステムキッチンです。
15/30キッチン
広いキッチンスペースです。
16/30キッチン
キッチンの収納もたっぷりです。
17/30浴室
ゆったり浸かれるお風呂です。
18/30トイレ
ウォシュレットトイレです。
19/30トイレ
小物置きです。
20/30洗面
オシャレで大きい洗面台です。
21/30洗面
洗濯パンです。
22/30洗面
広い脱衣所です。
23/30洗面
洗濯機上にある棚です。
24/30洗面
洗面台下の収納です。
25/30収納
ウォークインクローゼットです。
26/30設備
ALSOKセキュリティー付きです。
27/30玄関
段差の少ない玄関です。
28/30玄関
靴の収納バッチリです。
29/30バルコニー
南ベランダで日当たり良好です。
30/30周辺
宇治壱番郵便局まで157m
間取り
外観
外観
リビング/ダイニング
リビング/ダイニング
リビング/ダイニング
リビング/ダイニング
リビング/ダイニング
リビング/ダイニング
リビング/ダイニング
リビング/ダイニング
リビング/ダイニング
リビング/ダイニング
キッチン
キッチン
キッチン
浴室
トイレ
トイレ
洗面
洗面
洗面
洗面
洗面
収納
設備
玄関
玄関
バルコニー
周辺
お問合せ先 :(株)京都ライフ 小倉店
仲介手数料割引
成約時の仲介手数料半月分の税別でご紹介可能です。
- 利用条件
- (株)京都ライフ 小倉店で利用可
- 他特典との併用可
- 個人契約、居住用物件に限ります。 大東建託、積水ハウス物件は除く。
利用方法
来店時に本特典の画面をスマートフォンやタブレットでスタッフに提示、または画面印刷した用紙を提示ください。
有効期限 なし
宇治駅物件です JR宇治駅すぐの好立地、2013年築の賃貸物件登場です。
物件のこだわり/設備・条件
新築(非該当)
2階以上の物件(非該当)
南向き(該当)
駐車場(非該当)
オートロック(該当)
エアコン(該当)
バス・トイレ別(該当)
追焚機能(該当)
フローリング(該当)
ペット相談(非該当)
位置
角部屋入居条件
二人入居可キッチン/バス・トイレ
設備・サービス
オートロック、TVモニタ付インターホン、エアコン、ウォークインクローゼット、BS対応、光ファイバー、公営水道、都市ガス、下水、フローリング、バルコニー、室内洗濯機置場、南面バルコニー、宅配ボックス、駐輪場ありその他
住まい探し特典あり備考
2013年9月完成の築浅1LDKです。JR宇治駅まで徒歩5分。JR、京阪のダブルアクセス。嬉しい3点セパレートにウォークインクローゼット、浴室乾燥機、追い焚き機能付浴室、システムキッチン、温水洗浄便座など充実の設備。オートロック、TVホンでセキュリティも安心です。コンビニ、スーパー、ドラッグストア、ホームセンターなど近くに... 物件情報はもちろん京都のエリア情報まで幅広く対応させていただきます!
物件周辺の生活情報
学校
- 宇治中学校(514m)
買い物
- コンビニ(244m)
- スーパー(369m)
- ドラッグストア(528m)
その他施設
- 総合病院(493m)
- 銀行(197m)
- ホームセンターコーナンJR宇治駅北店(709m)
交通
- JR奈良線 宇治駅 徒歩5分
- 普通(停車)
- 区間快速(停車)
- 快速(停車)
- みやこ路快速(停車)
- 近鉄京都線 小倉駅 徒歩24分
- 普通(停車)
- 準急(停車)
- 急行(通過)
※急行等の停車駅情報について
急行等の停車駅に関するデータは、随時更新をしておりますが、最新の内容であることを保証するものではありません。
最新かつ正確な情報につきましては、各鉄道会社のウェブサイトにてご確認ください
物件周辺の口コミ
- 京都府宇治市宇治に住む人の口コミ50代女性
学校も近くにあり、買い物にも困らず、働きやすいと思っています。
口コミを見る
この物件周辺に住む人の口コミ
口コミは、LIFULL HOME'Sが実際にこの物件の周辺に住む18歳~69歳の男女を対象に、WEBアンケート調査を実施しています。内容には回答者の主観的な表現が含まれる場合があるほか、事実と異なる場合もございます。ご了承ください。
- 京都府宇治市宇治に住む人の口コミ50代女性
- 学校も近くにあり、買い物にも困らず、働きやすいと思っています。
- 京都府宇治市宇治に住む人の口コミ40代女性
- ・スーパー、コンビニ、ドラッグストア等生活に必要な店が近距離にそろっている。近隣トラブル等なく、隣や向かいは同世代の子供たちがたくさんいて、子供同士で毎日放課後遊んでいる。
- 京都府宇治市宇治に住む人の口コミ50代男性
- 交通の便が良い、徒歩10分圏内に生活に必要な施設があるから。
- 京都府宇治市宇治に住む人の口コミ60代女性
- 程よい自然、買い物便利、歴史ある観光地、グルメスポットは充実していない。
- 京都府宇治市宇治に住む人の口コミ50代男性
- 小学校、中学校が子供達にいい影響を与えてくれたことには、本当に感謝しており、満足している。
- 京都府宇治市宇治に住む人の口コミ50代男性
- 歴史的な街であり、スーパーなどの店もあり交通機関がしっかりしているため
- 京都府宇治市宇治に住む人の口コミ20代女性
- 田舎すぎず都会すぎず、徒歩圏内に生活に必要な施設が揃っているから。
- 京都府宇治市宇治に住む人の口コミ30代女性
- 交通の便がよく、それなりに活気があって暮らしやすいが、観光客が多い時期はうんざりする。
- 京都府宇治市宇治に住む人の口コミ60代女性
- 世界遺産があり、散策路があり日常の買い物が出来るスーパーも多い。
- 京都府宇治市宇治に住む人の口コミ40代女性
- 急に道幅が狭くなる所があり、自転車や徒歩・ベビーカーで歩くと不便な箇所が多々あるのが不満。奈良線が単線でしょっちゅう止まったり、遅延したりするのが不満であるので、この結果にしました。
物件概要
- 建物構造
- 軽量鉄骨造
- 駐車場
- 空無
- 総戸数
- 6戸
- 契約形態
- -
- 契約期間
- 1年間
- 更新料
- 30,000円
- その他費用
- 鍵交換費用:27,500円、室内清掃費用:44,000円、害虫駆除費:22,000円、リブネス安心サポート:880円
- 保証会社
加入要
保証会社:ROOM iD
保証会社利用料:初回:月額賃料等の50%、月額:保証料として月額賃料等の1.3%(初回保証料は最低保証料15000円、月額保証料は最低保証料300円)
- 住宅保険
- 要
- 管理
- 管理員:巡回
- LIFULL HOME'S
物件番号 - 0100017-0221004
- 自社管理番号
- 51706-103
- 取引態様
- 仲介
- 会社名
- (株)京都ライフ 小倉店
営業スタッフコメント

(株)京都ライフ 小倉店
中江
営業の立場ではなくお客様の立場でご紹介。
業界経験3年
資格少額短期保険募集人
- 会社実績や特徴・サービス情報
- 宇治市、城陽市、京田辺市、京都南エリアのお部屋探しは「京都ライフ」へお任せ下さい。仲介手数料は一律、家賃の50%(税別)。来客用ガレージも完備。学生様の新生活も全力でサポートいたします。
宇治市、城陽市、京田辺市、京都南エリアのお部屋探しは「京都ライフ」へお任せ下さい。仲介手数料は一律、家賃の50%(税別)。来客用ガレージも完備。学生様の新生活も全力でサポートいたします。
- 電話でお問合せ(通話無料)
お問合せ先 :(株)京都ライフ 小倉店
不動産会社情報
(株)京都ライフ 小倉店京都ライフ小倉店
京都府宇治市小倉町神楽田21-5 ア‐バネックス小倉ビル1F
近鉄京都線 小倉駅 徒歩2分
- 営業時間
- 09:30~19:00
- 定休日
- 年中無休(盆正月を除く)
京都全域くまなくネット!京都でのお部屋探しは創業40年の「かんたんお部屋探しは・・・京都ライフへ!!
- 店舗の特徴
- 賃貸管理業務
- 24時間管理物件取扱い
- リフォーム対応
- 引越し業者紹介可
- 年中無休
- 保証人不要な物件あり
- 法人契約取扱い
- 駅から歩いて3分以内
電話でお問合せお客様の電話番号は不動産会社には通知されません
- 不動産会社に
つながります
お客様の電話番号は不動産会社に通知されません
- ※光IP電話、及びIP電話からはご利用になれません
- ※お電話によるお問合せは、店舗営業時間内にお願いします。つながらない場合は、お問合せフォームよりお問合せください
- ※不動産会社がお電話に出られなかった場合、お問合せいただいた後に不動産会社より折り返しのお電話がある場合がございます(お客様が非通知設定した場合は対象外です)
- ※株式会社LIFULLは電話会社が提供するサービスを介してお客様の発信者番号を受領後、折り返し専用の電話番号を発番してお問合せの不動産会社に通知します(お客様の発信者番号がお問合せの不動産会社に通知されることはございません)
- ※携帯電話からお問合せいただいた方に対し、株式会社LIFULLは電話会社が提供するメッセ―ジサービスを介してお客様の発信者番号を受領後、ショートメッセージ(SMS)またはLINE通知メッセージによるお問合せ内容に関する通知をお届けする場合があります
- ※お客様が通話中に不動産会社にお伝えになったお客様の個人情報及び、電話会社が発番する折り返し専用の電話番号は、お問合せ先不動産会社が資料送付・電子メール送信・電話連絡などの目的で保管する可能性があります。お問合せ先不動産会社が保管する個人情報の取扱いについては、各不動産会社に直接お問合せください
- ※株式会社LIFULLでは本サービスを円滑に運用するために、お客様の発信者番号をサービスご利用の控えとして一定期間保管いたします
- ※上記および株式会社LIFULLの個人情報の取扱い方針に同意のうえ、お電話ください
【LIFULL HOME'S物件番号】0100017-0221004【自社管理番号】51706-103
オンライン対応
オンライン相談に対応している物件です

「オンライン内見」「オンライン相談」「IT重説」とは?
物件の内見や不動産会社スタッフとの相談、契約前の重要事項説明をオンライン(ビデオ通話)で行うことができるサービスです。
オンライン内見
ビデオ通話で現地(物件)にいる不動産会社スタッフと映像・音声を使ってリアルタイムで会話しながら内見ができます。
オンライン相談
「物件について聞きたいことがある」など不動産会社スタッフへの相談もビデオ通話で行うことができます。
IT重説
契約前の重要事項説明(重説)をビデオ通話で行うことができます。
利用時の注意事項
- ビデオ通話については各不動産会社指定のものとなります。
- ビデオ通話利用時には通信が発生します。従量課金制通信サービスや通信量に上限があるネット回線・プランを利用する場合は、通信量にご注意ください。
- 通信速度やアプリの設定によってはビデオ通話の画質が低下することがあります。安定した画質で利用するためにも、Wi-Fi環境下での利用を推奨します。
- ご利用のビデオ通話アプリによっては、対象のOSやブラウザに制限がある場合があります。詳しくはお問合せ先不動産会社にご確認ください。
初期費用・月額費用をあわせて確認!この物件に住んだときの費用めやす
めやすを見るこの物件に住んだときの費用めやす
- 初期費用
- 月額費用
- 追加費用※ご確認ください
追加で費用が
かかる場合があります
必ずご確認ください
初期費用めやす約0円
追加で費用がかかります(※)敷金
0
- 礼金
150,000
賃料+共益費・管理費の1ヶ月分として換算
賃料の1ヶ月分+税として換算。不動産会社によって金額が異なるため正確な金額は不動産会社にお問合せください
※追加費用もチェック!
これらの項目以外にも費用がかかる場合があります。正確な金額は不動産会社にお問合せください。
- 初期費用
- 鍵交換費:27,500円
- 室内清掃費:44,000円
- 火災保険費:不動産会社に要確認
- その他
- 害虫駆除費:22000円
- リブネス安心サポート:880円
- 保証会社
- 初回:月額賃料等の50%、月額:保証料として月額賃料等の1.3%(初回保証料は最低保証料15000円、月額保証料は最低保証料300円)
不動産会社より
宇治駅物件です JR宇治駅すぐの好立地、2013年築の賃貸物件登場です。
2013年9月完成の築浅1LDKです。JR宇治駅まで徒歩5分。JR、京阪のダブルアクセス。嬉しい3点セパレートにウォークインクローゼット、浴室乾燥機、追い焚き機能付浴室、システムキッチン、温水洗浄便座など充実の設備。オートロック、TVホンでセキュリティも安心です。コンビニ、スーパー、ドラッグストア、ホームセンターなど近くに... 物件情報はもちろん京都のエリア情報まで幅広く対応させていただきます!
- 保存する
- 共有する
- ※各種情報と現状に差異がある場合は、現状優先となります
- ※不動産会社が入力した情報を基に物件の位置を表示しています。詳しくは不動産会社までお問合せください
- ※不動産会社の方からの上記電話番号によるお問合せはお断りしております。こちら不動産会社詳細からお問合せください
- ※LIFULL HOME'Sは物件鮮度No.1を目指していきます。閲覧中の物件が「成約済である」「実際の物件情報と異なる点がある」などの場合、「掲載110番」からお問合せください
- ※QRコードは株式会社デンソーウェーブの登録商標です
この物件を取扱う他の会社
LIFULL HOME'Sでは、主要項目が同一の物件をまとめて表示しています。所在地や営業時間、掲載画像等から不動産会社を選んでお問合せください。
株式会社エリッツ 伏見桃山店
優良店認定
京都府京都市伏見区観音寺町212-1 伏見ビル1階
近鉄京都線 桃山御陵前駅 徒歩1分
- 営業時間
- 10:00~19:00
- 定休日
- 年中無休(年末年始を除く)
同じ建物の他の部屋
LIFULL HOME'S 地図・周辺情報
買い物
- セブンイレブン JR宇治駅前店
- ダイソー宇治橋通り店
- スギ薬局宇治店
- ファミリーマート JR宇治駅南口店
- ハッピーテラダ宇治店
グルメ
- ステーキのどん 宇治店
- スターバックスコーヒー京都宇治平等院表参道店
- サイゼリヤ 宇治里尻店
- すし処函館市場京阪宇治店
- ガスト 宇治東店(から好し取扱店)
育児・教育
- みんなのきHana保育園
- 宇治市立菟道小学校
- 宇治市立宇治中学校
- 宇治市立善法保育所
- 宇治市立菟道第二小学校
医療
- 宇治武田病院
- 医療法人社団一心会都倉病院
- 医療法人仁心会宇治川病院
- 医療法人徳洲会宇治徳洲会病院
- 医療法人栄仁会宇治おうばく病院介護医療院むつみ
公共施設・郵便局
- 宇治壱番郵便局
- 宇治市中央図書館
- 宇治警察署
- 宇治橋郵便局
- 宇治市西宇治図書館
公園
- 府立宇治公園
- お茶と宇治のまち歴史公園
- 大吉山風致公園
- 東山緑地
- 城南荘児童公園
利用可能な駅
- 徒歩10分以内
JR奈良線
- 宇治駅徒歩5分
- すべての駅
京阪宇治線
- 宇治駅徒歩14分
- 三室戸駅徒歩20分
- 黄檗駅3.4km
JR奈良線
- JR小倉駅徒歩23分
- 新田駅徒歩34分
- 黄檗駅3.3km
近鉄京都線
- 小倉駅徒歩24分
- 伊勢田駅徒歩32分
- 大久保駅3.1km
- 周辺情報は2023年07月21日時点のものになります。
- 周辺情報は、参考情報としてのみご利用ください(周辺情報は、株式会社LIFULLが地図情報の提供事業者から提供を受けた情報とLIFULL HOME'Sの物件情報に基づき、独自の方法で抽出し提供しているものです。周辺情報は、移転や閉鎖等により情報が最新ではない、または正しくない場合がありますが、地図情報の提供事業者から提供された情報をそのまま周辺情報として表示しているため、正確かつ最新の情報へ修正することができないことがあります。)
- 周辺情報は、株式会社LIFULLが掲載するものであり、不動産物件情報を掲載している不動産会社が掲載するものではありません
- 交通情報の一部については、株式会社LIFULLが掲載するものであり、不動産物件情報を掲載している不動産会社が掲載するものではない場合があります。交通情報に関する質問などは株式会社LIFULLにお問合せください







