LIFULL HOME'Sは物件鮮度No.1!※評価について
京都市営烏丸線 今出川駅 徒歩25分(4階/2DK/54.55m²)
京都市営烏丸線 今出川駅 徒歩25分(4階/2DK/54.55m²)
6.9万円/管理費等5,000円
4時間前 更新
画像一覧
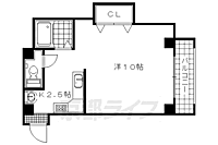
1/30間取り
2/30外観
3/30リビング/ダイニング
居室
4/30リビング/ダイニング
居室
5/30リビング/ダイニング
居室
6/30室内
(東)
7/30寝室
(西)
8/30寝室
(西)
9/30寝室
(西)
10/30子供部屋
(西)
11/30キッチン
キッチン
12/30キッチン
キッチン
13/30キッチン
キッチン
14/30浴室
風呂
15/30浴室
風呂
16/30浴室
風呂
17/30トイレ
トイレ
18/30洗面
洗面所
19/30洗面
洗面所
20/30収納
(洋室西)
21/30収納
(洋室西)
22/30設備
洗濯機置場
23/30玄関
玄関
24/30エントランス
エントランス
25/30その他
眺望
26/30その他
エアコン
27/30その他
眺望
28/30周辺
ライフ 西陣店まで350メートル
29/30周辺
ファミリーマート 下長者町店まで150メートル
30/30周辺
ダックス 智恵光院店まで400メートル
間取り
外観
リビング/ダイニング
リビング/ダイニング
リビング/ダイニング
室内
寝室
寝室
寝室
子供部屋
キッチン
キッチン
キッチン
浴室
浴室
浴室
トイレ
洗面
洗面
収納
収納
設備
玄関
エントランス
その他
その他
その他
周辺
周辺
周辺
お問合せ先 :株式会社エリッツ 出町柳店
住まい探し特典内容
電気・ガス・インターネットの手続き代行のご案内します。
- 利用条件
- 株式会社エリッツ 出町柳店で利用可
- 他特典との併用可
利用方法
来店時に本特典の画面をスマートフォンやタブレットでスタッフに提示、または画面印刷した用紙を提示ください。
有効期限 なし
定期借家
この物件の契約期間は、2年間です
※定期借家物件は、賃貸借契約期間満了後、原則として契約の更新ができない物件です。貸主との合意があれば再契約が可能な場合があります
2DKの間取りに募集がかかりました。--パノラマ掲載--
基本情報
不動産用語- 賃料
- 6.9万円
- 管理費等
- 5,000円
初期費用などお気軽にお問合せください
- 敷金/礼金
- 1ヶ月/1ヶ月
- 保証金/敷引・償却金
- -/-
- 交通
京都地下鉄東西線 二条城前駅 徒歩22分
京都市営烏丸線 今出川駅 徒歩25分
JR嵯峨野線 二条駅 徒歩22分
- 所在地
京都府京都市上京区日暮通下長者町下る秤口町
地図を見る- 築年月
- 1975年1月(築52年)
- 主要採光面
- 北
- 専有面積
- 54.55㎡
- バルコニー面積
- -
- 所在階/階数
- 4階/4階建
- 現況
- 空家
- 入居可能時期
- 即時

人気物件はすぐに埋まってしまいます。
気になったらお早めにお問合せください。
- 情報公開日
2022/01/20
1581日前 公開
- 情報更新日
2026/05/20
4時間前 更新
- 次回更新
予定日 - 2026/05/27
物件のこだわり/設備・条件
新築(非該当)
2階以上の物件(該当)
南向き(非該当)
駐車場(非該当)
オートロック(該当)
エアコン(該当)
バス・トイレ別(該当)
追焚機能(非該当)
フローリング(該当)
ペット相談(非該当)
位置
角部屋入居条件
二人入居可、即入居可- 上記以外や相談可の
詳細はお問合せください - 上記以外や相談可の詳細は
お電話ください(通話無料)電話でお問合せ キッチン/バス・トイレ
設備・サービス
オートロック、TVモニタ付インターホン、エアコン、クローゼット、CATV、光ファイバー、公営水道、都市ガス、下水、フローリング、洗濯機置場あり、駐輪場ありその他
初期費用カード決済可、住まい探し特典あり備考
上京区の閑静な住宅エリアに佇むファミリーマンション。新婚さんからご要望が多い全室洋室ですので、家具のレイアウトもしやすく、寝室には解放感ある窓付き。ベランダはありませんが、サンルームで衣類乾燥可能。・光ファイバーインターネット接続可
物件周辺の生活情報
学校
- 二条城北小学校(570m)
- 二条中学校(1,000m)
買い物
- コンビニ(150m)
- スーパー(350m)
- ドラッグストア(400m)
その他施設
- 総合病院(1,140m)
交通
- 京都市営烏丸線 今出川駅 徒歩25分
- 普通(停車)
- 急行(停車)
- 京都地下鉄東西線 二条城前駅 徒歩22分
- 普通(停車)
※急行等の停車駅情報について
急行等の停車駅に関するデータは、随時更新をしておりますが、最新の内容であることを保証するものではありません。
最新かつ正確な情報につきましては、各鉄道会社のウェブサイトにてご確認ください
物件概要
- 建物構造
- RC(鉄筋コンクリート)
- 駐車場
- 近隣 17,600円(税込) 物件からの距離329m
- 総戸数
- 40戸
- 契約形態
定期借家
- 契約期間
- 2年間
- 更新料
- -
- その他費用
- -
- 保証会社
- -
- 住宅保険
- 要
- 管理
- -
- LIFULL HOME'S
物件番号 - 0110596-0226815
- 自社管理番号
- 12021-0403
- 取引態様
- 一般媒介
- 会社名
- 株式会社エリッツ 出町柳店
営業スタッフコメント

株式会社エリッツ 出町柳店
井上
京都のお部屋探しならお任せください。
業界経験9年
- 会社実績や特徴・サービス情報
- 賃貸のエリッツ出町柳店は、京阪出町柳駅近くに店舗を構え、京都大学(京大)を始めとする学生専用の賃貸マンションから社会人の為の単身賃貸マンション、新婚様やご家族の為のファミリー賃貸物件や友人同士のルームシェア対応賃貸、ペット可能賃貸、テナント賃貸物件など、数多くのニーズに応じた賃貸物件を提供致します。
賃貸のエリッツ出町柳店は、京阪出町柳駅近くに店舗を構え、京都大学(京大)を始めとする学生専用の賃貸マンションから社会人の為の単身賃貸マンション、新婚様やご家族の為のファミリー賃貸物件や友人同士のルームシェア対応賃貸、ペット可能賃貸、テナント賃貸物件など、数多くのニーズに応じた賃貸物件を提供致します。
- 電話でお問合せ(通話無料)
お問合せ先 :株式会社エリッツ 出町柳店
不動産会社情報
株式会社エリッツ 出町柳店賃貸のエリッツ出町柳店

京都府京都市左京区田中関田町16−1 グランコスモ出町柳II 1F
京阪本線 出町柳駅 徒歩4分
- 営業時間
- 10:00~19:00
- 定休日
- 年中無休(年末年始を除く)
優良店認定
京都市左京区のお部屋探しは「エリッツ出町柳店」にお任せ下さい。京都市内一の店舗数による豊富な情報でご満足頂けるお部屋をお探し致します。京都大学・京都芸術大学の関係者様、是非お越しください。
- 店舗の特徴
- 引越し業者紹介可
- 年中無休
- オンライン相談可
- 保証人不要な物件あり
- 法人契約取扱い
- 女性スタッフ対応可
- 駅から歩いて3分以内
電話でお問合せお客様の電話番号は不動産会社には通知されません
- 不動産会社に
つながります
お客様の電話番号は不動産会社に通知されません
- ※光IP電話、及びIP電話からはご利用になれません
- ※お電話によるお問合せは、店舗営業時間内にお願いします。つながらない場合は、お問合せフォームよりお問合せください
- ※不動産会社がお電話に出られなかった場合、お問合せいただいた後に不動産会社より折り返しのお電話がある場合がございます(お客様が非通知設定した場合は対象外です)
- ※株式会社LIFULLは電話会社が提供するサービスを介してお客様の発信者番号を受領後、折り返し専用の電話番号を発番してお問合せの不動産会社に通知します(お客様の発信者番号がお問合せの不動産会社に通知されることはございません)
- ※携帯電話からお問合せいただいた方に対し、株式会社LIFULLは電話会社が提供するメッセ―ジサービスを介してお客様の発信者番号を受領後、ショートメッセージ(SMS)またはLINE通知メッセージによるお問合せ内容に関する通知をお届けする場合があります
- ※お客様が通話中に不動産会社にお伝えになったお客様の個人情報及び、電話会社が発番する折り返し専用の電話番号は、お問合せ先不動産会社が資料送付・電子メール送信・電話連絡などの目的で保管する可能性があります。お問合せ先不動産会社が保管する個人情報の取扱いについては、各不動産会社に直接お問合せください
- ※株式会社LIFULLでは本サービスを円滑に運用するために、お客様の発信者番号をサービスご利用の控えとして一定期間保管いたします
- ※上記および株式会社LIFULLの個人情報の取扱い方針に同意のうえ、お電話ください
【LIFULL HOME'S物件番号】0110596-0226815【自社管理番号】12021-0403
オンライン対応
オンライン内見・オンライン相談・IT重説に対応している物件です

「オンライン内見」「オンライン相談」「IT重説」とは?
物件の内見や不動産会社スタッフとの相談、契約前の重要事項説明をオンライン(ビデオ通話)で行うことができるサービスです。
オンライン内見
ビデオ通話で現地(物件)にいる不動産会社スタッフと映像・音声を使ってリアルタイムで会話しながら内見ができます。
オンライン相談
「物件について聞きたいことがある」など不動産会社スタッフへの相談もビデオ通話で行うことができます。
IT重説
契約前の重要事項説明(重説)をビデオ通話で行うことができます。
利用時の注意事項
- ビデオ通話については各不動産会社指定のものとなります。
- ビデオ通話利用時には通信が発生します。従量課金制通信サービスや通信量に上限があるネット回線・プランを利用する場合は、通信量にご注意ください。
- 通信速度やアプリの設定によってはビデオ通話の画質が低下することがあります。安定した画質で利用するためにも、Wi-Fi環境下での利用を推奨します。
- ご利用のビデオ通話アプリによっては、対象のOSやブラウザに制限がある場合があります。詳しくはお問合せ先不動産会社にご確認ください。
初期費用・月額費用をあわせて確認!この物件に住んだときの費用めやす
めやすを見るこの物件に住んだときの費用めやす
- 初期費用
- 月額費用
- 追加費用※ご確認ください
追加で費用が
かかる場合があります
必ずご確認ください
初期費用めやす約0円
追加で費用がかかります(※)敷金
69,000
- 礼金
69,000
賃料+共益費・管理費の1ヶ月分として換算
賃料の1ヶ月分+税として換算。不動産会社によって金額が異なるため正確な金額は不動産会社にお問合せください
※追加費用もチェック!
これらの項目以外にも費用がかかる場合があります。正確な金額は不動産会社にお問合せください。
- 初期費用
- 鍵交換費:不動産会社に要確認
- 室内清掃費:不動産会社に要確認
- 火災保険費:不動産会社に要確認
- 月額費用
- 駐車場費:17,600円(税込)※近隣
- 保証会社
- 不動産会社に要確認
不動産会社より
2DKの間取りに募集がかかりました。--パノラマ掲載--
上京区の閑静な住宅エリアに佇むファミリーマンション。新婚さんからご要望が多い全室洋室ですので、家具のレイアウトもしやすく、寝室には解放感ある窓付き。ベランダはありませんが、サンルームで衣類乾燥可能。・光ファイバーインターネット接続可
- 保存する
- 共有する
- ※各種情報と現状に差異がある場合は、現状優先となります
- ※不動産会社が入力した情報を基に物件の位置を表示しています。詳しくは不動産会社までお問合せください
- ※不動産会社の方からの上記電話番号によるお問合せはお断りしております。こちら不動産会社詳細からお問合せください
- ※LIFULL HOME'Sは物件鮮度No.1を目指していきます。閲覧中の物件が「成約済である」「実際の物件情報と異なる点がある」などの場合、「掲載110番」からお問合せください
- ※QRコードは株式会社デンソーウェーブの登録商標です
したい暮らしのタグから探す
この物件を取扱う他の会社
LIFULL HOME'Sでは、主要項目が同一の物件をまとめて表示しています。所在地や営業時間、掲載画像等から不動産会社を選んでお問合せください。
株式会社エリッツ 西院店
優良店認定
京都府京都市右京区西院巽町37−1 TAKE7 1F
阪急京都本線 西院駅 徒歩2分
- 営業時間
- 10:00~19:00
- 定休日
- 年中無休(年末年始を除く)
株式会社エリッツ 立命館大学前店
優良店認定
京都府京都市北区小松原北町19−27 シャルム小松原1F
京福電気鉄道北野線 北野白梅町駅 徒歩12分
- 営業時間
- 10:00~19:00
- 定休日
- 火・水曜日 (祝日を除く)、 ※部屋探しのお問い合わせは無休
株式会社エリッツ 四条烏丸店
優良店認定
京都府京都市下京区四条通新町東入月鉾町59 エリッツ四条烏丸ビル1F
京都市営烏丸線 四条駅 徒歩2分
- 営業時間
- 10:00~19:00
- 定休日
- 年中無休(年末年始を除く)
株式会社エリッツ 四条河原町店
優良店認定
京都府京都市下京区河原町通四条下る2丁目稲荷町317−2 RISSI−DO 1F
阪急京都本線 京都河原町駅 徒歩2分
- 営業時間
- 10:00~19:00
- 定休日
- 火曜・水曜日 (祝日を除く)、年末年始 ※部屋探しのお問い合わせは無休
株式会社エリッツ 北山店
京都府京都市北区上賀茂岩ケ垣内町95 スギサキビル1階
京都市営烏丸線 北山駅 徒歩1分
- 営業時間
- 10:00~19:00
- 定休日
- 水曜日(祝日を除く)、年末年始 ※部屋探しのお問い合わせは無休
LIFULL HOME'S 地図・周辺情報
買い物
- セブンイレブン 智恵光院上長者町店
- ダイソー京都西陣店
- ウエルシア京都智恵光院店
- ファミリーマート 中立売智恵光院店
- ライフ 西陣店
グルメ
- 餃子の王将 中立売店
- マクドナルド 千本中立売店
- すき家 千本中立売店
- CoCo壱番屋 堀川丸太町店
- モスバーガー イズミヤ堀川丸太町店
育児・教育
- 第二せいしん幼児園
- 京都市立正親小学校
- 京都市立二条中学校
- 信愛保育園
- 京都市立二条城北小学校
医療
- 医療法人社団洛和会洛和会丸太町病院
- 京都第二赤十字病院
- 医療法人愛寿会同仁病院
- 社会医療法人西陣健康会堀川病院
- 医療法人相馬病院
公共施設・郵便局
- 京都堀川下長者町郵便局
- 京都市中央図書館
- 京都府警察本部
- 京都中立売千本郵便局
- 京都市こどもみらい館子育て図書館
公園
- 梅屋広場公園
- 京都御苑
- 船岡山公園
- 光徳公園
- 土堂公園
利用可能な駅
- すべての駅
京都地下鉄東西線
- 二条城前駅徒歩22分
京都市営烏丸線
- 今出川駅徒歩25分
- その他交通
- JR嵯峨野線 二条駅 徒歩22分
- 周辺情報は2023年07月21日時点のものになります。
- 周辺情報は、参考情報としてのみご利用ください(周辺情報は、株式会社LIFULLが地図情報の提供事業者から提供を受けた情報とLIFULL HOME'Sの物件情報に基づき、独自の方法で抽出し提供しているものです。周辺情報は、移転や閉鎖等により情報が最新ではない、または正しくない場合がありますが、地図情報の提供事業者から提供された情報をそのまま周辺情報として表示しているため、正確かつ最新の情報へ修正することができないことがあります。)
- 周辺情報は、株式会社LIFULLが掲載するものであり、不動産物件情報を掲載している不動産会社が掲載するものではありません
- 交通情報の一部については、株式会社LIFULLが掲載するものであり、不動産物件情報を掲載している不動産会社が掲載するものではない場合があります。交通情報に関する質問などは株式会社LIFULLにお問合せください




















