LIFULL HOME'Sは物件鮮度No.1!※評価について
セジュール堺東 3階
9.7万円/管理費等6,000円
2日前 更新
画像一覧
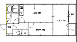
1/25間取り
間取図
2/25外観
外観・土地
3/25リビング/ダイニング
リビング
4/25室内
その他部屋・スペース
5/25寝室
寝室
6/25洋室
洋室
7/25キッチン
キッチン
8/25浴室
バス
9/25トイレ
トイレ
10/25洗面
洗面所
11/25収納
収納
12/25収納
収納
13/25収納
収納
14/25設備
セキュリティ
15/25設備
設備
16/25玄関
玄関
17/25バルコニー
バルコニー
18/25エントランス
エントランス
19/25エントランス
ロビー
20/25周辺
成城石井堺東店 826m
21/25周辺
ローソン堺南庄町店 381m
22/25周辺
ファミリーマート 773m
23/25周辺
セブンイレブン堺柳之町東1丁店 818m
24/25周辺
コクミン高島屋堺店 827m
25/25周辺
DCMダイキ堺東店 1109m
間取り
外観
リビング/ダイニング
室内
寝室
洋室
キッチン
浴室
トイレ
洗面
収納
収納
収納
設備
設備
玄関
バルコニー
エントランス
エントランス
周辺
周辺
周辺
周辺
周辺
周辺
LINEチャットでも 相談できます
お問合せ先 :株式会社ラインエステート ミニミニFCなかもず店
仲介手数料割引
仲介手数料10%割引実施中!
- 利用条件
- 株式会社ラインエステート ミニミニFCなかもず店で利用可
- 他特典との併用可
- お一人様一回までご利用いただけます。
利用方法
来店時に本特典の画面をスマートフォンやタブレットでスタッフに提示、または画面印刷した用紙を提示ください。
有効期限 2026年03月31日まで
新築完成前のお申し込み始まりました。
基本情報
不動産用語- 賃料
- 9.7万円
- 管理費等
- 6,000円
初期費用などお気軽にお問合せください
- 敷金/礼金
- 無/1ヶ月
- 保証金/敷引・償却金
- -/-
- 交通
阪堺電気軌道阪堺線 神明町駅 徒歩8分
阪堺電気軌道阪堺線 妙国寺前駅 徒歩9分
阪堺電気軌道阪堺線 花田口 徒歩13分
- 所在地
大阪府堺市堺区北向陽町1丁
地図を見る- 築年月
- 2025年12月(新築)
- 主要採光面
- -
- 専有面積
- 45.18㎡
- バルコニー面積
- -
- 所在階/階数
- 3階/3階建
入居可能日などお気軽にお問合せください
- 現況
- 空家
- 入居可能時期
- 2025年12月 上旬

人気物件はすぐに埋まってしまいます。
気になったらお早めにお問合せください。
- 情報公開日
2025/10/22
31日前 公開
- 情報更新日
2025/11/20
2日前 更新
- 次回更新
予定日 - 2025/11/27
物件のこだわり/設備・条件
新築(該当)
2階以上の物件(該当)
南向き(非該当)
駐車場(非該当)
オートロック(該当)
エアコン(該当)
バス・トイレ別(該当)
追焚機能(非該当)
フローリング(該当)
ペット相談(非該当)
位置
角部屋入居条件
二人入居可キッチン/バス・トイレ
設備・サービス
オートロック、エアコン、クローゼット、シューズボックス、CATV、インターネット使用料無料、公営水道、都市ガス、下水、フローリング、室内洗濯機置場、ゴミ出し24時間OK、宅配ボックス、バイク置き場あり、駐輪場ありその他
住まい探し特典あり備考
当店では新築物件、ペット可物件、戸建賃貸、分譲賃貸など、他多数の物件を取り扱っております。ネット掲載のお部屋は当社で全て最新の空室確認ができます。お客様のご希望の条件にあったご満足のいく物件をご紹介致します。当店は定休日はございません。お申し込みエントリーしたいお部屋がございましたら是非ミニミニなかもず店までご連絡下さい。072-256-7232
物件周辺の生活情報
買い物
- コンビニ(381m)
- スーパー(826m)
- ドラッグストア(827m)
その他施設
- ファミリーマート(773m)
交通
- 阪堺電気軌道阪堺線 妙国寺前駅 徒歩9分
- 普通(停車)
- 阪堺電気軌道阪堺線 神明町駅 徒歩8分
- 普通(停車)
※急行等の停車駅情報について
急行等の停車駅に関するデータは、随時更新をしておりますが、最新の内容であることを保証するものではありません。
最新かつ正確な情報につきましては、各鉄道会社のウェブサイトにてご確認ください
物件周辺の口コミ
- 大阪府堺市堺区車之町西に住む人の口コミ30代女性
路面電車やバスがあり子供が喜んでるから。お出かけはしやすい。
口コミを見る
この物件周辺に住む人の口コミ
口コミは、LIFULL HOME'Sが実際にこの物件の周辺に住む18歳~69歳の男女を対象に、WEBアンケート調査を実施しています。内容には回答者の主観的な表現が含まれる場合があるほか、事実と異なる場合もございます。ご了承ください。
- 大阪府堺市堺区車之町西に住む人の口コミ30代女性
- 路面電車やバスがあり子供が喜んでるから。お出かけはしやすい。
- 大阪府堺市堺区海山町に住む人の口コミ50代女性
- 交通手段の選択肢が多く、大型ショッピングセンターや食品スーパーもあり買い物に困らないから。
- 大阪府堺市堺区錦之町西に住む人の口コミ40代女性
- 交通や買い物とかは充実しているが 治安に関してはあまりよろしく無い
- 大阪府堺市堺区海山町に住む人の口コミ50代女性
- 駅や大型の商業施設まで徒歩圏内で行くことができ役所などもそう遠くない所にあるが、市の中心部が少し活気がない。
- 大阪府堺市堺区中向陽町に住む人の口コミ30代男性
- 堺市に住んでますが交通の便が良く難波にも梅田にも直ぐにいける事。桜が咲く頃には桜並木の長い公園がある。沢山の歴史あるお寺神社もある。
- 大阪府堺市堺区宿屋町西に住む人の口コミ40代女性
- 近隣に大型の商業施設があるので、子供用品などが揃えやすい。駅が3つほどあるので、遠くへの移動が便利。
- 大阪府堺市堺区九間町西に住む人の口コミ50代女性
- スーパーがたくさんあるので、安い品を買いにあちこち行ける。交通の面でも行き先によって何処から行くか、色々選べる。
- 大阪府堺市堺区海山町に住む人の口コミ40代女性
- 数年前に駅すぐの場所にショッピングモールが新しく出来て必要な物が揃えられます。スーパーやコンビニも数店舗あり買い物もしやすく便利です。
- 大阪府堺市堺区海山町に住む人の口コミ50代女性
- 複数の路線を利用することができ、大型ショッピングモールや複数のスーパーやドラッグストア、ホームセンターがあり買い物には困らない。元々あった総合病院が遠くに移転したので不便になった。
- 大阪府堺市堺区柳之町東に住む人の口コミ30代男性
- 交通の便が充実している。田舎でもなく大都会でもない為生活しやすい。育児の面ではあまり良い環境とは言えない、人口の割に保育園や幼稚園が少ない為、妻が働く事ができないのが欠点。
物件概要
- 建物構造
- 木造
- 駐車場
- 無
- 総戸数
- 9戸
- 契約形態
- -
- 契約期間
- 2年間
- 更新料
- -
- その他費用
- 鍵交換費用:33,000円、エアコン洗浄代:16,500円、生活安心サポート費用:550円
- 保証会社
加入要
保証会社:全保連
保証会社利用料:初回保証料:総賃料の100%、月額:2490円
- 住宅保険
- 要
- 管理
- 管理員:巡回
- LIFULL HOME'S
物件番号 - 0121185-0104944
- 自社管理番号
- 68194598-1
- 取引態様
- 一般媒介
- 会社名
- 株式会社ラインエステート ミニミニFCなかもず店
営業スタッフコメント

株式会社ラインエステート ミニミニFCなかもず店営業
藤本哲也
堺に戻ってきました!敏腕営業マン!
業界経験17年
資格宅地建物取引士、少額短期保険募集人
- スタッフ情報
- 当店はミニミニのFC店として中百舌鳥に店舗を構えており、堺市全域、また堺市だけではなく大阪市やその他エリアの物件を数多くご紹介させて頂いております。スタッフは20代~30代の、賃貸営業経験者ばかりですので、どのエリアでもお客様の希望にピッタリの物件のご紹介が可能です。 お客様1人1人、親切・丁寧をモットーに、ご希望の物件探しからご契約、またご入居に至るまで、安心して新生活をスタートして頂ける様、スタッフ全員でサポートして参ります。 物件のご相談や、家賃・初期費用を抑えたい、ペット飼育可や敷金礼金0円、またネットに掲載されている物件は全エリア・全物件ご紹介可能ですので、なんでもご相談ください。気に入って頂ける様ご希望に沿える物件を1件でも多くご紹介させて頂きます。 また、当店では初期費用をお客様のクレジットカードでお支払して頂く事が可能ですので、初期費用でお困りの方は、是非ご相談ください。
当店はミニミニのFC店として中百舌鳥に店舗を構えており、堺市全域、また堺市だけではなく大阪市やその他エリアの物件を数多くご紹介させて頂いております。スタッフは20代~30代の、賃貸営業経験者ばかりですので、どのエリアでもお客様の希望にピッタリの物件のご紹介が可能です。 お客様1人1人、親切・丁寧をモットーに、ご希望の物件探しからご契約、またご入居に至るまで、安心して新生活をスタートして頂ける様、スタッフ全員でサポートして参ります。 物件のご相談や、家賃・初期費用を抑えたい、ペット飼育可や敷金礼金0円、またネットに掲載されている物件は全エリア・全物件ご紹介可能ですので、なんでもご相談ください。気に入って頂ける様ご希望に沿える物件を1件でも多くご紹介させて頂きます。 また、当店では初期費用をお客様のクレジットカードでお支払して頂く事が可能ですので、初期費用でお困りの方は、是非ご相談ください。
- 電話でお問合せ(通話無料)
お問合せ先 :株式会社ラインエステート ミニミニFCなかもず店
不動産会社情報
株式会社ラインエステート ミニミニFCなかもず店
大阪府堺市北区中百舌鳥町2丁69番地 ラ・レックス中モズBSビル2F
Osaka Metro御堂筋線 なかもず駅 徒歩2分
- 営業時間
- 10:00~19:00
- 定休日
- 年中無休(年末年始除く)
当店では経験豊富なスタッフがお部屋探しからお引越しまで丁寧にお手伝いをさせて頂きます。堺市全域、また堺市以外の近隣エリアのお部屋も取り扱っております。現地集合やオンライン内見にも対応をしております。
- 店舗の特徴
- 賃貸管理業務
- リフォーム対応
- 引越し業者紹介可
- 年中無休
- 駐車場あり
- オンライン相談可
- 保証人不要な物件あり
- 法人契約取扱い
- 女性スタッフ対応可
- 駅から歩いて3分以内
電話でお問合せお客様の電話番号は不動産会社には通知されません
- 不動産会社に
つながります
お客様の電話番号は不動産会社に通知されません
- ※光IP電話、及びIP電話からはご利用になれません
- ※お電話によるお問合せは、店舗営業時間内にお願いします。つながらない場合は、お問合せフォームよりお問合せください
- ※不動産会社がお電話に出られなかった場合、お問合せいただいた後に不動産会社より折り返しのお電話がある場合がございます(お客様が非通知設定した場合は対象外です)
- ※株式会社LIFULLは電話会社が提供するサービスを介してお客様の発信者番号を受領後、折り返し専用の電話番号を発番してお問合せの不動産会社に通知します(お客様の発信者番号がお問合せの不動産会社に通知されることはございません)
- ※携帯電話からお問合せいただいた方に対し、株式会社LIFULLは電話会社が提供するメッセ―ジサービスを介してお客様の発信者番号を受領後、ショートメッセージ(SMS)またはLINE通知メッセージによるお問合せ内容に関する通知をお届けする場合があります
- ※お客様が通話中に不動産会社にお伝えになったお客様の個人情報及び、電話会社が発番する折り返し専用の電話番号は、お問合せ先不動産会社が資料送付・電子メール送信・電話連絡などの目的で保管する可能性があります。お問合せ先不動産会社が保管する個人情報の取扱いについては、各不動産会社に直接お問合せください
- ※株式会社LIFULLでは本サービスを円滑に運用するために、お客様の発信者番号をサービスご利用の控えとして一定期間保管いたします
- ※上記および株式会社LIFULLの個人情報の取扱い方針に同意のうえ、お電話ください
【LIFULL HOME'S物件番号】0121185-0104944【自社管理番号】68194598-1
オンライン対応
オンライン内見・オンライン相談・IT重説に対応している物件です

「オンライン内見」「オンライン相談」「IT重説」とは?
物件の内見や不動産会社スタッフとの相談、契約前の重要事項説明をオンライン(ビデオ通話)で行うことができるサービスです。
オンライン内見
ビデオ通話で現地(物件)にいる不動産会社スタッフと映像・音声を使ってリアルタイムで会話しながら内見ができます。
オンライン相談
「物件について聞きたいことがある」など不動産会社スタッフへの相談もビデオ通話で行うことができます。
IT重説
契約前の重要事項説明(重説)をビデオ通話で行うことができます。
利用時の注意事項
- ビデオ通話については各不動産会社指定のものとなります。
- ビデオ通話利用時には通信が発生します。従量課金制通信サービスや通信量に上限があるネット回線・プランを利用する場合は、通信量にご注意ください。
- 通信速度やアプリの設定によってはビデオ通話の画質が低下することがあります。安定した画質で利用するためにも、Wi-Fi環境下での利用を推奨します。
- ご利用のビデオ通話アプリによっては、対象のOSやブラウザに制限がある場合があります。詳しくはお問合せ先不動産会社にご確認ください。
初期費用・月額費用をあわせて確認!この物件に住んだときの費用めやす
めやすを見るこの物件に住んだときの費用めやす
- 初期費用
- 月額費用
- 追加費用※ご確認ください
追加で費用が
かかる場合があります
必ずご確認ください
初期費用めやす約0円
追加で費用がかかります(※)敷金
0
- 礼金
97,000
- 保証金
0
賃料+共益費・管理費の1ヶ月分として換算
賃料の1ヶ月分+税として換算。不動産会社によって金額が異なるため正確な金額は不動産会社にお問合せください
※追加費用もチェック!
これらの項目以外にも費用がかかる場合があります。正確な金額は不動産会社にお問合せください。
- 初期費用
- 鍵交換費:33,000円
- 室内清掃費:不動産会社に要確認
- 火災保険費:不動産会社に要確認
- その他
- エアコン洗浄代:16500円
- 生活安心サポート費用:550円
- 保証会社
- 初回保証料:総賃料の100%、月額:2490円
不動産会社より
新築完成前のお申し込み始まりました。
当店では新築物件、ペット可物件、戸建賃貸、分譲賃貸など、他多数の物件を取り扱っております。ネット掲載のお部屋は当社で全て最新の空室確認ができます。お客様のご希望の条件にあったご満足のいく物件をご紹介致します。当店は定休日はございません。お申し込みエントリーしたいお部屋がございましたら是非ミニミニなかもず店までご連絡下さい。072-256-7232
- 保存する
- 共有する
- ※各種情報と現状に差異がある場合は、現状優先となります
- ※不動産会社が入力した情報を基に物件の位置を表示しています。詳しくは不動産会社までお問合せください
- ※不動産会社の方からの上記電話番号によるお問合せはお断りしております。こちら不動産会社詳細からお問合せください
- ※LIFULL HOME'Sは物件鮮度No.1を目指していきます。閲覧中の物件が「成約済である」「実際の物件情報と異なる点がある」などの場合、「掲載110番」からお問合せください
- ※QRコードは株式会社デンソーウェーブの登録商標です
したい暮らしのタグから探す
この物件を取扱う他の会社
LIFULL HOME'Sでは、主要項目が同一の物件をまとめて表示しています。所在地や営業時間、掲載画像等から不動産会社を選んでお問合せください。
最近見た賃貸物件
LIFULL HOME'S 地図・周辺情報
買い物
- ローソン 堺南庄町店
- スーパー玉出 神明店
- コクミンドラッグ高島屋堺店
- ローソン 堺南向陽二丁店
- Seria堺高島屋店
グルメ
- スターバックスコーヒー堺東中央線店
- デニーズ 錦綾町店
- 杵屋 堺東高島屋アップル店
- 星乃珈琲店堺高島屋店
- CoCo壱番屋 堺区南清水町店
育児・教育
- 宝珠学園幼稚園
- 堺市立錦小学校
- 堺市立殿馬場中学校
- 龍谷保育園
- 堺市立錦綾小学校
医療
- 公益財団法人浅香山病院
- 医療法人淳康会堺近森病院
- 医療法人サヂカム会三国丘病院
- 社会医療法人清恵会清恵会病院
- 医療法人杏林会金岡病院
公共施設・郵便局
- 堺材木町郵便局
- 堺市立青少年センター図書室
- 堺市堺区役所
- 堺東駅前郵便局
- 堺市立中央図書館堺市駅前分館
公園
- 錦西公園
- 戎公園
- 東雲公園
- 三宝公園
- 浅香山公園
利用可能な駅
- 徒歩10分以内
阪堺電気軌道阪堺線
- 神明町駅徒歩8分
- 妙国寺前駅徒歩9分
- その他交通
- 阪堺電気軌道阪堺線 花田口 徒歩13分
- 周辺情報は2023年07月21日時点のものになります。
- 周辺情報は、参考情報としてのみご利用ください(周辺情報は、株式会社LIFULLが地図情報の提供事業者から提供を受けた情報とLIFULL HOME'Sの物件情報に基づき、独自の方法で抽出し提供しているものです。周辺情報は、移転や閉鎖等により情報が最新ではない、または正しくない場合がありますが、地図情報の提供事業者から提供された情報をそのまま周辺情報として表示しているため、正確かつ最新の情報へ修正することができないことがあります。)
- 周辺情報は、株式会社LIFULLが掲載するものであり、不動産物件情報を掲載している不動産会社が掲載するものではありません
- 交通情報の一部については、株式会社LIFULLが掲載するものであり、不動産物件情報を掲載している不動産会社が掲載するものではない場合があります。交通情報に関する質問などは株式会社LIFULLにお問合せください


















































