LIFULL HOME'Sは物件鮮度No.1!※評価について
サキハイツ淀 2階
6万円/管理費等-
9時間前 更新
画像一覧
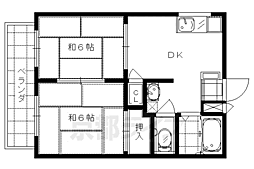
1/30間取り
間取
2/30外観
かわいい外観です
3/30外観
敷地は結構広いです
4/30リビング/ダイニング
スッキリとした間取り
5/30リビング/ダイニング
広めのダイニング
6/30リビング/ダイニング
ダイニング別角度から
7/30リビング/ダイニング
和室は落ち着きますね
8/30キッチン
2口コンロ設置可です
9/30浴室
窓が付いてます
10/30トイレ
トイレです
11/30洗面
レトロな洗面所
12/30洗面
水廻りが固まってて便利です
13/30収納
たっぷり収納できます
14/30収納
ダイニングにも収納あります
15/30設備
室内洗濯可です
16/30玄関
玄関です
17/30玄関
シューズボックスです
18/30玄関
キッチンから見た玄関です
19/30バルコニー
1階は小庭になってます
20/30駐車場
敷地ガレージです(要空き確認)
21/30駐車場
22/30駐車場
駐輪場は屋根つきです
23/30その他
24/30その他
風通し良さそうです
25/30その他
26/30その他
27/30周辺
28/30周辺
新鮮市場丸の内まで101m 淀駅近くの地元スーパー。近くには京都競馬場がございます。
29/30周辺
ローソン淀下津店まで140m 淀エリアのコンビニです。
30/30周辺
ミニストップ京阪淀駅前店まで158m 淀駅から間もない立地。角地です。裏手にはコインパーキングもございます。
間取り
外観
外観
リビング/ダイニング
リビング/ダイニング
リビング/ダイニング
リビング/ダイニング
キッチン
浴室
トイレ
洗面
洗面
収納
収納
設備
玄関
玄関
玄関
バルコニー
駐車場
駐車場
駐車場
その他
その他
その他
その他
周辺
周辺
周辺
周辺
LINEチャットでも 相談できます
お問合せ先 :株式会社京都ライフ 伏見桃山店
住まい探し特典内容
仲介手数料が家賃の半月分(消費税)です。
- 利用条件
- 株式会社京都ライフ 伏見桃山店で利用可
- 他特典との併用可
- 法人様契約、事業用物件は対象外です。積水ハウス、大東建託の管理物件は除く。
利用方法
来店時に本特典の画面をスマートフォンやタブレットでスタッフに提示、または画面印刷した用紙を提示ください。
有効期限 なし
駅近でおすすめ2DK 淀の一番星 外観も可愛らしいですよ。
物件のこだわり/設備・条件
新築(非該当)
2階以上の物件(該当)
南向き(非該当)
駐車場(非該当)
オートロック(非該当)
エアコン(非該当)
バス・トイレ別(該当)
追焚機能(非該当)
フローリング(非該当)
ペット相談(非該当)
位置
角部屋入居条件
二人入居可キッチン/バス・トイレ
設備・サービス
シューズボックス、CATV、光ファイバー、インターネット使用料無料、公営水道、都市ガス、下水、バルコニー、室内洗濯機置場、バイク置き場あり、駐輪場ありその他
住まい探し特典あり備考
京阪淀駅まで徒歩4分の2DKです。敷金、更新料ナシ。コンビニ、スーパーなど近くにあって便利ですよ。インターネットは光対応、無料でご利用いただけます。 物件情報はもちろん京都のエリア情報まで幅広く対応させていただきます!
物件周辺の生活情報
学校
- 明親小学校(283m)
- 大淀中学校(481m)
買い物
- コンビニ(140m)
- スーパー(101m)
その他施設
- 総合病院(278m)
- 銀行(218m)
- 京都淀池上郵便局(218m)
交通
- 京阪本線 淀駅 徒歩4分
- 普通(停車)
- 区間急行(通過)
- 急行(停車)
- 特急(通過)
- 通勤準急・準急(停車)
- 快速特急 洛楽(通過)
- 通勤快急・快速急行(通過)
- JR東海道・山陽本線 長岡京駅 3.6km
- 普通(停車)
- 新快速(通過)
- 快速(停車)
- 緩行電車(停車)
- 特別快速(通過)
- 区間快速(通過)
※急行等の停車駅情報について
急行等の停車駅に関するデータは、随時更新をしておりますが、最新の内容であることを保証するものではありません。
最新かつ正確な情報につきましては、各鉄道会社のウェブサイトにてご確認ください
物件周辺の口コミ
- 京都府京都市伏見区淀池上町に住む人の口コミ40代男性
昔ながらの雰囲気と地域住民の繋がりが強い。都心まで遠からず近からず。
口コミを見る
この物件周辺に住む人の口コミ
口コミは、LIFULL HOME'Sが実際にこの物件の周辺に住む18歳~69歳の男女を対象に、WEBアンケート調査を実施しています。内容には回答者の主観的な表現が含まれる場合があるほか、事実と異なる場合もございます。ご了承ください。
- 京都府京都市伏見区淀池上町に住む人の口コミ40代男性
- 昔ながらの雰囲気と地域住民の繋がりが強い。都心まで遠からず近からず。
- 京都府長岡京市久貝に住む人の口コミ40代女性
- 大阪に行くのも京都市内に行くのも電車ですぐ行けるところがいいかなと。
- 京都府京都市伏見区羽束師志水町に住む人の口コミ40代女性
- 自然も近くにそこそこあって、スーバーもあり、都市部にも比較的短時間で行けるところ
- 京都府長岡京市神足に住む人の口コミ50代女性
- 駅に近く大阪にも京都にもいきやすい。スーパーも近くに複数ある。
- 京都府長岡京市久貝に住む人の口コミ50代男性
- あまり人も物もごちゃごちゃしてないところ。京都や大阪に出やすいJRと阪急の駅があるところ。
- 京都府京都市伏見区淀際目町に住む人の口コミ40代女性
- 高速のインターが近く、高速を使って出かけた時に渋滞せずに家に帰れるから。
- 京都府久世郡久御山町東一口に住む人の口コミ40代男性
- 夜遅くても開いてる店が多い、交通手段が車がないと厳しいので、鉄道をなんとかして欲しい
- 京都府京都市伏見区淀美豆町に住む人の口コミ60代女性
- 交通網が発達している。駅近、バス停近、高速近、主要都市駅にも近い。買い物に便利である。プライベートが確保されている。町が静かである。
- 京都府長岡京市神足に住む人の口コミ40代女性
- JRと阪急が徒歩圏内、京都にも大阪にも出やすい。大きな商業施設は無く、車通りも激しく無く、街全体が落ち着いた雰囲気。子育て世代が多く、治安も悪くないように思う。
- 京都府京都市伏見区淀下津町に住む人の口コミ30代女性
- 閑静な住宅街で、買い物もしやすく住みやすい。子育て支援も充実しているし駅近、歩いてでも何でも揃えられるし満足している。
物件概要
- 建物構造
- 軽量鉄骨造
- 駐車場
- 空無
- 総戸数
- 10戸
- 契約形態
- -
- 契約期間
- 2年間
- 更新料
- -
- その他費用
- 室内清掃費用:27,500円、LIFE SUPPORT:1,100円、エアコンクリーニング代:13,200円
- 保証会社
加入要
保証会社:あんしんプラス
保証会社利用料:初回:月額賃料等の40%/2年、月額:支払い手数料880円、更新時:月額賃料等の20%/2年
- 住宅保険
- 要
- 管理
- -
- LIFULL HOME'S
物件番号 - 0138141-0149994
- 自社管理番号
- 06022-B-203
- 取引態様
- 専属専任媒介
- 会社名
- 株式会社京都ライフ 伏見桃山店
営業スタッフコメント

株式会社京都ライフ 伏見桃山店
奥田光貴
全力でサポート致します。
業界経験5年
- スタッフ情報
- 京都の賃貸は京都ライフまでお待ちしております。 伏見桃山に新店を出させて頂きました。新しいお店でお待ちしております。 ご質問、ご不明な点等がございましたらお気軽にお電話、メールにてお問い合わせくださいませ。
京都の賃貸は京都ライフまでお待ちしております。 伏見桃山に新店を出させて頂きました。新しいお店でお待ちしております。 ご質問、ご不明な点等がございましたらお気軽にお電話、メールにてお問い合わせくださいませ。
- 電話でお問合せ(通話無料)
お問合せ先 :株式会社京都ライフ 伏見桃山店
不動産会社情報
株式会社京都ライフ 伏見桃山店

京都府京都市伏見区観音寺町215-1 CONNECT桃山2F
近鉄京都線 桃山御陵前駅 徒歩1分
- 営業時間
- 09:30~19:00
- 定休日
- 年中無休(盆正月を除く)
優良店認定
桃山御陵前駅降りればスグ!人口の多い伏見区、沿線の多い伏見区、大阪へも出易い伏見区でお探しの方へ! もちろん京都市内どこでもご案内致します。全力でお部屋探しをサポートさせて頂きます!
- 店舗の特徴
- 賃貸管理業務
- 24時間管理物件取扱い
- リフォーム対応
- 引越し業者紹介可
- 年中無休
- 社宅・寮物件取扱い
- オンライン相談可
- 保証人不要な物件あり
- 法人契約取扱い
- 駅から歩いて3分以内
電話でお問合せお客様の電話番号は不動産会社には通知されません
- 不動産会社に
つながります
お客様の電話番号は不動産会社に通知されません
- ※光IP電話、及びIP電話からはご利用になれません
- ※お電話によるお問合せは、店舗営業時間内にお願いします。つながらない場合は、お問合せフォームよりお問合せください
- ※不動産会社がお電話に出られなかった場合、お問合せいただいた後に不動産会社より折り返しのお電話がある場合がございます(お客様が非通知設定した場合は対象外です)
- ※株式会社LIFULLは電話会社が提供するサービスを介してお客様の発信者番号を受領後、折り返し専用の電話番号を発番してお問合せの不動産会社に通知します(お客様の発信者番号がお問合せの不動産会社に通知されることはございません)
- ※携帯電話からお問合せいただいた方に対し、株式会社LIFULLは電話会社が提供するメッセ―ジサービスを介してお客様の発信者番号を受領後、ショートメッセージ(SMS)またはLINE通知メッセージによるお問合せ内容に関する通知をお届けする場合があります
- ※お客様が通話中に不動産会社にお伝えになったお客様の個人情報及び、電話会社が発番する折り返し専用の電話番号は、お問合せ先不動産会社が資料送付・電子メール送信・電話連絡などの目的で保管する可能性があります。お問合せ先不動産会社が保管する個人情報の取扱いについては、各不動産会社に直接お問合せください
- ※株式会社LIFULLでは本サービスを円滑に運用するために、お客様の発信者番号をサービスご利用の控えとして一定期間保管いたします
- ※上記および株式会社LIFULLの個人情報の取扱い方針に同意のうえ、お電話ください
【LIFULL HOME'S物件番号】0138141-0149994【自社管理番号】06022-B-203
初期費用・月額費用をあわせて確認!この物件に住んだときの費用めやす
めやすを見るこの物件に住んだときの費用めやす
- 初期費用
- 月額費用
- 追加費用※ご確認ください
追加で費用が
かかる場合があります
必ずご確認ください
初期費用めやす約0円
追加で費用がかかります(※)敷金
0
- 礼金
0
賃料+共益費・管理費の1ヶ月分として換算
賃料の1ヶ月分+税として換算。不動産会社によって金額が異なるため正確な金額は不動産会社にお問合せください
※追加費用もチェック!
これらの項目以外にも費用がかかる場合があります。正確な金額は不動産会社にお問合せください。
- 初期費用
- 鍵交換費:不動産会社に要確認
- 室内清掃費:27,500円
- 火災保険費:不動産会社に要確認
- その他
- LIFE SUPPORT:1100円
- エアコンクリーニング代:13200円
- 保証会社
- 初回:月額賃料等の40%/2年、月額:支払い手数料880円、更新時:月額賃料等の20%/2年
不動産会社より
駅近でおすすめ2DK 淀の一番星 外観も可愛らしいですよ。
京阪淀駅まで徒歩4分の2DKです。敷金、更新料ナシ。コンビニ、スーパーなど近くにあって便利ですよ。インターネットは光対応、無料でご利用いただけます。 物件情報はもちろん京都のエリア情報まで幅広く対応させていただきます!
- 保存する
- 共有する
- ※各種情報と現状に差異がある場合は、現状優先となります
- ※不動産会社が入力した情報を基に物件の位置を表示しています。詳しくは不動産会社までお問合せください
- ※不動産会社の方からの上記電話番号によるお問合せはお断りしております。こちら不動産会社詳細からお問合せください
- ※LIFULL HOME'Sは物件鮮度No.1を目指していきます。閲覧中の物件が「成約済である」「実際の物件情報と異なる点がある」などの場合、「掲載110番」からお問合せください
- ※QRコードは株式会社デンソーウェーブの登録商標です
したい暮らしのタグから探す
LIFULL HOME'S 地図・周辺情報
買い物
- ローソン 淀下津店
- フードネットマート淀店
- 薬ヒグチ淀店
- セブンイレブン 淀池上町店
- TOAmart京都淀店
グルメ
- ケンタッキーフライドチキン JRA京都競馬場店
- 吉野家 京都競馬場店
- 和食さと 城ノ里店
- すき家 大山崎IC店
- 焼肉でん 長岡京店
育児・教育
- 淀白鳥保育園分園
- 京都市立明親小学校
- 京都市立大淀中学校
- 淀白鳥保育園
- 京都市立納所小学校
医療
- 医療法人社団淀さんせん会金井病院
- 医療法人社団洛和会介護医療院洛和ヴィラよつば
- 医療法人八仁会久御山南病院
- (財)長岡記念財団長岡ヘルスケアセンター(長岡病院)
- 医療法人社団千春会千春会病院
公共施設・郵便局
- 京都淀池上郵便局
- 大山崎町役場
- 御牧郵便局
- 久御山町役場
- 京都納所郵便局
公園
- 淀城跡公園
- 横大路運動公園
- かわきた自然運動公園
- 勝竜寺城公園
- 勝竜寺城公園
利用可能な駅
- 徒歩10分以内
京阪本線
- 淀駅徒歩4分
- すべての駅
京阪本線
- 石清水八幡宮駅3.5km
JR東海道・山陽本線
- 長岡京駅3.6km
阪急京都本線
- 西山天王山駅3.6km
- 周辺情報は2023年07月21日時点のものになります。
- 周辺情報は、参考情報としてのみご利用ください(周辺情報は、株式会社LIFULLが地図情報の提供事業者から提供を受けた情報とLIFULL HOME'Sの物件情報に基づき、独自の方法で抽出し提供しているものです。周辺情報は、移転や閉鎖等により情報が最新ではない、または正しくない場合がありますが、地図情報の提供事業者から提供された情報をそのまま周辺情報として表示しているため、正確かつ最新の情報へ修正することができないことがあります。)
- 周辺情報は、株式会社LIFULLが掲載するものであり、不動産物件情報を掲載している不動産会社が掲載するものではありません
- 交通情報の一部については、株式会社LIFULLが掲載するものであり、不動産物件情報を掲載している不動産会社が掲載するものではない場合があります。交通情報に関する質問などは株式会社LIFULLにお問合せください









