LIFULL HOME'Sは物件鮮度No.1!※評価について
スカイコート田園調布 3階
7.45万円/管理費等8,500円
5時間前 更新
画像一覧
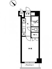
1/23間取り
間取図
2/23外観
外観・土地
3/23リビング/ダイニング
リビング
4/23室内
その他部屋・スペース
5/23寝室
寝室
6/23キッチン
キッチン
7/23浴室
バス
8/23トイレ
トイレ
9/23洗面
洗面所
10/23収納
収納
11/23設備
設備
12/23設備
セキュリティ
13/23玄関
玄関
14/23バルコニー
バルコニー
15/23エントランス
エントランス
16/23その他
その他
17/23その他
敷地内/建物
18/23周辺
雪が谷東急ストア 868m
19/23周辺
まいばすけっと沼部駅前店 785m
20/23周辺
スーパーオオゼキ雪が谷店 938m
21/23周辺
ファミリーマート東玉川二丁目店 650m
22/23周辺
ローソン南雪谷二丁目店 701m
23/23周辺
セブンイレブン雪が谷大塚駅前店 870m
間取り
外観
リビング/ダイニング
室内
寝室
キッチン
浴室
トイレ
洗面
収納
設備
設備
玄関
バルコニー
エントランス
その他
その他
周辺
周辺
周辺
周辺
周辺
周辺
お問合せ先 :お部屋探し情報館 株式会社エーアイアール 渋谷道玄坂店
引越し料金割引
提携引越し業者による割引有ります。
- 利用条件
- お部屋探し情報館 株式会社エーアイアール 渋谷道玄坂店で利用可
- 他特典との併用はできませんので、ご注意ください。
利用方法
来店時に本特典の画面をスマートフォンやタブレットでスタッフに提示、または画面印刷した用紙を提示ください。
有効期限 2025年12月06日まで
新着物件情報を多数取り揃えております。
物件のこだわり/設備・条件
新築(非該当)
2階以上の物件(該当)
南向き(非該当)
駐車場(非該当)
オートロック(該当)
エアコン(該当)
バス・トイレ別(該当)
追焚機能(非該当)
フローリング(該当)
ペット相談(非該当)
位置
角部屋キッチン/バス・トイレ
設備・サービス
オートロック、防犯カメラ、TVモニタ付インターホン、セキュリティ充実、エアコン、クローゼット、シューズボックス、CS対応、BS対応、インターネット対応、フローリング、バルコニー、室内洗濯機置場、24時間換気システム、タイル貼り、エレベーター、ゴミ出し24時間OK、宅配ボックス、駐輪場ありその他
初期費用カード決済可、分譲賃貸、住まい探し特典あり備考
こちらのお部屋は民泊・事務所のご利用はできません。契約金の分割払い相談可能です。フリーレントや仲介手数料無料等なんでもお気軽にご相談下さい。短期解約違約金有(1年未満の場合総賃料1ヶ月分)。
物件周辺の生活情報
買い物
- コンビニ(650m)
- スーパー(868m)
その他施設
- まいばすけっと沼部駅前店(785m)
交通
- 東急池上線 雪が谷大塚駅 徒歩6分
- 普通(停車)
- 東急池上線 御嶽山駅 徒歩12分
- 普通(停車)
※急行等の停車駅情報について
急行等の停車駅に関するデータは、随時更新をしておりますが、最新の内容であることを保証するものではありません。
最新かつ正確な情報につきましては、各鉄道会社のウェブサイトにてご確認ください
物件周辺の口コミ
- 東京都大田区田園調布に住む人の口コミ20代女性
交通の便はよいので近くの町に言って買い物をしやすいが、街自体には店が少ない
口コミを見る
この物件周辺に住む人の口コミ
口コミは、LIFULL HOME'Sが実際にこの物件の周辺に住む18歳~69歳の男女を対象に、WEBアンケート調査を実施しています。内容には回答者の主観的な表現が含まれる場合があるほか、事実と異なる場合もございます。ご了承ください。
- 東京都大田区田園調布に住む人の口コミ20代女性
- 交通の便はよいので近くの町に言って買い物をしやすいが、街自体には店が少ない
- 東京都大田区田園調布に住む人の口コミ30代男性
- 買い物する場所が少ない事は若干不便に感じるが、緑は豊かで閑静な住宅街エリアのため住むことに関しては満足している。
- 東京都大田区田園調布に住む人の口コミ30代男性
- 治安が良いのと住んでいる方が皆さん優しくて家の周りも綺麗にしていてとても気持ちがいい。公園も場所によってスッキリしているところ、カエルやザリガニ取りができるところなどもあり子供ものびのび遊びきれる。
- 東京都大田区田園調布に住む人の口コミ20代女性
- お店が少ないのが気になるが隣駅に行けば困らない。治安が良く暮らしやすい。
- 東京都大田区田園調布に住む人の口コミ20代女性
- 治安が良い。女性の一人暮らしは安心。丸子川周辺は虫が多い。自転車で上るのが辛い坂が多く、歳を取ったら住めないと感じる。近場のスーパーはどれも値段が高いので、隣駅まで買い物に行くのが面倒。
- 東京都大田区田園調布に住む人の口コミ30代女性
- 閑静な住宅街で、ファミリー層が多いので清潔感があり、住み心地が良いです。また警察署が近くにあり、治安が良く安心できます。
- 東京都大田区田園調布に住む人の口コミ30代女性
- 閑静な住宅街で、住んでいる人も上品な人が多く住みやすいから。
- 東京都大田区田園調布に住む人の口コミ20代女性
- 公園があり、自然が多いところ、治安がよく夜道も安心して歩けるところ
- 東京都大田区東雪谷に住む人の口コミ30代女性
- 近くに田園調布もあるため、少し高級住宅街の雰囲気がある気がする。東急沿線の雰囲気の町で、おしゃれなスポットがわりとあると思えば、昔ながらの商店街もあっておもしろい。また、歴史もある土地柄で趣がある。
- 東京都世田谷区東玉川に住む人の口コミ20代女性
- スーパーや病院など生活に必要なショップも充実しているため住みやすいから。
物件概要
- 建物構造
- RC(鉄筋コンクリート)
- 駐車場
- 無
- 総戸数
- -
- 契約形態
- -
- 契約期間
- 2年間
- 更新料
- -
- その他費用
- 鍵交換費用:25,300円、消火剤代:5,500円、月額費用(入居サポート:1650円、保険料:1000円):2,650円、解約事務手数料:13,200円
- 保証会社
加入要
保証会社:詳しくは担当までご連絡下さい。
保証会社利用料:初回に家賃・管理費等総額50% 月次保証料 家賃等総額1.4%加算
- 住宅保険
- 要
- 管理
- 管理員:巡回
- LIFULL HOME'S
物件番号 - 0103836-0095955
- 自社管理番号
- 68752354-1
- 取引態様
- 仲介
- 会社名
- お部屋探し情報館 株式会社エーアイアール 渋谷道玄坂店
営業スタッフコメント

お部屋探し情報館 株式会社エーアイアール 渋谷道玄坂店
株式会社エーアイアール渋谷店一同
都内近郊のお部屋探しはお任せください。
業界経験10年
- 会社実績や特徴・サービス情報
- 当社、渋谷道玄坂店では、場所柄もあり、さまざまなお客様の声にお応えできるよう豊富な物件を取り揃えています。(物件数には自信あります!)礼金敷金ゼロや保証人代行システムはもちろん、新築やバストイレ別、エリア限定等どんな条件でも当店スタッフが親切丁寧にお探しいたしますので、何でもご相談下さい。
当社、渋谷道玄坂店では、場所柄もあり、さまざまなお客様の声にお応えできるよう豊富な物件を取り揃えています。(物件数には自信あります!)礼金敷金ゼロや保証人代行システムはもちろん、新築やバストイレ別、エリア限定等どんな条件でも当店スタッフが親切丁寧にお探しいたしますので、何でもご相談下さい。
- 電話でお問合せ(通話無料)
お問合せ先 :お部屋探し情報館 株式会社エーアイアール 渋谷道玄坂店
不動産会社情報
お部屋探し情報館 株式会社エーアイアール 渋谷道玄坂店
東京都渋谷区道玄坂2丁目6−14ホマレヤビル7F
JR山手線 渋谷駅 徒歩2分
- 営業時間
- 10:00~19:00
- 定休日
- 無休 (年末年始を除く)
新築分譲マンションからアパートまで、礼金敷金ゼロ、保証人不要等何でもご相談下さい。オンラインシステムにより、都内全域の物件をお探し致します。お電話、メールどちらでも結構です。まずはお問い合わせ下さい!
- 店舗の特徴
- 賃貸管理業務
- 引越し業者紹介可
- 年中無休
- 社宅・寮物件取扱い
- 保証人不要な物件あり
- 入居ローンあり
- 法人契約取扱い
- 19時以降も営業
- 駅から歩いて3分以内
電話でお問合せお客様の電話番号は不動産会社には通知されません
- 不動産会社に
つながります
お客様の電話番号は不動産会社に通知されません
- ※光IP電話、及びIP電話からはご利用になれません
- ※お電話によるお問合せは、店舗営業時間内にお願いします。つながらない場合は、お問合せフォームよりお問合せください
- ※不動産会社がお電話に出られなかった場合、お問合せいただいた後に不動産会社より折り返しのお電話がある場合がございます(お客様が非通知設定した場合は対象外です)
- ※株式会社LIFULLは電話会社が提供するサービスを介してお客様の発信者番号を受領後、折り返し専用の電話番号を発番してお問合せの不動産会社に通知します(お客様の発信者番号がお問合せの不動産会社に通知されることはございません)
- ※携帯電話からお問合せいただいた方に対し、株式会社LIFULLは電話会社が提供するメッセ―ジサービスを介してお客様の発信者番号を受領後、ショートメッセージ(SMS)またはLINE通知メッセージによるお問合せ内容に関する通知をお届けする場合があります
- ※お客様が通話中に不動産会社にお伝えになったお客様の個人情報及び、電話会社が発番する折り返し専用の電話番号は、お問合せ先不動産会社が資料送付・電子メール送信・電話連絡などの目的で保管する可能性があります。お問合せ先不動産会社が保管する個人情報の取扱いについては、各不動産会社に直接お問合せください
- ※株式会社LIFULLでは本サービスを円滑に運用するために、お客様の発信者番号をサービスご利用の控えとして一定期間保管いたします
- ※上記および株式会社LIFULLの個人情報の取扱い方針に同意のうえ、お電話ください
【LIFULL HOME'S物件番号】0103836-0095955【自社管理番号】68752354-1
初期費用・月額費用をあわせて確認!この物件に住んだときの費用めやす
めやすを見るこの物件に住んだときの費用めやす
- 初期費用
- 月額費用
- 追加費用※ご確認ください
追加で費用が
かかる場合があります
必ずご確認ください
初期費用めやす約0円
追加で費用がかかります(※)敷金
74,500
- 礼金
74,500
- 保証金
0
賃料+共益費・管理費の1ヶ月分として換算
賃料の1ヶ月分+税として換算。不動産会社によって金額が異なるため正確な金額は不動産会社にお問合せください
※追加費用もチェック!
これらの項目以外にも費用がかかる場合があります。正確な金額は不動産会社にお問合せください。
- 初期費用
- 鍵交換費:25,300円
- 室内清掃費:不動産会社に要確認
- 火災保険費:不動産会社に要確認
- その他
- 消火剤代:5500円
- 月額費用(入居サポート:1650円、保険料:1000円):2650円
- 解約事務手数料:13200円
- 保証会社
- 初回に家賃・管理費等総額50% 月次保証料 家賃等総額1.4%加算
不動産会社より
新着物件情報を多数取り揃えております。
こちらのお部屋は民泊・事務所のご利用はできません。契約金の分割払い相談可能です。フリーレントや仲介手数料無料等なんでもお気軽にご相談下さい。短期解約違約金有(1年未満の場合総賃料1ヶ月分)。
- 保存する
- 共有する
- ※各種情報と現状に差異がある場合は、現状優先となります
- ※不動産会社が入力した情報を基に物件の位置を表示しています。詳しくは不動産会社までお問合せください
- ※不動産会社の方からの上記電話番号によるお問合せはお断りしております。こちら不動産会社詳細からお問合せください
- ※LIFULL HOME'Sは物件鮮度No.1を目指していきます。閲覧中の物件が「成約済である」「実際の物件情報と異なる点がある」などの場合、「掲載110番」からお問合せください
- ※QRコードは株式会社デンソーウェーブの登録商標です
したい暮らしのタグから探す
この物件を取扱う他の会社
LIFULL HOME'Sでは、主要項目が同一の物件をまとめて表示しています。所在地や営業時間、掲載画像等から不動産会社を選んでお問合せください。
アエラス目黒店 (株式会社アエラス.FR)
優良店認定
東京都目黒区目黒1丁目4-8 東レクビル 5階
JR山手線 目黒駅 徒歩2分
- 営業時間
- 10:00~19:00(※時間外対応出来る場合もございます。)
- 定休日
- 年中無休(年末年始などを除く)
アエラス武蔵小山店 (株式会社アエラス.GR)
東京都品川区小山3丁目25-9 ユニーブル武蔵小山3 1階
東急目黒線 武蔵小山駅 徒歩2分
- 営業時間
- 10:00~19:00(※時間外対応出来る場合もございます)
- 定休日
- 毎週水曜日
アエラス学芸大学店 (株式会社アエラス.PR)
優良店認定
東京都目黒区鷹番2丁目20-10 Lスクエア学芸大学 4階
東急東横線 学芸大学駅 徒歩1分
- 営業時間
- 10:00~19:00(※時間外対応出来る場合もございます。)
- 定休日
- 毎週水曜日
最近見た賃貸物件
LIFULL HOME'S 地図・周辺情報
買い物
- ローソン ・スリーエフ田園調布本町店
- まいばすけっと田園調布1丁目店
- ココカラファイン南雪谷店
- ローソン 田園調布1丁目店
- オーケー田園調布店
グルメ
- ガスト 田園調布店(から好し取扱店)
- はま寿司田園調布店
- らあめん花月嵐雪谷大塚店
- 吉野家 雪が谷大塚駅前店
- 中華食堂日高屋雪が谷大塚南口店
育児・教育
- さくらさくみらい田園調布
- 大田区立調布大塚小学校
- 大田区立東調布中学校
- 大田区立田園調布保育園
- 大田区立東調布第一小学校
医療
- 医療法人社団七仁会田園調布中央病院
- 東京明日佳病院
- 日本医科大学武蔵小杉病院
- 公益財団法人東京都保健医療公社荏原病院
- 奥沢病院
公共施設・郵便局
- 田園調布一郵便局
- 大田区立大田図書館
- 田園調布警察署
- 田園調布郵便局
- 世田谷区立奥沢図書館
公園
- 多摩川台公園
- 宝来公園
- 下沼部公園
- 等々力緑地
- 洗足池公園
利用可能な駅
- 徒歩10分以内
東急池上線
- 雪が谷大塚駅徒歩6分
- すべての駅
東急池上線
- 御嶽山駅徒歩12分
- 石川台駅徒歩17分
- 久が原駅徒歩20分
- 洗足池駅徒歩25分
- 千鳥町駅徒歩32分
- 長原駅徒歩34分
東急東横線
- 多摩川駅徒歩13分
- 田園調布駅徒歩18分
- 新丸子駅徒歩25分
- 自由が丘駅徒歩29分
東急多摩川線
- 沼部駅徒歩14分
- 鵜の木駅徒歩25分
- 下丸子駅徒歩34分
- 武蔵新田駅3.4km
東急目黒線
- 奥沢駅徒歩22分
- 大岡山駅徒歩32分
- 洗足駅3.5km
東急大井町線
- 緑が丘駅徒歩27分
- 九品仏駅徒歩34分
- 北千束駅徒歩36分
- 旗の台駅3.2km
- 尾山台駅3.4km
JR南武線
- 向河原駅徒歩34分
JR横須賀線
- 武蔵小杉駅徒歩35分
都営浅草線
- 西馬込駅3.6km
- 周辺情報は2023年07月21日時点のものになります。
- 周辺情報は、参考情報としてのみご利用ください(周辺情報は、株式会社LIFULLが地図情報の提供事業者から提供を受けた情報とLIFULL HOME'Sの物件情報に基づき、独自の方法で抽出し提供しているものです。周辺情報は、移転や閉鎖等により情報が最新ではない、または正しくない場合がありますが、地図情報の提供事業者から提供された情報をそのまま周辺情報として表示しているため、正確かつ最新の情報へ修正することができないことがあります。)
- 周辺情報は、株式会社LIFULLが掲載するものであり、不動産物件情報を掲載している不動産会社が掲載するものではありません
- 交通情報の一部については、株式会社LIFULLが掲載するものであり、不動産物件情報を掲載している不動産会社が掲載するものではない場合があります。交通情報に関する質問などは株式会社LIFULLにお問合せください














































