LIFULL HOME'Sは物件鮮度No.1!※評価について
Nコート 2階/202
7.5万円/管理費等4,000円
15時間前 更新
画像一覧
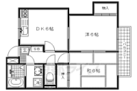
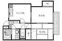
1/30間取り
間取
2/30外観
3/30外観
4/30リビング/ダイニング
5/30リビング/ダイニング
6/30リビング/ダイニング
7/30リビング/ダイニング
8/30室内
9/30寝室
10/30子供部屋
11/30キッチン
12/30キッチン
13/30浴室
14/30浴室
15/30トイレ
16/30洗面
17/30収納
18/30収納
19/30収納
20/30設備
21/30設備
22/30玄関
23/30バルコニー
24/30その他
25/30その他
26/30その他
27/30その他
28/30その他
29/30その他
30/30周辺
ファミリーマート深草龍大前店まで554m
間取り
外観
外観
リビング/ダイニング
リビング/ダイニング
リビング/ダイニング
リビング/ダイニング
室内
寝室
子供部屋
キッチン
キッチン
浴室
浴室
トイレ
洗面
収納
収納
収納
設備
設備
玄関
バルコニー
その他
その他
その他
その他
その他
その他
周辺
お問合せ先 :アパマンショップ伏見店 ウインズリンク株式会社
引越し料金割引
提携引越し業者あり、無料で見積もり・割引などもございます。
- 利用条件
- アパマンショップ伏見店 ウインズリンク株式会社で利用可
- 他特典との併用可
利用方法
来店時に本特典の画面をスマートフォンやタブレットでスタッフに提示、または画面印刷した用紙を提示ください。
有効期限 なし
ダブルアクセス可能 2007年築ファミリー物件 京阪深草駅まで徒歩4分の2DKです。
物件のこだわり/設備・条件
新築(非該当)
2階以上の物件(該当)
南向き(非該当)
駐車場あり(該当)
オートロック(非該当)
エアコン(該当)
バス・トイレ別(該当)
追焚機能(該当)
フローリング(該当)
ペット相談(非該当)
入居条件
二人入居可、保証人不要、即入居可キッチン/バス・トイレ
設備・サービス
エアコン、シューズボックス、BS対応、光ファイバー、公営水道、都市ガス、下水、フローリング、バルコニー、室内洗濯機置場、駐車場あり、駐輪場ありその他
住まい探し特典あり備考
JR、京阪のダブルアクセス。更新料ナシです。嬉しい3点セパレートなど充実の設備。コンビニ、スーパーなど近くにあって便利ですよ。光ファイバー対応しています。
物件周辺の生活情報
学校
- 深草小学校(747m)
- 深草中学校(665m)
買い物
- コンビニ(554m)
- スーパー(341m)
- ドラッグストア(1,072m)
その他施設
- 総合病院(1,000m)
- ホームセンターコーナンくいな橋店(1,222m)
交通
- 京阪本線 龍谷大前深草駅 徒歩4分
- 普通(停車)
- 区間急行(通過)
- 急行(通過)
- 特急(通過)
- 通勤準急・準急(停車)
- 快速特急 洛楽(通過)
- 通勤快急・快速急行(通過)
- JR奈良線 稲荷駅 徒歩5分
- 普通(停車)
- 区間快速(通過)
- 快速(通過)
- みやこ路快速(通過)
※急行等の停車駅情報について
急行等の停車駅に関するデータは、随時更新をしておりますが、最新の内容であることを保証するものではありません。
最新かつ正確な情報につきましては、各鉄道会社のウェブサイトにてご確認ください
物件周辺の口コミ
- 京都府京都市伏見区深草森吉町に住む人の口コミ50代女性
静かで最寄り駅も近く、ちょっと足を伸ばせばJRも有り稲荷大社やお寺も有り車での移動や待ち合わせにも便利。
口コミを見る
この物件周辺に住む人の口コミ
口コミは、LIFULL HOME'Sが実際にこの物件の周辺に住む18歳~69歳の男女を対象に、WEBアンケート調査を実施しています。内容には回答者の主観的な表現が含まれる場合があるほか、事実と異なる場合もございます。ご了承ください。
- 京都府京都市伏見区深草森吉町に住む人の口コミ50代女性
- 静かで最寄り駅も近く、ちょっと足を伸ばせばJRも有り稲荷大社やお寺も有り車での移動や待ち合わせにも便利。
- 京都府京都市伏見区深草藪之内町に住む人の口コミ30代女性
- 地域との交流がある。学校も近く家の前から学校までの道に防犯カメラもある。インバウンドで外国人がや観光客が多く、車で移動時に車道まで多くの人が歩いているのが不満。
- 京都府京都市南区上鳥羽勧進橋町に住む人の口コミ30代女性
- 駅が近いので近くにスーパーが無くても電車ですぐ買い物に行ける。地下鉄10分ほどで市内中心部に行けるのが良い。
- 京都府京都市伏見区深草秡川町に住む人の口コミ60代男性
- 買い物、交通、病院、学校など生活に必要なものはそろっているが、(コロナ禍がなければ)観光客が多く、市民生活には一定の支障が出る
- 京都府京都市伏見区深草西浦町8丁目に住む人の口コミ50代男性
- 小さい時から住んでいるので近辺の移り変わりも判り満足している
- 京都府京都市伏見区深草平田町に住む人の口コミ30代男性
- 治安が良くて、人々の心が澄み切っていて、利便性も高いし住みやすい。
- 京都府京都市伏見区深草石峰寺山町に住む人の口コミ30代女性
- 少子化の影響か小学校の生徒数が少なくお年寄りが多いが目的によって路線を選べて急行もとまるから繁華街にも行きやすい
- 京都府京都市伏見区深草綿森町に住む人の口コミ30代女性
- 複数の鉄道路線、スーパー、病院があり、高齢になって車に乗らなくても日常生活に支障がないと思う。また子育て世帯も多く、徒歩圏内に塾等もあり、子育てしていくにも良い環境だと思うから。
- 京都府京都市伏見区深草稲荷御前町に住む人の口コミ40代女性
- マイナス面もあるけれど、駅の利便性とかはプラス面なんで総合的には満足しているほうです
- 京都府京都市伏見区深草下横縄町に住む人の口コミ40代男性
- 行こうと思えば、どこへでも公共交通機関を利用していくことができる。
物件概要
- 建物構造
- 木造
- 駐車場
- 空有 10,000円(税込)
- 総戸数
- 6戸
- 契約形態
- -
- 契約期間
- 2年間
- 更新料
- -
- その他費用
- 鍵交換費用:16,500円、入居者サポート:1,100円、町会費:6,000円、抗菌除菌処理代:22,000円
- 保証会社
加入要
保証会社:全保連
保証会社利用料:初回:月額賃料等の40%、月額:保証料2090円(火災保険込み)
- 住宅保険
- 要
- 管理
- -
- LIFULL HOME'S
物件番号 - 0116811-0158389
- 自社管理番号
- 08816-202
- 取引態様
- 仲介
- 会社名
- アパマンショップ伏見店 ウインズリンク株式会社
営業スタッフコメント

アパマンショップ伏見店 ウインズリンク株式会社
森井大樹
伏見区はもちろん京都市からその近郊まで全てお任せ下さい!
業界経験1年
- 会社実績や特徴・サービス情報
- アパマンショップ伏見店は京阪本線伏見桃山駅と近鉄京都線桃山御陵駅の間に位置し、営業時間は9:30〜19:00となっております。 営業マンは親切・丁寧をモットーとし、お客様が喜んでいただけるのが営業マンの励みです。 伏見区や宇治市の住環境、車や電車等の交通便や利便性など、エリアの特性はお任せください。みなさん気になる「実際のところ」をお伝えいたします。 そして納得いくまでお部屋探し、お付き合いいたします。 ぜひ、気軽に立ち寄ってみてください。
アパマンショップ伏見店は京阪本線伏見桃山駅と近鉄京都線桃山御陵駅の間に位置し、営業時間は9:30〜19:00となっております。 営業マンは親切・丁寧をモットーとし、お客様が喜んでいただけるのが営業マンの励みです。 伏見区や宇治市の住環境、車や電車等の交通便や利便性など、エリアの特性はお任せください。みなさん気になる「実際のところ」をお伝えいたします。 そして納得いくまでお部屋探し、お付き合いいたします。 ぜひ、気軽に立ち寄ってみてください。
- 電話でお問合せ(通話無料)
お問合せ先 :アパマンショップ伏見店 ウインズリンク株式会社
不動産会社情報
アパマンショップ伏見店 ウインズリンク株式会社アパマンショップ伏見店
京都府京都市伏見区京町3丁目170-1 岸和田ビル 1階
京阪本線 伏見桃山駅 徒歩1分
- 営業時間
- 09:30~19:00
- 定休日
- なし(盆休み8/13〜8/16・年末年始12/27〜1/4)
京阪本線「伏見桃山」駅から東へ徒歩1分。近鉄京都線「桃山御陵前」駅から西へ徒歩1分。伏見区でお部屋をお探しならアパマンショップ伏見店へ一度ご来店下さい。
- 店舗の特徴
- 賃貸管理業務
- 引越し業者紹介可
- 年中無休
- 駐車場あり
- 社宅・寮物件取扱い
- オンライン相談可
- 保証人不要な物件あり
- 法人契約取扱い
- 19時以降も営業
- 駅から歩いて3分以内
電話でお問合せお客様の電話番号は不動産会社には通知されません
- 不動産会社に
つながります
お客様の電話番号は不動産会社に通知されません
- ※光IP電話、及びIP電話からはご利用になれません
- ※お電話によるお問合せは、店舗営業時間内にお願いします。つながらない場合は、お問合せフォームよりお問合せください
- ※不動産会社がお電話に出られなかった場合、お問合せいただいた後に不動産会社より折り返しのお電話がある場合がございます(お客様が非通知設定した場合は対象外です)
- ※株式会社LIFULLは電話会社が提供するサービスを介してお客様の発信者番号を受領後、折り返し専用の電話番号を発番してお問合せの不動産会社に通知します(お客様の発信者番号がお問合せの不動産会社に通知されることはございません)
- ※携帯電話からお問合せいただいた方に対し、株式会社LIFULLは電話会社が提供するメッセ―ジサービスを介してお客様の発信者番号を受領後、ショートメッセージ(SMS)またはLINE通知メッセージによるお問合せ内容に関する通知をお届けする場合があります
- ※お客様が通話中に不動産会社にお伝えになったお客様の個人情報及び、電話会社が発番する折り返し専用の電話番号は、お問合せ先不動産会社が資料送付・電子メール送信・電話連絡などの目的で保管する可能性があります。お問合せ先不動産会社が保管する個人情報の取扱いについては、各不動産会社に直接お問合せください
- ※株式会社LIFULLでは本サービスを円滑に運用するために、お客様の発信者番号をサービスご利用の控えとして一定期間保管いたします
- ※上記および株式会社LIFULLの個人情報の取扱い方針に同意のうえ、お電話ください
【LIFULL HOME'S物件番号】0116811-0158389【自社管理番号】08816-202
オンライン対応
オンライン相談に対応している物件です

「オンライン内見」「オンライン相談」「IT重説」とは?
物件の内見や不動産会社スタッフとの相談、契約前の重要事項説明をオンライン(ビデオ通話)で行うことができるサービスです。
オンライン内見
ビデオ通話で現地(物件)にいる不動産会社スタッフと映像・音声を使ってリアルタイムで会話しながら内見ができます。
オンライン相談
「物件について聞きたいことがある」など不動産会社スタッフへの相談もビデオ通話で行うことができます。
IT重説
契約前の重要事項説明(重説)をビデオ通話で行うことができます。
利用時の注意事項
- ビデオ通話については各不動産会社指定のものとなります。
- ビデオ通話利用時には通信が発生します。従量課金制通信サービスや通信量に上限があるネット回線・プランを利用する場合は、通信量にご注意ください。
- 通信速度やアプリの設定によってはビデオ通話の画質が低下することがあります。安定した画質で利用するためにも、Wi-Fi環境下での利用を推奨します。
- ご利用のビデオ通話アプリによっては、対象のOSやブラウザに制限がある場合があります。詳しくはお問合せ先不動産会社にご確認ください。
初期費用・月額費用をあわせて確認!この物件に住んだときの費用めやす
めやすを見るこの物件に住んだときの費用めやす
- 初期費用
- 月額費用
- 追加費用※ご確認ください
追加で費用が
かかる場合があります
必ずご確認ください
初期費用めやす約0円
追加で費用がかかります(※)敷金
0
- 礼金
75,000
賃料+共益費・管理費の1ヶ月分として換算
賃料の1ヶ月分+税として換算。不動産会社によって金額が異なるため正確な金額は不動産会社にお問合せください
※追加費用もチェック!
これらの項目以外にも費用がかかる場合があります。正確な金額は不動産会社にお問合せください。
- 初期費用
- 鍵交換費:16,500円
- 室内清掃費:不動産会社に要確認
- 火災保険費:不動産会社に要確認
- 月額費用
- 駐車場費:10,000円(税込)※契約任意
- その他
- 入居者サポート:1100円
- 町会費:6000円
- 抗菌除菌処理代:22000円
- 保証会社
- 初回:月額賃料等の40%、月額:保証料2090円(火災保険込み)
不動産会社より
ダブルアクセス可能 2007年築ファミリー物件 京阪深草駅まで徒歩4分の2DKです。
JR、京阪のダブルアクセス。更新料ナシです。嬉しい3点セパレートなど充実の設備。コンビニ、スーパーなど近くにあって便利ですよ。光ファイバー対応しています。
- 保存する
- 共有する
- ※各種情報と現状に差異がある場合は、現状優先となります
- ※不動産会社が入力した情報を基に物件の位置を表示しています。詳しくは不動産会社までお問合せください
- ※不動産会社の方からの上記電話番号によるお問合せはお断りしております。こちら不動産会社詳細からお問合せください
- ※LIFULL HOME'Sは物件鮮度No.1を目指していきます。閲覧中の物件が「成約済である」「実際の物件情報と異なる点がある」などの場合、「掲載110番」からお問合せください
- ※QRコードは株式会社デンソーウェーブの登録商標です
したい暮らしのタグから探す
最近見た賃貸物件
LIFULL HOME'S 地図・周辺情報
買い物
- セブンイレブン 伏見稲荷駅南店
- フレスコ 深草店
- ドラッグユタカ伏見稲荷店
- ファミリーマート 深草龍大前店
- Maxvalu藤森店
グルメ
- ドトールコーヒーショップEneJet伏見店
- スターバックスコーヒー龍谷大学店
- なか卯 龍大前店
- コメダ珈琲店京都伏見稲荷店
- すき家 龍谷大店
育児・教育
- 京都市立深草幼稚園
- 京都市立砂川小学校
- 私立京都聖母学院中学校
- 第二深草保育園
- 私立京都聖母学院小学校
医療
- 医療法人社団育生会京都久野病院
- 医療法人社団育成会京都久野病院介護医療院
- 独立行政法人国立病院機構京都医療センター
- 医療法人財団医道会稲荷山武田病院
- 医療法人五木田病院介護医療院
公共施設・郵便局
- 深草郵便局
- 京都市南図書館
- 京都市伏見区役所深草支所
- 伏見西浦郵便局
- 京都府南警察署
公園
- 深草墓園
- 深草西浦南公園
- 竹田公園
- 伏見北堀公園
- 伏見桃山城運動公園
利用可能な駅
- 徒歩10分以内
京阪本線
- 龍谷大前深草駅徒歩4分
JR奈良線
- 稲荷駅徒歩5分
- すべての駅
京阪本線
- 藤森駅徒歩11分
- 伏見稲荷駅徒歩13分
- 鳥羽街道駅徒歩19分
- 墨染駅徒歩23分
- 丹波橋駅3.2km
京都市営烏丸線
- くいな橋駅徒歩19分
- 十条駅徒歩28分
- 九条駅徒歩37分
JR奈良線
- JR藤森駅徒歩25分
- 東福寺駅徒歩28分
近鉄京都線
- 上鳥羽口駅徒歩26分
- 竹田駅徒歩29分
- 伏見駅徒歩35分
- 十条駅3.1km
- 近鉄丹波橋駅3.1km
- 東寺駅3.7km
JR東海道・山陽本線
- 京都駅3.7km
- 周辺情報は2023年07月21日時点のものになります。
- 周辺情報は、参考情報としてのみご利用ください(周辺情報は、株式会社LIFULLが地図情報の提供事業者から提供を受けた情報とLIFULL HOME'Sの物件情報に基づき、独自の方法で抽出し提供しているものです。周辺情報は、移転や閉鎖等により情報が最新ではない、または正しくない場合がありますが、地図情報の提供事業者から提供された情報をそのまま周辺情報として表示しているため、正確かつ最新の情報へ修正することができないことがあります。)
- 周辺情報は、株式会社LIFULLが掲載するものであり、不動産物件情報を掲載している不動産会社が掲載するものではありません
- 交通情報の一部については、株式会社LIFULLが掲載するものであり、不動産物件情報を掲載している不動産会社が掲載するものではない場合があります。交通情報に関する質問などは株式会社LIFULLにお問合せください










































