LIFULL HOME'Sは物件鮮度No.1!※評価について
トランプ並木 2階/203
5.2万円/管理費等3,000円
3日前 更新
LINEチャットでも 相談できます
お問合せ先 :アパマンショップ紙屋町店 株式会社 ケイアイホーム
住まい探し特典内容
ご来店時にアンケートをご記入いただいた方にPontaポイントプレゼント!
- 利用条件
- アパマンショップ紙屋町店 株式会社 ケイアイホームで利用可
- 他特典との併用可
利用方法
来店時に本特典の画面をスマートフォンやタブレットでスタッフに提示、または画面印刷した用紙を提示ください。
有効期限 2025年12月31日まで
お部屋の見学、来店のご予約はお気軽にお申し付けください。
基本情報
不動産用語- 賃料
- 5.2万円
- 管理費等
- 3,000円
初期費用などお気軽にお問合せください
- 敷金/礼金
- 2ヶ月/1ヶ月
- 保証金/敷引・償却金
- -/-
- 交通
広島電鉄1系統 袋町駅 徒歩5分
広島高速交通アストラムライン 本通駅 徒歩7分
広島電鉄宇品線 中電前駅 徒歩8分
- 所在地
広島県広島市中区中町
地図を見る- 築年月
- 1999年3月(築27年)
- 主要採光面
- 南
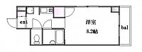
- 専有面積
- 23.7㎡
- バルコニー面積
- -
- 所在階/階数
- 2階/7階建
入居可能日などお気軽にお問合せください
- 現況
- -
- 入居可能時期
- 2026年01月 中旬

人気物件はすぐに埋まってしまいます。
気になったらお早めにお問合せください。
- 情報公開日
2025/11/16
12日前 公開
- 情報更新日
2025/11/25
3日前 更新
- 次回更新
予定日 - 2025/12/02
物件のこだわり/設備・条件
新築(非該当)
2階以上の物件(該当)
南向き(該当)
駐車場(非該当)
オートロック(該当)
エアコン(該当)
バス・トイレ別(該当)
追焚機能(非該当)
フローリング(該当)
ペット相談(非該当)
位置
角部屋入居条件
事務所可(SOHO向け)、単身者限定、ルームシェア不可、保証人要キッチン/バス・トイレ
設備・サービス
オートロック、エアコン、クローゼット、シューズボックス、公営水道、下水、オール電化、フローリング、バルコニー、室内洗濯機置場、南面バルコニー、タイル貼り、エレベーターその他
初期費用カード決済可、住まい探し特典あり
物件周辺の生活情報
学校
- 袋町小学校(291m)
- 国泰寺中学校(623m)
買い物
- コンビニ(110m)
- スーパー(378m)
その他施設
- 総合病院(273m)
交通
- 広島電鉄1系統 袋町駅 徒歩5分
- 普通(停車)
- 広島高速交通アストラムライン 本通駅 徒歩7分
- 普通(停車)
※急行等の停車駅情報について
急行等の停車駅に関するデータは、随時更新をしておりますが、最新の内容であることを保証するものではありません。
最新かつ正確な情報につきましては、各鉄道会社のウェブサイトにてご確認ください
物件概要
- 建物構造
- RC(鉄筋コンクリート)
- 駐車場
- 無
- 総戸数
- -
- 契約形態
- -
- 契約期間
- 2年間
- 更新料
- -
- その他費用
- 鍵交換費/SEED24/年:29,700円
- 保証会社
加入要
保証会社:日本セーフティ
保証会社利用料:初回:月額総額の50%
- 住宅保険
- 要
- 管理
- -
- LIFULL HOME'S
物件番号 - 3103531-0250331
- 自社管理番号
- 100815054
- 取引態様
- 仲介
- 会社名
- アパマンショップ紙屋町店 株式会社 ケイアイホーム
営業スタッフコメント

アパマンショップ紙屋町店 株式会社 ケイアイホーム
城戸美樹
お客様の理想に近いお部屋を一緒に探しましょう♪
業界経験2年
資格宅地建物取引士
- 会社実績や特徴・サービス情報
- 本川町駅の電停から徒歩1分,十日市町駅の電停からは徒歩2分に当店はござます。 遠くからでもはっきりと良く見える、大きな青い看板『アパマンショップ』が目印です。 無料駐車場もご用意しておりますので、お車でご来店いただいても大丈夫です♪ 当店は中区周辺はもちろんですが、広島市内全域だけでなく、廿日市市や安芸郡の物件もご案内しております。 お客様のライフスタイルを第一に考え、ご希望にそった物件をご提案させていただいております。 アパマンショップで理想のお部屋を一緒に探しましょう!
本川町駅の電停から徒歩1分,十日市町駅の電停からは徒歩2分に当店はござます。 遠くからでもはっきりと良く見える、大きな青い看板『アパマンショップ』が目印です。 無料駐車場もご用意しておりますので、お車でご来店いただいても大丈夫です♪ 当店は中区周辺はもちろんですが、広島市内全域だけでなく、廿日市市や安芸郡の物件もご案内しております。 お客様のライフスタイルを第一に考え、ご希望にそった物件をご提案させていただいております。 アパマンショップで理想のお部屋を一緒に探しましょう!
- 電話でお問合せ(通話無料)
お問合せ先 :アパマンショップ紙屋町店 株式会社 ケイアイホーム
不動産会社情報
アパマンショップ紙屋町店 株式会社 ケイアイホーム

広島県広島市中区大手町1丁目1-26大手町一番ビル
広島電鉄2系統 紙屋町西駅 徒歩1分
- 営業時間
- 10:00~18:00((年中無休))
- 定休日
- お盆・年末年始
優良店認定
ちょっと相談だけ・・相談だけでも是非お立ち寄り下さい!また、転勤で広島には来れないというお客様にはテレビ電話やフェイスタイムでのご案内もいたします!お気軽にお問合せ下さい!
- 店舗の特徴
- 引越し業者紹介可
- 年中無休
- 駐車場あり
- バリアフリー
- 系列店舗での対応可
- オンライン相談可
- 保証人不要な物件あり
- 法人契約取扱い
- 女性スタッフ対応可
- 駅から歩いて3分以内
電話でお問合せお客様の電話番号は不動産会社には通知されません
- 不動産会社に
つながります
お客様の電話番号は不動産会社に通知されません
- ※光IP電話、及びIP電話からはご利用になれません
- ※お電話によるお問合せは、店舗営業時間内にお願いします。つながらない場合は、お問合せフォームよりお問合せください
- ※不動産会社がお電話に出られなかった場合、お問合せいただいた後に不動産会社より折り返しのお電話がある場合がございます(お客様が非通知設定した場合は対象外です)
- ※株式会社LIFULLは電話会社が提供するサービスを介してお客様の発信者番号を受領後、折り返し専用の電話番号を発番してお問合せの不動産会社に通知します(お客様の発信者番号がお問合せの不動産会社に通知されることはございません)
- ※携帯電話からお問合せいただいた方に対し、株式会社LIFULLは電話会社が提供するメッセ―ジサービスを介してお客様の発信者番号を受領後、ショートメッセージ(SMS)またはLINE通知メッセージによるお問合せ内容に関する通知をお届けする場合があります
- ※お客様が通話中に不動産会社にお伝えになったお客様の個人情報及び、電話会社が発番する折り返し専用の電話番号は、お問合せ先不動産会社が資料送付・電子メール送信・電話連絡などの目的で保管する可能性があります。お問合せ先不動産会社が保管する個人情報の取扱いについては、各不動産会社に直接お問合せください
- ※株式会社LIFULLでは本サービスを円滑に運用するために、お客様の発信者番号をサービスご利用の控えとして一定期間保管いたします
- ※上記および株式会社LIFULLの個人情報の取扱い方針に同意のうえ、お電話ください
【LIFULL HOME'S物件番号】3103531-0250331【自社管理番号】100815054
初期費用・月額費用をあわせて確認!この物件に住んだときの費用めやす
めやすを見るこの物件に住んだときの費用めやす
- 初期費用
- 月額費用
- 追加費用※ご確認ください
追加で費用が
かかる場合があります
必ずご確認ください
初期費用めやす約0円
追加で費用がかかります(※)敷金
104,000
- 礼金
52,000
賃料+共益費・管理費の1ヶ月分として換算
賃料の1ヶ月分+税として換算。不動産会社によって金額が異なるため正確な金額は不動産会社にお問合せください
※追加費用もチェック!
これらの項目以外にも費用がかかる場合があります。正確な金額は不動産会社にお問合せください。
- 初期費用
- 鍵交換費:不動産会社に要確認
- 室内清掃費:不動産会社に要確認
- 火災保険費:不動産会社に要確認
- その他
- 鍵交換費/SEED24/年:29700円
- 保証会社
- 初回:月額総額の50%
不動産会社より
お部屋の見学、来店のご予約はお気軽にお申し付けください。
- 保存する
- 共有する
- ※各種情報と現状に差異がある場合は、現状優先となります
- ※不動産会社が入力した情報を基に物件の位置を表示しています。詳しくは不動産会社までお問合せください
- ※不動産会社の方からの上記電話番号によるお問合せはお断りしております。こちら不動産会社詳細からお問合せください
- ※LIFULL HOME'Sは物件鮮度No.1を目指していきます。閲覧中の物件が「成約済である」「実際の物件情報と異なる点がある」などの場合、「掲載110番」からお問合せください
- ※QRコードは株式会社デンソーウェーブの登録商標です
したい暮らしのタグから探す
この物件を取扱う他の会社
LIFULL HOME'Sでは、主要項目が同一の物件をまとめて表示しています。所在地や営業時間、掲載画像等から不動産会社を選んでお問合せください。
同じ建物の他の部屋
LIFULL HOME'S 地図・周辺情報
買い物
- セブンイレブン 広島中町店
- ドン・キホーテ 広島八丁堀店
- ウォンツ平和大通り店
- セブンイレブン 広島並木通り店
- ユアーズ LIVI広島本通店
グルメ
- カフェ・ディ・エスプレッソ珈琲館三井GH広島店
- 一風堂広島袋町店
- サブウェイ 広島中央通り店
- サイゼリヤ 広島本通り店
- しゃぶ葉広島本通店
育児・教育
- 広島中央幼稚園
- 広島市立袋町小学校
- 広島市立国泰寺中学校
- 広島YMCA保育園
- 私立広島三育学院小学校
医療
- 林病院
- 医療法人三和会おおうち病院
- 一ノ瀬病院
- 中国電力(株)中電病院
- 特定医療法人あかね会土谷総合病院
公共施設・郵便局
- 広島並木通り郵便局
- 広島市立中央図書館
- 広島県警察本部
- 広島立町郵便局
- 5-Daysこども図書館
公園
- 平和記念公園
- 平和記念公園
- 西部河岸緑地
- HIROSHIMA GATE PARK PLAZA
- 東千田公園
利用可能な駅
- 徒歩10分以内
広島電鉄1系統
- 袋町駅徒歩5分
広島高速交通アストラムライン
- 本通駅徒歩7分
- その他交通
- 広島電鉄宇品線 中電前駅 徒歩8分
- 周辺情報は2023年07月21日時点のものになります。
- 周辺情報は、参考情報としてのみご利用ください(周辺情報は、株式会社LIFULLが地図情報の提供事業者から提供を受けた情報とLIFULL HOME'Sの物件情報に基づき、独自の方法で抽出し提供しているものです。周辺情報は、移転や閉鎖等により情報が最新ではない、または正しくない場合がありますが、地図情報の提供事業者から提供された情報をそのまま周辺情報として表示しているため、正確かつ最新の情報へ修正することができないことがあります。)
- 周辺情報は、株式会社LIFULLが掲載するものであり、不動産物件情報を掲載している不動産会社が掲載するものではありません
- 交通情報の一部については、株式会社LIFULLが掲載するものであり、不動産物件情報を掲載している不動産会社が掲載するものではない場合があります。交通情報に関する質問などは株式会社LIFULLにお問合せください




























