LIFULL HOME'Sは物件鮮度No.1!※評価について
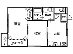
メゾン・ド・さくら(2階/203号室/2DK/43.74m²)
メゾン・ド・さくら(2階/203号室/2DK/43.74m²)
3.5万円/管理費等3,000円
15時間前 更新
お問合せ先 :AVANTI株式会社
☆Wifi無料☆
物件のこだわり/設備・条件
新築(非該当)
2階以上の物件(該当)
南向き(非該当)
駐車場あり(該当)
オートロック(非該当)
エアコン(該当)
バス・トイレ別(該当)
追焚機能(非該当)
フローリング(該当)
ペット相談(非該当)
入居条件
即入居可- 上記以外や相談可の
詳細はお問合せください - 上記以外や相談可の詳細は
お電話ください(通話無料)電話でお問合せ キッチン/バス・トイレ
給湯、専用バス、専用トイレ、バス・トイレ別、洗面所独立設備・サービス
エアコン、シューズボックス、インターネット使用料無料、公営水道、都市ガス、浄化槽、フローリング、バルコニー、室内洗濯機置場、照明器具付き、駐車場あり備考
インターネット回線(WiFi)をご利用の場合は、アパート契約手続後にインターネット回線の利用開始の申し込みが必要です、その後ホームゲートウェイ等の装置が届いてからインターネットが使えます。居室に照明器具がない場合、入居者様でご準備お願いします。契約時に家財保険料2年間分18、000円がかかり、2年ごとに更新です。契約期間2年ごとに契約更新事務料20、000円(税別)がかかります。畳の表替えは貸主が負担します。 普通賃貸借
物件周辺の生活情報
交通
- JR東北本線 水沢駅 徒歩34分
- 普通(停車)
- ラビット(通過)
- 快速(通過)
- はまゆり(通過)
※急行等の停車駅情報について
急行等の停車駅に関するデータは、随時更新をしておりますが、最新の内容であることを保証するものではありません。
最新かつ正確な情報につきましては、各鉄道会社のウェブサイトにてご確認ください
物件概要
- 建物構造
- 木造
- 駐車場
- 空有 無料
- 総戸数
- 6戸
- 契約形態
- -
- 契約期間
- -
- 更新料
- -
- その他費用
- -
- 保証会社
加入要
保証会社:アーク賃貸保証
保証会社利用料:初回保証料:月額総額の50%(最低保証料15、000円) 年額保証料10、000円 月額保証料1、100円/月
- 住宅保険
- 要
- 管理
- -
- LIFULL HOME'S
物件番号 - 3210763-0002775
- 自社管理番号
- homes-c-030082011535
- 取引態様
- 仲介
- 会社名
- AVANTI株式会社
- 電話でお問合せ(通話無料)
お問合せ先 :AVANTI株式会社
不動産会社情報
AVANTI株式会社

岩手県奥州市水沢台町1番52号
JR東北本線 水沢駅 徒歩17分
- 営業時間
- 09:00~18:00(日曜日9:00〜17:00)
- 定休日
- 毎週水曜日 土曜日 祝日 年末年始 GW お盆
優良店認定
電話でお問合せお客様の電話番号は不動産会社には通知されません
- 不動産会社に
つながります
お客様の電話番号は不動産会社に通知されません
- ※光IP電話、及びIP電話からはご利用になれません
- ※お電話によるお問合せは、店舗営業時間内にお願いします。つながらない場合は、お問合せフォームよりお問合せください
- ※不動産会社がお電話に出られなかった場合、お問合せいただいた後に不動産会社より折り返しのお電話がある場合がございます(お客様が非通知設定した場合は対象外です)
- ※株式会社LIFULLは電話会社が提供するサービスを介してお客様の発信者番号を受領後、折り返し専用の電話番号を発番してお問合せの不動産会社に通知します(お客様の発信者番号がお問合せの不動産会社に通知されることはございません)
- ※携帯電話からお問合せいただいた方に対し、株式会社LIFULLは電話会社が提供するメッセ―ジサービスを介してお客様の発信者番号を受領後、ショートメッセージ(SMS)またはLINE通知メッセージによるお問合せ内容に関する通知をお届けする場合があります
- ※お客様が通話中に不動産会社にお伝えになったお客様の個人情報及び、電話会社が発番する折り返し専用の電話番号は、お問合せ先不動産会社が資料送付・電子メール送信・電話連絡などの目的で保管する可能性があります。お問合せ先不動産会社が保管する個人情報の取扱いについては、各不動産会社に直接お問合せください
- ※株式会社LIFULLでは本サービスを円滑に運用するために、お客様の発信者番号をサービスご利用の控えとして一定期間保管いたします
- ※上記および株式会社LIFULLの個人情報の取扱い方針に同意のうえ、お電話ください
【LIFULL HOME'S物件番号】3210763-0002775【自社管理番号】homes-c-030082011535
初期費用・月額費用をあわせて確認!この物件に住んだときの費用めやす
めやすを見るこの物件に住んだときの費用めやす
- 初期費用
- 月額費用
- 追加費用※ご確認ください
追加で費用が
かかる場合があります
必ずご確認ください
初期費用めやす約0円
追加で費用がかかります(※)敷金
35,000
- 礼金
0
賃料+共益費・管理費の1ヶ月分として換算
賃料の1ヶ月分+税として換算。不動産会社によって金額が異なるため正確な金額は不動産会社にお問合せください
※追加費用もチェック!
これらの項目以外にも費用がかかる場合があります。正確な金額は不動産会社にお問合せください。
- 初期費用
- 鍵交換費:不動産会社に要確認
- 室内清掃費:不動産会社に要確認
- 火災保険費:不動産会社に要確認
- 月額費用
- 駐車場費:無料
- 保証会社
- 初回保証料:月額総額の50%(最低保証料15、000円) 年額保証料10、000円 月額保証料1、100円/月
不動産会社より
☆Wifi無料☆
インターネット回線(WiFi)をご利用の場合は、アパート契約手続後にインターネット回線の利用開始の申し込みが必要です、その後ホームゲートウェイ等の装置が届いてからインターネットが使えます。居室に照明器具がない場合、入居者様でご準備お願いします。契約時に家財保険料2年間分18、000円がかかり、2年ごとに更新です。契約期間2年ごとに契約更新事務料20、000円(税別)がかかります。畳の表替えは貸主が負担します。 普通賃貸借
- 保存する
- 共有する
- ※各種情報と現状に差異がある場合は、現状優先となります
- ※不動産会社が入力した情報を基に物件の位置を表示しています。詳しくは不動産会社までお問合せください
- ※不動産会社の方からの上記電話番号によるお問合せはお断りしております。こちら不動産会社詳細からお問合せください
- ※LIFULL HOME'Sは物件鮮度No.1を目指していきます。閲覧中の物件が「成約済である」「実際の物件情報と異なる点がある」などの場合、「掲載110番」からお問合せください
- ※QRコードは株式会社デンソーウェーブの登録商標です
したい暮らしのタグから探す
LIFULL HOME'S 地図・周辺情報
買い物
- ファミリーマート 胆沢病院前店
- ジョイス 龍ケ馬場店
- ウエルシア水沢桜屋敷店
- ニューヤマザキデイリーストア胆沢病院店
- コメリハード&グリーン 水沢大鐘店
グルメ
- コメダ珈琲店水沢台町店
- すき家 4号奥州水沢店
- ガスト 水沢店(から好し取扱店)
- くるまやラーメン水沢店
- モスバーガー 水沢店
育児・教育
- 認定こども園こばとこども園
- 奥州市立水沢南小学校
- 奥州市立水沢南中学校
- 認定こども園こばとこども園
- 奥州市立真城小学校
医療
- 岩手県立胆沢病院
- 石川病院
- 奥州病院
- 医療法人社団創生会おとめがわ病院
- 奥州市総合水沢病院
公共施設・郵便局
- 水沢大鐘郵便局
- 奥州警察署
- 真城が丘簡易郵便局
- 奥州市役所(水沢総合支所)
- 笹森簡易郵便局
公園
- 大鐘公園
- 水沢公園
- 水沢公園
- 見分森公園
利用可能な駅
- すべての駅
JR東北本線
- 水沢駅徒歩34分
- 周辺情報は2023年07月21日時点のものになります。
- 周辺情報は、参考情報としてのみご利用ください(周辺情報は、株式会社LIFULLが地図情報の提供事業者から提供を受けた情報とLIFULL HOME'Sの物件情報に基づき、独自の方法で抽出し提供しているものです。周辺情報は、移転や閉鎖等により情報が最新ではない、または正しくない場合がありますが、地図情報の提供事業者から提供された情報をそのまま周辺情報として表示しているため、正確かつ最新の情報へ修正することができないことがあります。)
- 周辺情報は、株式会社LIFULLが掲載するものであり、不動産物件情報を掲載している不動産会社が掲載するものではありません
- 交通情報の一部については、株式会社LIFULLが掲載するものであり、不動産物件情報を掲載している不動産会社が掲載するものではない場合があります。交通情報に関する質問などは株式会社LIFULLにお問合せください













