LIFULL HOME'Sは物件鮮度No.1!※評価について
トビイシP 1階/101
7万円/管理費等-
5時間前 更新
お問合せ先 :大東建託リーシング株式会社 清水店
引越し料金割引
引越しされる際、提携している引越会社を「特別優待価格」でご紹介いたします。
- 利用条件
- 大東建託リーシング株式会社 清水店で利用可
- 他特典との併用可
利用方法
来店時に本特典の画面をスマートフォンやタブレットでスタッフに提示、または画面印刷した用紙を提示ください。
有効期限 2026年09月30日まで
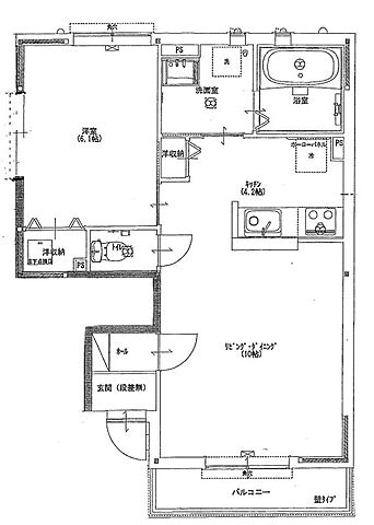
室内設備は浴室乾燥機・洗面所独立など充実した設備を備え付けています。
物件のこだわり/設備・条件
新築(非該当)
2階以上の物件(非該当)
南向き(非該当)
駐車場あり(該当)
オートロック(非該当)
エアコン(該当)
バス・トイレ別(該当)
追焚機能(非該当)
フローリング(該当)
ペット相談(非該当)
位置
角部屋入居条件
楽器不可、事務所不可、ペット不可、保証人不要キッチン/バス・トイレ
IHコンロ、コンロ三口、システムキッチン、給湯、専用バス、専用トイレ、バス・トイレ別、シャワー、シャワー付洗面化粧台、温水洗浄便座、浴室乾燥機、洗面所独立設備・サービス
TVモニタ付インターホン、エアコン、クローゼット、BS対応、公営水道、プロパンガス、下水、フローリング、バルコニー、室内洗濯機置場、駐車場あり、駐輪場ありその他
初期費用カード決済可、住まい探し特典あり備考
・鍵交換費用(任意):27、500円・1年未満の退去は、違約金有 ・ルームクリーニング、エアコンクリーニング費用は必須。 ・駐車場2台目3300円/月(要確認) 町内会費:400円
物件周辺の生活情報
買い物
- コンビニ(410m)
- スーパー(323m)
- ドラッグストア(157m)
交通
- 静岡鉄道静岡清水線 古庄駅 徒歩28分
- 普通(停車)
- 静岡鉄道静岡清水線 新静岡駅 バス20分 下足洗下車 徒歩5分
- 普通(停車)
※急行等の停車駅情報について
急行等の停車駅に関するデータは、随時更新をしておりますが、最新の内容であることを保証するものではありません。
最新かつ正確な情報につきましては、各鉄道会社のウェブサイトにてご確認ください
物件周辺の口コミ
- 静岡県静岡市葵区上土に住む人の口コミ60代男性
閑静な住宅街で治安も良い。バス利用も便利で自転車利用が多い地域。
口コミを見る
この物件周辺に住む人の口コミ
口コミは、LIFULL HOME'Sが実際にこの物件の周辺に住む18歳~69歳の男女を対象に、WEBアンケート調査を実施しています。内容には回答者の主観的な表現が含まれる場合があるほか、事実と異なる場合もございます。ご了承ください。
- 静岡県静岡市葵区上土に住む人の口コミ60代男性
- 閑静な住宅街で治安も良い。バス利用も便利で自転車利用が多い地域。
- 静岡県静岡市葵区安東に住む人の口コミ50代男性
- 治安が良く閑静な場所であり、田舎でもなく大都会でもなく住みやすい
- 静岡県静岡市駿河区馬渕に住む人の口コミ50代女性
- 生活の利便性は良い 少し足を伸ばせば、ほとんどの物は揃う 質問内容からみて満点とは言えないが 自分では満足している
- 静岡県静岡市葵区昭府に住む人の口コミ40代男性
- スーパーも近くに複数店あり、教育機関も整っている。バイパスや新東名へのアクセスも良好なので、大型のショッピングモールなどを郊外へ作り、他県からの流入による経済効果の活性化を図って頂きたいものです。
- 静岡県静岡市葵区安東に住む人の口コミ50代女性
- 都会ではなく、かといってすごく田舎でもない。穏やかな街の雰囲気と穏やかな人々。閑静な住宅街。治安がよく、安心感がある。すごく活気があるわけではないけど、さびれているわけではない。
- 静岡県静岡市駿河区馬渕に住む人の口コミ30代女性
- 比較的JR駅に近く、栄えている駅前までも徒歩10分ほどで行ける。ただ日常的に使いたいスーパーへは少し遠く、近くのスーパーは車での来店が少し難しい。一方通行の道が非常に多い。
- 静岡県静岡市葵区大岩本町に住む人の口コミ40代女性
- 街中なのに大きな公園や神社があり、緑も多く自然を感じられます。数件あるスーパーは価格が高めで、車で少し遠くのスーパーへ買い物に行っています。ファミレス、書店がなくなり残念に思います。
- 静岡県静岡市駿河区宮本町に住む人の口コミ60代女性
- 周りに銀行、郵便局、、こんびにスーパー等があり、駅にも徒歩で行けるし、環境もいいと思う。
- 静岡県静岡市葵区神明町に住む人の口コミ40代女性
- 水源に恵まれた土地だからか、たとえ水道水であっても美味しい。
- 静岡県静岡市葵区一番町に住む人の口コミ30代女性
- 気候は温暖。海も山も近くて自然豊か。新幹線や電車の駅も近い。都内へもアクセスが良い。食べ物が美味しい。地域の行事が盛ん。
物件概要
- 建物構造
- 軽量鉄骨造
- 駐車場
- 空有 無料
- 総戸数
- 6戸
- 契約形態
- -
- 契約期間
- 2年間
- 更新料
- -
- その他費用
- 入町費:1,000円
- 保証会社
加入要
保証会社:オリコフォレントインシュア
保証会社利用料:初回保証料(月額賃料等の50%)月額支払手数料(月額賃料等の1.2%)
- 住宅保険
- 要
- 管理
- -
- LIFULL HOME'S
物件番号 - 3700303-0018112
- 自社管理番号
- 328-2151150
- 取引態様
- 仲介
- 会社名
- 大東建託リーシング株式会社 清水店
営業スタッフコメント

大東建託リーシング株式会社 清水店副店長
西山
静岡市内のお部屋探しはおまかせください!
業界経験6年
資格宅地建物取引士
- 会社実績や特徴・サービス情報
- いい部屋ネット清水店は大東建託直営店です。自社管理物件はもちろん他社管理物件も幅広くご紹介が可能ですのでぜひお気軽にご連絡ください。新築・築浅・ペット可のお部屋と様々なお部屋がございます。 当店の特典としてすべてのお部屋のご契約で初期費用がクレジットカード決済可能です。お問い合わせはいい部屋ネット清水店へ。スタッフ一同、ご来店お待ちしております。
いい部屋ネット清水店は大東建託直営店です。自社管理物件はもちろん他社管理物件も幅広くご紹介が可能ですのでぜひお気軽にご連絡ください。新築・築浅・ペット可のお部屋と様々なお部屋がございます。 当店の特典としてすべてのお部屋のご契約で初期費用がクレジットカード決済可能です。お問い合わせはいい部屋ネット清水店へ。スタッフ一同、ご来店お待ちしております。
- 電話でお問合せ(通話無料)
お問合せ先 :大東建託リーシング株式会社 清水店
不動産会社情報
大東建託リーシング株式会社 清水店いい部屋ネット 清水店 大東建託(株)

静岡県静岡市清水区渋川500−1
静岡鉄道静岡清水線 桜橋駅 【無料駐車場8台完備!お車でのご来店も歓迎!】下車 徒歩13分
- 営業時間
- 10:00~18:00(12:30〜13:30は昼休憩時間です。)
- 定休日
- 毎週火曜日・水曜日、12/11(木)、冬季休暇12/22(月)〜1/3(土)
優良店認定
清水区・葵区・駿河区おまかせ下さい!単身様向けのお部屋からファミリー様向けのお部屋まで数多くのお部屋を揃えております。お客様のお問合せをスタッフ一同お待ちしております。
- 店舗の特徴
- 24時間管理物件取扱い
- 引越し業者紹介可
- 駐車場あり
- 系列店舗での対応可
- オンライン相談可
- 保証人不要な物件あり
- 法人契約取扱い
- 女性スタッフ対応可
電話でお問合せお客様の電話番号は不動産会社には通知されません
- 不動産会社に
つながります
お客様の電話番号は不動産会社に通知されません
- ※光IP電話、及びIP電話からはご利用になれません
- ※お電話によるお問合せは、店舗営業時間内にお願いします。つながらない場合は、お問合せフォームよりお問合せください
- ※不動産会社がお電話に出られなかった場合、お問合せいただいた後に不動産会社より折り返しのお電話がある場合がございます(お客様が非通知設定した場合は対象外です)
- ※株式会社LIFULLは電話会社が提供するサービスを介してお客様の発信者番号を受領後、折り返し専用の電話番号を発番してお問合せの不動産会社に通知します(お客様の発信者番号がお問合せの不動産会社に通知されることはございません)
- ※携帯電話からお問合せいただいた方に対し、株式会社LIFULLは電話会社が提供するメッセ―ジサービスを介してお客様の発信者番号を受領後、ショートメッセージ(SMS)またはLINE通知メッセージによるお問合せ内容に関する通知をお届けする場合があります
- ※お客様が通話中に不動産会社にお伝えになったお客様の個人情報及び、電話会社が発番する折り返し専用の電話番号は、お問合せ先不動産会社が資料送付・電子メール送信・電話連絡などの目的で保管する可能性があります。お問合せ先不動産会社が保管する個人情報の取扱いについては、各不動産会社に直接お問合せください
- ※株式会社LIFULLでは本サービスを円滑に運用するために、お客様の発信者番号をサービスご利用の控えとして一定期間保管いたします
- ※上記および株式会社LIFULLの個人情報の取扱い方針に同意のうえ、お電話ください
【LIFULL HOME'S物件番号】3700303-0018112【自社管理番号】328-2151150
オンライン対応
オンライン相談・IT重説に対応している物件です

「オンライン内見」「オンライン相談」「IT重説」とは?
物件の内見や不動産会社スタッフとの相談、契約前の重要事項説明をオンライン(ビデオ通話)で行うことができるサービスです。
オンライン内見
ビデオ通話で現地(物件)にいる不動産会社スタッフと映像・音声を使ってリアルタイムで会話しながら内見ができます。
オンライン相談
「物件について聞きたいことがある」など不動産会社スタッフへの相談もビデオ通話で行うことができます。
IT重説
契約前の重要事項説明(重説)をビデオ通話で行うことができます。
利用時の注意事項
- ビデオ通話については各不動産会社指定のものとなります。
- ビデオ通話利用時には通信が発生します。従量課金制通信サービスや通信量に上限があるネット回線・プランを利用する場合は、通信量にご注意ください。
- 通信速度やアプリの設定によってはビデオ通話の画質が低下することがあります。安定した画質で利用するためにも、Wi-Fi環境下での利用を推奨します。
- ご利用のビデオ通話アプリによっては、対象のOSやブラウザに制限がある場合があります。詳しくはお問合せ先不動産会社にご確認ください。
初期費用・月額費用をあわせて確認!この物件に住んだときの費用めやす
めやすを見るこの物件に住んだときの費用めやす
- 初期費用
- 月額費用
- 追加費用※ご確認ください
追加で費用が
かかる場合があります
必ずご確認ください
初期費用めやす約0円
追加で費用がかかります(※)敷金
140,000
- 礼金
70,000
賃料+共益費・管理費の1ヶ月分として換算
賃料の1ヶ月分+税として換算。不動産会社によって金額が異なるため正確な金額は不動産会社にお問合せください
※追加費用もチェック!
これらの項目以外にも費用がかかる場合があります。正確な金額は不動産会社にお問合せください。
- 初期費用
- 鍵交換費:不動産会社に要確認
- 室内清掃費:不動産会社に要確認
- 火災保険費:不動産会社に要確認
- 月額費用
- 駐車場費:無料
- その他
- 入町費:1000円
- 保証会社
- 初回保証料(月額賃料等の50%)月額支払手数料(月額賃料等の1.2%)
不動産会社より
室内設備は浴室乾燥機・洗面所独立など充実した設備を備え付けています。
・鍵交換費用(任意):27、500円・1年未満の退去は、違約金有 ・ルームクリーニング、エアコンクリーニング費用は必須。 ・駐車場2台目3300円/月(要確認) 町内会費:400円
- 保存する
- 共有する
- ※各種情報と現状に差異がある場合は、現状優先となります
- ※不動産会社が入力した情報を基に物件の位置を表示しています。詳しくは不動産会社までお問合せください
- ※不動産会社の方からの上記電話番号によるお問合せはお断りしております。こちら不動産会社詳細からお問合せください
- ※LIFULL HOME'Sは物件鮮度No.1を目指していきます。閲覧中の物件が「成約済である」「実際の物件情報と異なる点がある」などの場合、「掲載110番」からお問合せください
- ※QRコードは株式会社デンソーウェーブの登録商標です
この物件を取扱う他の会社
LIFULL HOME'Sでは、主要項目が同一の物件をまとめて表示しています。所在地や営業時間、掲載画像等から不動産会社を選んでお問合せください。
LIFULL HOME'S 地図・周辺情報
買い物
- セブンイレブン 静岡千代田7丁目店
- 業務スーパーエスポット 静岡東店
- ウエルシア静岡東千代田店
- ファミリーマート 静岡川合店
- ダイソーエスポット静岡東店
グルメ
- 焼肉きんぐ静岡流通通り店
- 藍屋 静岡東千代田店
- サイゼリヤ 静岡千代田店
- すき家 静岡流通通り店
- ロッテリア 静岡東千代田店
育児・教育
- 幼保連携型認定こども園沼上こども園
- 静岡市立千代田東小学校
- 私立常葉大学附属橘中学校
- 幼保連携型認定こども園沼上こども園分園
- 静岡市立千代田小学校
医療
- 重症心身障害児施設つばさ静岡
- 独立行政法人国立病院機構静岡てんかん・神経医療センター
- 静岡県立こども病院
- 静岡県立総合病院
- 溝口病院
公共施設・郵便局
- 静岡南沼上郵便局
- 静岡市立西奈図書館
- 静岡流通センター簡易郵便局
- 静岡市立中央図書館麻機分館
- 静岡上土郵便局
公園
- 愛宕霊園
- 柚木公園
- 草薙総合運動公園
利用可能な駅
- 徒歩10分以内
静岡鉄道静岡清水線
- 新静岡駅 バス20分 下足洗下車徒歩5分
- すべての駅
静岡鉄道静岡清水線
- 古庄駅徒歩28分
- 長沼駅徒歩32分
- 県総合運動場駅徒歩37分
- 柚木駅3.6km
JR東海道本線
- 東静岡駅3.2km
- 周辺情報は2023年07月21日時点のものになります。
- 周辺情報は、参考情報としてのみご利用ください(周辺情報は、株式会社LIFULLが地図情報の提供事業者から提供を受けた情報とLIFULL HOME'Sの物件情報に基づき、独自の方法で抽出し提供しているものです。周辺情報は、移転や閉鎖等により情報が最新ではない、または正しくない場合がありますが、地図情報の提供事業者から提供された情報をそのまま周辺情報として表示しているため、正確かつ最新の情報へ修正することができないことがあります。)
- 周辺情報は、株式会社LIFULLが掲載するものであり、不動産物件情報を掲載している不動産会社が掲載するものではありません
- 交通情報の一部については、株式会社LIFULLが掲載するものであり、不動産物件情報を掲載している不動産会社が掲載するものではない場合があります。交通情報に関する質問などは株式会社LIFULLにお問合せください
















