LIFULL HOME'Sは物件鮮度No.1!※評価について
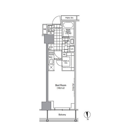
パークハビオ門前仲町(8階/810/ワンルーム/28.73m²)
パークハビオ門前仲町(8階/810/ワンルーム/28.73m²)
15.5万円/管理費等15,000円
1時間前 更新
お問合せ先 :株式会社ハウスメイトショップ 行徳店
1〜3月は引越しシーズンのピークです。お問合せはお早めに!
ペット飼育・楽器演奏応相談 エアコン設置済
基本情報
不動産用語- 賃料
- 15.5万円
- 管理費等
- 15,000円
初期費用などお気軽にお問合せください
- 敷金/礼金
- 1ヶ月/1ヶ月
- 保証金/敷引・償却金
- -/-
- 交通
東京メトロ東西線 門前仲町駅 徒歩2分
都営大江戸線 門前仲町駅 徒歩2分
- 所在地
東京都江東区深川2丁目
地図を見る- 築年月
- 2014年2月(築13年)
- 主要採光面
- 北
- 専有面積
- 28.73㎡
- バルコニー面積
- 3.68㎡
- 所在階/階数
- 8階/13階建
入居可能日などお気軽にお問合せください
- 現況
- 賃貸中
- 入居可能時期
- 2026年04月 下旬

人気物件はすぐに埋まってしまいます。
気になったらお早めにお問合せください。
- 情報公開日
2026/02/22
本日 公開
- 情報更新日
2026/02/22
1時間前 更新
- 次回更新
予定日 - 2026/03/01
この物件にお問合せ
入力は1分で完了!物件のこだわり/設備・条件
新築(非該当)
2階以上の物件(該当)
南向き(非該当)
駐車場(非該当)
オートロック(該当)
エアコン(該当)
バス・トイレ別(該当)
追焚機能(該当)
フローリング(該当)
ペット相談可(該当)
入居条件
楽器相談可、ペット相談キッチン/バス・トイレ
バス・トイレ別、追焚機能、シャワー、温水洗浄便座、浴室乾燥機、給湯ガスコンロ設置済、コンロ二口セキュリティ
オートロック、防犯カメラテレビ・通信
インターネット対応収納
ウォークインクローゼット室内
エアコン、フローリング、室内洗濯機置場、照明器具付き建物設備
エレベーター、宅配ボックス特徴
タイル貼りバルコニー・庭
バルコニー備考
大規模修繕工事実施計画有(詳細協議中) 駆付けサポート24借主加入 保証会社未使用時敷金2か月 ペット・楽器相談(諸条件弊社募集図面要確認) SOHO使用応相談(敷金1か月積増/保証料要確認) 民泊不可 鍵交換必須/退去時:室内清掃・エアコン洗浄費借主負担 付属施設空状況要確認
物件周辺の生活情報
買い物
- コンビニ(80m)
- スーパー(180m)
- ドラッグストア(270m)
交通
- 東京メトロ東西線 門前仲町駅 徒歩2分
- 普通(停車)
- 快速(停車)
- 通勤快速(停車)
- 都営大江戸線 門前仲町駅 徒歩2分
- 普通(停車)
※急行等の停車駅情報について
急行等の停車駅に関するデータは、随時更新をしておりますが、最新の内容であることを保証するものではありません。
最新かつ正確な情報につきましては、各鉄道会社のウェブサイトにてご確認ください
物件周辺の口コミ
- 東京都江東区深川に住む人の口コミ20代女性
買い物をする場所やクリーニング、病院、飲食店などに困らないが、栄えすぎているわけでもないので落ち着いた生活ができる。
口コミを見る
この物件周辺に住む人の口コミ
口コミは、LIFULL HOME'Sが実際にこの物件の周辺に住む18歳~69歳の男女を対象に、WEBアンケート調査を実施しています。内容には回答者の主観的な表現が含まれる場合があるほか、事実と異なる場合もございます。ご了承ください。
- 東京都江東区深川に住む人の口コミ20代女性
- 買い物をする場所やクリーニング、病院、飲食店などに困らないが、栄えすぎているわけでもないので落ち着いた生活ができる。
- 東京都江東区深川に住む人の口コミ30代女性
- 交通機関の利便性がよく、困らないから。歩いて行ける距離に主要な場所(銀座、豊洲、日本橋など)かあるので、散歩がてら遊びに行ける。
- 東京都江東区深川に住む人の口コミ30代女性
- 交通の便がよく、バスも沢山通っているし、何路線も電車がある。
- 東京都江東区深川に住む人の口コミ30代女性
- 交通の便が良いです。スーパーもコンビニも病院も近くに数カ所あって買い物にも困りません。公園も沢山あるので子供とよく出かけます。
- 東京都江東区牡丹に住む人の口コミ30代女性
- 買い物に便利で、治安も良くて、都心に近いので満足。土地が高かったので、そこがやや不満ポイント
- 東京都江東区冬木に住む人の口コミ30代男性
- 交通の便がとにかく良い。都心部への通勤や新幹線利用、羽田へのアクセスも申し分ない。
- 東京都江東区三好に住む人の口コミ20代女性
- 都会にありながら、地域の繋がりが強い点。下町でありながら、新参の店もたくさんあるカオスな状態が唯一無二。住んでいて、新しい発見もありながら、落ち着いて生活できる。
- 東京都江東区三好に住む人の口コミ20代女性
- 都心へのアクセスは抜群なのに、緑が多いところ。治安がよいところ。
- 東京都中央区日本橋中洲に住む人の口コミ30代男性
- 子育てしやすく、治安が良い。生活用品も調達しやすく、交通網も大きな不便は感じない。ただ、物価が高いのが難点
- 東京都江東区越中島に住む人の口コミ20代女性
- 交通利用がとても便利で都内どこでも行きやすい場所なので引越ししたいと思わないです。でもファストファッションなどの店舗がなく値段が高めのブランドばかりなのでショッピングモールを拡大してほしい。
この物件にお問合せ
入力は1分で完了!物件概要
- 建物構造
- RC(鉄筋コンクリート)
- 駐車場
- 無
- 総戸数
- 129戸
- 契約形態
- -
- 契約期間
- 2年間
- 更新料
- 新賃料の1ヶ月分
- その他費用
- 鍵交換代:33,000円
- 保証会社
加入要
保証会社:その他
保証会社利用料:日本セーフティー 初年度保証料:賃料等合計額の50%(最低保証料2万円)2年目以降:1年毎1万円
- 住宅保険
- 要
- 管理
- -
- LIFULL HOME'S
物件番号 - 0005521-0168205
- 自社管理番号
- -
- 取引態様
- 仲介
- 会社名
- 株式会社ハウスメイトショップ 行徳店
営業スタッフコメント

株式会社ハウスメイトショップ 行徳店
羽地優来
はじめまして。羽地(ハネジ)と申します!
業界経験1年
- スタッフ情報
- 初期費用や入居時期等、お気軽にお問い合わせ下さいませ。現地お待ち合わせやオンラインでのご案内も可能です!皆様のご来店心よりお待ちしております。
初期費用や入居時期等、お気軽にお問い合わせ下さいませ。現地お待ち合わせやオンラインでのご案内も可能です!皆様のご来店心よりお待ちしております。
お問合せ先 :株式会社ハウスメイトショップ 行徳店
不動産会社情報
株式会社ハウスメイトショップ 行徳店

千葉県市川市行徳駅前1丁目26-15 河幸第6ビル2F
東京メトロ東西線 行徳駅 徒歩1分
- 営業時間
- 10:00~18:00
- 定休日
- 水曜日(1月~3月無休)、GW、8/12〜8/15、年末年始
日管協加盟
優良店認定
初期費用・月額費用をあわせて確認!この物件に住んだときの費用めやす
めやすを見るこの物件に住んだときの費用めやす
- 初期費用
- 月額費用
- 追加費用※ご確認ください
追加で費用が
かかる場合があります
必ずご確認ください
初期費用めやす約0円
追加で費用がかかります(※)敷金
155,000
- 礼金
155,000
- 保証金
0
賃料+共益費・管理費の1ヶ月分として換算
賃料の1ヶ月分+税として換算。不動産会社によって金額が異なるため正確な金額は不動産会社にお問合せください
※追加費用もチェック!
これらの項目以外にも費用がかかる場合があります。正確な金額は不動産会社にお問合せください。
- 初期費用
- 鍵交換費:不動産会社に要確認
- 室内清掃費:不動産会社に要確認
- 火災保険費:不動産会社に要確認
- その他
- 鍵交換代:33000円
- 保証会社
- 日本セーフティー 初年度保証料:賃料等合計額の50%(最低保証料2万円)2年目以降:1年毎1万円
不動産会社より
ペット飼育・楽器演奏応相談 エアコン設置済
大規模修繕工事実施計画有(詳細協議中) 駆付けサポート24借主加入 保証会社未使用時敷金2か月 ペット・楽器相談(諸条件弊社募集図面要確認) SOHO使用応相談(敷金1か月積増/保証料要確認) 民泊不可 鍵交換必須/退去時:室内清掃・エアコン洗浄費借主負担 付属施設空状況要確認
- 保存する
- 共有する
- ※各種情報と現状に差異がある場合は、現状優先となります
- ※不動産会社が入力した情報を基に物件の位置を表示しています。詳しくは不動産会社までお問合せください
- ※不動産会社の方からの上記電話番号によるお問合せはお断りしております。こちら不動産会社詳細からお問合せください
- ※LIFULL HOME'Sは物件鮮度No.1を目指していきます。閲覧中の物件が「成約済である」「実際の物件情報と異なる点がある」などの場合、「掲載110番」からお問合せください
- ※QRコードは株式会社デンソーウェーブの登録商標です
LIFULL HOME'S 地図・周辺情報
買い物
- ファミリーマート 江東深川二丁目店
- アブアブ 赤札堂深川店
- ココカラファイン門前仲町店
- セブンイレブン 江東門前仲町店
- ダイソー赤札堂深川店
グルメ
- モスバーガー 門前仲町店
- フレッシュネスバーガー 門前仲町店
- いきなりステーキ門前仲町店
- 珈琲館門前仲町店
- マクドナルド 門前仲町店
育児・教育
- アスクもんなか保育園
- 江東区立明治小学校
- 私立中村中学校
- 双葉幼稚園
- 江東区立数矢小学校
医療
- 医療法人社団修世会木場病院
- 石川島記念病院
- 医社)青藍会鈴木病院
- 深川立川病院
- (財)聖路加国際病院
公共施設・郵便局
- 深川一郵便局
- 江東区立深川図書館
- 深川警察署
- 江東牡丹一郵便局
- 江東区立古石場図書館
公園
- 深川公園
- 古石場川親水公園
- 清澄庭園
- 木場親水公園
- 越中島公園
利用可能な駅
- 徒歩10分以内
東京メトロ東西線
- 門前仲町駅徒歩2分
都営大江戸線
- 門前仲町駅徒歩2分
- 周辺情報は2023年07月21日時点のものになります。
- 周辺情報は、参考情報としてのみご利用ください(周辺情報は、株式会社LIFULLが地図情報の提供事業者から提供を受けた情報とLIFULL HOME'Sの物件情報に基づき、独自の方法で抽出し提供しているものです。周辺情報は、移転や閉鎖等により情報が最新ではない、または正しくない場合がありますが、地図情報の提供事業者から提供された情報をそのまま周辺情報として表示しているため、正確かつ最新の情報へ修正することができないことがあります。)
- 周辺情報は、株式会社LIFULLが掲載するものであり、不動産物件情報を掲載している不動産会社が掲載するものではありません
- 交通情報の一部については、株式会社LIFULLが掲載するものであり、不動産物件情報を掲載している不動産会社が掲載するものではない場合があります。交通情報に関する質問などは株式会社LIFULLにお問合せください










